Three-room apartment for sale in a newly constructed building
Price:
288 875 € (excluding VAT) (2 500 €/m 2 (excluding VAT))
*The prices and availability of vacant properties in the project are indicative. For up-to-date pricing information, please contact us!
Ref. Number: Kbs 127172 / 3960
Location: Oborishte / Sofia map
Building/complex type: Residential
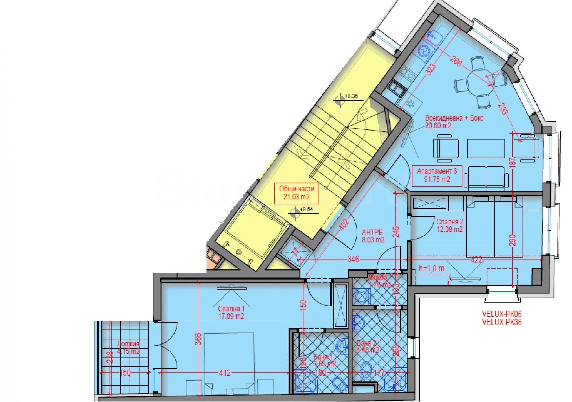
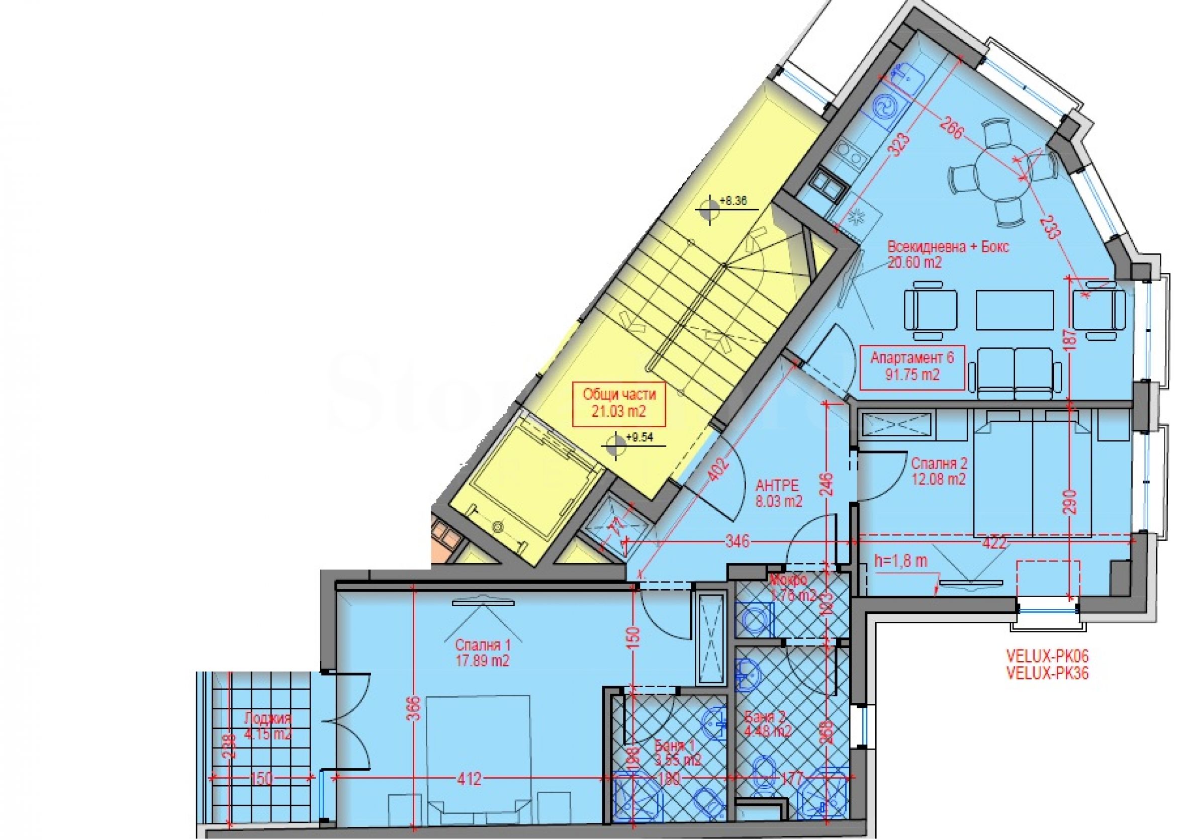
Housing areas: 115.55 m 2
Types of properties in the building/complex: 2-bedroom apartments
Ref. Number: Kbs 127172 / 3960
Location: Oborishte / Sofia
Building/complex type: Residential
Building/complex class:
Housing areas: 115.55 m 2
Types of properties in the building/complex: 2-bedroom apartments
The specific offer is for a three-room apartment No. 6, located on the fourth floor with an area of 110.71 m2 - basement 4.84 m2 and the following layout - entrance hall, living room with kitchenette, bedroom, second bedroom with its own bathroom and access to a balcony, utility room and second bathroom with toilet.
Main facilities:
Number of floors: 6 floors;
Total number of apartments: 9;
Available apartments: 7;
Heating of thermal power plants;
Area of the smallest available apartment: 95.02 m2.;
Area of the largest available apartment: 171.36 m2.;
Lowest price: €228,048 (excl. VAT);
Highest price: €411,264 (excluding VAT);
Total built-up area (GFA): 1030 m2;
Expected Act 16: October 2026
Payment plan:
30% upon signing a preliminary contract;
30% for Act 14;
30% for Act 15;
10% for Act 16.
Main advantages of the location:
Central location: Located in close proximity to the ideal center of Sofia, with easy access to administrative buildings, banks, shops and restaurants.
Transport links: Just a few minutes walk from public transport stops (trams, buses) and convenient access to metro stations.
Distances:
1.5 km from the ideal city center (Alexander Battenberg Square).
About 10 km from Sofia Airport, accessible in about 20 minutes by car.
Infrastructure: Proximity to main boulevards such as Dondukov Blvd. and Vasil Levski Blvd., which provide easy access to the rest of the city.
Cultural environment: The area is surrounded by historical landmarks, such as the St. Alexander Nevsky Cathedral, the National Assembly, and Sofia University, which are within a short distance.
This is a project with a strategic location and a limited number of apartments, which provide the opportunity for comfortable and modern living in the city center. Contact us for more information or viewings.
We look forward to your inquiry.
If you would like to arrange a viewing of a property that interests you, or to visit one of our offices, please contact us. To arrange a day and time for a meeting or viewing, you can call the phone number listed in the ad or send an inquiry via e-mail. Our consultant will assist you with all the necessary details and will arrange a time convenient for you.
Are you looking for the right property for you?
Do not hesitate to contact us and tell us about your needs and preferences. Our team will conduct a thorough market research to offer you properties that exactly meet your criteria. We have an exceptional portfolio of high-quality and exclusive homes that are available only to our clients. To be the first to receive information about them – contact us.
Additional services
As a valued client of our company, you will have the privilege of using the services of our experienced legal team completely free of charge. In addition, we offer comprehensive solutions, including property insurance, free financial consulting, as well as favorable financing conditions. Our services also extend to the field of resale, rental and property management. We provide high-quality renovation and furniture through specialized companies that are part of our corporate group and are our long-standing professional partners.
Viewings
We are ready to organize a viewing of this property at a time convenient for you. Please contact the responsible estate agent and inform them when you would like to have viewings arranged. We can also help you with flight tickets and hotel booking, as well as with travel insurance.
Property reservation
You can reserve this property with a non-refundable deposit of 2,000 Euro, payable by credit card or by bank transfer to our company bank account. After receiving the deposit the property will be marked as reserved, no further viewings will be carried out with other potential buyers, and we will start the preparation of the necessary documents for completion of the deal. Please contact the responsible estate agent for more information about the purchase procedure and the payment methods.
After sale services
We are a reputable company with many years of experience in the real estate business. Thus, we will be with you not only during the purchase process, but also after the deal is completed, providing you with a wide range of additional services tailored to your requirements and needs, so that you can fully enjoy your property in Bulgaria. The after sale services we offer include property insurance, construction and repair works, furniture, accounting and legal assistance, renewal of contracts for electricity, water, telephone and many more.
Location on the map
MANDATE
SALE
PROJECT
Luxuriously furnished two-bedroom apartment in RUHouse 2, on Cherni Vrah Blvd.
Krustova Vada / Sofia / Sofia / Bulgaria map
Building/complex class: Luxurious
Area: 120.49 m 2
Price: 481 960 € /// 4 000 €/m 2
SALE
PROJECT
Designer two-bedroom apartment in a new complex in Malinova Dolina
v.z.Malinova dolina / Sofia / Sofia / Bulgaria map
Area: 178.40 m 2
Price: PRICE UPON REQUEST ///
SALE
PROJECT
Two-bedroom apartment with two terraces and an underground parking space in the Kosher complex
Manastirski Livadi - East / Sofia / Sofia / Bulgaria map
Area: 129 m 2
Price: 580 000 € /// 4 496 €/m 2
Select this option and we will notify you by email if there are any changes to the offer status, for example:
• Price change;
• The property entered into a promotional offer;
• The property is reserved or sold;
• Other news related to the property.
• The property is removed from sale;
You can easily unsubscribe from notifications whenever you want.• Changes to the terms of the offer;
• Change in the amount of the investment;
• The subject of the investment has been fully realized;
• The offer has expired.
You can easily unsubscribe if you decide in the future that you no longer want to follow this offer.
To receive absolutely correct information about the vacant properties available for sale in the project and their current prices, please contact our office at the contact information provided.
We make every effort to keep our price lists absolutely up-to-date and correct, but this is often impossible, given the large number of new projects in our catalog and the highly dynamic sales.
Thank you for your understanding!



...As a proven specialist, Stonehard PREMIER works on the market positioning and sales of numerous new construction projects, the implementation of which has been entrusted to us by leading entrepreneurial companies in Bulgaria and abroad...