Дизайнерски обзаведен двустаен апартамент в престижния комплекс Fohar
Цена:
333 000 € (3 659 €/м2)
*Указаните цени и наличности от свободни имоти в проекта са индикативни. За актуална ценова информация, моля свържете се с нас!
Реф. Номер: SOF-133403 / 3854
Местоположение: Бояна / София карта
Тип на сграда/комплекс: Жилищен
Клас на сградата/комплекса: Висок стандарт
Площи на жилищата: 91 м2
Типове имоти в сградата/комплекса: Двустайни апартаменти
Реф. Номер: SOF-133403 / 3854
Местоположение: Бояна / София
Тип на сграда/комплекс: Жилищен
Клас на сградата/комплекса: Висок стандарт
Площи на жилищата: 91 м2
Типове имоти в сградата/комплекса: Двустайни апартаменти
FOHAR предлага богата инфраструктура: зелени площи, детски кътове, фитнес, ресторант и 24/7 охрана, както и Smart Home Ready системи за управление на дома. Има Акт 16.
С получена награда за "Отличителен архитектурен образ и трансформация" към национален конкурс "Сграда на годината 2025 г."
За апартамента
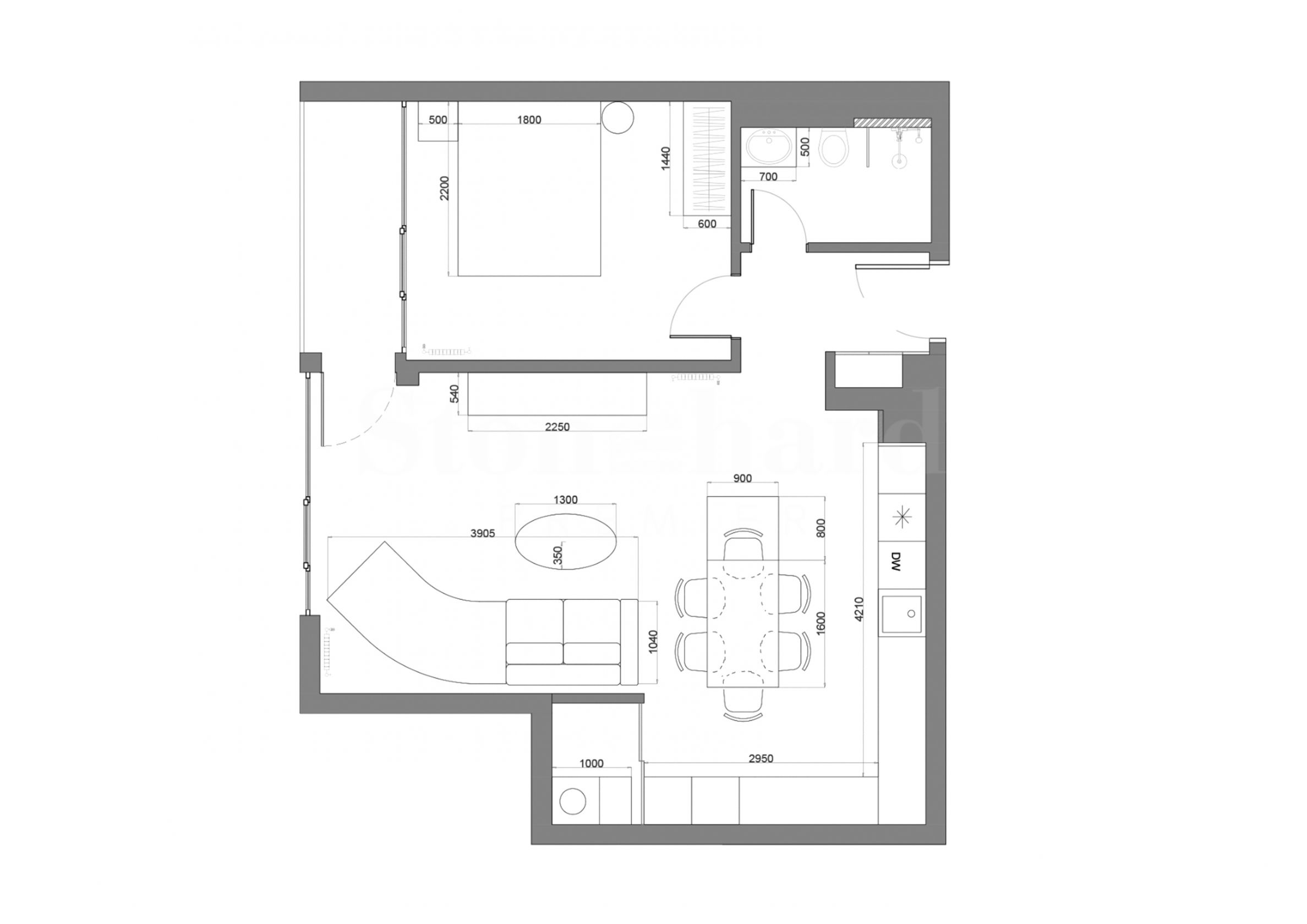
Функционален, светъл и просторен, двустайният апартамент е с чиста застроена площ от 71,99 кв.м и обща площ от 91,33 кв.м. Жилището се намира на междинен етаж, с южно изложение и предлага впечатляващо усещане за простор, комфорт и уют, благодарение на високите тавани и панорамните прозорци с гледка към планината.
Апартаментът включва просторна дневна с кухня, уютна спалня с излаз към лоджия, баня и антре. Допълнително към имота има мазе и собствено паркомясто.
Интериорът е реализиран с мебели и осветление от водещи италиански брандове като Ditre Italia, Calligaris, Cattelan Italia, Flos и кухня Pedini, оборудвана с Bosch електроуреди. Всяка зона в жилището е прецизно проектирана с внимание към функционалността и естетиката.
Просторно и оптимизирано разпределение:
• Дневна с кухня (37.8 кв.м) – голямо, светло помещение с южно изложение, което обединява кухня, трапезария и дневна зона. Пространството е разчупено, с правилни форми.
• Спалня (13.48 кв.м) – уютна, правоъгълна стая с място за голямо легло, гардероб. Излиза директно към южна лоджия от 3.82 м², предлагаща нескриваема панорамна гледка към планината.
• Баня (3.81 кв.м) - компактна, добре организирана баня, с място за мивка и душ зона.
• Антре (3.87 кв.м)
• Допълнително – мазе (4.86 кв.м) – сухо, изолирано помещение с прави форми, стабилна врата и висок таван. Подходящо за съхранение на багаж, велосипеди, сезонни вещи и др.
Към имота има възможност да се закупи подземно паркомясто на цена 88 012 лв. (45 000 евро). Паркомястото е просторно, удобно както за паркиране напред, така и на заден ход. Осигурява лесен достъп и маневреност.
Локация
Местоположението в полите на Витоша е престижно и предпочитано за живеене както от млади хора, така и от семейства с деца. Локацията е в близост до бул. "България" и Околовръстен път, което осигурява бърз достъп до удобствата на центъра, а близостта до Природен парк "Витоша" гарантира здравословна жилищна среда с чист въздух и прекрасни природни гледки.
Очакваме Вашето запитване
Ако желаете да организирате оглед на имот, който Ви интересува, или да посетите някой от нашите офиси, моля свържете се с нас. За да уговорите ден и час за среща или оглед, можете да се обадите на посочения в обявата телефон или да изпратите запитване чрез електронната поща. Нашият консултант ще Ви съдейства с всички необходими подробности и ще уговори удобно за Вас време.
Търсите подходящия за Вас имот?
Не се колебайте да се свържете с нас и да ни разкажете за Вашите нужди и предпочитания. Нашият екип ще проведе задълбочено проучване на пазара, за да Ви предложи имоти, които точно отговарят на Вашите критерии. Разполагаме с изключително портфолио от висококачествени и ексклузивни жилища, които са достъпни само за нашите клиенти. За да сте първите, които ще получите информация за тях – свържете се с нас.
Допълнителни услуги
Като ценен клиент на нашата компания, Вие ще имате привилегията да ползвате напълно безплатно услугите на нашия опитен юридически екип. В допълнение, предлагаме комплексни решения, включващи имуществена застраховка, безплатна финансова консултация, както и изгодни условия за финансиране. Нашите услуги се разпростират и в сферата на препродажбата, отдаването под наем и управлението на имоти. Осигуряваме висококачествени ремонтни дейности и обзавеждане чрез специализирани фирми, които са част от нашата корпоративна група и са наши дългогодишни професионални партньори.
Местоположение на картата
ПРАВА
ПРОДАЖБА
ПРОЕКТ
Южен двустаен апартамент в сграда "Преспа" в кв. "Малинова долина"
Малинова долина / София / София / България карта
Площ: 75 м2
Цена: 198 000 € /// 2 640 €/м2
ПРОДАЖБА
ПРОЕКТ
Двустаен апартамент с паркомясто на 10-ти етаж в „Театрална Парк Резиденс“
Оборище / София / София / България карта
Площ: 62.41 м2
Цена: 323 536 € /// 5 184 €/м2
ПРАВА
ПРОДАЖБА
ПРОЕКТ
Дизайнерски апартамент с паркомясто в луксозна сграда OKINAWA
Малинова долина / София / София / България карта
Клас на сградата/комплекса: Висок стандарт
Площ: 76.54 м2
Цена: 229 900 € /// 3 004 €/м2
Изберете тази опция и ще Ви уведомяваме по имейла при настъпили промени по статуса на офертата, например:
• Промяна на цената;
• Имотът влезе в промоционално предложение;
• Имотът бъде резервран или продаден;
• Други новости, свързани с имота.
• Имотът бъде свален от продажба;
Може да се отпишете от нотификациите лесно, когато пожелаете.• Промени по условията на офертата;
• Промяна в сумата на инвестицията;
• Предметът на инвестицията е изцяло реализиран;
• Валидността на офертата е изтекла.
Може лесно да се отпишете, ако в бъдеще решите, че повече не желаете да следите тази оферта.
За да получите абсолютно коректна информация относно свободните имоти, налични за продажба в проекта и техните актуални цени, моля свържете се с нашия офис на посочената информация за контакт.
Ние полагаме усилия, за да поддържаме нашите ценови листи абсолютно актуални и коректни, но често това е невъзможно, предвид големия брой нови проекти в нашия каталог и силно динамичните продажби.
Благодарим Ви за проявеното разбиране!



...В качеството си на доказан спецалист Stonehard PREMIER работи по пазарното позициониране и продажбите на множество проекти ново строителство, чиято реализация ни е поверена от водещи предприемачески компании в България и чужбина...