Тристаен апартамент в нова сграда до Mall of Sofia с акт 16
на картатаЦена:
480 000 € (3 840 €/м2)
*Указаните цени и наличности от свободни имоти в проекта са индикативни. За актуална ценова информация, моля свържете се с нас!
Реф. Номер: SOF-121506 / 3638
Местоположение: Център / София карта
Тип на сграда/комплекс: Жилищен
Площи на жилищата: 125 м2
Типове имоти в сградата/комплекса: Тристайни апартаменти
Реф. Номер: SOF-121506 / 3638
Местоположение: Център / София
Тип на сграда/комплекс: Жилищен
Клас на сградата/комплекса:
Площи на жилищата: 125 м2
Типове имоти в сградата/комплекса: Тристайни апартаменти
Сградата е с Разрешение за ползване от 2024 г.
Сутеренното ниво е предвидено за паркирането, за да се постигне максимално озеленяване на външните площи.
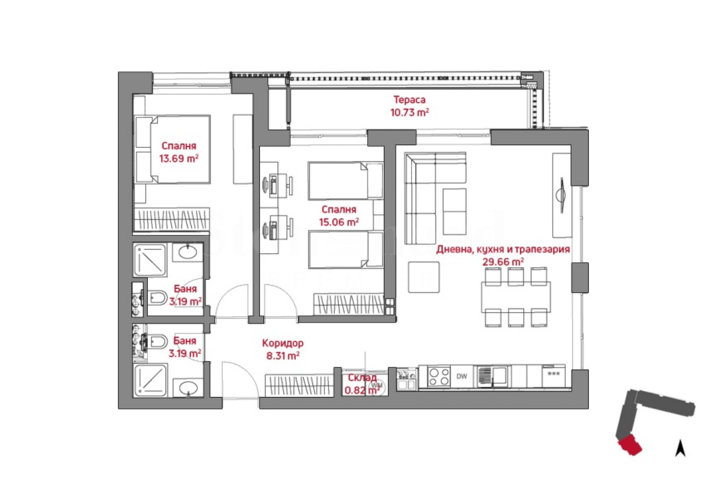
Апартаментът е разположен на 6-и етаж от общо 10 и предлага 125 кв.м обща площ. Имотът се намира на висок етаж и се характеризира с просторни и светли помещения, с изложение - югоизток.
Отоплението е на ТЕЦ и с предвидени изводи за климатици във всяко помещение.
Апартаментът е с удобно разпределение на вътрешното пространство и се състои от:
• входно антре с площ 12 кв.м;
• дневна с трапезария и кухня с площ 30 кв.м;
• родителска спалня с площ 15 кв.м;
• втора спалня с площ 13 кв.м;
• две баня с тоалетна;
• тераса с площ 10 кв.м.
Имотът се предлага качествено завършен по БДС.
• Отоплителна и климатична инсталации – газ с монтирани радиатори, ток.
• Такса поддръжка на сградата за първата година от получаване на разрешение за ползване на сградата /Акт 16/ не се дължи от бъдещите собственици.
Паркиране
Има възможност за закупуване на подземно паркомясто и гараж. Гаражните и пожароустойчиви врати ще са на Новоферм.
Местоположение на картата
ПРАВА
Високотехнологична жилищна сграда с панорамни резиденции, фитнес, СПА, ресторант и консиерж на бул. „Цариградско шосе“
7-ми 11-ти километър / София / София / България карта
Клас на сградата: Премиум
Очаквано завършване: Декември, 2029 г.
Цени на имотите: 412 965 - 1 763 726 € (без ДДС)
Цени на м²: 2 100 - 4 125 €/м2 (без ДДС)
ПРОДАЖБА
ПРОЕКТ
Дизайнерски тристаен апартамент в престижна сграда А3
Манастирски ливади - Изток / София / София / България карта
Площ: 165 м2
Цена: 630 000 € /// 3 818 €/м2
Нов жилищен проект от осем сгради с различни типове апартаменти в кв."Малинова долина"
Малинова долина / София / София / България карта
Завършване: Декември, 2028 г.
Цени на имотите: 73 000 - 212 000 €
Цени на м²: 1 738 - 1 933 €/м2
Изберете тази опция и ще Ви уведомяваме по имейла при настъпили промени по статуса на офертата, например:
• Промяна на цената;
• Имотът влезе в промоционално предложение;
• Имотът бъде резервран или продаден;
• Други новости, свързани с имота.
• Имотът бъде свален от продажба;
Може да се отпишете от нотификациите лесно, когато пожелаете.• Промени по условията на офертата;
• Промяна в сумата на инвестицията;
• Предметът на инвестицията е изцяло реализиран;
• Валидността на офертата е изтекла.
Може лесно да се отпишете, ако в бъдеще решите, че повече не желаете да следите тази оферта.
За да получите абсолютно коректна информация относно свободните имоти, налични за продажба в проекта и техните актуални цени, моля свържете се с нашия офис на посочената информация за контакт.
Ние полагаме усилия, за да поддържаме нашите ценови листи абсолютно актуални и коректни, но често това е невъзможно, предвид големия брой нови проекти в нашия каталог и силно динамичните продажби.
Благодарим Ви за проявеното разбиране!



...В качеството си на доказан спецалист Stonehard PREMIER работи по пазарното позициониране и продажбите на множество проекти ново строителство, чиято реализация ни е поверена от водещи предприемачески компании в България и чужбина...