3-bedroom apartment with a double garage and a yard at the foot of Vitosha Mountain
Price:
575 000 € (2 245 €/m 2)
*The prices and availability of vacant properties in the project are indicative. For up-to-date pricing information, please contact us!
Ref. Number: SOF-135630 / 3591
Location: m-t Kambanite / Sofia map
Building/complex type: Residential
Building/complex class: Luxurious
Housing areas: 256.11 m 2
Types of properties in the building/complex: Large apartments
Ref. Number: SOF-135630 / 3591
Location: m-t Kambanite / Sofia
Building/complex type: Residential
Building/complex class: Luxurious
Housing areas: 256.11 m 2
Types of properties in the building/complex: Large apartments
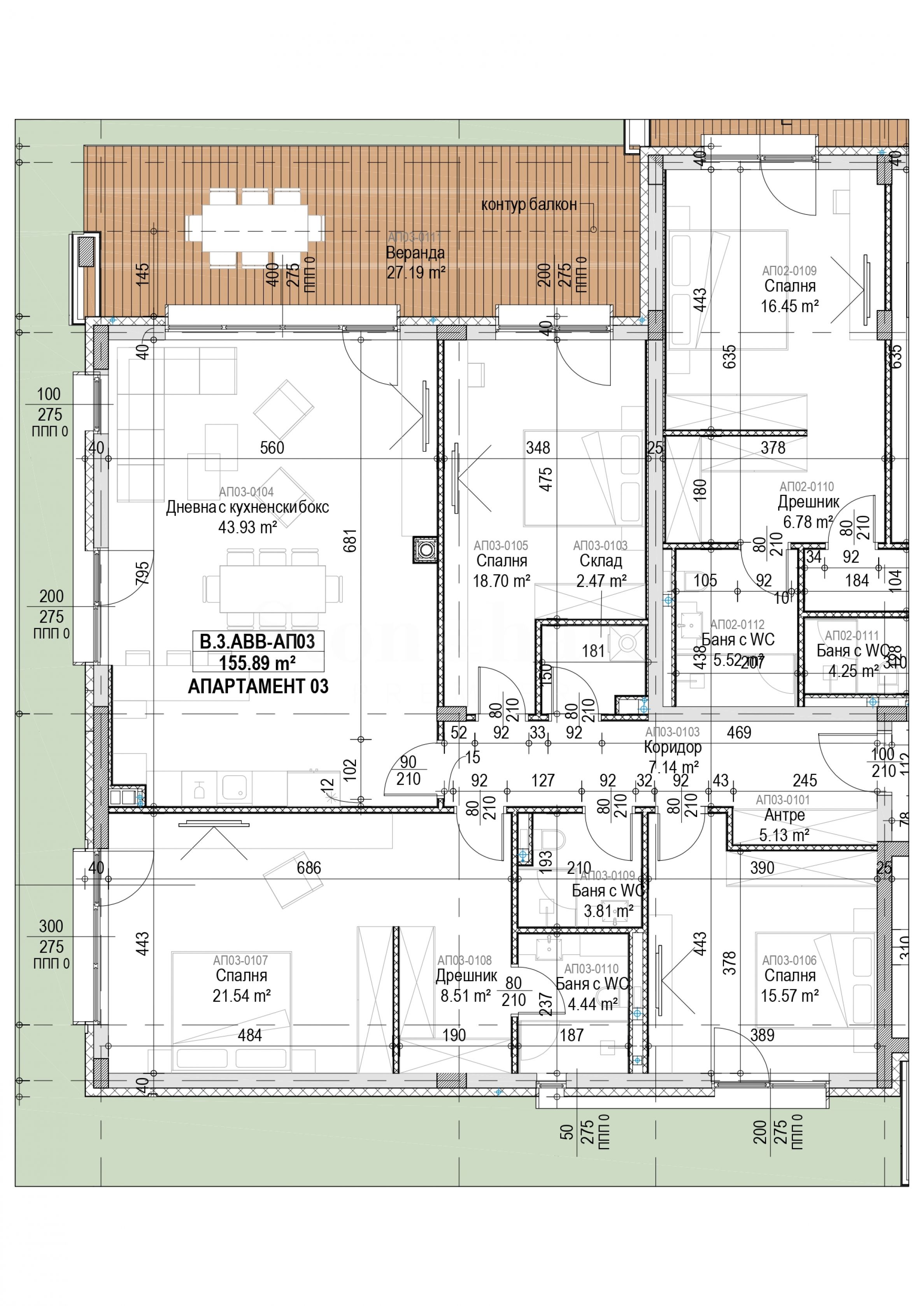
The apartment is located on the ground floor and has a net area of 155.89 m2.
Distribution:
• entrance hall/corridor;
• storage room, bathroom/toilet;
• two bedrooms;
• third bedroom with private bathroom and walk-in closet;
• spacious living room with kitchen and dining room;
• veranda of 27.19 m2.;
• exit to a yard with a total area of 100.22 m2.
The apartments in the complex are rented out under the Bulgarian Construction Code, with an option for as many as 4 variants of the completion of the properties, by the international architectural and design company SGI .
All apartments are characterized by spacious and bright rooms, favorable exposures and functional layouts.
A double garage is offered with the property at a price of 50,000 euros (97,792 BGN).
Location
Situated in a convenient location in the increasingly preferred and prestigious "Kambanite" area, next to some of the most sought-after gated communities in the capital, this complex is the last opportunity to build a project of this scale in this area. The complex embodies a peaceful life in a picturesque environment with fresh air, on a total area of 110,000 sq m, of which 92,000 sq m - green area, as well as a whole 10 decares of its own park.
A 20-minute drive from the center of the capital, close to two of the largest business centers - Business Park Sofia and Garitage Office Park, this is an exclusive place to live for adults and children:
• to Kambanite Park;
• 3 minutes by car from the "Ring Road";
• 6 min drive from Ring Mall;
• 15 min drive from the Airport.
Stage 1 is with ACT 14, including the entire planned park environment.
Completion period - 2.5 years, GFA of Stage 1 - 21,000 sq m:
• three three-story apartment buildings - three-room properties on the top floors and four-room apartments, with a yard or terraces;
• row houses and semi-detached houses, with an area of 285 m2. to 454 m2.
• Recreational Building - public building with 40 parking spaces for guests – 2,400 m2.
New generation residential complex:
• ready-made homes for a smart home - Smart Home System;
• French windows and high ceilings 3+ m of light;
• innovative thermal insulation system;
• heat pump heating system;
• option for individual elevators and a swimming pool for the houses;
• photovoltaics with inverter plants;
• large-format aluminum windows with triple glazing and low board;
• water treatment plant;
• integrated electric vehicle charging stations;
• modern smart security technologies from VIP Security;
• facility management services for the complex.
A variety of amenities for the whole family, recreation and sports, as well as your successful business:
• 24-hour reception;
• fitness and SPA center, yoga studio, boxing hall;
• barbecue and picnic areas, pet park, outdoor gym, jogging, cycling and sports trails;
• open-air cinema;
• sports fields, playgrounds and a children's center;
• 5* Hotel type Lounge area with reception and restaurants;
• cinema and games room;
• conference rooms and an open area for work and meetings (co-working space), etc.
For additional information and to arrange a viewing, please contact the broker responsible for the offer.
Viewings
We are ready to organize a viewing of this property at a time convenient for you. Please contact the responsible estate agent and inform them when you would like to have viewings arranged. We can also help you with flight tickets and hotel booking, as well as with travel insurance.
Property reservation
You can reserve this property with a non-refundable deposit of 2,000 Euro, payable by credit card or by bank transfer to our company bank account. After receiving the deposit the property will be marked as reserved, no further viewings will be carried out with other potential buyers, and we will start the preparation of the necessary documents for completion of the deal. Please contact the responsible estate agent for more information about the purchase procedure and the payment methods.
After sale services
We are a reputable company with many years of experience in the real estate business. Thus, we will be with you not only during the purchase process, but also after the deal is completed, providing you with a wide range of additional services tailored to your requirements and needs, so that you can fully enjoy your property in Bulgaria. The after sale services we offer include property insurance, construction and repair works, furniture, accounting and legal assistance, renewal of contracts for electricity, water, telephone and many more.
Location on the map
SALE
PROJECT
Impressive penthouse with panoramic terraces in an emblematic building in "Manastirski Livadi"
Manastirski Livadi - West / Sofia / Sofia / Bulgaria map
Area: 427 m 2
Price: 1 035 000 € /// 2 424 €/m 2
SALE
PROJECT
Modern four-bedroom apartment with excellent location and functional layout
Lozenets / Sofia / Sofia / Bulgaria map
Area: 162.89 m 2
Price: 780 000 € /// 4 789 €/m 2
New complex with different types of apartments in the "Manastirski Livadi - Iztok" district
Manastirski Livadi - East / Sofia / Sofia / Bulgaria map
Property prices: 183 906 - 449 314 € (excluding VAT)
Prices per m²: 2 600 - 2 600 €/m 2 (excluding VAT)
Select this option and we will notify you by email if there are any changes to the offer status, for example:
• Price change;
• The property entered into a promotional offer;
• The property is reserved or sold;
• Other news related to the property.
• The property is removed from sale;
You can easily unsubscribe from notifications whenever you want.• Changes to the terms of the offer;
• Change in the amount of the investment;
• The subject of the investment has been fully realized;
• The offer has expired.
You can easily unsubscribe if you decide in the future that you no longer want to follow this offer.
To receive absolutely correct information about the vacant properties available for sale in the project and their current prices, please contact our office at the contact information provided.
We make every effort to keep our price lists absolutely up-to-date and correct, but this is often impossible, given the large number of new projects in our catalog and the highly dynamic sales.
Thank you for your understanding!



...As a proven specialist, Stonehard PREMIER works on the market positioning and sales of numerous new construction projects, the implementation of which has been entrusted to us by leading entrepreneurial companies in Bulgaria and abroad...