Detached house with a yard in a complex of houses in Seslavtsi district, Sofia
on the map
Price:
345 000 €
*The prices and availability of vacant properties in the project are indicative. For up-to-date pricing information, please contact us!
Ref. Number: SOF-135289 / 4803
Location: Seslavtsi / Sofia map
Building/complex type: Residential
Housing areas: 180 m 2
Types of properties in the building/complex: Houses
Ref. Number: SOF-135289 / 4803
Location: Seslavtsi / Sofia
Building/complex type: Residential
Building/complex class:
Housing areas: 180 m 2
Types of properties in the building/complex: Houses
The project involves the construction of modern, cozy and energy-efficient detached houses in the Seslavtsi district, located in the northeastern part of Sofia. This area is known for its beautiful nature, clean air and peaceful atmosphere, making it the perfect place to escape from the urban environment.
Main facilities:
• Property type: detached houses with three bedrooms;
• Number of houses: 8;
• Plot area: from 340 to 570 m2.;
• Built-up area of the houses: from 180 to 258 m2.
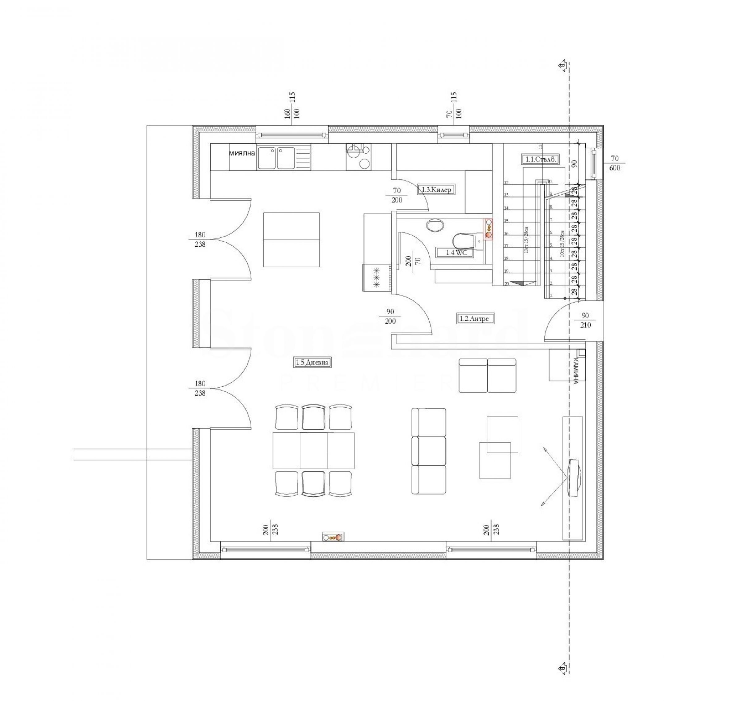
Distribution of houses from No. 3 to No. 8 inclusive:
• Level 1 (elevation 0) – 87 sq. m:
- Living room with kitchenette – 52.73 sq. m;
- Pantry – 3.25 sq. m;
- Toilet – 2.11 sq. m;
- Entrance hall – 5.84 sq. m;
- Staircase – 5.89 sq. m.
• Level floor 2 (elevation 3.00):
- Bedroom 1 – 13.55 sq m;
- Bedroom 2 – 16.32 sq m;
- Master bedroom (14.38 sq m) with a closet (4.96 sq m) and a bathroom with toilet (4.34 sq m);
- Bathroom with toilet – 3.57 sq. m;
- Wet room - 3.57 sq. m;
- Corridor – 8.11 square meters;
- Staircase – 5.89 sq. m.
Technical characteristics:
• Wienerberger Porotherm bricks 25 cm;
• brick internal partition walls Wienerberger Porotherm 12 cm;
• 15 cm facade insulation;
• Baumit facade plaster;
• two H?rmann automatic garage doors;
• high-end entrance door;
• windows: 5-chamber PVC, triple glazing, 4K season exterior – high class;
• lightning protection;
• Electrical and plumbing installations constructed;
• electric heating with preparation for installing a heat pump;
• individual treatment plant and preparation for connection to the central sewage system;
• tiles and roofing materials – Bramak;
• landscaping and grassing the yard.
Construction stages:
The project will be implemented in three phases, with phase I, consisting of houses No. 1 and No. 2, already having act 14 and completion in September 2025.
The next phases will be launched according to the wishes of the future owners.
Standard payment scheme:
• 20% - preliminary contract;
• 80% - permission to use.
Project advantages:
• Nature and fresh air: Seslavtsi neighborhood is surrounded by greenery and offers wonderful mountain views. The clean air and tranquility of the area create ideal conditions for a healthy and relaxing lifestyle.
• Escape from the urban environment: The houses provide an opportunity for privacy and tranquility, away from the noise and stress of the big city, while at the same time being a short distance from the center of Sofia (19 km).
• Modern Amenities: Each house is designed with attention to detail and includes modern amenities such as spacious living rooms, contemporary layouts, energy-efficient systems, and beautiful gardens.
• Security and comfort: The project includes a complex with controlled access, which guarantees the safety and peace of mind of the residents.
About the area
The project for detached houses in the Seslavtsi district offers a unique opportunity for a comfortable and peaceful life in nature, without depriving yourself of the amenities of the urban environment. This is the ideal place for families seeking a balance between work and personal life, as well as for all those who value quality of life and natural beauty.
The Seslavtsi neighborhood is located in the northeastern part of Sofia and is part of the Kremikovtsi district. Until 1978, Seslavtsi was an independent village, but then it was annexed to the capital. It is known for its rich history and cultural heritage, including several monasteries. One of the most significant is the Seslav Monastery "St. Nicholas of Myra". Other notable monasteries in the area are the Kremikovtsi Monastery "St. George the Victorious" and the Bukhov Monastery "St. Archangel Michael".
• Infrastructure
Seslavtsi has basic infrastructure, including a regular bus line number 117, which connects the neighborhood with the rest of the city. The neighborhood also has newly built playgrounds and sports facilities.
• School
There is a primary school in Seslavtsi that serves local children and offers quality education.
• Kindergarten
In 2022, a new kindergarten building, a branch of DG No. 146 "Zvezditsa", was opened in Seslavtsi. It has spacious classrooms and bedrooms, a gym and music hall, as well as a kitchen block with completely new equipment. The kindergarten also has outdoor playgrounds and a football field.
• Shops
There are several small stores in the neighborhood for groceries and other basic needs that serve local residents.
Viewings
We are ready to organize a viewing of this property at a time convenient for you. Please contact the responsible estate agent and inform them when you would like to have viewings arranged. We can also help you with flight tickets and hotel booking, as well as with travel insurance.
Property reservation
You can reserve this property with a non-refundable deposit of 2,000 Euro, payable by credit card or by bank transfer to our company bank account. After receiving the deposit the property will be marked as reserved, no further viewings will be carried out with other potential buyers, and we will start the preparation of the necessary documents for completion of the deal. Please contact the responsible estate agent for more information about the purchase procedure and the payment methods.
After sale services
We are a reputable company with many years of experience in the real estate business. Thus, we will be with you not only during the purchase process, but also after the deal is completed, providing you with a wide range of additional services tailored to your requirements and needs, so that you can fully enjoy your property in Bulgaria. The after sale services we offer include property insurance, construction and repair works, furniture, accounting and legal assistance, renewal of contracts for electricity, water, telephone and many more.
Location on the map
SALE
PROJECT
Modern house with four bedrooms, double garage and courtyard in a new complex
v.z.Malinova dolina / Sofia / Sofia / Bulgaria map
Area: 460.76 m 2
Price: PRICE UPON REQUEST ///
SALE
PROJECT
Eco house type B for sale in a gated complex in Boyana district
Boyana / Sofia / Sofia / Bulgaria map
Area: 451 m 2
Price: 950 000 € ///
SALE
PROJECT
Eco house in a gated complex in Boyana district
Boyana / Sofia / Sofia / Bulgaria map
Area: 360.55 m 2
Price: 903 000 € ///
Select this option and we will notify you by email if there are any changes to the offer status, for example:
• Price change;
• The property entered into a promotional offer;
• The property is reserved or sold;
• Other news related to the property.
• The property is removed from sale;
You can easily unsubscribe from notifications whenever you want.• Changes to the terms of the offer;
• Change in the amount of the investment;
• The subject of the investment has been fully realized;
• The offer has expired.
You can easily unsubscribe if you decide in the future that you no longer want to follow this offer.
To receive absolutely correct information about the vacant properties available for sale in the project and their current prices, please contact our office at the contact information provided.
We make every effort to keep our price lists absolutely up-to-date and correct, but this is often impossible, given the large number of new projects in our catalog and the highly dynamic sales.
Thank you for your understanding!



...As a proven specialist, Stonehard PREMIER works on the market positioning and sales of numerous new construction projects, the implementation of which has been entrusted to us by leading entrepreneurial companies in Bulgaria and abroad...