Ref. Number: AP 133690 / 4647
Location: Krustova Vada / Sofia map
Building/complex type: Residential
Housing areas: 73.23 m 2
Types of properties in the building/complex: 1-bedroom apartments
Ref. Number: AP 133690
Location: Krustova Vada / Sofia
Building/complex type: Жилищен
Building/complex class:
Housing areas: 73.23 m 2
Types of properties in the building/complex: 1-bedroom apartments
The building is located in the prestigious southern part of the capital - in close proximity to the Zoo, just 950 m from Paradise Center and Vitosha metro station. Located on a quiet inner street, the building provides privacy and security, combined with a quick connection through the new Philip Kutev Boulevard to Cherni Vrah Blvd. and Simeonovsko Shosse. The area combines silence, excellent infrastructure and quick access to key points of the city.
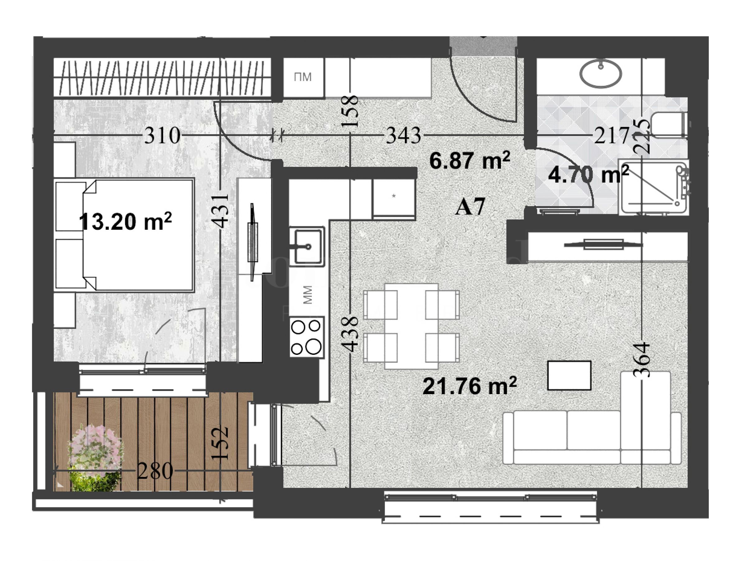
The apartment is located on the second floor and has a total area of 73.23 m2. and has the following distribution:
• corridor;
• living room with kitchen and dining area,
• bedroom;
• bathroom with toilet;
• loggia.
The building has five above-ground floors and one underground floor. The underground floor contains garages, parking spaces and basements. The remaining five residential floors contain 14 two-, three- and four-bedroom apartments.
The properties combine bright spaces, clean lines and a sense of tranquility – everything is designed with attention to detail and with those who value quality and a modern lifestyle in mind. An innovative concept combining modern architecture, a connection with nature and new technologies.
Modern and high-quality construction, very high standard of quality of the materials used.
Technical characteristics:
• Energy class A - The building is designed with high energy efficiency, ensuring low energy consumption and optimal heating and cooling costs - for a more sustainable and comfortable lifestyle.
• Photovoltaic system - A built-in system for powering the common areas, which contributes to lower energy costs and more sustainable operation of the building.
• Premium facade - Ceramic facade with modern design and excellent durability over time.
• French windows - Maximum glazing for more light, space and a natural connection with the surrounding space.
• Top-class aluminum joinery - With excellent heat and noise insulation, modern look and long service life.
• Discreet facade and garden lighting, emphasizing the architecture and creating comfort and security at night.
• Highly effective sound insulation - Guarantees silence, privacy and acoustic comfort in every home.
• Pre-built installation for heat pump systems – an energy-efficient solution for heating, cooling and hot water.
• Luxurious common areas - Designed according to an individual interior design with premium materials and attention to every detail.
• Underfloor heating system built into all apartments, ensuring year-round comfort.
• Richly landscaped enclosed yard - a quiet, green and aesthetic environment for recreation and relaxation.
• Underground parking - Spacious and well-organized with direct access to the building, designed for convenient parking even for larger cars.
• Limited access - Automated video control system for access to the building and the inner courtyard - for increased security and peace of mind.
Three payment schemes:
Scheme 1:
•30% upon preliminary agreement
•30% for Act 14
•30% for Act 15
•10% for Act 16
Scheme 2:
•60% upon preliminary contract
•30% for Act 15
•10% for Act 16
Scheme 3:
•90% with a preliminary contract
•10% for Act 16
Reservation possible with a deposit.
We look forward to your inquiry.
If you would like to arrange a viewing of a property that interests you, or to visit one of our offices, please contact us. To arrange a day and time for a meeting or viewing, you can call the phone number listed in the ad or send an inquiry via e-mail. Our consultant will assist you with all the necessary details and will arrange a time convenient for you.
Are you looking for the right property for you?
Do not hesitate to contact us and tell us about your needs and preferences. Our team will conduct a thorough market research to offer you properties that exactly meet your criteria. We have an exceptional portfolio of high-quality and exclusive homes that are available only to our clients. To be the first to receive information about them – contact us.
Additional services
As a valued client of our company, you will have the privilege of using the services of our experienced legal team completely free of charge. In addition, we offer comprehensive solutions, including property insurance, free financial advice, as well as favorable financing conditions. Our services also extend to the field of resale, rental and property management. We provide high-quality renovation and furniture through specialized companies that are part of our corporate group and are our long-standing professional partners.
Viewings
We are ready to organize a viewing of this property at a time convenient for you. Please contact the responsible estate agent and inform them when you would like to have viewings arranged. We can also help you with flight tickets and hotel booking, as well as with travel insurance.
Property reservation
You can reserve this property with a non-refundable deposit of 2,000 Euro, payable by credit card or by bank transfer to our company bank account. After receiving the deposit the property will be marked as reserved, no further viewings will be carried out with other potential buyers, and we will start the preparation of the necessary documents for completion of the deal. Please contact the responsible estate agent for more information about the purchase procedure and the payment methods.
After sale services
We are a reputable company with many years of experience in the real estate business. Thus, we will be with you not only during the purchase process, but also after the deal is completed, providing you with a wide range of additional services tailored to your requirements and needs, so that you can fully enjoy your property in Bulgaria. The after sale services we offer include property insurance, construction and repair works, furniture, accounting and legal assistance, renewal of contracts for electricity, water, telephone and many more.
Location on the map
The building is located in the prestigious southern part of the capital - in close proximity to the Zoo, just 950 m from Paradise Center and Vitosha metro station. Located on a quiet inner street, the building provides privacy and security, combined with a quick connection through the new Philip Kutev Boulevard to Cherni Vrah Blvd. and Simeonovsko Shosse. The area combines silence, excellent infrastructure and quick access to key points of the city.
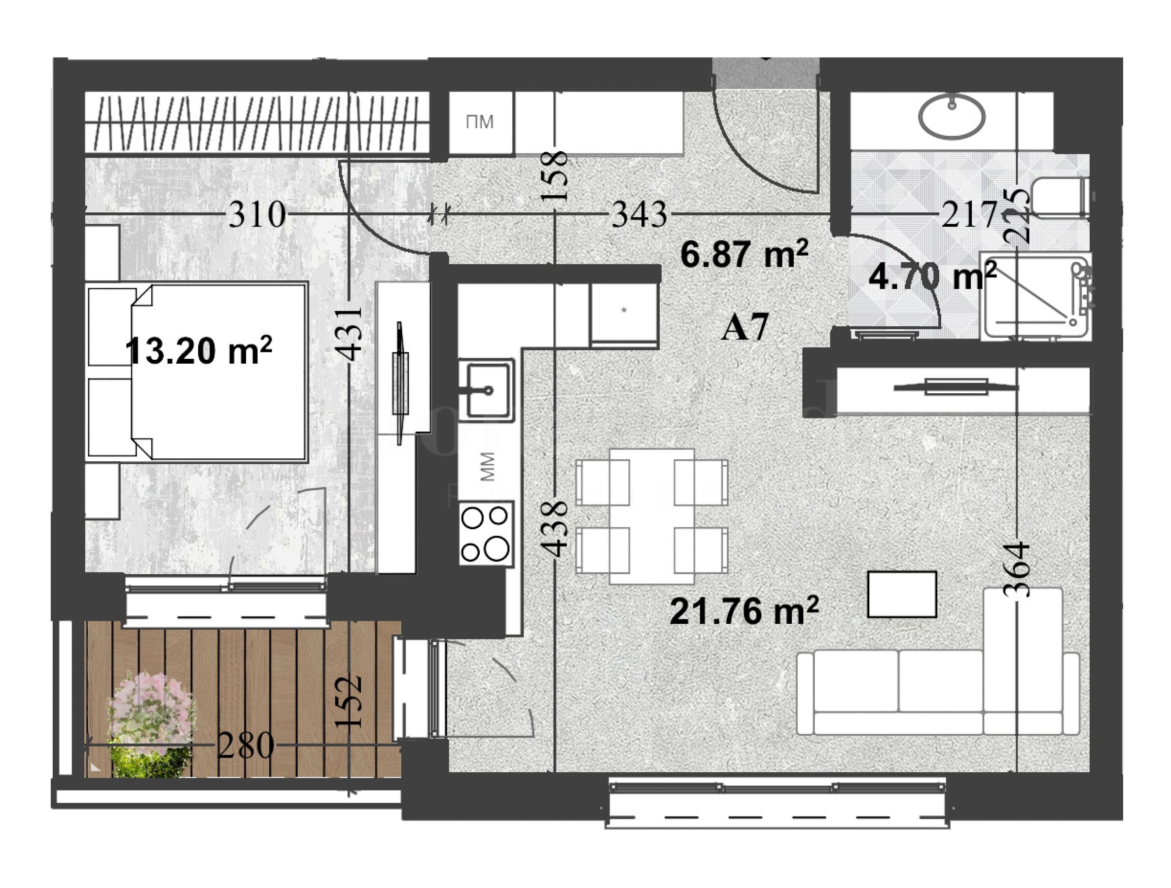
The apartment is located on the second floor and has a total area of 73.23 m2. and has the following distribution:
• corridor;
• living room with kitchen and dining area,
• bedroom;
• bathroom with toilet;
• loggia.
The building has five above-ground floors and one underground floor. The underground floor contains garages, parking spaces and basements. The remaining five residential floors contain 14 two-, three- and four-bedroom apartments.
The properties combine bright spaces, clean lines and a sense of tranquility – everything is designed with attention to detail and with those who value quality and a modern lifestyle in mind. An innovative concept combining modern architecture, a connection with nature and new technologies.
Modern and high-quality construction, very high standard of quality of the materials used.
Technical characteristics:
• Energy class A - The building is designed with high energy efficiency, ensuring low energy consumption and optimal heating and cooling costs - for a more sustainable and comfortable lifestyle.
• Photovoltaic system - A built-in system for powering the common areas, which contributes to lower energy costs and more sustainable operation of the building.
• Premium facade - Ceramic facade with modern design and excellent durability over time.
• French windows - Maximum glazing for more light, space and a natural connection with the surrounding space.
• Top-class aluminum joinery - With excellent heat and noise insulation, modern look and long service life.
• Discreet facade and garden lighting, emphasizing the architecture and creating comfort and security at night.
• Highly effective sound insulation - Guarantees silence, privacy and acoustic comfort in every home.
• Pre-built installation for heat pump systems – an energy-efficient solution for heating, cooling and hot water.
• Luxurious common areas - Designed according to an individual interior design with premium materials and attention to every detail.
• Underfloor heating system built into all apartments, ensuring year-round comfort.
• Richly landscaped enclosed yard - a quiet, green and aesthetic environment for recreation and relaxation.
• Underground parking - Spacious and well-organized with direct access to the building, designed for convenient parking even for larger cars.
• Limited access - Automated video control system for access to the building and the inner courtyard - for increased security and peace of mind.
Three payment schemes:
Scheme 1:
•30% upon preliminary agreement
•30% for Act 14
•30% for Act 15
•10% for Act 16
Scheme 2:
•60% upon preliminary contract
•30% for Act 15
•10% for Act 16
Scheme 3:
•90% with a preliminary contract
•10% for Act 16
Reservation possible with a deposit.
We look forward to your inquiry.
If you would like to arrange a viewing of a property that interests you, or to visit one of our offices, please contact us. To arrange a day and time for a meeting or viewing, you can call the phone number listed in the ad or send an inquiry via e-mail. Our consultant will assist you with all the necessary details and will arrange a time convenient for you.
Are you looking for the right property for you?
Do not hesitate to contact us and tell us about your needs and preferences. Our team will conduct a thorough market research to offer you properties that exactly meet your criteria. We have an exceptional portfolio of high-quality and exclusive homes that are available only to our clients. To be the first to receive information about them – contact us.
Additional services
As a valued client of our company, you will have the privilege of using the services of our experienced legal team completely free of charge. In addition, we offer comprehensive solutions, including property insurance, free financial advice, as well as favorable financing conditions. Our services also extend to the field of resale, rental and property management. We provide high-quality renovation and furniture through specialized companies that are part of our corporate group and are our long-standing professional partners.
Viewings
We are ready to organize a viewing of this property at a time convenient for you. Please contact the responsible estate agent and inform them when you would like to have viewings arranged. We can also help you with flight tickets and hotel booking, as well as with travel insurance.
Property reservation
You can reserve this property with a non-refundable deposit of 2,000 Euro, payable by credit card or by bank transfer to our company bank account. After receiving the deposit the property will be marked as reserved, no further viewings will be carried out with other potential buyers, and we will start the preparation of the necessary documents for completion of the deal. Please contact the responsible estate agent for more information about the purchase procedure and the payment methods.
After sale services
We are a reputable company with many years of experience in the real estate business. Thus, we will be with you not only during the purchase process, but also after the deal is completed, providing you with a wide range of additional services tailored to your requirements and needs, so that you can fully enjoy your property in Bulgaria. The after sale services we offer include property insurance, construction and repair works, furniture, accounting and legal assistance, renewal of contracts for electricity, water, telephone and many more.
The building is located in the prestigious southern part of the capital - in close proximity to the Zoo, just 950 m from Paradise Center and Vitosha metro station. Located on a quiet inner street, the building provides privacy and security, combined with a quick connection through the new Philip Kutev Boulevard to Cherni Vrah Blvd. and Simeonovsko Shosse. The area combines silence, excellent infrastructure and quick access to key points of the city.
The apartment is located on the second floor and has a total area of 73.23 m2. and has the following distribution:
• corridor;
• living room with kitchen and dining area,
• bedroom;
• bathroom with toilet;
• loggia.
The building has five above-ground floors and one underground floor. The underground floor contains garages, parking spaces and basements. The remaining five residential floors contain 14 two-, three- and four-bedroom apartments.
The properties combine bright spaces, clean lines and a sense of tranquility – everything is designed with attention to detail and with those who value quality and a modern lifestyle in mind. An innovative concept combining modern architecture, a connection with nature and new technologies.
Modern and high-quality construction, very high standard of quality of the materials used.
Technical characteristics:
• Energy class A - The building is designed with high energy efficiency, ensuring low energy consumption and optimal heating and cooling costs - for a more sustainable and comfortable lifestyle.
• Photovoltaic system - A built-in system for powering the common areas, which contributes to lower energy costs and more sustainable operation of the building.
• Premium facade - Ceramic facade with modern design and excellent durability over time.
• French windows - Maximum glazing for more light, space and a natural connection with the surrounding space.
• Top-class aluminum joinery - With excellent heat and noise insulation, modern look and long service life.
• Discreet facade and garden lighting, emphasizing the architecture and creating comfort and security at night.
• Highly effective sound insulation - Guarantees silence, privacy and acoustic comfort in every home.
• Pre-built installation for heat pump systems – an energy-efficient solution for heating, cooling and hot water.
• Luxurious common areas - Designed according to an individual interior design with premium materials and attention to every detail.
• Underfloor heating system built into all apartments, ensuring year-round comfort.
• Richly landscaped enclosed yard - a quiet, green and aesthetic environment for recreation and relaxation.
• Underground parking - Spacious and well-organized with direct access to the building, designed for convenient parking even for larger cars.
• Limited access - Automated video control system for access to the building and the inner courtyard - for increased security and peace of mind.
Three payment schemes:
Scheme 1:
•30% upon preliminary agreement
•30% for Act 14
•30% for Act 15
•10% for Act 16
Scheme 2:
•60% upon preliminary contract
•30% for Act 15
•10% for Act 16
Scheme 3:
•90% with a preliminary contract
•10% for Act 16
Reservation possible with a deposit.
We look forward to your inquiry.
If you would like to arrange a viewing of a property that interests you, or to visit one of our offices, please contact us. To arrange a day and time for a meeting or viewing, you can call the phone number listed in the ad or send an inquiry via e-mail. Our consultant will assist you with all the necessary details and will arrange a time convenient for you.
Are you looking for the right property for you?
Do not hesitate to contact us and tell us about your needs and preferences. Our team will conduct a thorough market research to offer you properties that exactly meet your criteria. We have an exceptional portfolio of high-quality and exclusive homes that are available only to our clients. To be the first to receive information about them – contact us.
Additional services
As a valued client of our company, you will have the privilege of using the services of our experienced legal team completely free of charge. In addition, we offer comprehensive solutions, including property insurance, free financial advice, as well as favorable financing conditions. Our services also extend to the field of resale, rental and property management. We provide high-quality renovation and furniture through specialized companies that are part of our corporate group and are our long-standing professional partners.
Viewings
We are ready to organize a viewing of this property at a time convenient for you. Please contact the responsible estate agent and inform them when you would like to have viewings arranged. We can also help you with flight tickets and hotel booking, as well as with travel insurance.
Property reservation
You can reserve this property with a non-refundable deposit of 2,000 Euro, payable by credit card or by bank transfer to our company bank account. After receiving the deposit the property will be marked as reserved, no further viewings will be carried out with other potential buyers, and we will start the preparation of the necessary documents for completion of the deal. Please contact the responsible estate agent for more information about the purchase procedure and the payment methods.
After sale services
We are a reputable company with many years of experience in the real estate business. Thus, we will be with you not only during the purchase process, but also after the deal is completed, providing you with a wide range of additional services tailored to your requirements and needs, so that you can fully enjoy your property in Bulgaria. The after sale services we offer include property insurance, construction and repair works, furniture, accounting and legal assistance, renewal of contracts for electricity, water, telephone and many more.
SALE
PROJECT
One-bedroom apartment in the prestigious Boyana district
Boyana / Sofia / Sofia / Bulgaria map
Building/complex class: High standard
Area: 98.27 m 2
Price: 186 713 € /// 1 900 €/m 2
MANDATE
SALE
PROJECT
Designer apartment with parking space in a luxury building OKINAWA
Malinova Dolina / Sofia / Sofia / Bulgaria map
Building/complex class: High standard
Area: 76.54 m 2
Price: 244 900 € /// 3 200 €/m 2
Apartments in Stage 2 of a modern complex near "Simeonovsko Shose"
Malinova Dolina / Sofia / Sofia / Bulgaria map
Property prices: 69 346 - 192 316 €
Prices per m²: 1 575 - 1 995 €/m 2
Select this option and we will notify you by email if there are any changes to the offer status, for example:
• Price change;
• The property entered into a promotional offer;
• The property is reserved or sold;
• Other news related to the property.
• The property is removed from sale;
You can easily unsubscribe from notifications whenever you want.• Changes to the terms of the offer;
• Change in the amount of the investment;
• The subject of the investment has been fully realized;
• The offer has expired.
You can easily unsubscribe if you decide in the future that you no longer want to follow this offer.



...As a proven specialist, Stonehard PREMIER works on the market positioning and sales of numerous new construction projects, the implementation of which has been entrusted to us by leading entrepreneurial companies in Bulgaria and abroad...