Two-bedroom apartment in a luxury building next to a pine forest in Pancharevo
on the mapPrice:
206 223 € (excluding VAT) (2 167 €/m 2 (excluding VAT))
*The prices and availability of vacant properties in the project are indicative. For up-to-date pricing information, please contact us!
Ref. Number: STO-133172 / 4600
Location: Pancharevo map
Building/complex type: Residential
Building/complex class: High standard
Housing areas: 95.18 m 2
Types of properties in the building/complex: 2-bedroom apartments
Ref. Number: STO-133172 / 4600
Location: Pancharevo
Building/complex type: Residential
Building/complex class: High standard
Housing areas: 95.18 m 2
Types of properties in the building/complex: 2-bedroom apartments
Its location is picturesque and convenient, just minutes from Sofia and in close proximity to Pancharevo Lake, in the area of the Open Air Opera stage and the kayaking area. The area offers excellent infrastructure - within walking distance are a park with playgrounds, a kindergarten and a school. Access to "Samokovsko Shose" is quick and easy, and the public transport stop and Lidl store are just a few minutes away by car.
WITHOUT COMMISSION.
Construction started - August 2025
Implementation period - 2 years.
The indicated price is excluding VAT.
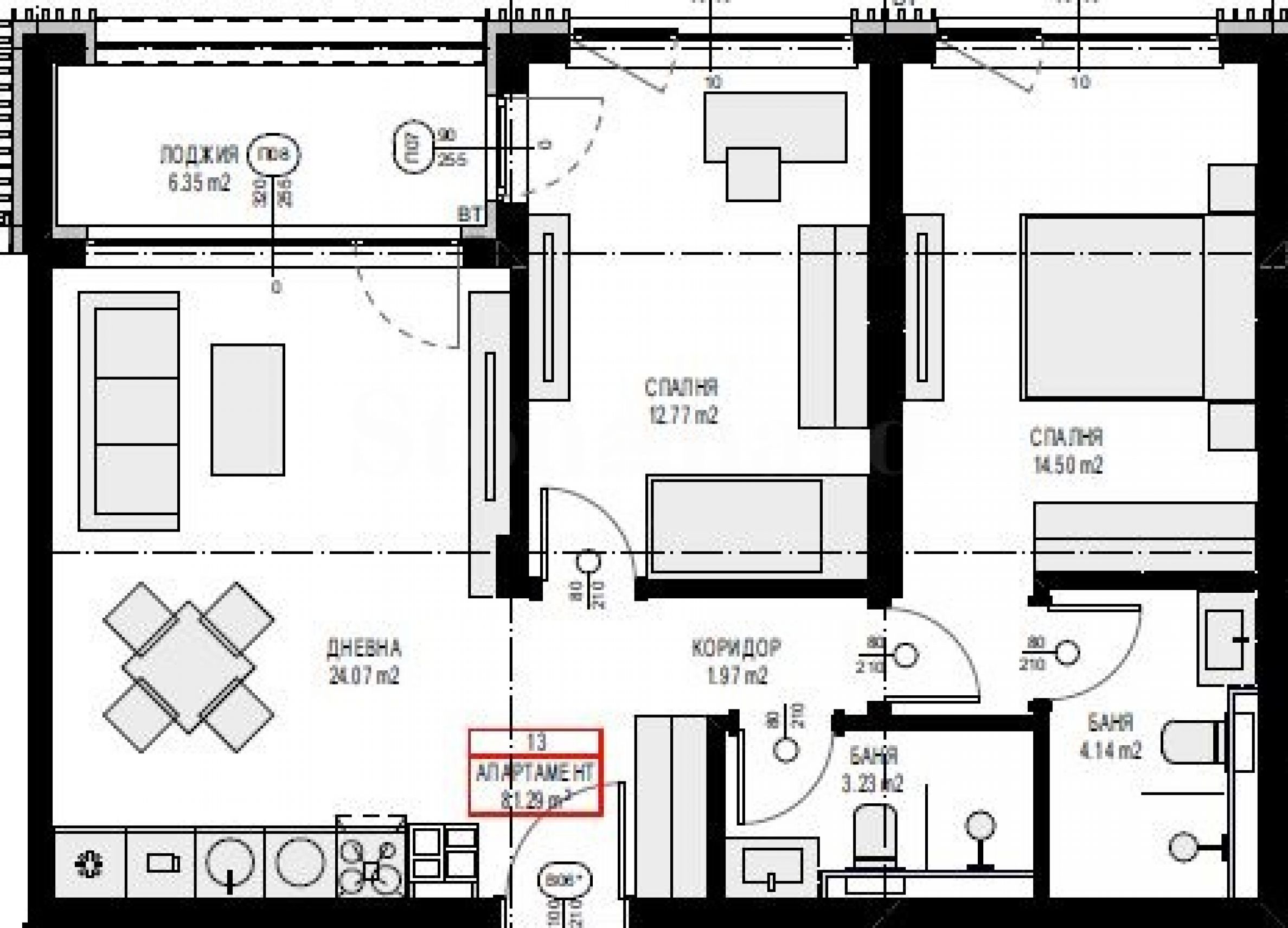
Apartment No. 13 is located on the 3rd floor, with a west facing aspect and a total area of 95.18 m2.
Distribution:
• entrance hall/corridor;
• two bedrooms;
• two bathrooms with toilets;
• living room with kitchen and dining room;
• terrace with access from the living room and one of the bedrooms.
Architectural concept
The building is a contemporary architectural gesture of respect for nature – a form that does not dominate, but contemplates. The project was designed by the established and award-winning architectural firm STUDIO CREATIVE.
Situated amidst greenery and silence, it does not impose itself on the landscape, but quietly fits into it – with precise horizontals, dark verticals like tree shadows and large openings that are not just windows, but portals to tranquility. The spaces inside and outside flow freely – the architecture is in dialogue with light, seasons and time. This is not just a home, but a state of balance that is felt, not declared.
High-class materials
Designed with attention to detail and the environment, the building will be built to the highest standards: aluminum joinery with triple glazing, high-class thermal insulation, a facade with natural ARTEFINO wooden elements, underfloor heating and a smart video surveillance system with functions for detecting the risk of fire, flooding or danger to the residents.
Apartments
The apartments are three-bedroom properties and one four-bedroom apartment. They are offered in a degree of completion according to BDS. The apartments offer views of the lake or a picturesque pine forest behind the building, as the location is entirely surrounded by greenery and an already built-up environment with habitable houses - without the risk of future construction nearby.
The building offers underground parking spaces and garages for purchase.
Payment schemes
Standard scheme:
30% upon signing a contract (initial payment);
30% for Act 14;
30% for Act 15;
10% for Act 16.
Credit scheme:
10% upon signing a contract;
60% for Act 14;
20% for Act 15;
10% for Act 16.
"Invest" scheme (-2% discount):
50% upon signing a contract;
20% for Act 14;
20% for Act 15;
10% for Act 16.
"Super Invest" scheme (-3% discount):
80% upon signing a contract;
20% for Act 16.
"Peace" scheme (+8% on the price):
20% upon signing a contract;
80% at Act 16.
We look forward to your inquiry.
If you would like to arrange a viewing of a property that interests you, or to visit one of our offices, please contact us. To arrange a day and time for a meeting or viewing, you can call the phone number listed in the ad or send an inquiry via e-mail. Our consultant will assist you with all the necessary details and will arrange a time convenient for you.
Are you looking for the right property for you?
Do not hesitate to contact us and tell us about your needs and preferences. Our team will conduct a thorough market research to offer you properties that exactly meet your criteria. We have an exceptional portfolio of high-quality and exclusive homes that are available only to our clients. To be the first to receive information about them – contact us.
Additional services
As a valued client of our company, you will have the privilege of using the services of our experienced legal team completely free of charge. In addition, we offer comprehensive solutions, including property insurance, free financial consulting, as well as favorable financing conditions. Our services also extend to the field of resale, rental and property management. We provide high-quality renovation and furniture through specialized companies that are part of our corporate group and are our long-standing professional partners.
Viewings
We are ready to organize a viewing of this property at a time convenient for you. Please contact the responsible estate agent and inform them when you would like to have viewings arranged. We can also help you with flight tickets and hotel booking, as well as with travel insurance.
Property reservation
You can reserve this property with a non-refundable deposit of 2,000 Euro, payable by credit card or by bank transfer to our company bank account. After receiving the deposit the property will be marked as reserved, no further viewings will be carried out with other potential buyers, and we will start the preparation of the necessary documents for completion of the deal. Please contact the responsible estate agent for more information about the purchase procedure and the payment methods.
After sale services
We are a reputable company with many years of experience in the real estate business. Thus, we will be with you not only during the purchase process, but also after the deal is completed, providing you with a wide range of additional services tailored to your requirements and needs, so that you can fully enjoy your property in Bulgaria. The after sale services we offer include property insurance, construction and repair works, furniture, accounting and legal assistance, renewal of contracts for electricity, water, telephone and many more.
Location on the map
lake IT - apartments in an exclusive new building next to Pancharevo Lake
Pancharevo / Sofia / Bulgaria map
Building class: High standard
Property prices: 198 292 - 277 117 € (excluding VAT)
Prices per m²: 1 917 - 2 167 €/m 2 (excluding VAT)
SALE
PROJECT
Two-bedroom apartment with frontal views of Pancharevo Lake
Pancharevo / Sofia / Bulgaria map
Area: 300 m 2
Price: 1 200 000 € /// 4 000 €/m 2
Select this option and we will notify you by email if there are any changes to the offer status, for example:
• Price change;
• The property entered into a promotional offer;
• The property is reserved or sold;
• Other news related to the property.
• The property is removed from sale;
You can easily unsubscribe from notifications whenever you want.• Changes to the terms of the offer;
• Change in the amount of the investment;
• The subject of the investment has been fully realized;
• The offer has expired.
You can easily unsubscribe if you decide in the future that you no longer want to follow this offer.
To receive absolutely correct information about the vacant properties available for sale in the project and their current prices, please contact our office at the contact information provided.
We make every effort to keep our price lists absolutely up-to-date and correct, but this is often impossible, given the large number of new projects in our catalog and the highly dynamic sales.
Thank you for your understanding!



...As a proven specialist, Stonehard PREMIER works on the market positioning and sales of numerous new construction projects, the implementation of which has been entrusted to us by leading entrepreneurial companies in Bulgaria and abroad...