One-bedroom apartment in a new complex of three buildings next to the Rowing Center in Plovdiv
REF#PLV-133141
/
1-bedroom apartments
/
Implemented projects
/
Plovdiv
/
Hristo Smirnenski
/
Plovdiv
/
Bulgaria
on the map
Price:
95 511 € (1 400 €/m 2)
*The prices and availability of vacant properties in the project are indicative. For up-to-date pricing information, please contact us!
Ref. Number: PLV-133141 / 4603
Location: Hristo Smirnenski / Plovdiv map
Building/complex type: Residential
Housing areas: 68.22 m 2
Types of properties in the building/complex: 1-bedroom apartments
Ref. Number: PLV-133141 / 4603
Location: Hristo Smirnenski / Plovdiv
Building/complex type: Residential
Building/complex class:
Housing areas: 68.22 m 2
Types of properties in the building/complex: 1-bedroom apartments
We present a two-bedroom apartment in a new residential project, in the "Hristo Smirnenski" district. Excellent location within walking distance of the Plovdiv Rowing Base - one of the most preferred locations for spending the weekends, as well as the "Recreation and Culture" park - a place where you will escape the stress of the urban environment. Close to schools, kindergartens, hospitals, restaurants, gyms, Lexi supermarket, public transport stops, etc. Mall Plovdiv is located 6 minutes away by car, but there is also convenient public transport, which will also take you to the shopping center in a short time. With quick access to the Ring Road, which allows you to reach the "Trakia" highway and the most remote parts of the city, avoiding city traffic.
Construction starts in May 2025, and Act 16 is scheduled for June 2028.
NO COMMISSION!
The project is the natural continuation of the philosophy of modern and quality urban living, an uncompromising approach to detail, contemporary architecture and functional apartments designed to meet the needs of the modern urban person. It builds on what has been achieved – with the same uncompromising approach to detail, contemporary architecture and functional apartments designed to meet the needs of the modern urban person. Only high-quality materials and modern technologies have been used to provide you with not just a home, but a place to call a real home.
The complex consists of three buildings, which offer two-bedroom, three-bedroom, four-bedroom and garden apartments with a veranda.
Property parameters
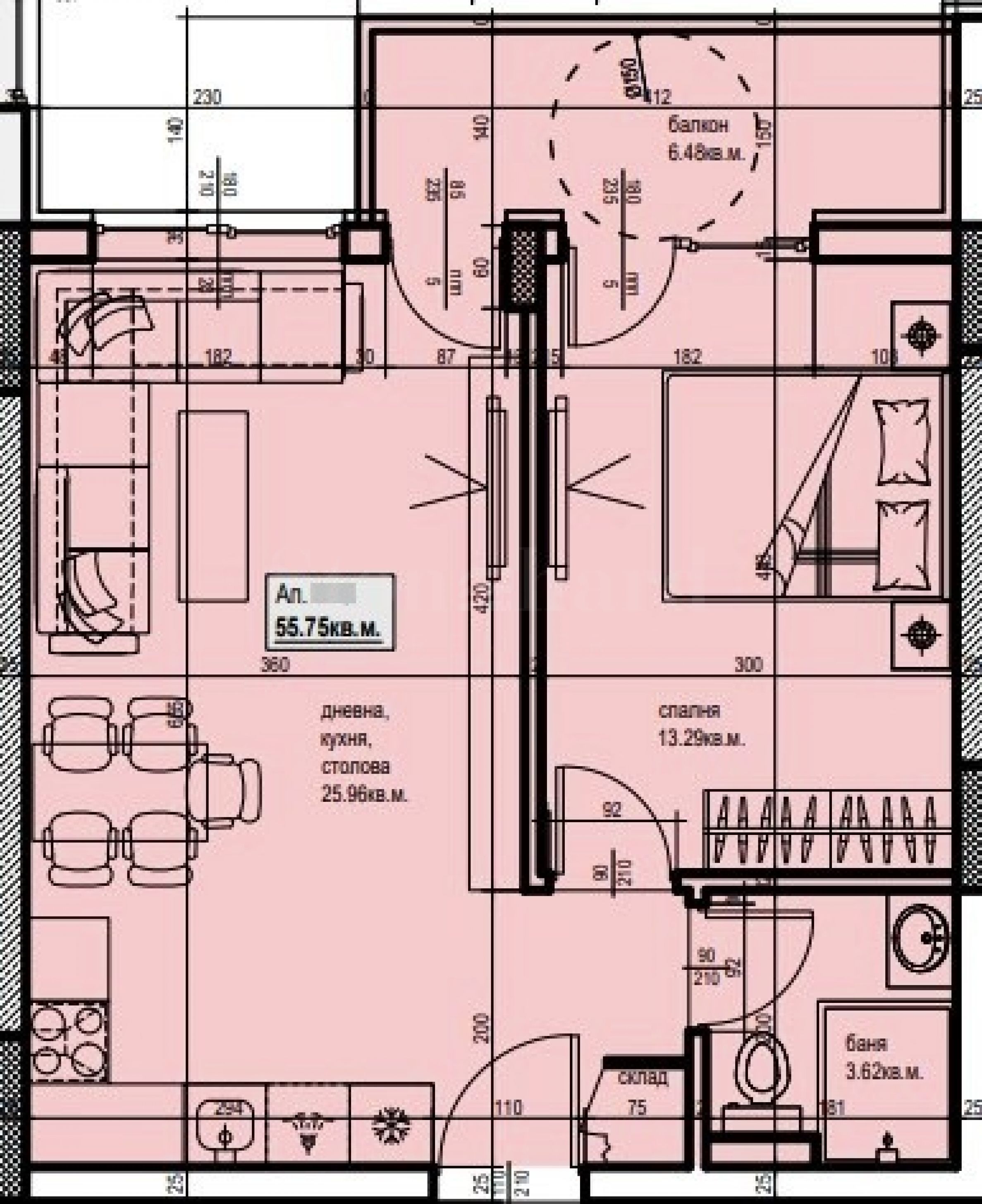
The apartment with a total area of 68.22 sq m is located on the 7th floor of 7 and has the following layout:
• living room with kitchen area;
• bedroom;
• bathroom with toilet;
• terrace.
The apartments are handed over in a state of completion according to Bulgarian Construction Standards, with plaster and screed .
The common areas are designed with attention to detail and a sense of completion. Their design is in complete harmony with the architecture of the building and its modern facade. Natural materials, fine lines and elegant accents create a sense of style and comfort right from the doorstep. The spaces are both representative and cozy – the calling card of the home. Because the impression starts right from the entrance.
Technical characteristics:
• suspended facades - SARAY;
• first-class manufacturer of bricks, roof tiles and other ceramic products - Wienerberger;
• systems for roofs, waterproofing and facades - Onduline;
• gypsum plasters and construction chemicals - R?FIX;
• products for drywall and finishing works - Knauf;
• thermal insulation packages, building mixtures, adhesives for faience, terracotta, and screeds - Baumit;
• waterproofing - tile adhesives, facade putties and plasters, waterproofing, repair and masonry mortars, interior solutions - Weber;
• floor soundproofing - soundproofing of the floor for maximum comfort and limiting the impact of noise on the building's occupants;
• flooring - concrete slabs, paving stones, curbs and decorative elements - Semmelrock;
• electrical installations - leader in the field of electrical and digital building infrastructures - Legrand;
• electrical systems - leader in the field of electrical control and automation - Schneider;
• high-quality aluminum joinery - ETEM, with triple glazing with aluminum spacer and new generation all-weather glass, with high thermal insulation properties of Reynaers Aluminium;
• German garage, entrance and interior doors - H?rmann;
• water filtration - water filters will be installed in order to capture and remove mechanical impurities from the water supply system;
• video surveillance - a system of cameras will be integrated for the security of the owners and security of the common areas;
• preparation for a "Smart Home" - the beginning has been made. A basic package for remote control of electrical installations is being implemented, which you can upgrade and turn your home into a Smart one.
Parking in the residential complex is provided for over 120% through underground and above-ground parking spaces and garages on the ground floor.
The investor has over 20 years of experience in the tourism and real estate investment sectors. The company strives to ensure that each new project fully meets the needs of its clients, with a focus on product, construction process efficiency, and ethical relationships.
Flexible payment plans are offered, as well as the possibility of preparing an individual plan.
For more information, please contact us.
Viewings
We are ready to organize a viewing of this property at a time convenient for you. Please contact the responsible estate agent and inform them when you would like to have viewings arranged. We can also help you with flight tickets and hotel booking, as well as with travel insurance.
Property reservation
You can reserve this property with a non-refundable deposit of 2,000 Euro, payable by credit card or by bank transfer to our company bank account. After receiving the deposit the property will be marked as reserved, no further viewings will be carried out with other potential buyers, and we will start the preparation of the necessary documents for completion of the deal. Please contact the responsible estate agent for more information about the purchase procedure and the payment methods.
After sale services
We are a reputable company with many years of experience in the real estate business. Thus, we will be with you not only during the purchase process, but also after the deal is completed, providing you with a wide range of additional services tailored to your requirements and needs, so that you can fully enjoy your property in Bulgaria. The after sale services we offer include property insurance, construction and repair works, furniture, accounting and legal assistance, renewal of contracts for electricity, water, telephone and many more.
Location on the map
Apartments in a new boutique complex with 4 buildings in the Proslav district
Proslav / Plovdiv / Plovdiv / Bulgaria map
Property prices: 90 000 - 155 000 €
Prices per m²: 1 200 - 1 260 €/m 2
Apartments in a new boutique complex next to the Rowing Base
Hristo Smirnenski / Plovdiv / Plovdiv / Bulgaria map
Property prices: 132 192 - 299 027 €
Prices per m²: 1 788 - 1 800 €/m 2
SALE
PROJECT
One-bedroom apartment in a new gated complex next to the Rowing Base
Hristo Smirnenski / Plovdiv / Plovdiv / Bulgaria map
Building/complex class: Standard
Area: 81.95 m 2
Price: Price upon request ///
Select this option and we will notify you by email if there are any changes to the offer status, for example:
• Price change;
• The property entered into a promotional offer;
• The property is reserved or sold;
• Other news related to the property.
• The property is removed from sale;
You can easily unsubscribe from notifications whenever you want.• Changes to the terms of the offer;
• Change in the amount of the investment;
• The subject of the investment has been fully realized;
• The offer has expired.
You can easily unsubscribe if you decide in the future that you no longer want to follow this offer.
To receive absolutely correct information about the vacant properties available for sale in the project and their current prices, please contact our office at the contact information provided.
We make every effort to keep our price lists absolutely up-to-date and correct, but this is often impossible, given the large number of new projects in our catalog and the highly dynamic sales.
Thank you for your understanding!



...As a proven specialist, Stonehard PREMIER works on the market positioning and sales of numerous new construction projects, the implementation of which has been entrusted to us by leading entrepreneurial companies in Bulgaria and abroad...