Ref. Number: LXH-131004 / 4398
Location: Nessebar map
Building/complex type: Residential
Housing areas: 171.67 m 2
Types of properties in the building/complex: Duplex houses
Ref. Number: LXH-131004
Location: Nessebar
Building/complex type: Жилищен
Building/complex class:
Housing areas: 171.67 m 2
Types of properties in the building/complex: Duplex houses
The complex is located on Cape Akrotiri in the town of Nessebar, on the Black Sea coast with 100% stunning sea views, 30 m away from NSA beach and 200 m away from South Nessebar beach.
Under construction. Expected Act 16 - June 2027.
The property has a total area of 171.67 sq m, a private yard with an area of 184.26 sq m and two parking spaces.
Distribution:
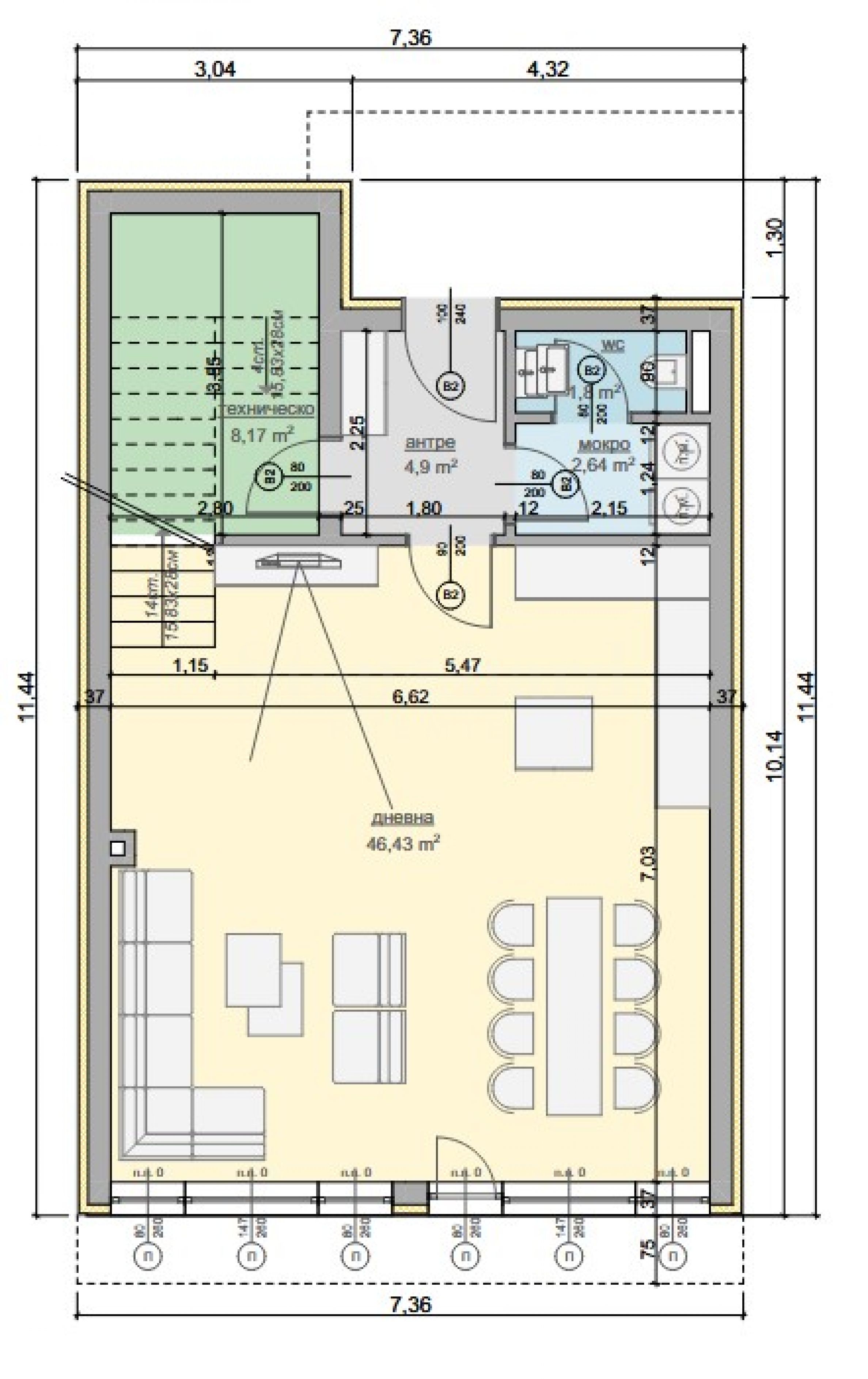
first floor: entrance hall, storage room, bathroom, living room with kitchen and dining room, veranda;
second floor: three bedrooms with private bathroom with toilet. The property is being let in a degree of completion according to Bulgarian Civil Code:
walls - sprayed plaster;
floor - screed with soundproofing underlay;
Plumbing systems - on a plug;
electrical systems - panels, switches, sockets, lampholders;
low-current installation - boxes;
Wi-Fi outputs. Yard space:
separated by a fence made of reinforced concrete board and a metal fence;
parking space - for two cars;
landscape gardening;
landscape park lighting;
irrigation system. Technical characteristics:
reinforced concrete structure - 3 mH (height) per floor;
walls - ceramic bricks Wienerberger Porotherm 25 cm /multi-chamber/ for better heat and sound insulation;
facade - ventilated HPL facade system, natural stone cladding, thermal insulation double injected stone wool 10 cm;
joinery – aluminum joinery, thermo profile with triple-layer glazing, lift-slide system with 50% opening capacity;
armored burglar-resistant entrance door;
roof - 10 cm expanded polystyrene foam, reinforced screed, double-glued waterproofing coating with UV factor. We look forward to your inquiry.
If you would like to arrange a viewing of a property that interests you, or to visit one of our offices, please contact us. To arrange a day and time for a meeting or viewing, you can call the phone number listed in the ad or send an inquiry via e-mail. Our consultant will assist you with all the necessary details and will arrange a time convenient for you.
Are you looking for the right property for you?
Do not hesitate to contact us and tell us about your needs and preferences. Our team will conduct a thorough market research to offer you properties that exactly meet your criteria. We have an exceptional portfolio of high-quality and exclusive homes that are available only to our clients. To be the first to receive information about them – contact us.
Additional services
As a valued client of our company, you will have the privilege of using the services of our experienced legal team completely free of charge. In addition, we offer comprehensive solutions, including property insurance, free financial consulting, as well as favorable financing conditions. Our services also extend to the field of resale, rental and property management. We provide high-quality renovation and furniture through specialized companies that are part of our corporate group and are our long-standing professional partners.
Viewings
We are ready to organize a viewing of this property at a time convenient for you. Please contact the responsible estate agent and inform them when you would like to have viewings arranged. We can also help you with flight tickets and hotel booking, as well as with travel insurance.
Property reservation
You can reserve this property with a non-refundable deposit of 2,000 Euro, payable by credit card or by bank transfer to our company bank account. After receiving the deposit the property will be marked as reserved, no further viewings will be carried out with other potential buyers, and we will start the preparation of the necessary documents for completion of the deal. Please contact the responsible estate agent for more information about the purchase procedure and the payment methods.
After sale services
We are a reputable company with many years of experience in the real estate business. Thus, we will be with you not only during the purchase process, but also after the deal is completed, providing you with a wide range of additional services tailored to your requirements and needs, so that you can fully enjoy your property in Bulgaria. The after sale services we offer include property insurance, construction and repair works, furniture, accounting and legal assistance, renewal of contracts for electricity, water, telephone and many more.
Location on the map
The complex is located on Cape Akrotiri in the town of Nessebar, on the Black Sea coast with 100% stunning sea views, 30 m away from NSA beach and 200 m away from South Nessebar beach.
Under construction. Expected Act 16 - June 2027.
The property has a total area of 171.67 sq m, a private yard with an area of 184.26 sq m and two parking spaces.
Distribution:
first floor: entrance hall, storage room, bathroom, living room with kitchen and dining room, veranda;
second floor: three bedrooms with private bathroom with toilet. The property is being let in a degree of completion according to Bulgarian Civil Code:
walls - sprayed plaster;
floor - screed with soundproofing underlay;
Plumbing systems - on a plug;
electrical systems - panels, switches, sockets, lampholders;
low-current installation - boxes;
Wi-Fi outputs. Yard space:
separated by a fence made of reinforced concrete board and a metal fence;
parking space - for two cars;
landscape gardening;
landscape park lighting;
irrigation system. Technical characteristics:
reinforced concrete structure - 3 mH (height) per floor;
walls - ceramic bricks Wienerberger Porotherm 25 cm /multi-chamber/ for better heat and sound insulation;
facade - ventilated HPL facade system, natural stone cladding, thermal insulation double injected stone wool 10 cm;
joinery – aluminum joinery, thermo profile with triple-layer glazing, lift-slide system with 50% opening capacity;
armored burglar-resistant entrance door;
roof - 10 cm expanded polystyrene foam, reinforced screed, double-glued waterproofing coating with UV factor. We look forward to your inquiry.
If you would like to arrange a viewing of a property that interests you, or to visit one of our offices, please contact us. To arrange a day and time for a meeting or viewing, you can call the phone number listed in the ad or send an inquiry via e-mail. Our consultant will assist you with all the necessary details and will arrange a time convenient for you.
Are you looking for the right property for you?
Do not hesitate to contact us and tell us about your needs and preferences. Our team will conduct a thorough market research to offer you properties that exactly meet your criteria. We have an exceptional portfolio of high-quality and exclusive homes that are available only to our clients. To be the first to receive information about them – contact us.
Additional services
As a valued client of our company, you will have the privilege of using the services of our experienced legal team completely free of charge. In addition, we offer comprehensive solutions, including property insurance, free financial consulting, as well as favorable financing conditions. Our services also extend to the field of resale, rental and property management. We provide high-quality renovation and furniture through specialized companies that are part of our corporate group and are our long-standing professional partners.
Viewings
We are ready to organize a viewing of this property at a time convenient for you. Please contact the responsible estate agent and inform them when you would like to have viewings arranged. We can also help you with flight tickets and hotel booking, as well as with travel insurance.
Property reservation
You can reserve this property with a non-refundable deposit of 2,000 Euro, payable by credit card or by bank transfer to our company bank account. After receiving the deposit the property will be marked as reserved, no further viewings will be carried out with other potential buyers, and we will start the preparation of the necessary documents for completion of the deal. Please contact the responsible estate agent for more information about the purchase procedure and the payment methods.
After sale services
We are a reputable company with many years of experience in the real estate business. Thus, we will be with you not only during the purchase process, but also after the deal is completed, providing you with a wide range of additional services tailored to your requirements and needs, so that you can fully enjoy your property in Bulgaria. The after sale services we offer include property insurance, construction and repair works, furniture, accounting and legal assistance, renewal of contracts for electricity, water, telephone and many more.
The complex is located on Cape Akrotiri in the town of Nessebar, on the Black Sea coast with 100% stunning sea views, 30 m away from NSA beach and 200 m away from South Nessebar beach.
Under construction. Expected Act 16 - June 2027.
The property has a total area of 171.67 sq m, a private yard with an area of 184.26 sq m and two parking spaces.
Distribution:
first floor: entrance hall, storage room, bathroom, living room with kitchen and dining room, veranda;
second floor: three bedrooms with private bathroom with toilet. The property is being let in a degree of completion according to Bulgarian Civil Code:
walls - sprayed plaster;
floor - screed with soundproofing underlay;
Plumbing systems - on a plug;
electrical systems - panels, switches, sockets, lampholders;
low-current installation - boxes;
Wi-Fi outputs. Yard space:
separated by a fence made of reinforced concrete board and a metal fence;
parking space - for two cars;
landscape gardening;
landscape park lighting;
irrigation system. Technical characteristics:
reinforced concrete structure - 3 mH (height) per floor;
walls - ceramic bricks Wienerberger Porotherm 25 cm /multi-chamber/ for better heat and sound insulation;
facade - ventilated HPL facade system, natural stone cladding, thermal insulation double injected stone wool 10 cm;
joinery – aluminum joinery, thermo profile with triple-layer glazing, lift-slide system with 50% opening capacity;
armored burglar-resistant entrance door;
roof - 10 cm expanded polystyrene foam, reinforced screed, double-glued waterproofing coating with UV factor. We look forward to your inquiry.
If you would like to arrange a viewing of a property that interests you, or to visit one of our offices, please contact us. To arrange a day and time for a meeting or viewing, you can call the phone number listed in the ad or send an inquiry via e-mail. Our consultant will assist you with all the necessary details and will arrange a time convenient for you.
Are you looking for the right property for you?
Do not hesitate to contact us and tell us about your needs and preferences. Our team will conduct a thorough market research to offer you properties that exactly meet your criteria. We have an exceptional portfolio of high-quality and exclusive homes that are available only to our clients. To be the first to receive information about them – contact us.
Additional services
As a valued client of our company, you will have the privilege of using the services of our experienced legal team completely free of charge. In addition, we offer comprehensive solutions, including property insurance, free financial consulting, as well as favorable financing conditions. Our services also extend to the field of resale, rental and property management. We provide high-quality renovation and furniture through specialized companies that are part of our corporate group and are our long-standing professional partners.
Viewings
We are ready to organize a viewing of this property at a time convenient for you. Please contact the responsible estate agent and inform them when you would like to have viewings arranged. We can also help you with flight tickets and hotel booking, as well as with travel insurance.
Property reservation
You can reserve this property with a non-refundable deposit of 2,000 Euro, payable by credit card or by bank transfer to our company bank account. After receiving the deposit the property will be marked as reserved, no further viewings will be carried out with other potential buyers, and we will start the preparation of the necessary documents for completion of the deal. Please contact the responsible estate agent for more information about the purchase procedure and the payment methods.
After sale services
We are a reputable company with many years of experience in the real estate business. Thus, we will be with you not only during the purchase process, but also after the deal is completed, providing you with a wide range of additional services tailored to your requirements and needs, so that you can fully enjoy your property in Bulgaria. The after sale services we offer include property insurance, construction and repair works, furniture, accounting and legal assistance, renewal of contracts for electricity, water, telephone and many more.
Single-family houses in a new gated complex in Nessebar
Nessebar / Burgas / Bulgaria map
Property prices: 280 000 - 680 000 €
Prices per m²: 1 700 - 2 360 €/m 2
Select this option and we will notify you by email if there are any changes to the offer status, for example:
• Price change;
• The property entered into a promotional offer;
• The property is reserved or sold;
• Other news related to the property.
• The property is removed from sale;
You can easily unsubscribe from notifications whenever you want.• Changes to the terms of the offer;
• Change in the amount of the investment;
• The subject of the investment has been fully realized;
• The offer has expired.
You can easily unsubscribe if you decide in the future that you no longer want to follow this offer.

 
     
            

...As a proven specialist, Stonehard PREMIER works on the market positioning and sales of numerous new construction projects, the implementation of which has been entrusted to us by leading entrepreneurial companies in Bulgaria and abroad...