One-bedroom apartment with a yard in a new complex next to "Prof. Krikor Azaryan" Street
REF#SOF-130119
/
1-bedroom apartments
/
Implemented projects
/
Sofia
/
Malinova Dolina
/
Sofia
/
Bulgaria
on the map
Price:
188 996 € (2 668 €/m 2)
*The prices and availability of vacant properties in the project are indicative. For up-to-date pricing information, please contact us!
Ref. Number: SOF-130119 / 3396
Location: Malinova Dolina / Sofia map
Building/complex type: Residential
Housing areas: 70.83 m 2
Types of properties in the building/complex: 1-bedroom apartments
Ref. Number: SOF-130119 / 3396
Location: Malinova Dolina / Sofia
Building/complex type: Residential
Building/complex class:
Housing areas: 70.83 m 2
Types of properties in the building/complex: 1-bedroom apartments
BEFORE ACT 15!
The location is communicative, close to Prof. Krikor Azaryan Street, which provides access to Simeonovsko Shosse Blvd. and Kliment Ohridski Blvd., and from there to all points of the capital. Within walking distance are the Winter Palace of Sports, the National Sports Academy, Vartopo Park and all the amenities of Studentski Grad.
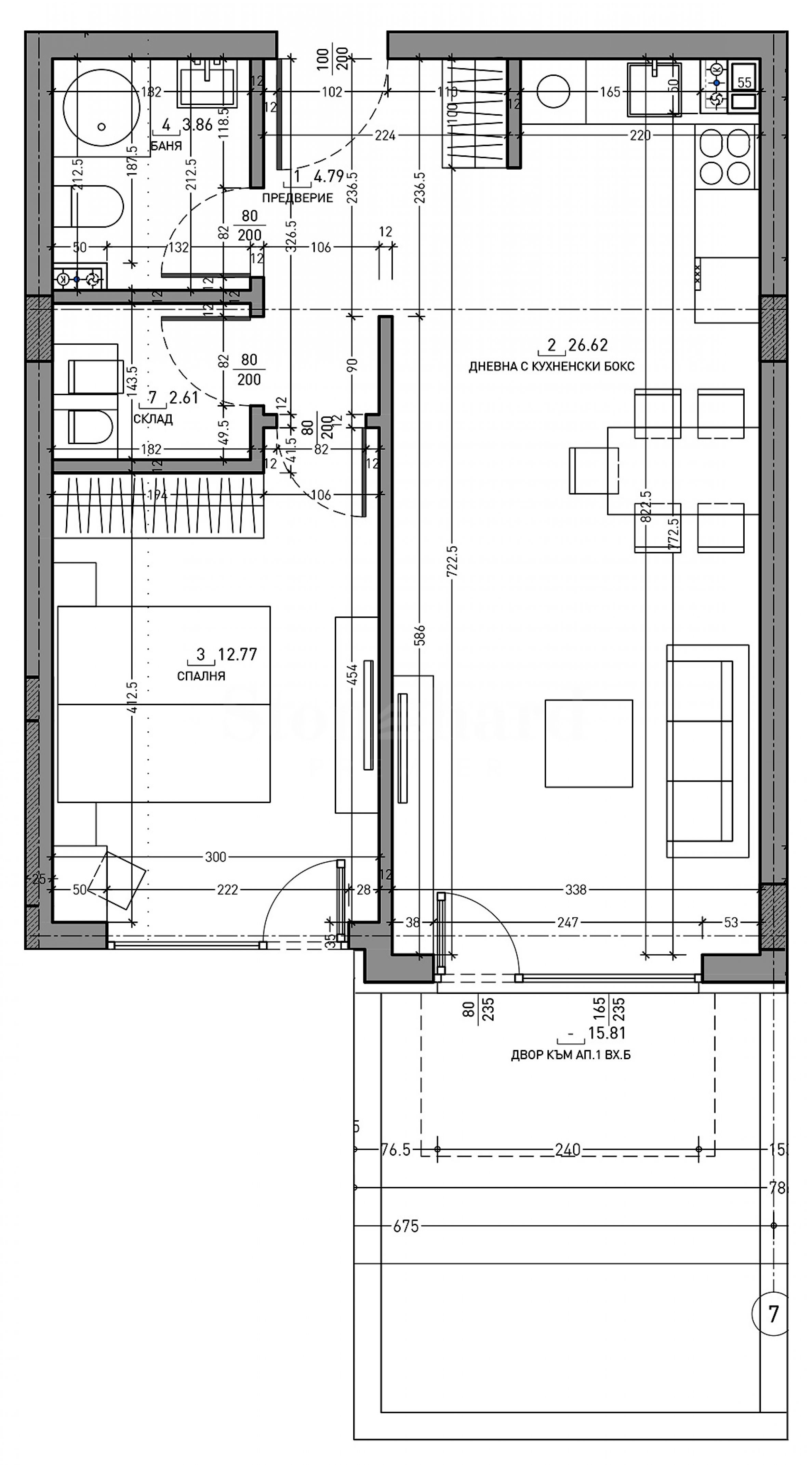
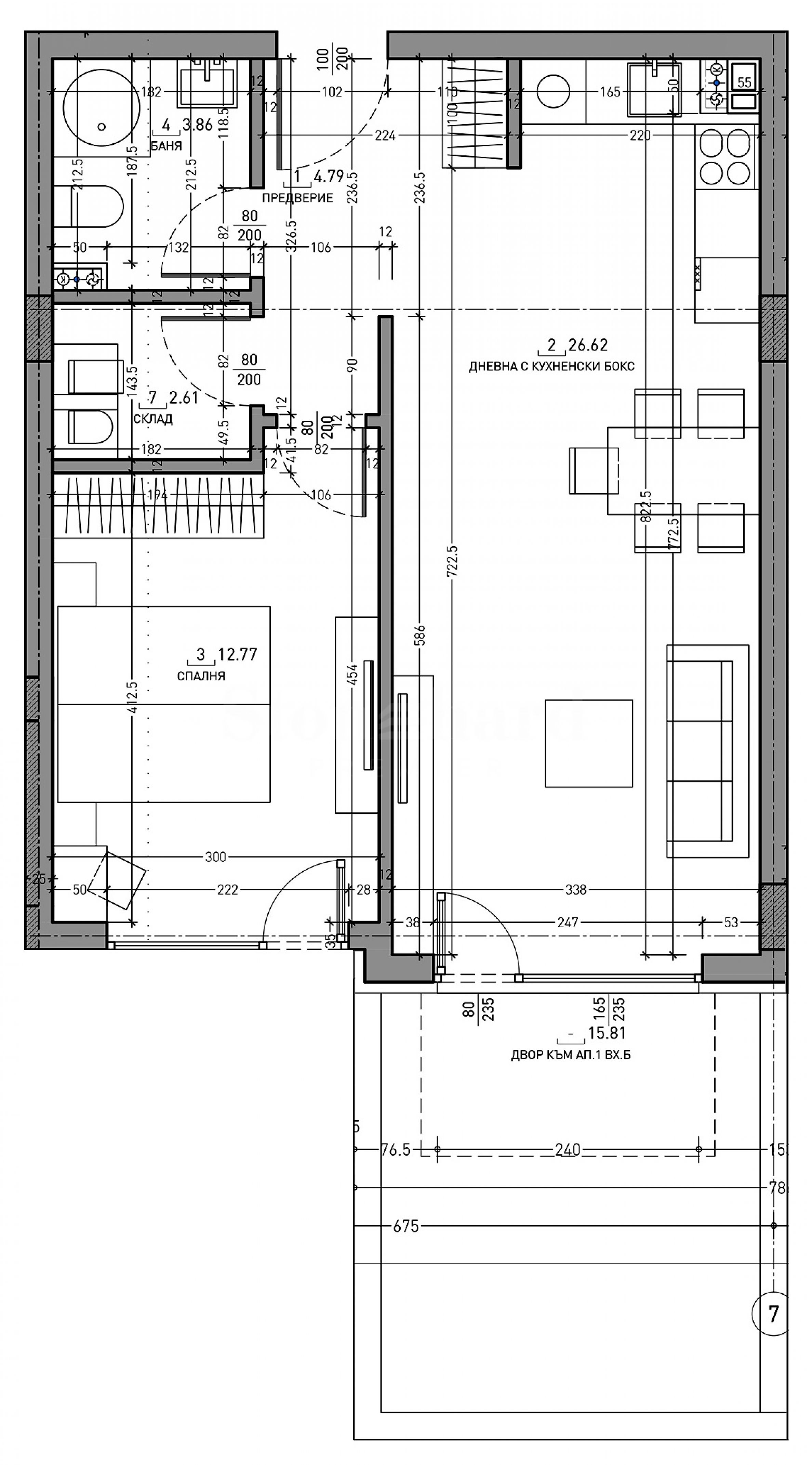
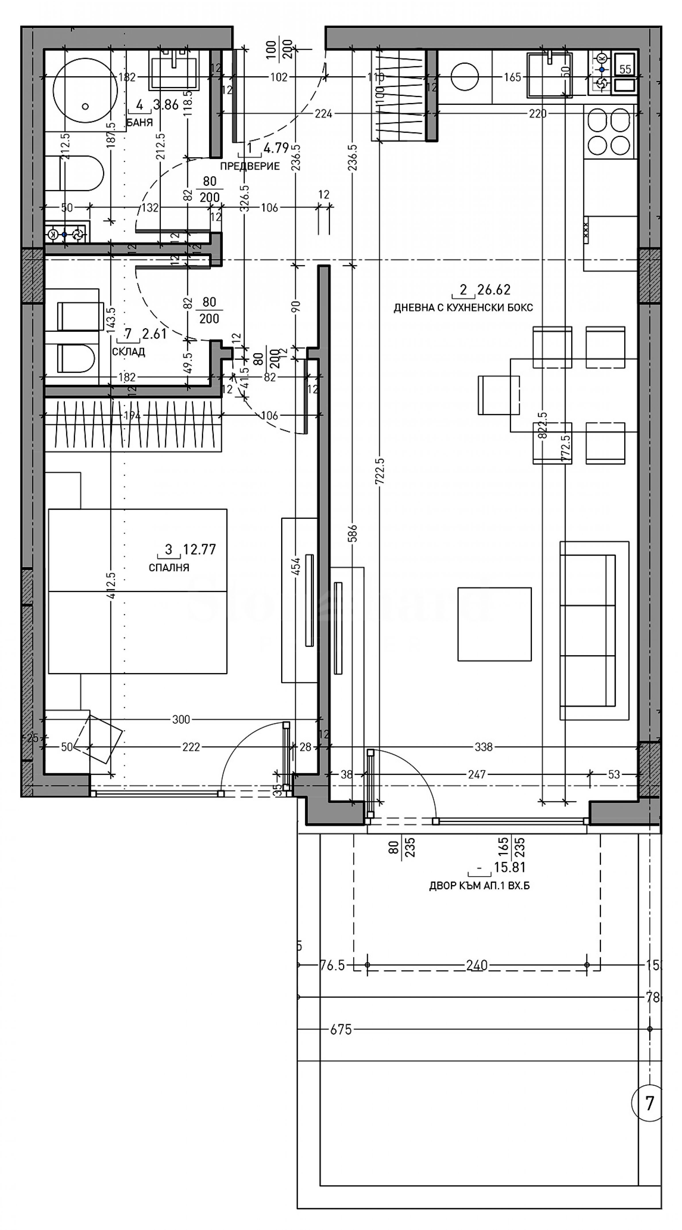
The property is located on the 1st floor out of a total of 4, is oriented to the east and offers 70.83 sq m of total area.
Distribution:
hallway/corridor;
bathroom with toilet - 3.86 sq m;
storage/wet room - 2.61 m2;
bedroom 12.77 sq m;
living room with kitchen and dining room - 26.62 sq m;
yard of 15.81 m2. The apartment is sold with plaster walls, cement plaster floors, internal basic wiring, electrical and plumbing installations, luxury entrance doors.
About the complex
It consists of three 4-storey buildings and its own park with an area of 1,500 sq m, with rich landscaping and no car traffic, which will provide the residents with a peaceful atmosphere of life. The apartments have functional layouts and favorable exposures, with most of them offering views of Vitosha Mountain.
Parking is provided by underground garages, with an option to purchase, at prices starting at 34,000 euros (66,498 BGN).
Technical characteristics:
construction - reinforced concrete, monolithic structure;
waterproofing system throughout the basement, as well as on attics and terraces;
thermal insulation of the facade - 12 cm EPS with decorative cladding from the Caparol Meldorfer system (clinker bricks);
roof insulation 12 cm XPS;
common areas with natural stone-look granite flooring, plasterboard ceilings with LED lighting;
elevators - Orona;
Deceuninck 6-chamber metal-plastic window frames, triple glazing;
intercom system for controlled access;
Electric heating with planned installation for a heat pump. Always clean air without heat loss
The apartments will have an individual heat recovery system that provides air exchange, allowing a constant flow of clean and fresh air. It is used both during the cold and warm seasons.
Distances:
1.6 km from the largest shopping center in the capital - Ring Mall Sofia;
300 m from Vartopo Park II;
2 km from Studentski Park;
500 m from the bus stop;
3 km from the Mladost metro station;
There are stores Fantastico, Kaufland, LIDL in the area;
numerous shops, cafes and restaurants in the "Studentski Grad" quarter, which is close to the site. The project is the work of a construction and investment company with 15 years of experience in the field of residential, industrial and infrastructure construction in our country.
For additional information about the type of property you are interested in, please contact the broker responsible for the offer.
Viewings
We are ready to organize a viewing of this property at a time convenient for you. Please contact the responsible estate agent and inform them when you would like to have viewings arranged. We can also help you with flight tickets and hotel booking, as well as with travel insurance.
Property reservation
You can reserve this property with a non-refundable deposit of 2,000 Euro, payable by credit card or by bank transfer to our company bank account. After receiving the deposit the property will be marked as reserved, no further viewings will be carried out with other potential buyers, and we will start the preparation of the necessary documents for completion of the deal. Please contact the responsible estate agent for more information about the purchase procedure and the payment methods.
After sale services
We are a reputable company with many years of experience in the real estate business. Thus, we will be with you not only during the purchase process, but also after the deal is completed, providing you with a wide range of additional services tailored to your requirements and needs, so that you can fully enjoy your property in Bulgaria. The after sale services we offer include property insurance, construction and repair works, furniture, accounting and legal assistance, renewal of contracts for electricity, water, telephone and many more.
Location on the map
A new residential project of eight buildings with different types of apartments in the "Malinova Dolina" quarter
Malinova Dolina / Sofia / Sofia / Bulgaria map
Property prices: 73 000 - 212 000 €
Prices per m²: 1 738 - 1 933 €/m 2
SALE
PROJECT
New one-bedroom apartment in RuHouse 2
Krustova Vada / Sofia / Sofia / Bulgaria map
Building/complex class: Luxurious
Area: 67.90 m 2
Price: 220 000 € /// 3 240 €/m 2
New complex with different types of apartments in the "Manastirski Livadi - Iztok" district
Manastirski Livadi - East / Sofia / Sofia / Bulgaria map
Property prices: 183 906 - 449 314 € (excluding VAT)
Prices per m²: 2 600 - 2 600 €/m 2 (excluding VAT)
Select this option and we will notify you by email if there are any changes to the offer status, for example:
• Price change;
• The property entered into a promotional offer;
• The property is reserved or sold;
• Other news related to the property.
• The property is removed from sale;
You can easily unsubscribe from notifications whenever you want.• Changes to the terms of the offer;
• Change in the amount of the investment;
• The subject of the investment has been fully realized;
• The offer has expired.
You can easily unsubscribe if you decide in the future that you no longer want to follow this offer.
To receive absolutely correct information about the vacant properties available for sale in the project and their current prices, please contact our office at the contact information provided.
We make every effort to keep our price lists absolutely up-to-date and correct, but this is often impossible, given the large number of new projects in our catalog and the highly dynamic sales.
Thank you for your understanding!



...As a proven specialist, Stonehard PREMIER works on the market positioning and sales of numerous new construction projects, the implementation of which has been entrusted to us by leading entrepreneurial companies in Bulgaria and abroad...