One-bedroom apartment in a new building near Sofia Mall
Price:
295 325 € (2 350 €/m 2)
*The prices and availability of vacant properties in the project are indicative. For up-to-date pricing information, please contact us!
Ref. Number: SOF-129435 / 4229
Location: Center / Sofia map
Building/complex type: Residential
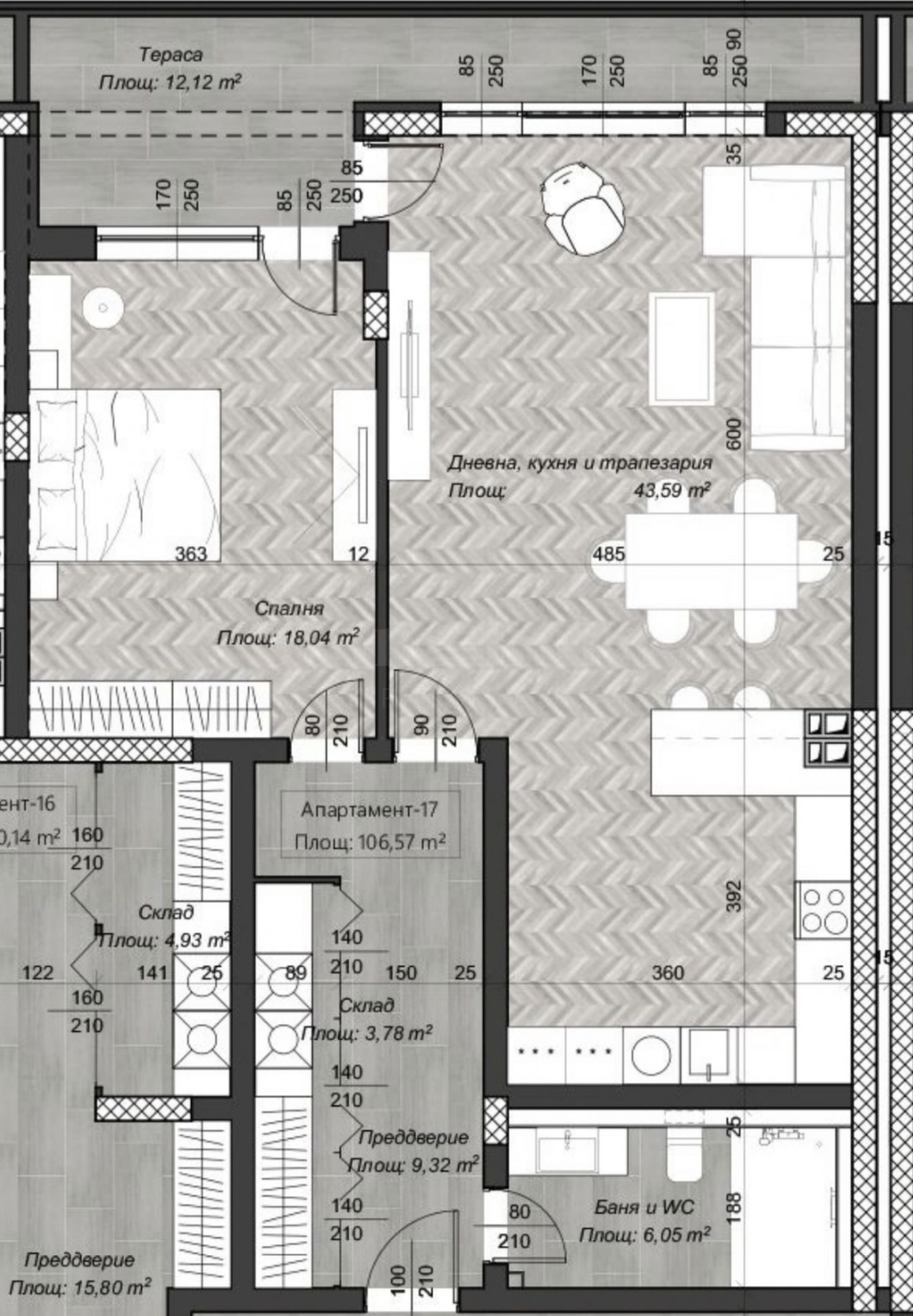
Housing areas: 125.67 m 2
Types of properties in the building/complex: 1-bedroom apartments
Ref. Number: SOF-129435 / 4229
Location: Center / Sofia
Building/complex type: Residential
Building/complex class:
Housing areas: 125.67 m 2
Types of properties in the building/complex: 1-bedroom apartments
The apartment has a total area of 125.67 sq m (built-up area 106.57 sq m and common areas 19.10 sq m).
Exposure - east.
Distribution:
• entrance hall;
• living room;
• bathroom with toilet;
• bedroom.
The apartment is handed over in a state of completion according to Bulgarian Construction Standards, with plastering and screed. A turnkey option is available.
About the building
The facade of the building has clean shapes and decorative elements that emphasize the volumes. The building offers picturesque views of the mountain and the St. Alexander Nevsky Church. A richly landscaped, publicly accessible roof terrace is planned. Luxurious finishing of the common areas with a security cabin, and premises for shops are planned on the ground floors.
The building offers two-, three- and four-bedroom apartments.
On the ground floor there are 18 covered and 6 open parking spaces.
The stairwells are separated from the car area with fire doors. In the entrance lobbies, common areas and security guard rooms are separated. An automated access control system is planned. Technical and storage areas are also planned on this level.
On the residential floors from 3 to 13 there are 69 apartments - varying in typology and size.
On the top 14th floor is a multi-room apartment with a private roof terrace, offering panoramic views of the city.
Technical characteristics:
• Monolithic reinforced concrete structure;
• Facade glazing provides maximum natural lighting in each living space;
• German aluminum profile with triple glazing Sch?co;
• Masonry made of ceramic bricks with a thickness of 25 cm and 12 cm from Wienerberger;
• The internal partitions and enclosures of the installations in the bathrooms are made of plasterboard;
• The terraces are provided with openwork and solid railings with a height of at least 120 cm from the finished floor;
• The entrance spaces are marked with a decorative frame with stone cladding;
• The ground floor has an etalbond finish, which naturally flows through the decorative sun protection elements in height to the decorative profile that frames the public area;
• Exterior plaster – light-colored horizontals – for the edges of the terraces and railings; dark color – throughout the entire facade inside;
• Dark lacobel – which further emphasizes the verticals;
• Decorative grids;
• Protective railing made of composite material with min H=120cm from finished floor.
Parking:
• Underground parking: 38 parking spaces are located in the basement. An automated access system with remote control is planned. The stairwells are separated from the car area with fire-resistant doors. Technical and storage rooms are planned at this level.
• Above-ground parking: there are 26 parking spaces, accessible via a two-lane internal ramp.
• Ground floor: there are 18 covered and 7 open parking spaces.
Construction plan:
Completion period - 36 months.
Payment schemes:
Various payment schemes are possible, by negotiation.
Viewings
We are ready to organize a viewing of this property at a time convenient for you. Please contact the responsible estate agent and inform them when you would like to have viewings arranged. We can also help you with flight tickets and hotel booking, as well as with travel insurance.
Property reservation
You can reserve this property with a non-refundable deposit of 2,000 Euro, payable by credit card or by bank transfer to our company bank account. After receiving the deposit the property will be marked as reserved, no further viewings will be carried out with other potential buyers, and we will start the preparation of the necessary documents for completion of the deal. Please contact the responsible estate agent for more information about the purchase procedure and the payment methods.
After sale services
We are a reputable company with many years of experience in the real estate business. Thus, we will be with you not only during the purchase process, but also after the deal is completed, providing you with a wide range of additional services tailored to your requirements and needs, so that you can fully enjoy your property in Bulgaria. The after sale services we offer include property insurance, construction and repair works, furniture, accounting and legal assistance, renewal of contracts for electricity, water, telephone and many more.
Location on the map
Comfortable family homes in a new building next to Tsar Boris III Blvd.
Lagera / Sofia / Sofia / Bulgaria map
Property prices: 175 000 - 450 000 €
Prices per m²: 1 997 - 2 234 €/m 2
SALE
PROJECT
One-bedroom apartment with a yard and a garage next to the park in the "Gorna Banya" district
Gorna Banya / Sofia / Sofia / Bulgaria map
Area: 73.20 m 2
Price: 218 525 € /// 2 985 €/m 2
Boutique building at the foot of Vitosha mountain - Boyana quarter
Boyana / Sofia / Sofia / Bulgaria map
Property prices: 170 181 - 712 380 € (excluding VAT)
Prices per m²: 2 600 - 2 900 €/m 2 (excluding VAT)
Select this option and we will notify you by email if there are any changes to the offer status, for example:
• Price change;
• The property entered into a promotional offer;
• The property is reserved or sold;
• Other news related to the property.
• The property is removed from sale;
You can easily unsubscribe from notifications whenever you want.• Changes to the terms of the offer;
• Change in the amount of the investment;
• The subject of the investment has been fully realized;
• The offer has expired.
You can easily unsubscribe if you decide in the future that you no longer want to follow this offer.
To receive absolutely correct information about the vacant properties available for sale in the project and their current prices, please contact our office at the contact information provided.
We make every effort to keep our price lists absolutely up-to-date and correct, but this is often impossible, given the large number of new projects in our catalog and the highly dynamic sales.
Thank you for your understanding!



...As a proven specialist, Stonehard PREMIER works on the market positioning and sales of numerous new construction projects, the implementation of which has been entrusted to us by leading entrepreneurial companies in Bulgaria and abroad...