Studio with veranda in a newly built complex in Tsarevo
on the map
Price:
69 817 € (1 501 €/m 2)
*The prices and availability of vacant properties in the project are indicative. For up-to-date pricing information, please contact us!
Ref. Number: LXH-119439 / 3639
Location: Tsarevo map
Building/complex type: Residential
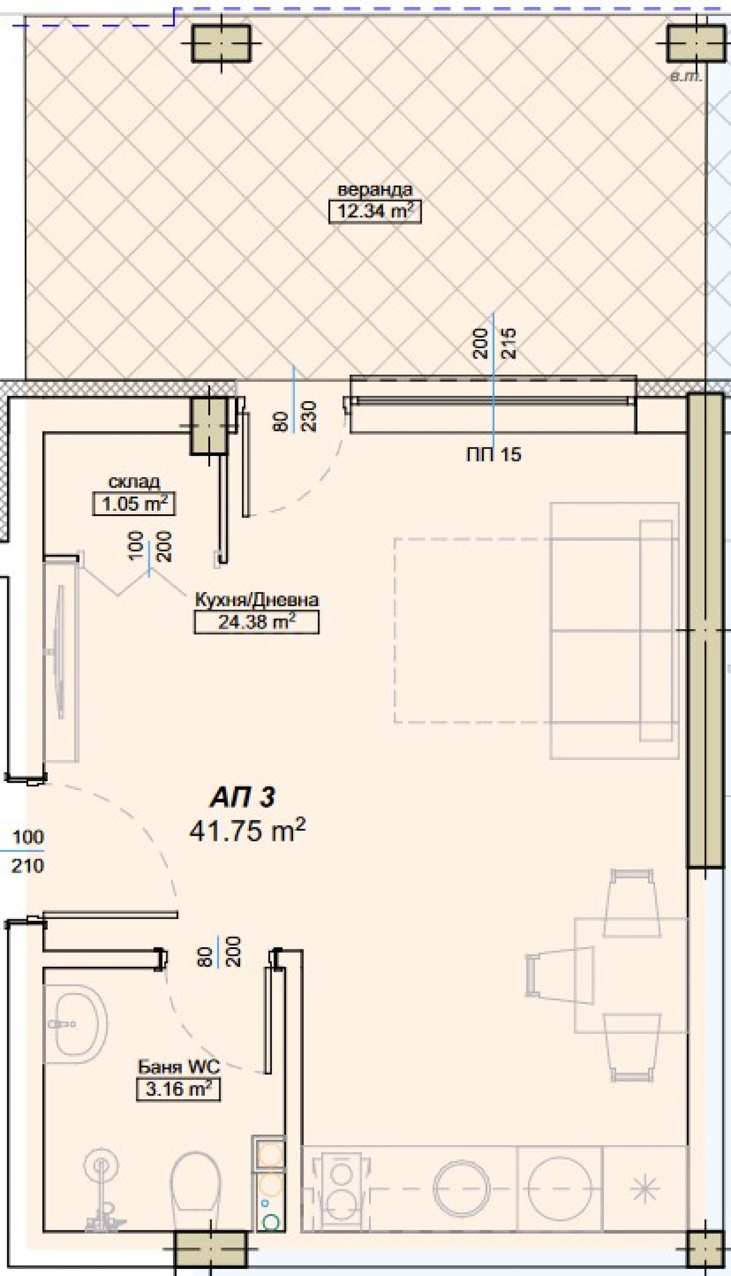
Housing areas: 46.50 m 2
Types of properties in the building/complex: Studios
Ref. Number: LXH-119439 / 3639
Location: Tsarevo
Building/complex type: Residential
Building/complex class:
Housing areas: 46.50 m 2
Types of properties in the building/complex: Studios
Planned Act 16 - August 2025
The property has a total area of 46.50 sq m, located on the 1st floor, in a 4-story building with an elevator and a limited number of apartments - 14 properties and 23 parking spaces.
Designed in a Mediterranean style, the boutique building will be filled with high-class materials:
facade thermal insulation and plasters - Baumit;
Fundermax facade HPL panels;
bricks - Wienerberger;
aluminum windows. The apartments are of one-room, two-room and three-room apartments. The properties are rented out in a degree of completion BDS: plastered walls and screeded floors, fully completed electrical and plumbing installations, installed joinery.
Location
Convenient location between the central part of the resort - the New Town and the "Vasiliko" quarter - the Old Town, overlooking the entire bay between the two neighborhoods, with views of the sea, the port and the "Assumption of the Virgin Mary" Church. The area is known as the "White Beach". Within walking distance of the beach with the famous Django Surf & Bar and Nestinarka beach.
Viewings
We are ready to organize a viewing of this property at a time convenient for you. Please contact the responsible estate agent and inform them when you would like to have viewings arranged. We can also help you with flight tickets and hotel booking, as well as with travel insurance.
Property reservation
You can reserve this property with a non-refundable deposit of 2,000 Euro, payable by credit card or by bank transfer to our company bank account. After receiving the deposit the property will be marked as reserved, no further viewings will be carried out with other potential buyers, and we will start the preparation of the necessary documents for completion of the deal. Please contact the responsible estate agent for more information about the purchase procedure and the payment methods.
After sale services
We are a reputable company with many years of experience in the real estate business. Thus, we will be with you not only during the purchase process, but also after the deal is completed, providing you with a wide range of additional services tailored to your requirements and needs, so that you can fully enjoy your property in Bulgaria. The after sale services we offer include property insurance, construction and repair works, furniture, accounting and legal assistance, renewal of contracts for electricity, water, telephone and many more.
Location on the map
Newly built apartments next to the Central beach in Tsarevo
Tsarevo / Burgas / Bulgaria map
Property prices: 132 238 - 141 464 € (excluding VAT)
Prices per m²: 1 150 - 1 290 €/m 2 (excluding VAT)
Boutique apartments in a new gated complex meters from the sea in Tsarevo
Tsarevo / Burgas / Bulgaria map
Completion: December, 2025
Property prices: 61 486 - 249 939 €
Prices per m²: 1 300 - 1 300 €/m 2
PROJECT
Luxury boutique apartment building with sea views on the first line
Tsarevo / Burgas / Bulgaria map
Property prices: 189 600 - 324 000 €
Prices per m²: 1 500 - 1 801 €/m 2
Select this option and we will notify you by email if there are any changes to the offer status, for example:
• Price change;
• The property entered into a promotional offer;
• The property is reserved or sold;
• Other news related to the property.
• The property is removed from sale;
You can easily unsubscribe from notifications whenever you want.• Changes to the terms of the offer;
• Change in the amount of the investment;
• The subject of the investment has been fully realized;
• The offer has expired.
You can easily unsubscribe if you decide in the future that you no longer want to follow this offer.
To receive absolutely correct information about the vacant properties available for sale in the project and their current prices, please contact our office at the contact information provided.
We make every effort to keep our price lists absolutely up-to-date and correct, but this is often impossible, given the large number of new projects in our catalog and the highly dynamic sales.
Thank you for your understanding!



...As a proven specialist, Stonehard PREMIER works on the market positioning and sales of numerous new construction projects, the implementation of which has been entrusted to us by leading entrepreneurial companies in Bulgaria and abroad...