Studio avec véranda dans un nouveau complexe de construction à Tsarevo
sur la carte
Prix:
69 817 € (1 501 €/m 2)
*Les prix et la disponibilité des propriétés vacantes dans ce projet sont donnés à titre indicatif. Pour obtenir les prix les plus récents, veuillez nous contacter !
Réf. Nombre: LXH-119439 / 3639
Emplacement: Tsarevo carte
Type de bâtiment/complexe: Résidentiel
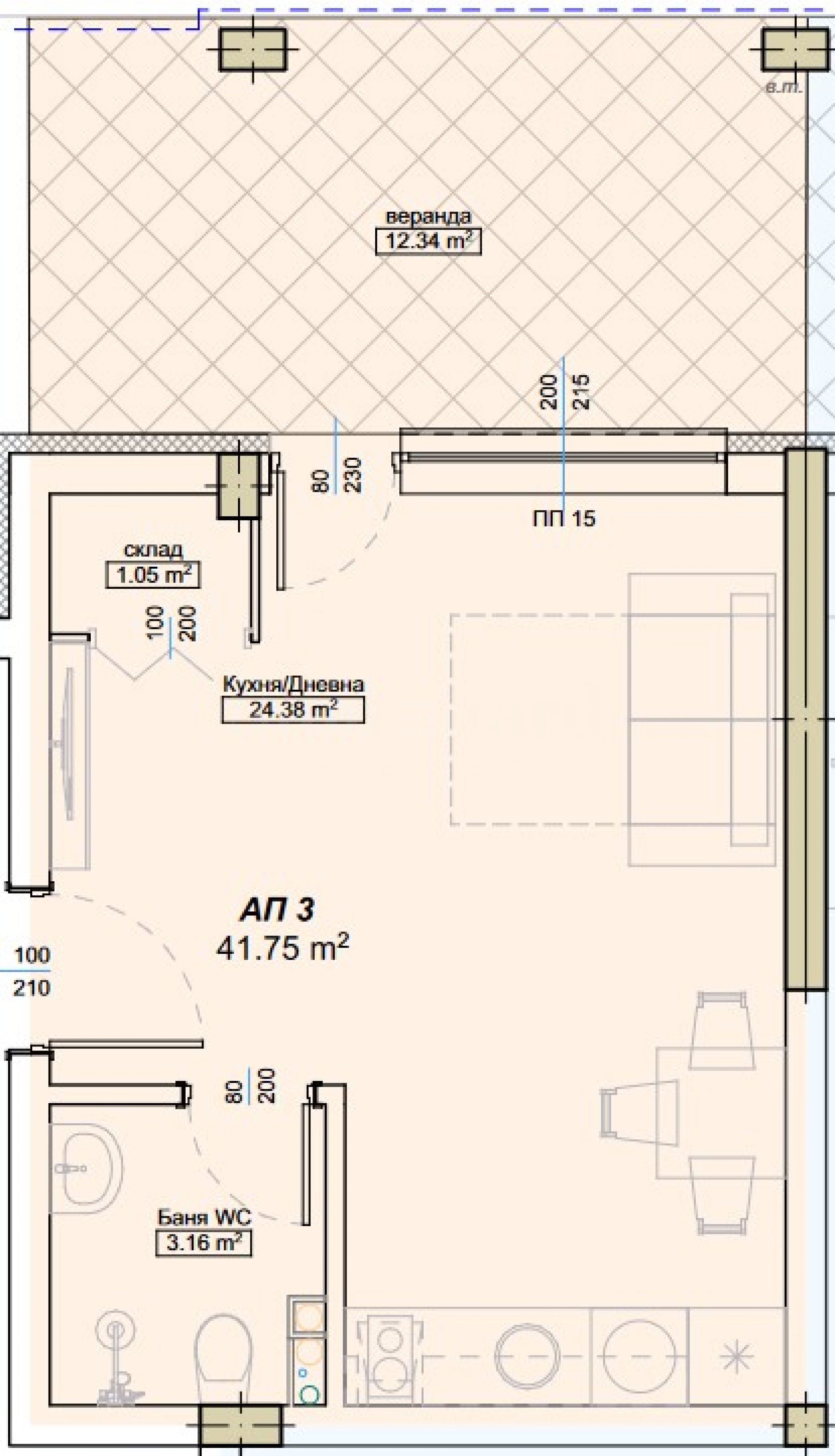
Zones d'habitation: 46.50 m 2
Types de propriétés dans l'immeuble/complexe: Studios
Réf. Nombre: LXH-119439 / 3639
Emplacement: Tsarevo
Type de bâtiment/complexe: Résidentiel
Classe de bâtiment/complexe:
Zones d'habitation: 46.50 m 2
Types de propriétés dans l'immeuble/complexe: Studios
Acte prévu 16 - mai 2025
La propriété a une superficie totale de 46,50 m², située au 1er étage, dans un immeuble de 4 étages avec ascenseur et un nombre limité d'appartements - 14 propriétés et 23 places de parking.
Conçu dans un style méditerranéen, le bâtiment de la boutique sera rempli de matériaux haut de gamme :
isolation thermique de façade et enduits - Baumit;
Panneaux HPL de façade Fundermax ;
briques - Wienerberger;
fenêtres en aluminium. Les appartements sont des appartements d'une chambre, de deux chambres et de trois chambres. Les biens sont loués en état d'achèvement BDS : enduits sur murs et chapes sur sols, électricité entièrement réalisée. et installation de plomberie, fenêtres installées.
Emplacement
Emplacement idéal entre la partie centrale de la station - New Town et le quartier. "Vasiliko" - La vieille ville, surplombant toute la baie entre les deux quartiers, avec vue sur la mer, le port et l'église de l'Assomption de la Vierge Marie. La zone est connue sous le nom de « Plage Blanche ». À distance de marche de la plage avec le célèbre Django Surf & Bar et la plage de Nestinarka.
Localisation sur la carte
DROITS
VENTE
PROJET
Nouveaux appartements dans un immeuble résidentiel moderne dans la ville de Tsarevo
Tsarevo / Burgas / Bulgarie carte
Classe de construction: Haut niveau
Prix de l'immobilier: 80 660 - 181 780 €
Prix au m²: 1 280 - 1 942 €/m 2
VENTE
PROJET
Deux appartements d'une pièce dans un complexe près de la plage Nestinarka, Tsarevo
Tsarevo / Burgas / Bulgarie carte
Zone: 104.13 m 2
Prix: 108 000 € /// 1 037 €/m 2
VENTE
PROJET
Deux studios dans un complexe avec des commodités, près de la plage Nestinarka, Tsarevo
Tsarevo / Burgas / Bulgarie carte
Zone: 85 m 2
Prix: 99 000 € /// 1 165 €/m 2
Sélectionnez cette option et nous vous informerons par e-mail en cas de modification du statut de l'offre, par exemple :
• Changement de prix;
• Le bien fait l’objet d’une offre promotionnelle ;
• Le bien est réservé ou vendu ;
• Autres nouvelles liées à la propriété.
• Le bien est retiré de la vente ;
Vous pouvez facilement vous désabonner des notifications quand vous le souhaitez.• Modifications des conditions de l’offre ;
• Modification du montant de l’investissement ;
• L’objet de l’investissement a été entièrement réalisé ;
• L'offre a expiré.
Vous pouvez facilement vous désinscrire si vous décidez à l'avenir que vous ne souhaitez plus suivre cette offre.
Pour obtenir des informations parfaitement exactes sur les propriétés vacantes disponibles à la vente dans le cadre de ce projet et leurs prix actuels, veuillez contacter notre bureau aux coordonnées indiquées.
Nous mettons tout en œuvre pour que nos listes de prix soient parfaitement à jour et exactes, mais cela est souvent impossible, compte tenu du grand nombre de nouveaux projets dans notre catalogue et du dynamisme des ventes.
Merci pour votre compréhension!



...En tant que spécialiste reconnu, Stonehard PREMIER travaille sur le positionnement sur le marché et la vente de nombreux nouveaux projets de construction, dont la mise en œuvre nous a été confiée par des entreprises entrepreneuriales de premier plan en Bulgarie et à l'étranger...