Large terraced house #B12 with two garages, at the foot of Vitosha
on the mapPrice:
730 250 € (excluding VAT)
*The prices and availability of vacant properties in the project are indicative. For up-to-date pricing information, please contact us!
Ref. Number: SOF-118355 / 3591
Location: m-t Kambanite / Sofia map
Building/complex type: Residential
Building/complex class: Luxurious
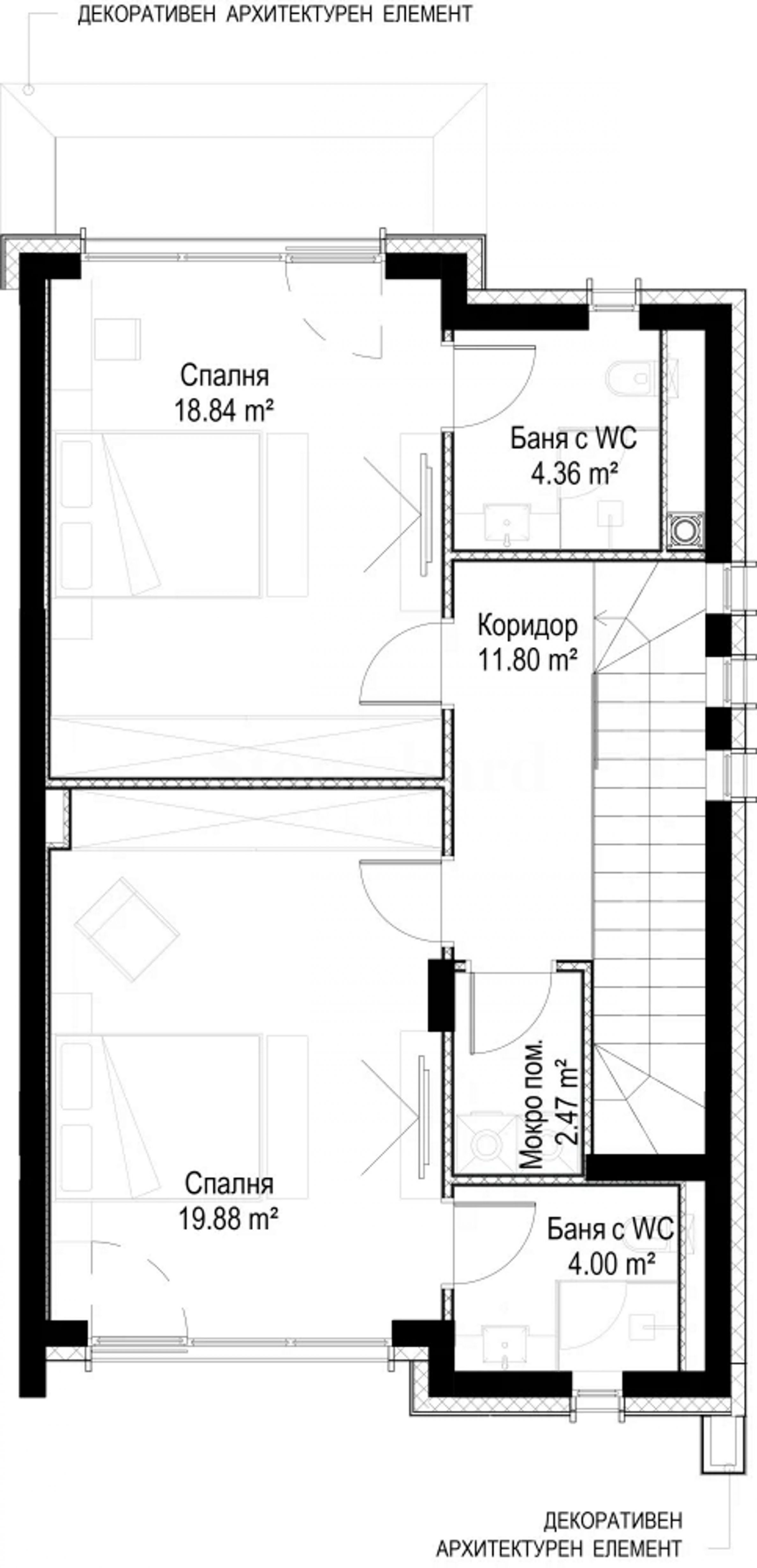
Housing areas: 391.46 m 2
Types of properties in the building/complex: Townhouses
Ref. Number: SOF-118355 / 3591
Location: m-t Kambanite / Sofia
Building/complex type: Residential
Building/complex class: Luxurious
Housing areas: 391.46 m 2
Types of properties in the building/complex: Townhouses
Features:
No. B12, Type RA - larger row houses with indoor parking;
floors: 2 above ground, 1 underground floor;
total built-up area - 391.46 m2;
Property area - 255.15 m2.;
yard - 101.31 m2;
number of bedrooms - 3;
number of bathrooms - 3;
garage - 2.
360-degree view of the mountain and the city
Situated in a convenient location in the increasingly preferred and prestigious "Kambanite" area, next to some of the most sought-after gated communities in the capital, this complex is the last opportunity to build a project of this scale in this area. The complex embodies a peaceful life in a picturesque environment with fresh air, on a total area of 110,000 sq m, of which 92,000 sq m - green area, as well as a whole 10 decares of its own park.
Location
A 20-minute drive from the center of the capital, close to two of the largest business centers - Business Park Sofia and Garitage Office Park, this is an exclusive place to live for adults and children.
next to Kambanite Park;
3 minutes by car from the "Ring Road";
6 min drive from Ring Mall;
15 min drive from the Airport.
The construction of Stage 1 is with ACT 14, including the entire planned park environment.
Completion period - 2.5 years, GFA of Stage 1 - 21,000 sq m:
three three-story apartment buildings - three-bedroom properties on the top floors and four-bedroom apartments, with a yard or terraces;
row houses and semi-detached houses, with an area of 285 m2. to 454 m2.
Recreational Building - public building with 40 parking spaces for guests – 2,400 m2.
Houses:
RA - larger row houses with indoor parking;
RB - smaller row houses with outdoor parking;
TA - larger semi-detached house with indoor parking;
TB - smaller semi-detached house with outdoor parking.
New generation residential complex:
ready-made homes for a smart home - Smart Home System;
option for 4 variants of property completion, from international architectural and design company SGI;
French windows and high ceilings 3+ m of light;
innovative thermal insulation system;
heat pump heating system;
option for individual elevators and a swimming pool for the houses;
photovoltaics with inverter plants;
large-format aluminum windows with triple glazing and low board;
sewage treatment plant;
integrated electric vehicle charging stations;
modern smart security technologies from VIP Security;
facility management services for the complex.
A variety of amenities for the whole family, recreation and sports, as well as your successful business:
24-hour reception;
fitness and SPA center, yoga studio, boxing hall;
barbecue and picnic areas, pet park, outdoor gym, jogging, cycling and sports trails;
open-air cinema;
sports fields, playgrounds and a children's center;
5* Hotel type Lounge area with reception and restaurants;
cinema and games room;
conference rooms and an open area for work and meetings (co-working space), etc.
For additional information and to arrange a viewing, please contact the broker responsible for the offer.
Viewings
We are ready to organize a viewing of this property at a time convenient for you. Please contact the responsible estate agent and inform them when you would like to have viewings arranged. We can also help you with flight tickets and hotel booking, as well as with travel insurance.
Property reservation
You can reserve this property with a non-refundable deposit of 2,000 Euro, payable by credit card or by bank transfer to our company bank account. After receiving the deposit the property will be marked as reserved, no further viewings will be carried out with other potential buyers, and we will start the preparation of the necessary documents for completion of the deal. Please contact the responsible estate agent for more information about the purchase procedure and the payment methods.
After sale services
We are a reputable company with many years of experience in the real estate business. Thus, we will be with you not only during the purchase process, but also after the deal is completed, providing you with a wide range of additional services tailored to your requirements and needs, so that you can fully enjoy your property in Bulgaria. The after sale services we offer include property insurance, construction and repair works, furniture, accounting and legal assistance, renewal of contracts for electricity, water, telephone and many more.
Location on the map
SALE
PROJECT
Modern house with four bedrooms, double garage and courtyard in a new complex
v.z.Malinova dolina / Sofia / Sofia / Bulgaria map
Area: 460.76 m 2
Price: PRICE UPON REQUEST ///
SALE
PROJECT
Eco house type B for sale in a gated complex in Boyana district
Boyana / Sofia / Sofia / Bulgaria map
Area: 451 m 2
Price: 950 000 € ///
SALE
PROJECT
Eco house in a gated complex in Boyana district
Boyana / Sofia / Sofia / Bulgaria map
Area: 360.55 m 2
Price: 903 000 € ///
Select this option and we will notify you by email if there are any changes to the offer status, for example:
• Price change;
• The property entered into a promotional offer;
• The property is reserved or sold;
• Other news related to the property.
• The property is removed from sale;
You can easily unsubscribe from notifications whenever you want.• Changes to the terms of the offer;
• Change in the amount of the investment;
• The subject of the investment has been fully realized;
• The offer has expired.
You can easily unsubscribe if you decide in the future that you no longer want to follow this offer.
To receive absolutely correct information about the vacant properties available for sale in the project and their current prices, please contact our office at the contact information provided.
We make every effort to keep our price lists absolutely up-to-date and correct, but this is often impossible, given the large number of new projects in our catalog and the highly dynamic sales.
Thank you for your understanding!



...As a proven specialist, Stonehard PREMIER works on the market positioning and sales of numerous new construction projects, the implementation of which has been entrusted to us by leading entrepreneurial companies in Bulgaria and abroad...