Three-room apartment for sale in a new boutique building in the village of Lozen
Price:
296 000 € (2 400 €/m 2)
*The prices and availability of vacant properties in the project are indicative. For up-to-date pricing information, please contact us!
Ref. Number: SOF 116488 / 3507
Location: Lozen map
Building/complex type: Residential
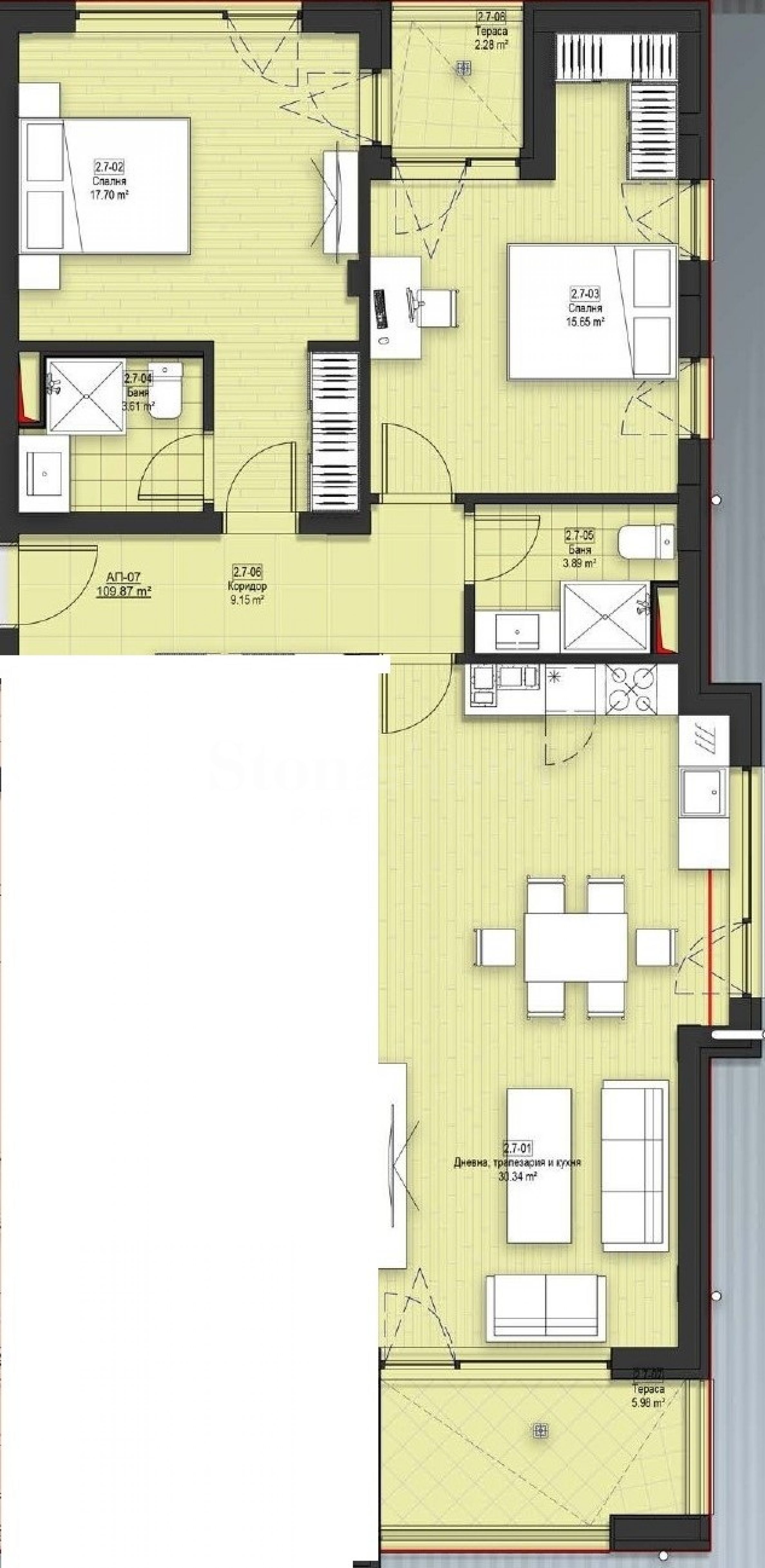
Housing areas: 123.33 m 2
Types of properties in the building/complex: 2-bedroom apartments
Ref. Number: SOF 116488 / 3507
Location: Lozen
Building/complex type: Residential
Building/complex class:
Housing areas: 123.33 m 2
Types of properties in the building/complex: 2-bedroom apartments
The property is being sold without commission from the buyer.
The apartment is delivered with plaster and screed and provides the opportunity for personalization and choice of materials and interior solutions.
The property is located on the third floor and consists of a spacious living room with a terrace facing east and a north window (30 sq m), two bedrooms facing northwest (15 sq m and 18 sq m), one bedroom has its own bathroom, a terrace that can be accessed from both bedrooms, and there is also a second bathroom.
The residential building is built with first-class materials according to Eurocodes and European standards, with an energy efficiency passport.
Other two- and three-bedroom apartments are also offered for sale with the possibility of renovations at the client's request.
Parking in the building is organized in underground garages and outdoor parking spaces.
Lozen is located close to the capital, which means easy access to city amenities, jobs, and cultural attractions. This can be an advantage for people who want to be close to city life. The village offers picturesque views and opportunities for mountain tourism, which can be attractive to nature lovers and people looking for peace and fresh air.
In the area is the Church of St. George - this is a historic church that dates back to the 18th century and offers great architecture and iconography, and the Monastery of St. Ivan of Rila, which is a popular place for worship and meditation, and 5 km away is the Lozen Monastery of St. Spas.
We look forward to your inquiry.
If you would like to arrange a viewing of a property that interests you, or to visit one of our offices, please contact us. To arrange a day and time for a meeting or viewing, you can call the phone number listed in the ad or send an inquiry via e-mail. Our consultant will assist you with all the necessary details and will arrange a time convenient for you.
Are you looking for the right property for you?
Do not hesitate to contact us and tell us about your needs and preferences. Our team will conduct a thorough market research to offer you properties that exactly meet your criteria. We have an exceptional portfolio of high-quality and exclusive homes that are available only to our clients. To be the first to receive information about them – contact us.
Additional services
As a valued client of our company, you will have the privilege of using the services of our experienced legal team completely free of charge. In addition, we offer comprehensive solutions, including property insurance, free financial consulting, as well as favorable financing conditions. Our services also extend to the field of resale, rental and property management. We provide high-quality renovation and furniture through specialized companies that are part of our corporate group and are our long-standing professional partners.
Viewings
We are ready to organize a viewing of this property at a time convenient for you. Please contact the responsible estate agent and inform them when you would like to have viewings arranged. We can also help you with flight tickets and hotel booking, as well as with travel insurance.
Property reservation
You can reserve this property with a non-refundable deposit of 2,000 Euro, payable by credit card or by bank transfer to our company bank account. After receiving the deposit the property will be marked as reserved, no further viewings will be carried out with other potential buyers, and we will start the preparation of the necessary documents for completion of the deal. Please contact the responsible estate agent for more information about the purchase procedure and the payment methods.
After sale services
We are a reputable company with many years of experience in the real estate business. Thus, we will be with you not only during the purchase process, but also after the deal is completed, providing you with a wide range of additional services tailored to your requirements and needs, so that you can fully enjoy your property in Bulgaria. The after sale services we offer include property insurance, construction and repair works, furniture, accounting and legal assistance, renewal of contracts for electricity, water, telephone and many more.
Location on the map
SALE
PROJECT
Two-bedroom apartment for sale in a new boutique building in the village of Lozen, with ACT 16
Lozen / Sofia / Bulgaria map
Area: 124.65 m 2
Price: 255 540 € /// 2 050 €/m 2
SALE
PROJECT
South-facing two-bedroom apartment for sale in a new boutique building in the village of Lozen, with Act 16
Lozen / Sofia / Bulgaria map
Area: 123.33 m 2
Price: 271 350 € /// 2 200 €/m 2
Limited number of apartments in a boutique new building in the village of Lozen
Lozen / Sofia / Bulgaria map
Building class: High standard
Property prices: 230 317 - 265 144 €
Prices per m²: 1 895 - 1 895 €/m 2
Select this option and we will notify you by email if there are any changes to the offer status, for example:
• Price change;
• The property entered into a promotional offer;
• The property is reserved or sold;
• Other news related to the property.
• The property is removed from sale;
You can easily unsubscribe from notifications whenever you want.• Changes to the terms of the offer;
• Change in the amount of the investment;
• The subject of the investment has been fully realized;
• The offer has expired.
You can easily unsubscribe if you decide in the future that you no longer want to follow this offer.
To receive absolutely correct information about the vacant properties available for sale in the project and their current prices, please contact our office at the contact information provided.
We make every effort to keep our price lists absolutely up-to-date and correct, but this is often impossible, given the large number of new projects in our catalog and the highly dynamic sales.
Thank you for your understanding!



...As a proven specialist, Stonehard PREMIER works on the market positioning and sales of numerous new construction projects, the implementation of which has been entrusted to us by leading entrepreneurial companies in Bulgaria and abroad...