Three-room apartment in a new modern building next to the Hadji Dimitar metro station
REF#Sve-110288
/
2-bedroom apartments
/
Implemented projects
/
Sofia
/
Suhata Reka
/
Sofia
/
Bulgaria
on the map
Price:
277 000 € (2 553 €/m 2)
*The prices and availability of vacant properties in the project are indicative. For up-to-date pricing information, please contact us!
Ref. Number: Sve-110288 / 3250
Location: Suhata Reka / Sofia map
Building/complex type: Residential
Housing areas: 108.49 m 2
Types of properties in the building/complex: 2-bedroom apartments
Ref. Number: Sve-110288 / 3250
Location: Suhata Reka / Sofia
Building/complex type: Residential
Building/complex class:
Housing areas: 108.49 m 2
Types of properties in the building/complex: 2-bedroom apartments
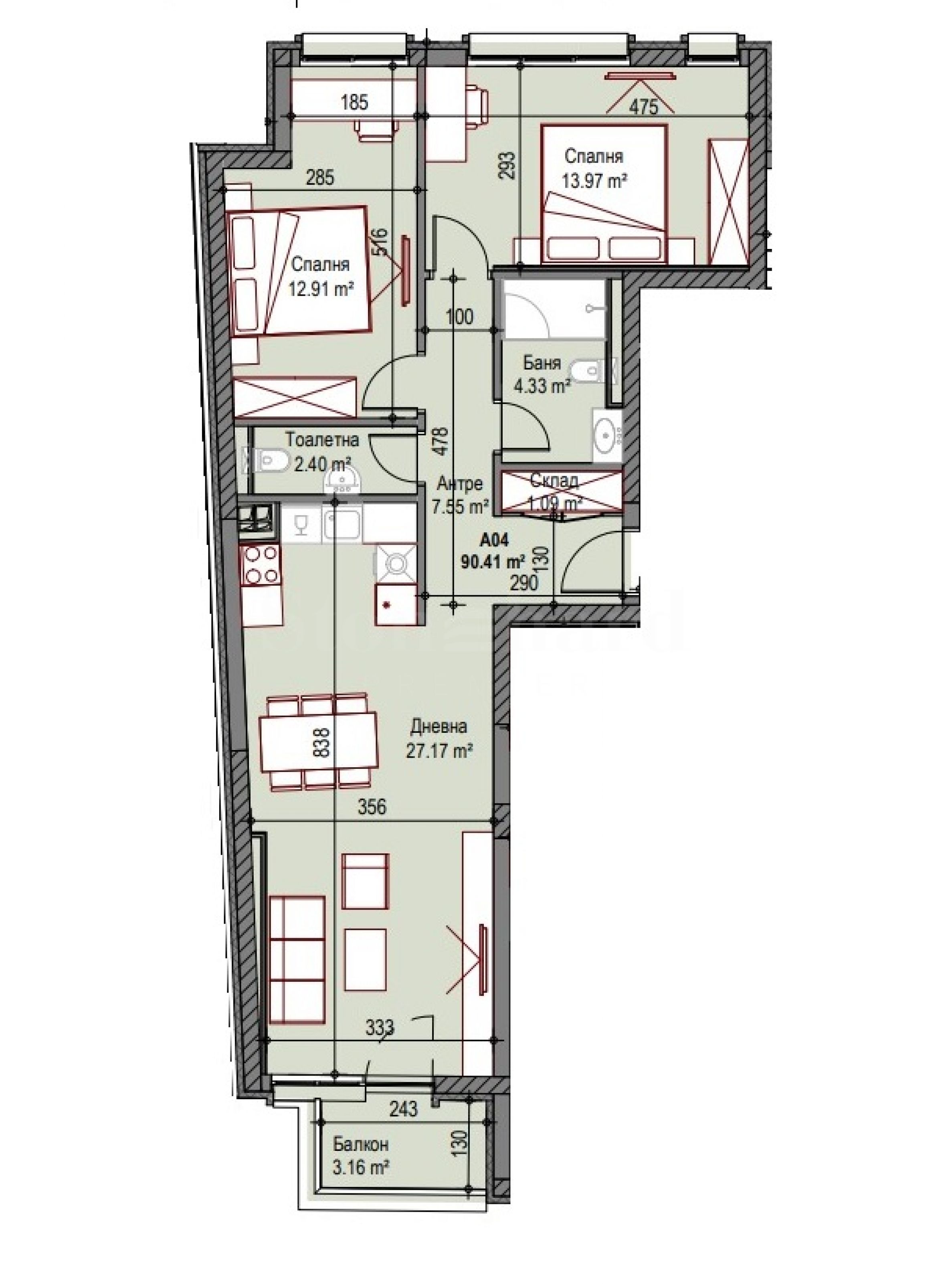
The property is located on the 8th floor and offers 108.49 sq m, distributed in an entrance hall, living room, two bedrooms, bathroom with toilet, toilet and balcony.
The location is close to public transport stops and the Hadji Dimitar metro station, supermarkets, schools and a kindergarten. The area is served by Cherkovna Street, Alexander Ekzarh Street and Vladimir Vazov and Gen. Danail Nikolaev Boulevards, which provide connections to all parts of the city. Serdika Mall is a 5-minute drive or 10-minute walk away, and Zaimov Park, located in the prestigious Oborishte neighborhood, is an 18-minute walk away.
Purchase without commission.
The building has 9 floors, distributed in two entrances and offers a choice of two-, three- and four-bedroom apartments, designed according to European standards with the feeling of lots of space and sunlight.
Parking is provided with parking spaces and garages distributed on the ground floor and basement levels:
parking spaces at prices from EUR 20,000;
garages at prices EUR 30,000 - EUR 40,000.
The construction uses modern technologies and contemporary materials to achieve low energy costs and create a high standard, coziness and peace of mind for the residents of the complex. The architectural design is modern, with a facade of polymer plaster and natural stone, and the common areas will be luxuriously finished with granite, paneling and a hydraulic elevator. Facade LED lighting and decorative garden lighting are planned to outline the plot and green areas.
Features:
enclosing and partition brick walls with high-quality Wienerberger bricks;
the buildings are thermally insulated with 10 cm EPS insulation, and the roofs are thermally insulated with 10 cm XPS insulation and double waterproofing;
all terraces are waterproofed;
6-chamber window frames with triple-glazed windows and K glass;
armored doors;
access control system to the building and underground garage, video intercom system with access control with chips or cards;
a video surveillance system that covers the perimeter around the building;
Security alarm system for each apartment;
electronic water meters, where all information will be scanned from the entrance to the building;
Each home is equipped with a doorbell, telephone and video intercom installations, a network for connecting cable television and the internet;
outlets for electric blinds for each window in the living area;
air conditioner outlets in each room.
Payment scheme:
30% - Preliminary contract;
30% - Act 14;
20% - Water and Sewerage;
10% - Act 15;
10% - Act 16.
Construction stages:
start - December 2023;
Act 14 - April 2025;
Act 16 - October 2026
For additional information and to arrange a viewing, please contact the broker responsible for the offer.
Viewings
We are ready to organize a viewing of this property at a time convenient for you. Please contact the responsible estate agent and inform them when you would like to have viewings arranged. We can also help you with flight tickets and hotel booking, as well as with travel insurance.
Property reservation
You can reserve this property with a non-refundable deposit of 2,000 Euro, payable by credit card or by bank transfer to our company bank account. After receiving the deposit the property will be marked as reserved, no further viewings will be carried out with other potential buyers, and we will start the preparation of the necessary documents for completion of the deal. Please contact the responsible estate agent for more information about the purchase procedure and the payment methods.
After sale services
We are a reputable company with many years of experience in the real estate business. Thus, we will be with you not only during the purchase process, but also after the deal is completed, providing you with a wide range of additional services tailored to your requirements and needs, so that you can fully enjoy your property in Bulgaria. The after sale services we offer include property insurance, construction and repair works, furniture, accounting and legal assistance, renewal of contracts for electricity, water, telephone and many more.
Location on the map
SALE
PROJECT
Designer two-bedroom apartment in a prestigious building A3
Manastirski Livadi - East / Sofia / Sofia / Bulgaria map
Area: 165 m 2
Price: 630 000 € /// 3 818 €/m 2
A new residential project of eight buildings with different types of apartments in the "Malinova Dolina" quarter
Malinova Dolina / Sofia / Sofia / Bulgaria map
Property prices: 73 000 - 212 000 €
Prices per m²: 1 738 - 1 933 €/m 2
New complex with different types of apartments in the "Manastirski Livadi - Iztok" district
Manastirski Livadi - East / Sofia / Sofia / Bulgaria map
Property prices: 183 906 - 449 314 € (excluding VAT)
Prices per m²: 2 600 - 2 600 €/m 2 (excluding VAT)
Select this option and we will notify you by email if there are any changes to the offer status, for example:
• Price change;
• The property entered into a promotional offer;
• The property is reserved or sold;
• Other news related to the property.
• The property is removed from sale;
You can easily unsubscribe from notifications whenever you want.• Changes to the terms of the offer;
• Change in the amount of the investment;
• The subject of the investment has been fully realized;
• The offer has expired.
You can easily unsubscribe if you decide in the future that you no longer want to follow this offer.
To receive absolutely correct information about the vacant properties available for sale in the project and their current prices, please contact our office at the contact information provided.
We make every effort to keep our price lists absolutely up-to-date and correct, but this is often impossible, given the large number of new projects in our catalog and the highly dynamic sales.
Thank you for your understanding!



...As a proven specialist, Stonehard PREMIER works on the market positioning and sales of numerous new construction projects, the implementation of which has been entrusted to us by leading entrepreneurial companies in Bulgaria and abroad...