Two-bedroom apartment in a newly built building in Krastova Vada district

Price:

320 022 (2 759 €/m 2)

*The prices and availability of vacant properties in the project are indicative. For up-to-date pricing information, please contact us!

Ref. Number: SOF 129462 / 3540

Location: Krustova Vada / Sofia map

Building/complex type: Residential

Housing areas: 116 m 2

Types of properties in the building/complex: 2-bedroom apartments

Ref. Number: SOF 129462 / 3540

Location: Krustova Vada / Sofia

Building/complex type: Residential

Building/complex class:  

Housing areas: 116 m 2

Types of properties in the building/complex: 2-bedroom apartments

Project description
We present to your attention a wonderful opportunity to purchase a family home in a new modern residential building in the preferred metropolitan district of Krastova Vada. The property is part of a six-story residential building with modern architecture and its own yard. The apartment is located on a quiet street, meters from Cherni Vrah Blvd., close to Vitosha Mountain and convenient connection to the important road arteries Cherni Vrah Blvd. and the Ring Road. The area offers many amenities such as a public transport stop, restaurants, supermarkets, a gas station, a metro station (10 minutes walk) and a shopping center (1 km).

The building is the work of an investor with an impeccable reputation and a rich portfolio of completed and commissioned residential buildings in the capital. The building has 37 apartments, and 25 garages, 12 parking spaces and 30 storage rooms will be built in the underground level. The yard around the building will be landscaped and fenced to control access by outsiders.

PROPERTY ADVANTAGES:
• Spacious living room and master bedroom
• Southern exposure of the living room
• Heat pump and convectors included in the price
• Quality construction from a company with proven experience
• Building with courtyard and access control

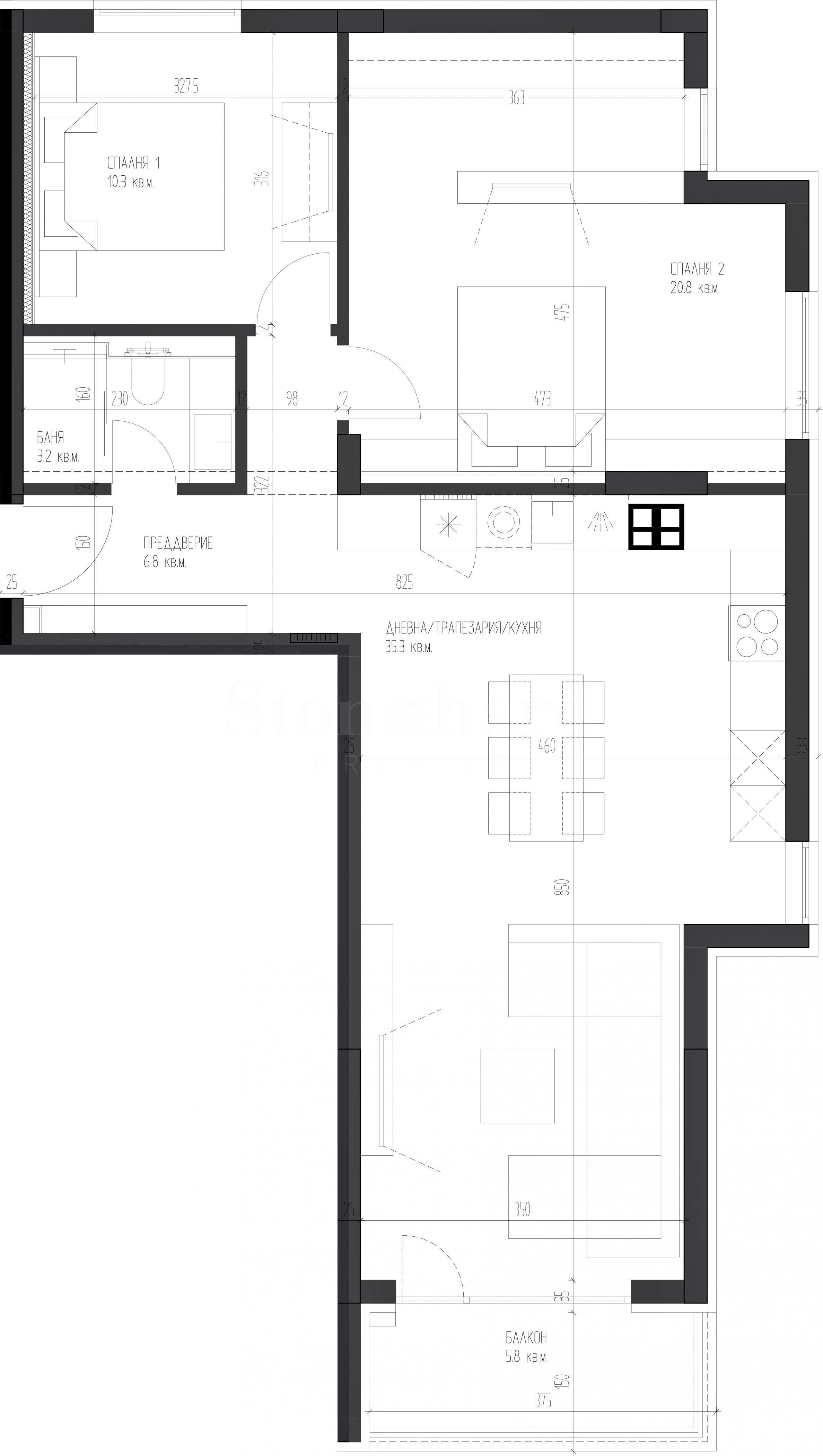
The apartment is located on the fourth floor with a built-up area of 97 m2. The living room is south-facing, and the bedrooms face north. It consists of an entrance hall, a spacious living room with a kitchenette of 36 m2., a large master bedroom - 21 m2. with the possibility of separating a wardrobe, a second bedroom - 12 m2., a bathroom with toilet and a terrace to the living room.

Start of construction activities - February 2023
Completion of the site - 2025

Payment plan:
30% of the apartment value upon signing a Preliminary Contract
30% of the apartment value upon receipt of Act 14
30% of the apartment value upon receipt of Act 15
10% upon commissioning of the building with Act 16

Other apartments of different sizes and prices are offered in the building, for more information do not hesitate to contact the broker responsible for the offer!




Viewings
We are ready to organize a viewing of this property at a time convenient for you. Please contact the responsible estate agent and inform them when you would like to have viewings arranged. We can also help you with flight tickets and hotel booking, as well as with travel insurance.

Property reservation
You can reserve this property with a non-refundable deposit of 2,000 Euro, payable by credit card or by bank transfer to our company bank account. After receiving the deposit the property will be marked as reserved, no further viewings will be carried out with other potential buyers, and we will start the preparation of the necessary documents for completion of the deal. Please contact the responsible estate agent for more information about the purchase procedure and the payment methods.

After sale services
We are a reputable company with many years of experience in the real estate business. Thus, we will be with you not only during the purchase process, but also after the deal is completed, providing you with a wide range of additional services tailored to your requirements and needs, so that you can fully enjoy your property in Bulgaria. The after sale services we offer include property insurance, construction and repair works, furniture, accounting and legal assistance, renewal of contracts for electricity, water, telephone and many more.
Our office contacts
Our office contacts

Location on the map

APPROXIMATE LOCATION
Send an inquiry for more information
Our office contacts
Your name*
Your email*
Your mobile number*

“Stonehard Marketing” Ltd. protects your personal data and follows the company’s Privacy Policy , in accordance with the requirements of Regulation (EU) No. 2016/679. In the next step, you will be able to allow or refuse us to store and operate your personal data. Make your choice from the email we will send you after we receive your inquiry.

More properties with similar characteristics
SECONDARY
SALE
COMPLETED
PROJECT

Two-bedroom apartment with two terraces and an underground parking space in the Kosher complex

Manastirski Livadi - East / Sofia / Sofia / Bulgaria map

Area: 129 m 2

Price: 580 000 € /// 4 496 €/m 2

Comfortable family homes in a new building next to Tsar Boris III Blvd.

Lagera / Sofia / Sofia / Bulgaria map

Property prices: 175 000 - 450 000

Prices per m²: 1 997 - 2 234 €/m 2

Boutique building at the foot of Vitosha mountain - Boyana quarter

Boyana / Sofia / Sofia / Bulgaria map

Property prices: 170 181 - 712 380(excluding VAT)

Prices per m²: 2 600 - 2 900 €/m 2 (excluding VAT)

...As a proven specialist, Stonehard PREMIER works on the market positioning and sales of numerous new construction projects, the implementation of which has been entrusted to us by leading entrepreneurial companies in Bulgaria and abroad...

Select this option and we will notify you by email if there are any changes to the offer status, for example:

• Price change;

• The property entered into a promotional offer;

• The property is reserved or sold;

• Other news related to the property.

• The property is removed from sale;

You can easily unsubscribe from notifications whenever you want.
The area of properties in Dubai / UAE is calculated in square feet. All areas in this offer are automatically converted to square meters using the formula 1 sq.m = 10.7639 sq.ft.
The landlord pays for electricity, water, heating/cooling, internet, cable TV and solid waste disposal.
The original price of the property is stated in the local currency, the dirham (AED). The price stated in a currency other than the dirham is indicative and is automatically calculated using a cross rate that we update 4 times a day. Therefore, the price stated in a currency other than the dirham (AED) varies constantly, although within small limits.
Prices are approximate. For an absolutely accurate price calculation and offer, please contact the responsible consultant!
Select this option and you will start receiving new offers with a similar investment subject and located in the same area.
You will receive all new offers and current information about our activities by email.
Given the current strong sales and market dynamics, the prices and availability of vacant properties in this project indicated on our site may differ slightly from the current ones.
To receive absolutely correct information about the vacant properties available for sale in the project and their current prices, please contact our office at the contact information provided.
We make every effort to keep our price lists absolutely up-to-date and correct, but this is often impossible, given the large number of new projects in our catalog and the highly dynamic sales.
Thank you for your understanding!