Four-room apartment with two terraces, next to "Mizia" metro station and NBU
Price:
376 440 € (2 000 €/m 2)
*The prices and availability of vacant properties in the project are indicative. For up-to-date pricing information, please contact us!
Ref. Number: STO-128805 / 3055
Location: Ovcha Kupel 2 / Sofia map
Building/complex type: Residential
Building/complex class: Standard
Housing areas: 188.22 m 2
Types of properties in the building/complex: Large apartments
Ref. Number: STO-128805 / 3055
Location: Ovcha Kupel 2 / Sofia
Building/complex type: Residential
Building/complex class: Standard
Housing areas: 188.22 m 2
Types of properties in the building/complex: Large apartments
There is Act 15! Expected completion - 04.2026
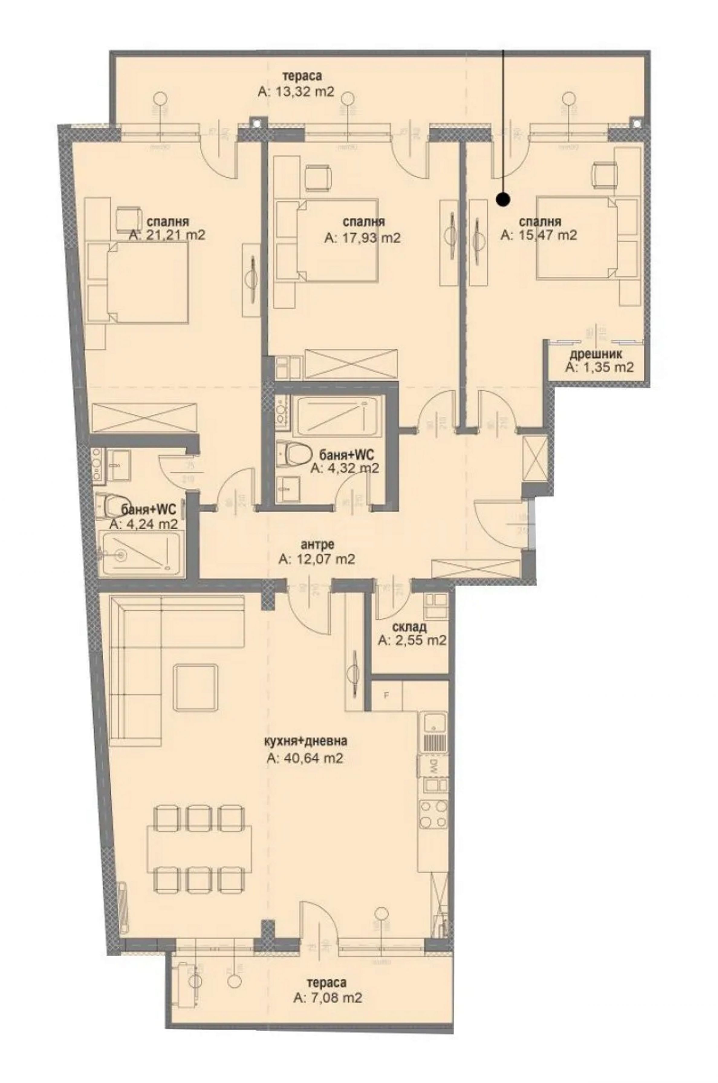
The property is located on the 9th floor and has a total area of 188.22 sq m. It is offered in a state of completion according to BDS.
The exposure is western.
Distribution:
entrance hall, storage room, bathroom with toilet;
living room with kitchen area and terrace of 7.08 sq m;
two bedrooms, one with a closet;
large bedroom-3 with private bathroom;
terrace of 13.32 sq m with access from the three bedrooms. Location
The area has quick and easy access to the center and all points of the city via main road boulevards. Within walking distance are public transport stops, the "Gorna Banya" metro station, supermarkets, medical facilities, schools, kindergartens and the New Bulgarian University.
The project consists of two buildings - A and B:
Building A is residential, distributed over 10 floors with a total of 44 apartments with functional and spacious rooms. On the ground floor there are 2 shops.
Building B is designed on 5 levels, with 9 offices with an area of under 100 sq m and one office maisonette with an area of over 100 sq m. Parking is provided with 57 underground parking spaces, of which 46 are intended for the residences and the rest for the office areas.
Technical characteristics:
reinforced concrete structure of mixed type - beamless and beam;
flat roofs with hydro- and thermal insulation;
enclosing walls with 25 cm bricks and partition walls with 12 cm bricks;
gas heating;
5-chamber PVC windows with an interrupted thermostat and low-emission glass units. We look forward to your inquiry.
If you would like to arrange a viewing of a property that interests you, or to visit one of our offices, please contact us. To arrange a day and time for a meeting or viewing, you can call the phone number listed in the ad or send an inquiry via e-mail. Our consultant will assist you with all the necessary details and will arrange a time convenient for you.
Are you looking for the right property for you?
Do not hesitate to contact us and tell us about your needs and preferences. Our team will conduct a thorough market research to offer you properties that exactly meet your criteria. We have an exceptional portfolio of high-quality and exclusive homes that are available only to our clients. To be the first to receive information about them – contact us.
Additional services
As a valued client of our company, you will have the privilege of using the services of our experienced legal team completely free of charge. In addition, we offer comprehensive solutions, including property insurance, free financial consulting, as well as favorable financing conditions. Our services also extend to the field of resale, rental and property management. We provide high-quality renovation and furniture through specialized companies that are part of our corporate group and are our long-standing professional partners.
Viewings
We are ready to organize a viewing of this property at a time convenient for you. Please contact the responsible estate agent and inform them when you would like to have viewings arranged. We can also help you with flight tickets and hotel booking, as well as with travel insurance.
Property reservation
You can reserve this property with a non-refundable deposit of 2,000 Euro, payable by credit card or by bank transfer to our company bank account. After receiving the deposit the property will be marked as reserved, no further viewings will be carried out with other potential buyers, and we will start the preparation of the necessary documents for completion of the deal. Please contact the responsible estate agent for more information about the purchase procedure and the payment methods.
After sale services
We are a reputable company with many years of experience in the real estate business. Thus, we will be with you not only during the purchase process, but also after the deal is completed, providing you with a wide range of additional services tailored to your requirements and needs, so that you can fully enjoy your property in Bulgaria. The after sale services we offer include property insurance, construction and repair works, furnishing, accounting and legal assistance, renewal of contracts for electricity, water, telephone and many more.
Location on the map
Residential building with two entrances in an area with a metro and key transport links
Hadji Dimitar / Sofia / Sofia / Bulgaria map
Property prices: 175 000 - 410 000 €
Prices per m²: 2 547 - 2 640 €/m 2
SALE
PROJECT
Three-bedroom apartment in an innovative complex with Act 16 in Boyana district
Boyana / Sofia / Sofia / Bulgaria map
Building/complex class: High standard
Area: 161.51 m 2
Price: 452 228 € /// 2 800 €/m 2
SALE
PROJECT
Panoramic four-bedroom apartment in Krastova Vada district in a high-class building
Krustova Vada / Sofia / Sofia / Bulgaria map
Area: 227.92 m 2
Price: 651 851 € /// 2 860 €/m 2
Select this option and we will notify you by email if there are any changes to the offer status, for example:
• Price change;
• The property entered into a promotional offer;
• The property is reserved or sold;
• Other news related to the property.
• The property is removed from sale;
You can easily unsubscribe from notifications whenever you want.• Changes to the terms of the offer;
• Change in the amount of the investment;
• The subject of the investment has been fully realized;
• The offer has expired.
You can easily unsubscribe if you decide in the future that you no longer want to follow this offer.
To receive absolutely correct information about the vacant properties available for sale in the project and their current prices, please contact our office at the contact information provided.
We make every effort to keep our price lists absolutely up-to-date and correct, but this is often impossible, given the large number of new projects in our catalog and the highly dynamic sales.
Thank you for your understanding!



...As a proven specialist, Stonehard PREMIER works on the market positioning and sales of numerous new construction projects, the implementation of which has been entrusted to us by leading entrepreneurial companies in Bulgaria and abroad...