Three-room apartment in a new complex next to The Mall in Sofia

on the map

Price:

Price upon request ()

*The prices and availability of vacant properties in the project are indicative. For up-to-date pricing information, please contact us!

Ref. Number: SOF-118131 / 3508

Location: Poligona / Sofia map

Building/complex type: Residential

Housing areas: 101.67 m 2

Types of properties in the building/complex: 2-bedroom apartments

Ref. Number: SOF-118131 / 3508

Location: Poligona / Sofia

Building/complex type: Residential

Building/complex class:  

Housing areas: 101.67 m 2

Types of properties in the building/complex: 2-bedroom apartments

Project description
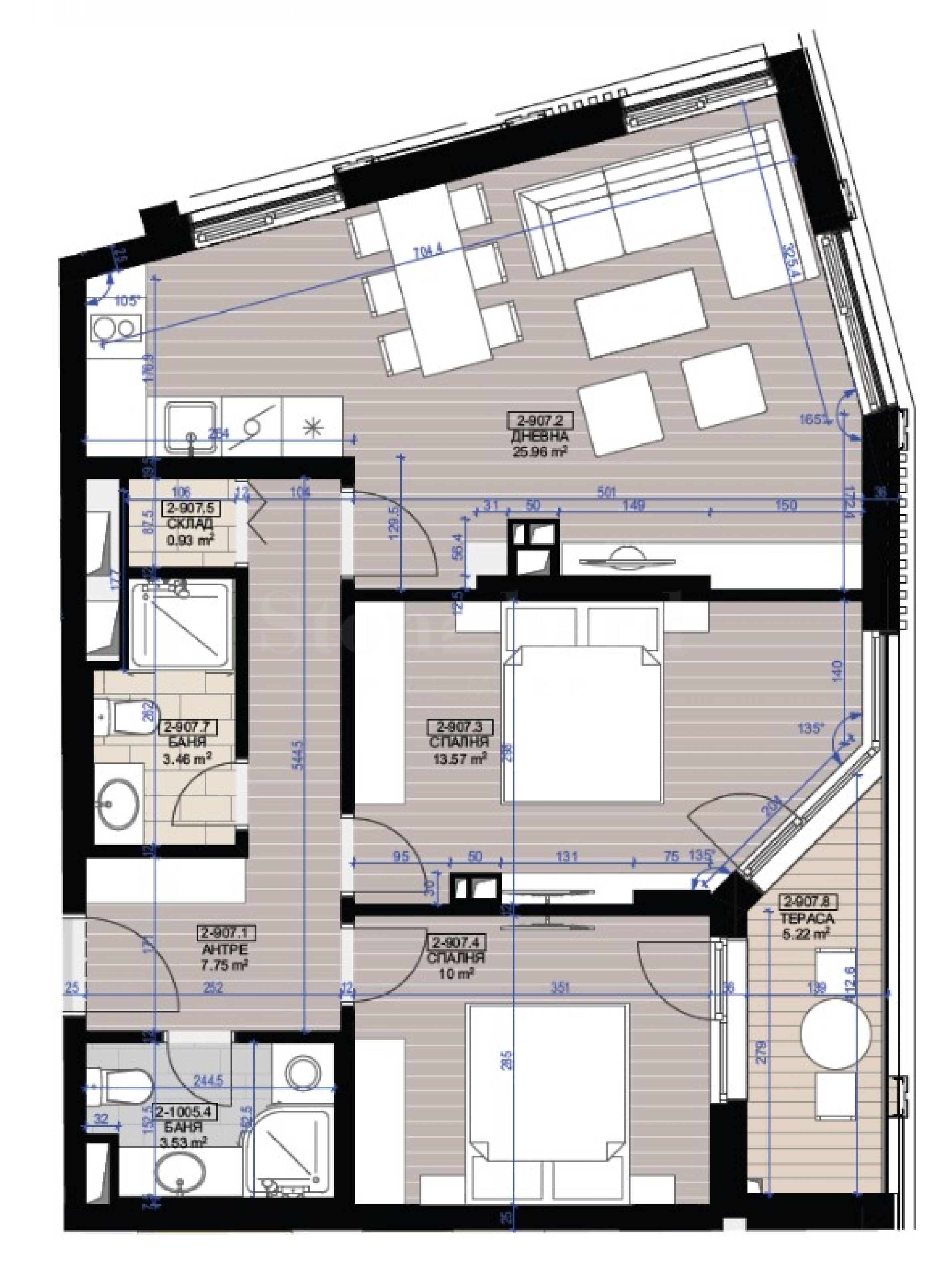
We present for sale a spacious two-bedroom apartment in a new complex next to The Mall in Sofia, "Poligona" quarter.

The property is located on the 9th floor and has a total area of 101.67 sq m, facing north-east.

The apartment is being sold in a state of completion according to Bulgarian Construction Standards. There is an option for "turnkey" completion, for which two design options have been developed.

*The offer price is according to Payment Plan No. 3 and does not include VAT. Contact the responsible broker!

About the building

The complex is under construction and is planned to be completed with Act 16 in 2026.

Designed by two 10-story buildings, with an extremely modern vision, this complex offers a concept for a truly green and active lifestyle. Beautifully designed alleys, exotic greenery, outdoor sports areas are just part of the ambition to build a green oasis in the capital. Health care is also complemented by its own sports center in the building, which the homeowners can use freely.

Location

It is located in a convenient and strategic location next to The Mall on Tsarigradsko Shose Blvd., with quick access within 5 minutes by car to the city center, Sofia Airport and with direct connection to the Trakia highway. The location makes it incomparable with its ideal communication in the dynamics of the city. The Sofia Municipality is also planning to build a metro station next to the building.

The complex is also attractive in terms of investment thanks to its proximity to Arena Armeets, Sofia Tech Park and a number of other office buildings in this rapidly developing area.

First-class construction

The buildings will be built according to the most modern construction standards, combining exceptional materials with energy-efficient solutions and ecological technologies for unparalleled luxury and comfort.

The central role in the unique interior of the large-scale entrance spaces is occupied by a breathtaking atrium on two floors. The elevators are smart, fast and with a large capacity. As a benchmark for style and quality, they implement the latest achievements in this field.

There are a total of 240 apartments, of two-, three- and multi-room types, with comfortable layouts. The properties will feature wonderful panoramic views from the higher floors and cozy gardens from the ground floor apartments.

For security, the complex is equipped with video surveillance, automated access control, and motion sensors.

Contact us for a professional consultation!

Viewings
We are ready to organize a viewing of this property at a time convenient for you. Please contact the responsible estate agent and inform them when you would like to have viewings arranged. We can also help you with flight tickets and hotel booking, as well as with travel insurance.

Property reservation
You can reserve this property with a non-refundable deposit of 2,000 Euro, payable by credit card or by bank transfer to our company bank account. After receiving the deposit the property will be marked as reserved, no further viewings will be carried out with other potential buyers, and we will start the preparation of the necessary documents for completion of the deal. Please contact the responsible estate agent for more information about the purchase procedure and the payment methods.

After sale services
We are a reputable company with many years of experience in the real estate business. Thus, we will be with you not only during the purchase process, but also after the deal is completed, providing you with a wide range of additional services tailored to your requirements and needs, so that you can fully enjoy your property in Bulgaria. The after sale services we offer include property insurance, construction and repair works, furniture, accounting and legal assistance, renewal of contracts for electricity, water, telephone and many more.
Our office contacts
Our office contacts

Location on the map

APPROXIMATE LOCATION
Send an inquiry for more information
Our office contacts
Your name*
Your email*
Your mobile number*

“Stonehard Marketing” Ltd. protects your personal data and follows the company’s Privacy Policy , in accordance with the requirements of Regulation (EU) No. 2016/679. In the next step, you will be able to allow or refuse us to store and operate your personal data. Make your choice from the email we will send you after we receive your inquiry.

More properties with similar characteristics
NEW
LISTING
SECONDARY
SALE
COMPLETED
PROJECT

New, 2-bedroom apartment with a view of Vitosha Mountain, near South Park

Gotse Delchev / Sofia / Sofia / Bulgaria map

Area: 143 m 2

Price: 460 000 € /// 3 217 €/m 2

NEW
LISTING

Multi-family residential building with a landscaped yard and various types of apartments in the "Malinova Dolina" district

Malinova Dolina / Sofia / Sofia / Bulgaria map

Property prices: Price upon request

NEW
LISTING
SECONDARY
SALE
COMPLETED
PROJECT

Two-bedroom apartment in a modern new building with Act 16 in "Malinova Dolina"

Malinova Dolina / Sofia / Sofia / Bulgaria map

Area: 104.99 m 2

Price: 273 000 € /// 2 600 €/m 2

...As a proven specialist, Stonehard PREMIER works on the market positioning and sales of numerous new construction projects, the implementation of which has been entrusted to us by leading entrepreneurial companies in Bulgaria and abroad...

Select this option and we will notify you by email if there are any changes to the offer status, for example:

• Price change;

• The property entered into a promotional offer;

• The property is reserved or sold;

• Other news related to the property.

• The property is removed from sale;

You can easily unsubscribe from notifications whenever you want.
The area of properties in Dubai / UAE is calculated in square feet. All areas in this offer are automatically converted to square meters using the formula 1 sq.m = 10.7639 sq.ft.
The landlord pays for electricity, water, heating/cooling, internet, cable TV and solid waste disposal.
The original price of the property is stated in the local currency, the dirham (AED). The price stated in a currency other than the dirham is indicative and is automatically calculated using a cross rate that we update 4 times a day. Therefore, the price stated in a currency other than the dirham (AED) varies constantly, although within small limits.
Prices are approximate. For an absolutely accurate price calculation and offer, please contact the responsible consultant!
Select this option and you will start receiving new offers with a similar investment subject and located in the same area.
You will receive all new offers and current information about our activities by email.
Given the current strong sales and market dynamics, the prices and availability of vacant properties in this project indicated on our site may differ slightly from the current ones.
To receive absolutely correct information about the vacant properties available for sale in the project and their current prices, please contact our office at the contact information provided.
We make every effort to keep our price lists absolutely up-to-date and correct, but this is often impossible, given the large number of new projects in our catalog and the highly dynamic sales.
Thank you for your understanding!