Four-bedroom apartment in Beyond - a building with amenities 100 m from the sea in Kavala
Price:
PRICE UPON REQUEST
*The prices and availability of vacant properties in the project are indicative. For up-to-date pricing information, please contact us!
Ref. Number: CH-GR-139048 / 5132
Location: Kavala map
Building/complex type: Residential
Building/complex class: Standard
Housing areas: 150.68 m 2
Types of properties in the building/complex: 3-bedroom apartments
Ref. Number: CH-GR-139048 / 5132
Location: Kavala
Building/complex type: Residential
Building/complex class: Standard
Housing areas: 150.68 m 2
Types of properties in the building/complex: 3-bedroom apartments
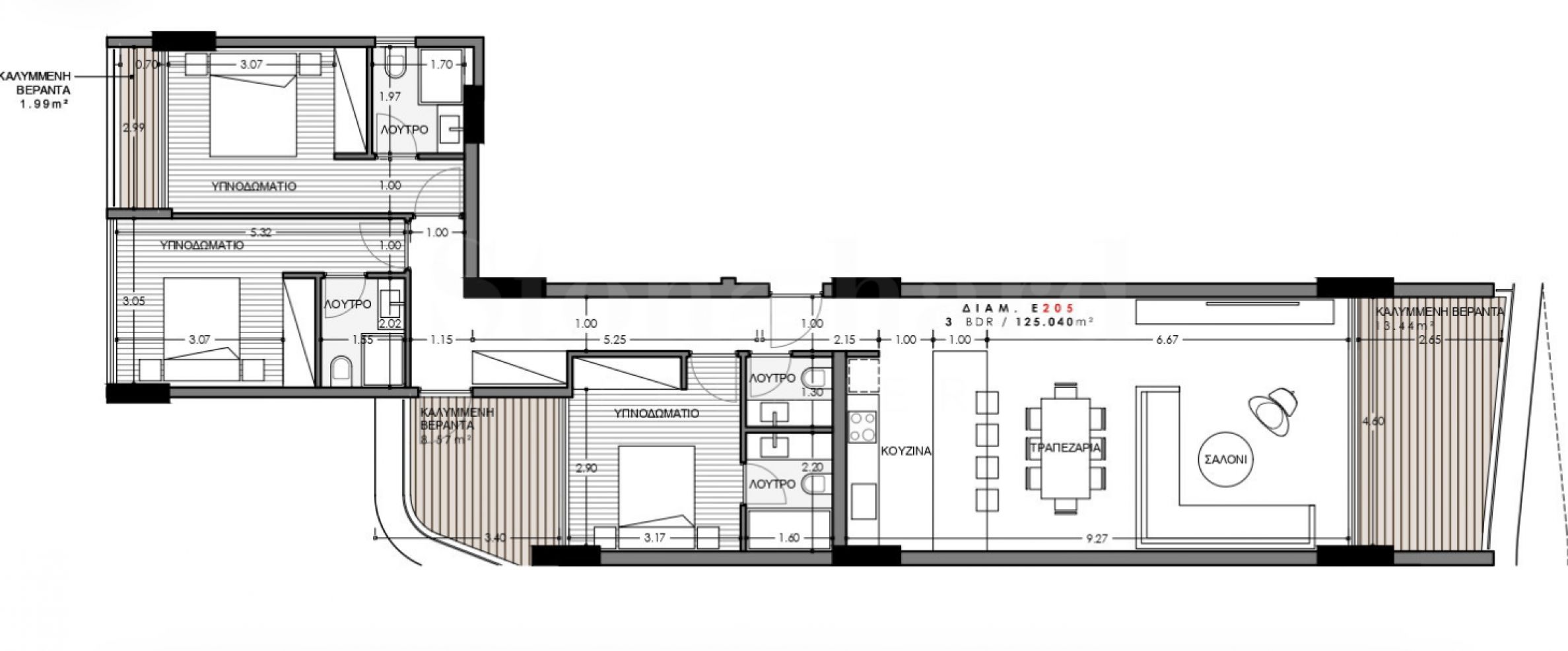
The apartment we are presenting has a total area of 150.68 sq m and is located on the fourth floor. The layout includes a bright and spacious living room with kitchen and dining area, three bedrooms, each with its own bathroom, a separate guest toilet, as well as three terraces offering diverse views and opportunities for relaxation.
Prestigious location with great potential
Kavala is a charming coastal town that combines a rich cultural heritage, remarkable architecture and a picturesque coastline. The area offers some of the most beautiful beaches – Amos, Batis, Toska and Palio, distinguished by crystal clear waters and fine golden sand. The coast is filled with cozy pubs and restaurants offering panoramic views, where you can enjoy fresh Mediterranean cuisine or a refreshing Greek frappe.
The building is situated in a key central location, less than 100 meters from the sea. In addition to beautiful views of the coast, it provides quick access to the city center, as well as numerous amenities - shops, restaurants, pharmacies and commercial establishments that make everyday life easier and more enjoyable.
The city offers a rich variety of cultural and historical landmarks, including the impressive Aqueduct, the authentic Old Town and the home of Muhammad Ali - each of them carrying the spirit of different historical eras. Kavala is not only a preferred tourist destination, but also an excellent place to live permanently, thanks to the well-developed infrastructure and year-round services.
About Beyond
After the complete renovation, the building will feature a completely new, modern look, inspired by contemporary architectural trends. The characteristic curved lines and stylish decorative elements on the facade will give the project a distinctive look in the coastal silhouette. The built-in facade lighting will highlight the architectural details and create an impressive atmosphere at night.
The building facilities three-, four- and five-bedroom apartments with well-thought-out layouts and a clean look, meeting the requirements of a modern lifestyle. The apartments will be offered turnkey - with high-end doors, flooring, lighting, fully equipped kitchens and elegantly finished bathrooms. The materials used are of proven quality and durability, providing an excellent basis for customizing the interior according to the individual style of the future owners.
In addition to the amenities in the residences, the project also offers a selection of common spaces designed to enhance the sense of comfort and seaside lifestyle. There will be a swimming pool with relaxation areas, designated barbecue areas and elegant pergolas with outdoor dining areas - ideal for shared moments with loved ones, accompanied by sea views and a fresh breeze.
Contact us for more information and professional consultation.
Viewings
We are ready to organize a viewing of this property at a time convenient for you. Please contact the responsible estate agent and inform them when you would like to have viewings arranged. We can also help you with flight tickets and hotel booking, as well as with travel insurance.
Property reservation
You can reserve this property with a non-refundable deposit of 2,000 Euro, payable by credit card or by bank transfer to our company bank account. After receiving the deposit the property will be marked as reserved, no further viewings will be carried out with other potential buyers, and we will start the preparation of the necessary documents for completion of the deal. Please contact the responsible estate agent for more information about the purchase procedure and the payment methods.
After sale services
We are a reputable company with many years of experience in the real estate business. Thus, we will be with you not only during the purchase process, but also after the deal is completed, providing you with a wide range of additional services tailored to your requirements and needs, so that you can fully enjoy your property in Bulgaria. The after sale services we offer include property insurance, construction and repair works, furniture, accounting and legal assistance, renewal of contracts for electricity, water, telephone and many more.
Location on the map
New apartments in a completely restored building 100 m from the sea in Kavala
Kavala / Kavala / Greece map
Building class: Standard
Property prices: PRICE UPON REQUEST
Apartments and houses in The Neapolis Harmony, 350 meters from the beach
Kavala / Kavala / Greece map
Building class: High standard
Property prices: 415 000 - 480 000 €
Prices per m²: 2 918 - 3 876 €/m 2
Select this option and we will notify you by email if there are any changes to the offer status, for example:
• Price change;
• The property entered into a promotional offer;
• The property is reserved or sold;
• Other news related to the property.
• The property is removed from sale;
You can easily unsubscribe from notifications whenever you want.• Changes to the terms of the offer;
• Change in the amount of the investment;
• The subject of the investment has been fully realized;
• The offer has expired.
You can easily unsubscribe if you decide in the future that you no longer want to follow this offer.
To receive absolutely correct information about the vacant properties available for sale in the project and their current prices, please contact our office at the contact information provided.
We make every effort to keep our price lists absolutely up-to-date and correct, but this is often impossible, given the large number of new projects in our catalog and the highly dynamic sales.
Thank you for your understanding!



...As a proven specialist, Stonehard PREMIER works on the market positioning and sales of numerous new construction projects, the implementation of which has been entrusted to us by leading entrepreneurial companies in Bulgaria and abroad...