2-bedroom apartment with large private yard, close to Ring Mall
Price:
183 981 € (2 049 €/m 2)
*The prices and availability of vacant properties in the project are indicative. For up-to-date pricing information, please contact us!
Ref. Number: SOF-126089 / 3905
Location: Malinova Dolina / Sofia map
Building/complex type: Residential
Housing areas: 89.77 m 2
Types of properties in the building/complex: 2-bedroom apartments
Ref. Number: SOF-126089 / 3905
Location: Malinova Dolina / Sofia
Building/complex type: Residential
Building/complex class:
Housing areas: 89.77 m 2
Types of properties in the building/complex: 2-bedroom apartments
We present a three-room apartment of 89.77 m2 for sale, in a gated complex of two boutique and modern buildings in Malinova Dolina district.
Location
The complex is located in a convenient location near key commercial establishments, Ring Mall, kindergarten and Ring Road. The neighborhood is located in the southern part of Sofia, providing tranquility and fresh air at the foot of the mountain, with easy and quick access to the central areas of the city.
About the house
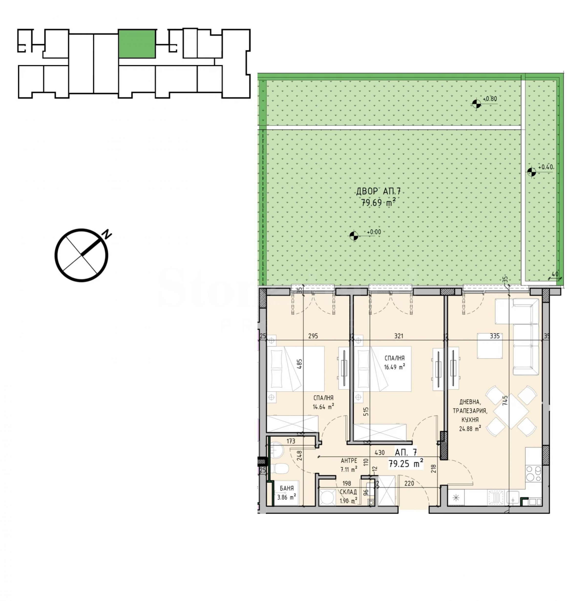
The apartment is located on the ground floor, with a net area of 79.25 m2 and includes:
living room with dining room and kitchen;
bathroom/toilet;
two bedrooms;
hall, warehouse;
yard 79.69 m2. It is offered in the degree of completion according to BDS.
The offer price is according to Payment scheme 1 : 50%/30%/10%/10%.
*Payment scheme 2: 30%/30%/30%/10%.
*Payment scheme 3: 20%/0%/0%/80%.
A quality and energy-efficient home
The buildings have low energy consumption , with a minimal ecological footprint, monolithic construction with a reinforced concrete structure of columns and slabs, as well as partition walls made of multi-chamber Porotherm 25 ceramic blocks from Wienerberger, which guarantee stability and efficiency of heat and sound insulation.
The complex is designed with facades providing optimal glazing of both the apartments and the common areas, with the aim of high energy efficiency and maximum penetration of natural light. Measures for high fire safety and a high degree of fire resistance are also laid down. The construction is designed to withstand seismic loads up to the IX degree on the Medvedev-Sponheuer-Karnik scale.
The basement is designed with a waterproofing bath, providing complete protection from moisture under the foundation and on the walls. The waterproofing is composed of two layers of bituminous membrane, made of specially modified bitumen with the addition of thermoplastic elastomers (SBS). In addition, the walls are protected with 5 cm XPS insulation and an embossed HDPE membrane for added resistance. This system guarantees effective protection and drainage of basement foundations and walls, providing a reliable solution against atmospheric and soil moisture.
The highest class PVC joinery (energy class A++) Sch?co LivIng 82 was chosen for the buildings, with an innovative 7-chamber plastic window system and triple glazing with excellent thermal insulation values. High noise insulation and protection from cold, moisture and drafts are guaranteed by the additional EPDM seals, providing peace and quiet to your home.
The construction of solar installations is also planned in order to minimize operating costs.
Inside the buildings:
• High class elevator Orona, with stops on each floor and a capacity of 6 people, access for people with disabilities;
• Connections for gas and pipe installations for each apartment to wiring;
• Electric power up to 10 Kw per apartment, guaranteeing trouble-free operation of all systems;
• High-class entrance armored door Solid 55, with the possibility of additional security;
• Video surveillance and controlled access to the building.
The complex also has a richly landscaped garden , which includes recreation areas, a children's playground and a separate area for pets.
Special places are provided for outdoor units of air conditioners with built-in piping and drainage, for maximum convenience and aesthetics.
Apartments
The complex includes a total of 138 apartments, with 125 underground garages and parking spaces and 46 above-ground parking spaces, providing flexible parking options. The apartments are designed with attention to every detail and are characterized by spacious and bright rooms, with practical and open layouts that create a feeling of comfort and allow the combination of neighboring dwellings in case of expansion.
The apartments are one-room, two-room, three-room and four-room apartments.
We await your inquiry
If you would like to arrange a viewing of a property you are interested in or visit one of our offices, please contact us. To arrange a day and time for a meeting or inspection, you can call the phone number specified in the ad or send an inquiry by e-mail. Our consultant will assist you with all the necessary details and arrange a convenient time for you.
Are you looking for the right property for you?
Do not hesitate to contact us and tell us about your needs and preferences. Our team will conduct a thorough market research to offer you properties that exactly meet your criteria. We have an exceptional portfolio of high quality and exclusive homes that are only available to our clients. To be the first to receive information about them - contact us.
Additional services
As a valued client of our company, you will have the privilege of using the services of our experienced legal team completely free of charge. In addition, we offer complex solutions including property insurance, free financial consultation, as well as favorable financing conditions. Our services also extend to resale, rental and property management. We provide high-quality repair work and furniture through specialized companies that are part of our corporate group and are our long-term professional partners.
Viewings
We are ready to organize a viewing of this property at a time convenient for you. Please contact the responsible estate agent and inform them when you would like to have viewings arranged. We can also help you with flight tickets and hotel booking, as well as with travel insurance.
Property reservation
You can reserve this property with a non-refundable deposit of 2,000 Euro, payable by credit card or by bank transfer to our company bank account. After receiving the deposit the property will be marked as reserved, no further viewings will be carried out with other potential buyers, and we will start the preparation of the necessary documents for completion of the deal. Please contact the responsible estate agent for more information about the purchase procedure and the payment methods.
After sale services
We are a reputable company with many years of experience in the real estate business. Thus, we will be with you not only during the purchase process, but also after the deal is completed, providing you with a wide range of additional services tailored to your requirements and needs, so that you can fully enjoy your property in Bulgaria. The after sale services we offer include property insurance, construction and repair works, furniture, accounting and legal assistance, renewal of contracts for electricity, water, telephone and many more.
Location on the map
MANDATE
SALE
PROJECT
Luxuriously furnished two-bedroom apartment in RUHouse 2, on Cherni Vrah Blvd.
Krustova Vada / Sofia / Sofia / Bulgaria map
Building/complex class: Luxurious
Area: 120.49 m 2
Price: 481 960 € /// 4 000 €/m 2
SALE
PROJECT
Designer two-bedroom apartment in a new complex in Malinova Dolina
v.z.Malinova dolina / Sofia / Sofia / Bulgaria map
Area: 178.40 m 2
Price: PRICE UPON REQUEST ///
SALE
PROJECT
Two-bedroom apartment with two terraces and an underground parking space in the Kosher complex
Manastirski Livadi - East / Sofia / Sofia / Bulgaria map
Area: 129 m 2
Price: 580 000 € /// 4 496 €/m 2
Select this option and we will notify you by email if there are any changes to the offer status, for example:
• Price change;
• The property entered into a promotional offer;
• The property is reserved or sold;
• Other news related to the property.
• The property is removed from sale;
You can easily unsubscribe from notifications whenever you want.• Changes to the terms of the offer;
• Change in the amount of the investment;
• The subject of the investment has been fully realized;
• The offer has expired.
You can easily unsubscribe if you decide in the future that you no longer want to follow this offer.
To receive absolutely correct information about the vacant properties available for sale in the project and their current prices, please contact our office at the contact information provided.
We make every effort to keep our price lists absolutely up-to-date and correct, but this is often impossible, given the large number of new projects in our catalog and the highly dynamic sales.
Thank you for your understanding!



...As a proven specialist, Stonehard PREMIER works on the market positioning and sales of numerous new construction projects, the implementation of which has been entrusted to us by leading entrepreneurial companies in Bulgaria and abroad...