Ref. Number: LXH-115137 / 3181
Location: Sozopol map
Building/complex type: Residential
Housing areas: 57.08 m 2
Types of properties in the building/complex: Studios
Ref. Number: LXH-115137
Location: Sozopol
Building/complex type: Жилищен
Building/complex class:
Housing areas: 57.08 m 2
Types of properties in the building/complex: Studios
We present a studio for sale, in a complex with a unique location in the heart of the Bulgarian Black Sea coast, meters from the beach in the Arkutino area, part of the Ropotamo Reserve. The luxurious coastal complex is located only 10 km from Sozopol and 40 km south of the city of Burgas.
The complex has Act 14.
Planned completion - December 2025
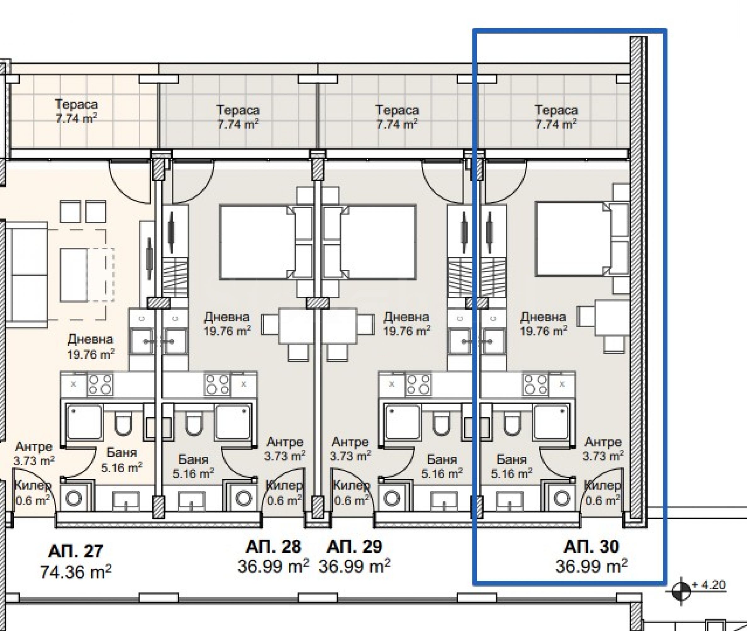
The property of 57.08 sq m is located on the 2nd floor, facing west, has a terrace of 7.74 sq m, overlooking the park.
Concept
The concept of the complex is thought out to the smallest detail, the territory, the interior of the apartments and the exterior of the buildings are harmoniously selected with a sense of symbiosis with the surrounding natural environment of the reserve. The apartments are offered completed "turnkey", in style and color fully consistent with the concept of the complex. All activities are carried out in compliance with the regulatory requirements for the quality of construction and installation works and the materials used.
The complex consists of three residential buildings with a total of 74 apartments and a boutique hotel. Studios, apartments with 1, 2, 3 and 4 bedrooms, from 37 sq m of net area to 190 sq m of net area. Spacious townhouses with garages are also available.
Excellent amenities on the territory:
year-round maintenance and management of the complex;
24-hour live security and video surveillance;
parking;
an elegant restaurant with a breathtaking view;
Spa center;
outdoor infinity pool;
children's area;
beach area;
concierge services;
real estate management.
The indicated price is excluding VAT.
Viewings
We are ready to organize a viewing of this property at a time convenient for you. Please contact the responsible estate agent and inform them when you would like to have viewings arranged. We can also help you with flight tickets and hotel booking, as well as with travel insurance.
Property reservation
You can reserve this property with a non-refundable deposit of 2,000 Euro, payable by credit card or by bank transfer to our company bank account. After receiving the deposit the property will be marked as reserved, no further viewings will be carried out with other potential buyers, and we will start the preparation of the necessary documents for completion of the deal. Please contact the responsible estate agent for more information about the purchase procedure and the payment methods.
After sale services
We are a reputable company with many years of experience in the real estate business. Thus, we will be with you not only during the purchase process, but also after the deal is completed, providing you with a wide range of additional services tailored to your requirements and needs, so that you can fully enjoy your property in Bulgaria. The after sale services we offer include property insurance, construction and repair works, furniture, accounting and legal assistance, renewal of contracts for electricity, water, telephone and many more.
Location on the map
We present a studio for sale, in a complex with a unique location in the heart of the Bulgarian Black Sea coast, meters from the beach in the Arkutino area, part of the Ropotamo Reserve. The luxurious coastal complex is located only 10 km from Sozopol and 40 km south of the city of Burgas.
The complex has Act 14.
Planned completion - December 2025
The property of 57.08 sq m is located on the 2nd floor, facing west, has a terrace of 7.74 sq m, overlooking the park.
Concept
The concept of the complex is thought out to the smallest detail, the territory, the interior of the apartments and the exterior of the buildings are harmoniously selected with a sense of symbiosis with the surrounding natural environment of the reserve. The apartments are offered completed "turnkey", in style and color fully consistent with the concept of the complex. All activities are carried out in compliance with the regulatory requirements for the quality of construction and installation works and the materials used.
The complex consists of three residential buildings with a total of 74 apartments and a boutique hotel. Studios, apartments with 1, 2, 3 and 4 bedrooms, from 37 sq m of net area to 190 sq m of net area. Spacious townhouses with garages are also available.
Excellent amenities on the territory:
year-round maintenance and management of the complex;
24-hour live security and video surveillance;
parking;
an elegant restaurant with a breathtaking view;
Spa center;
outdoor infinity pool;
children's area;
beach area;
concierge services;
real estate management.
The indicated price is excluding VAT.
Viewings
We are ready to organize a viewing of this property at a time convenient for you. Please contact the responsible estate agent and inform them when you would like to have viewings arranged. We can also help you with flight tickets and hotel booking, as well as with travel insurance.
Property reservation
You can reserve this property with a non-refundable deposit of 2,000 Euro, payable by credit card or by bank transfer to our company bank account. After receiving the deposit the property will be marked as reserved, no further viewings will be carried out with other potential buyers, and we will start the preparation of the necessary documents for completion of the deal. Please contact the responsible estate agent for more information about the purchase procedure and the payment methods.
After sale services
We are a reputable company with many years of experience in the real estate business. Thus, we will be with you not only during the purchase process, but also after the deal is completed, providing you with a wide range of additional services tailored to your requirements and needs, so that you can fully enjoy your property in Bulgaria. The after sale services we offer include property insurance, construction and repair works, furniture, accounting and legal assistance, renewal of contracts for electricity, water, telephone and many more.
We present a studio for sale, in a complex with a unique location in the heart of the Bulgarian Black Sea coast, meters from the beach in the Arkutino area, part of the Ropotamo Reserve. The luxurious coastal complex is located only 10 km from Sozopol and 40 km south of the city of Burgas.
The complex has Act 14.
Planned completion - December 2025
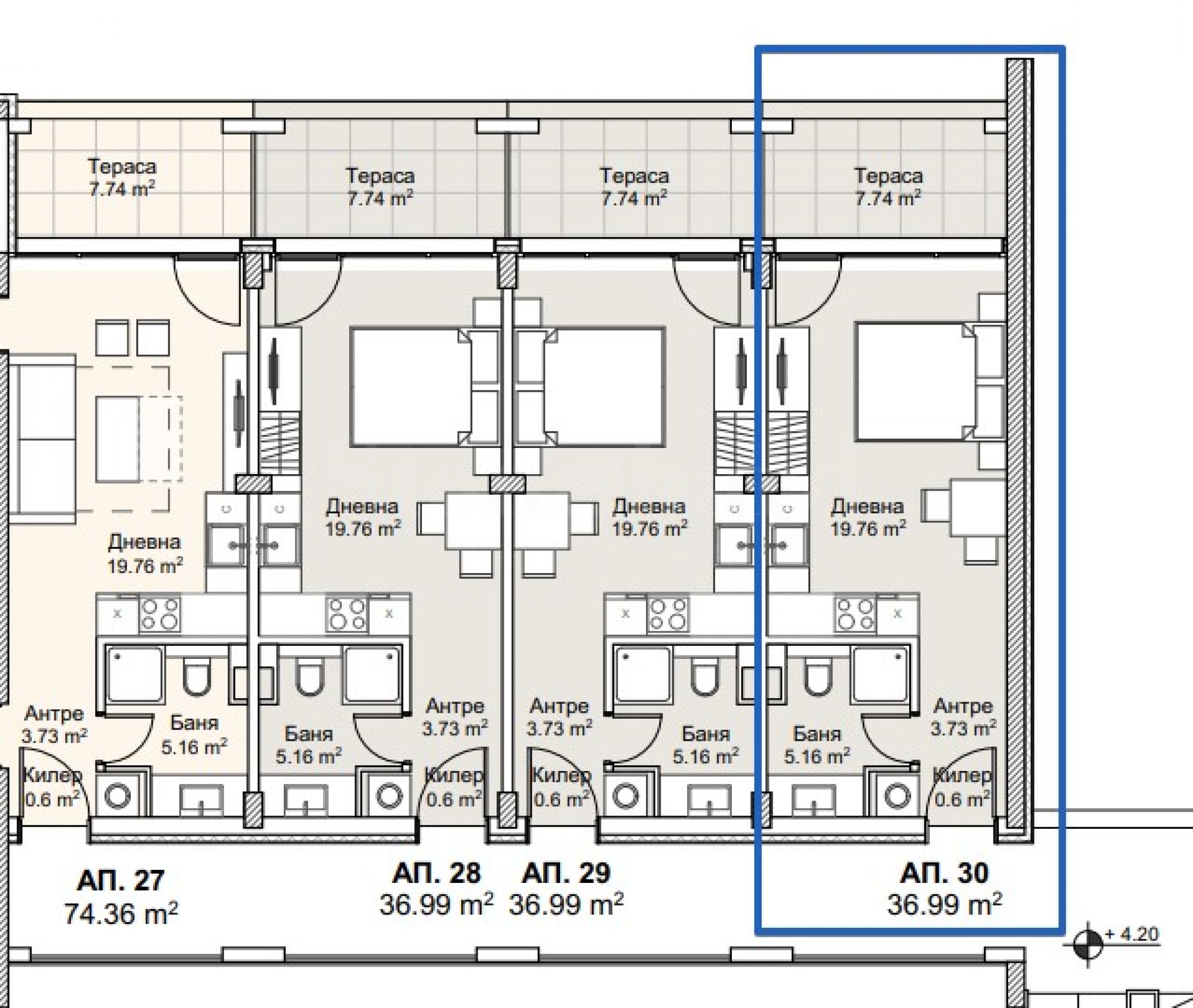
The property of 57.08 sq m is located on the 2nd floor, facing west, has a terrace of 7.74 sq m, overlooking the park.
Concept
The concept of the complex is thought out to the smallest detail, the territory, the interior of the apartments and the exterior of the buildings are harmoniously selected with a sense of symbiosis with the surrounding natural environment of the reserve. The apartments are offered completed "turnkey", in style and color fully consistent with the concept of the complex. All activities are carried out in compliance with the regulatory requirements for the quality of construction and installation works and the materials used.
The complex consists of three residential buildings with a total of 74 apartments and a boutique hotel. Studios, apartments with 1, 2, 3 and 4 bedrooms, from 37 sq m of net area to 190 sq m of net area. Spacious townhouses with garages are also available.
Excellent amenities on the territory:
year-round maintenance and management of the complex;
24-hour live security and video surveillance;
parking;
an elegant restaurant with a breathtaking view;
Spa center;
outdoor infinity pool;
children's area;
beach area;
concierge services;
real estate management.
The indicated price is excluding VAT.
Viewings
We are ready to organize a viewing of this property at a time convenient for you. Please contact the responsible estate agent and inform them when you would like to have viewings arranged. We can also help you with flight tickets and hotel booking, as well as with travel insurance.
Property reservation
You can reserve this property with a non-refundable deposit of 2,000 Euro, payable by credit card or by bank transfer to our company bank account. After receiving the deposit the property will be marked as reserved, no further viewings will be carried out with other potential buyers, and we will start the preparation of the necessary documents for completion of the deal. Please contact the responsible estate agent for more information about the purchase procedure and the payment methods.
After sale services
We are a reputable company with many years of experience in the real estate business. Thus, we will be with you not only during the purchase process, but also after the deal is completed, providing you with a wide range of additional services tailored to your requirements and needs, so that you can fully enjoy your property in Bulgaria. The after sale services we offer include property insurance, construction and repair works, furniture, accounting and legal assistance, renewal of contracts for electricity, water, telephone and many more.
Apartments in a new building of a popular complex in Kavatsite
Sozopol / Burgas / Bulgaria map
Property prices: 90 900 - 195 195 €
Prices per m²: 1 843 - 2 106 €/m 2
Luxury properties with a sea view, meters from the beach in Arcutino
Sozopol / Burgas / Bulgaria map
Completion: December, 2025
Property prices: 81 590 - 520 851 € (excluding VAT)
Prices per m²: 1 318 - 2 478 €/m 2 (excluding VAT)
Apartments in a new building of a hit complex in Kavatsite
Sozopol / Burgas / Bulgaria map
Completion: June, 2025
Property prices: 79 900 - 139 500 € (excluding VAT)
Prices per m²: 1 615 - 1 891 €/m 2 (excluding VAT)
Select this option and we will notify you by email if there are any changes to the offer status, for example:
• Price change;
• The property entered into a promotional offer;
• The property is reserved or sold;
• Other news related to the property.
• The property is removed from sale;
You can easily unsubscribe from notifications whenever you want.• Changes to the terms of the offer;
• Change in the amount of the investment;
• The subject of the investment has been fully realized;
• The offer has expired.
You can easily unsubscribe if you decide in the future that you no longer want to follow this offer.



...As a proven specialist, Stonehard PREMIER works on the market positioning and sales of numerous new construction projects, the implementation of which has been entrusted to us by leading entrepreneurial companies in Bulgaria and abroad...