Многостаен апартамент на две нива до метростанция "Мусагеница"
Цена:
463 580 € (2 032 €/м2)
*Указаните цени и наличности от свободни имоти в проекта са индикативни. За актуална ценова информация, моля свържете се с нас!
Реф. Номер: STO-122694 / 3320
Местоположение: кв. Дървеница / гр. София карта
Тип на сграда/комплекс: Жилищен
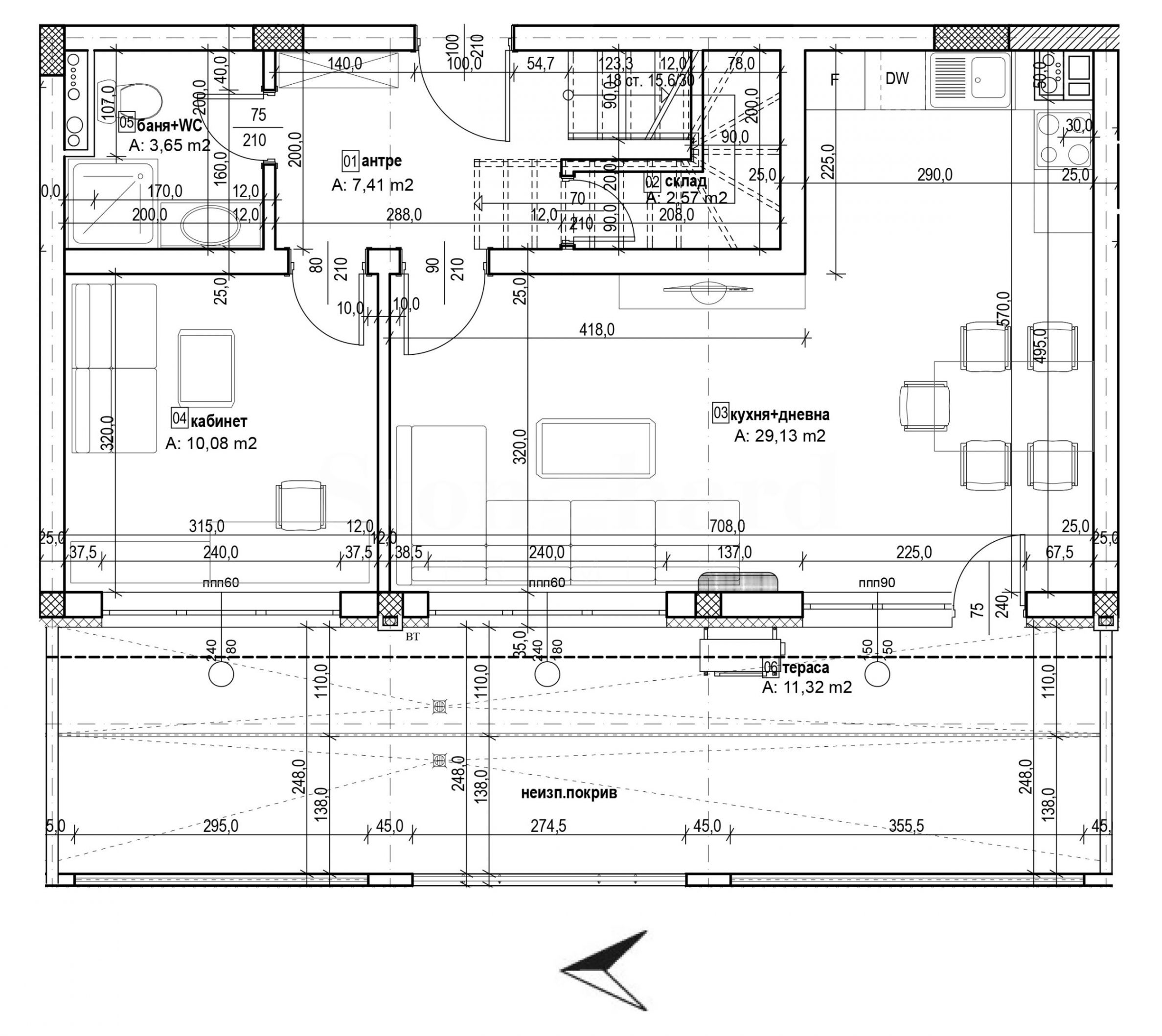
Площи на жилищата: 228.14 м2
Типове имоти в сградата/комплекса: Петстайни апартаменти, Многостайни апартаменти, Пентхауси
Реф. Номер: STO-122694 / 3320
Местоположение: кв. Дървеница / гр. София
Тип на сграда/комплекс: Жилищен
Клас на сградата/комплекса:
Площи на жилищата: 228.14 м2
Типове имоти в сградата/комплекса: Петстайни апартаменти, Многостайни апартаменти, Пентхауси
Имотът е разположен на 6-и и 7-и етаж и предлага изложение на юг, изток-запад.
Разпределение:
първо ниво - 74.46 кв.м: антре, дневна с кухня и трапезария, спалня/кабинет, баня/тоалетна, тераса, стълбище към 2-ро ниво;
второ ниво - 117.89 кв.м:три спални, две бани/тоалетни, два дрешника, мокро помещение, коридор, 2 тераси. Локация
Местоположението е отлично, в комуникативен район, с удобен достъп до центъра и всички точки на града. В близост са разположени спирки на градски транспорт, магазини, училища и детски градини, а парк "Въртопо" е на пешеходно разстояние. Имотите в този район са отличен избор не само за лично ползване, а и за инвестиция, поради многобройните университети, които са разположени в близост.
За сградата
Сградата се състои от три входа със 7 надземни нива, в които е включен партерен етаж. Има избор от офиси, магазини, двустайни, тристайни, многостайни имоти и апартаменти тип мезонет, които са функционално проектирани, с максимално просторни помещения и благоприятни изложения. Паркирането е решено с паркоместа и гаражи, разположени на подземно ниво и ниво партер.
Апартаментите се предлагат по БДС.
Има възможност за закупуване на паркоместа и гаражи.
Основната дейност на строително-инвестиционната компания, създадена през 2017 г., е инвестицията в строителство на нови и модерни жилищни сгради, с фокус върху качественото строителство и функционалността на новоизграждащите се сгради. До момента компанията има няколко жилищни сгради в портфолиото си предимно в южните квартали на София.
Очакваме Вашето запитване
Ако желаете да организирате оглед на имот, който Ви интересува, или да посетите някой от нашите офиси, моля свържете се с нас. За да уговорите ден и час за среща или оглед, можете да се обадите на посочения в обявата телефон или да изпратите запитване чрез електронната поща. Нашият консултант ще Ви съдейства с всички необходими подробности и ще уговори удобно за Вас време.
Търсите подходящия за Вас имот?
Не се колебайте да се свържете с нас и да ни разкажете за Вашите нужди и предпочитания. Нашият екип ще проведе задълбочено проучване на пазара, за да Ви предложи имоти, които точно отговарят на Вашите критерии. Разполагаме с изключително портфолио от висококачествени и ексклузивни жилища, които са достъпни само за нашите клиенти. За да сте първите, които ще получите информация за тях – свържете се с нас.
Допълнителни услуги
Като ценен клиент на нашата компания, Вие ще имате привилегията да ползвате напълно безплатно услугите на нашия опитен юридически екип. В допълнение, предлагаме комплексни решения, включващи имуществена застраховка, безплатна финансова консултация, както и изгодни условия за финансиране. Нашите услуги се разпростират и в сферата на препродажбата, отдаването под наем и управлението на имоти. Осигуряваме висококачествени ремонтни дейности и обзавеждане чрез специализирани фирми, които са част от нашата корпоративна група и са наши дългогодишни професионални партньори.
Местоположение на картата
ПРОЕКТ
Жилищна сграда предлагаща различни типове апартаменти в кв. Оборище
кв. Оборище / гр. София / София / България карта
Дата на завършване: Декември, 2025 г.
Цени на имотите: 365 000 - 2 610 000 € (без ДДС)
Цени на м²: 3 900 - 7 655 €/м2 (без ДДС)
ПРОДАЖБА
ПРОЕКТ
Тристаен апартамент с паркомясто във Flora Park
кв. Манастирски ливади - Изток / гр. София / София / България карта
Площ: 128.15 м2
Цена: 500 000 € /// 3 902 €/м2
ПРАВА
ПРОДАЖБА
ПРОЕКТ
Мезонет с голяма панорамна тераса с гледка към цяла София, до бул. "Сливница"
кв. Банишора / гр. София / София / България карта
Площ: 224.88 м2
Цена: 395 000 € /// 1 756 €/м2
Изберете тази опция и ще Ви уведомяваме по имейла при настъпили промени по статуса на офертата, например:
• Промяна на цената;
• Имотът влезе в промоционално предложение;
• Имотът бъде резервран или продаден;
• Други новости, свързани с имота.
• Имотът бъде свален от продажба;
Може да се отпишете от нотификациите лесно, когато пожелаете.• Промени по условията на офертата;
• Промяна в сумата на инвестицията;
• Предметът на инвестицията е изцяло реализиран;
• Валидността на офертата е изтекла.
Може лесно да се отпишете, ако в бъдеще решите, че повече не желаете да следите тази оферта.
За да получите абсолютно коректна информация относно свободните имоти, налични за продажба в проекта и техните актуални цени, моля свържете се с нашия офис на посочената информация за контакт.
Ние полагаме усилия, за да поддържаме нашите ценови листи абсолютно актуални и коректни, но често това е невъзможно, предвид големия брой нови проекти в нашия каталог и силно динамичните продажби.
Благодарим Ви за проявеното разбиране!



...В качеството си на доказан спецалист Stonehard PREMIER работи по пазарното позициониране и продажбите на множество проекти ново строителство, чиято реализация ни е поверена от водещи предприемачески компании в България и чужбина...