Třípokojový byt s třemi terasami, v novém domě s Akt 16
Cena:
550 000 € (bez DPH) (3 446 €/m² (bez DPH))
*Ceny a dostupnost volných nemovitostí v projektu jsou orientační. Pro aktuální informace o cenách nás prosím kontaktujte!
Referenční číslo: SOF-126235 / 3920
Umístění: Sofia mapa
Typ budovy/komplexu: Obytný
Obytné oblasti: 159.62 m²
Typy nemovitostí v budově/komplexu: Dvoupokojov? byty
Referenční číslo: SOF-126235 / 3920
Umístění: Sofia
Typ budovy/komplexu: Obytný
Třída budovy/komplexu:
Obytné oblasti: 159.62 m²
Typy nemovitostí v budově/komplexu: Dvoupokojov? byty
Výhodná lokalita
Budova se nachází na komunikativní lokalitě v čtvrti, v blízkosti supermarketu Fantastiko, vysokých škol a mateřských škol, Studentského parku, podniků a dalších. V blízkosti se nachází také stanice metra "G.M. Dimitrov" a mnoho autobusových zastávek.
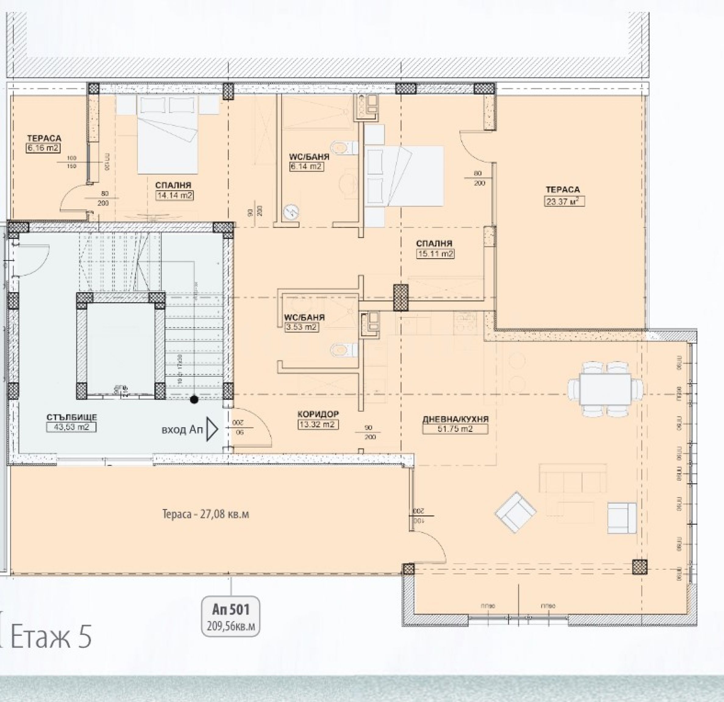
Byt je situován v 5. patře, s příznivou orientací na jih, východ a západ.
Dispozice:
obývací pokoj s kuchyňským koutem: 51,75 m², s terasou o rozloze 27,08 m²;
chodba: 13,32 m²;
ložnice 1: 15,11 m² se samostatnou terasou;
ložnice 2: 14,14 m² se samostatnou terasou;
dva koupelny s toaletou. K bytu patří také sklad/sklep, je zahrnut v ceně.
Lze zakoupit také podzemní parkovací místa za ceny od 30 000 eur bez DPH.
Kvalitní novostavba
Budova je navržena s monolitickou železobetonovou konstrukcí, v souladu se současnými evropskými směrnicemi. Fasáda se vyznačuje moderním a elegantním designem, zahrnujícím dekorativní prvky v světlých tónech. Disponuje 10 cm tepelnou izolací a PVC okny s trojitým zasklením pro obytnou část.
Je plánováno bohaté zazelenění jak ve vnitřním dvoře, tak v pěších zónách na straně ulice.
Vytápění je řešeno prostřednictvím centrálního zásobování teplem, jsou připraveny vývody pro bojler v koupelnách i pro klimatizace na fasádě.
Očekáváme Vaši poptávku
Pokud si přejete zorganizovat prohlídku nemovitosti, která Vás zajímá, nebo navštívit některou z našich kanceláří, prosím kontaktujte nás. Pro sjednání dne a času schůzky nebo prohlídky můžete zavolat na uvedené telefonní číslo v inzerátu nebo zaslat poptávku e-mailem. Náš konzultant Vám poskytne všechny potřebné informace a domluví Vám vhodný čas.
Hledáte vhodnou nemovitost pro Vás?
Neváhejte nás kontaktovat a sdělit nám své potřeby a preference. Náš tým provede důkladný průzkum trhu, aby Vám nabídl nemovitosti, které přesně odpovídají Vašim kritériím. Disponujeme výjimečným portfoliem vysoce kvalitních a exkluzivních bytů, které jsou dostupné pouze našim klientům. Abyste byli první, kdo obdrží informace o nich – kontaktujte nás.
Další služby
Jako ceněný klient naší společnosti budete mít privilegium využívat zcela zdarma služby našeho zkušeného právního týmu. Navíc nabízíme komplexní řešení zahrnující pojištění majetku, bezplatné finanční poradenství a výhodné podmínky financování. Naše služby se rozšiřují i do oblasti přeprodeje, pronájmu a správy nemovitostí. Zajišťujeme vysoce kvalitní opravné práce a vybavení prostřednictvím specializovaných firem, které jsou součástí naší korporátní skupiny a jsou našimi dlouholetými profesionálními partnery.
Poloha na mapě
PRODEJ
PROJEKT
Třípokojový byt s parkovacím místem ve Flora Parku
Manastirski Livadi - East / Sofia / Sofia / Bulharsko mapa
Plocha: 128.15 m²
Cena: 500 000 € /// 3 902 €/m²
Butikové apartmány v luxusní nové budově v "Malinova dolina"
Malinova Dolina / Sofia / Sofia / Bulharsko mapa
Třída budovy: Norma
Ceny nemovitostí: 174 575 - 371 115 €
Ceny za m²: 2 500 - 2 700 €/m²
Moderní obytná budova, která kombinuje klid, styl a pohodlí
Ovcha Kupel 2 / Sofia / Sofia / Bulharsko mapa
Ceny nemovitostí: 152 017 - 229 367 €
Ceny za m²: 1 950 - 2 250 €/m²
Vyberte tuto možnost a my vás e-mailem upozorníme na jakékoli změny stavu nabídky, například:
• Změna ceny;
• Nemovitost se zapojila do propagační nabídky;
• Nemovitost je rezervována nebo prodána;
• Další novinky týkající se nemovitosti.
• Nemovitost je stažena z prodeje;
Z odběru oznámení se můžete kdykoli snadno odhlásit.• Změny podmínek nabídky;
• Změna výše investice;
• Předmět investice byl plně realizován;
• Nabídka vypršela.
Pokud se v budoucnu rozhodnete, že tuto nabídku již nechcete sledovat, můžete se snadno odhlásit.
Chcete-li získat naprosto přesné informace o volných nemovitostech k prodeji v projektu a jejich aktuálních cenách, kontaktujte prosím naši kancelář na uvedených kontaktních údajích.
Snažíme se udržovat naše ceníky naprosto aktuální a správné, ale vzhledem k velkému počtu nových projektů v našem katalogu a velmi dynamickému prodeji je to často nemožné.
Děkujeme za pochopení!



...Jako osvědčený specialista pracuje Stonehard PREMIER na tržním umístění a prodeji řady nových stavebních projektů, jejichž realizaci nám svěřily přední podnikatelské společnosti v Bulharsku i v zahraničí...