Apartament cu trei camere și trei terase, într-o clădire nouă cu Act 16
Preţ:
550 000 € (fără TVA) (3 446 €/m² (fără TVA))
*Prețurile și disponibilitatea proprietăților vacante din cadrul proiectului sunt orientative. Pentru informații actualizate despre prețuri, vă rugăm să ne contactați!
Ref. Număr: SOF-126235 / 3920
Locaţie: Studentski Grad / Sofia hartă
Tipul clădirii/complexului: Rezidențial
Zone de locuit: 159.62 m²
Tipuri de proprietăți din clădire/complex: Apartamente cu 3 camere
Ref. Număr: SOF-126235 / 3920
Locaţie: Studentski Grad / Sofia
Tipul clădirii/complexului: Rezidențial
Clasa clădirii/complexului:
Zone de locuit: 159.62 m²
Tipuri de proprietăți din clădire/complex: Apartamente cu 3 camere
Locație convenabilă
Clădirea se află într-o locație comunicativă în cartier, în apropiere de supermarketul Fantastiko, instituții de învățământ superior și grădinițe, Parcul Studențesc, localuri și altele. În apropiere se află și stația de metrou "G.M. Dimitrov", precum și numeroase stații de autobuz.
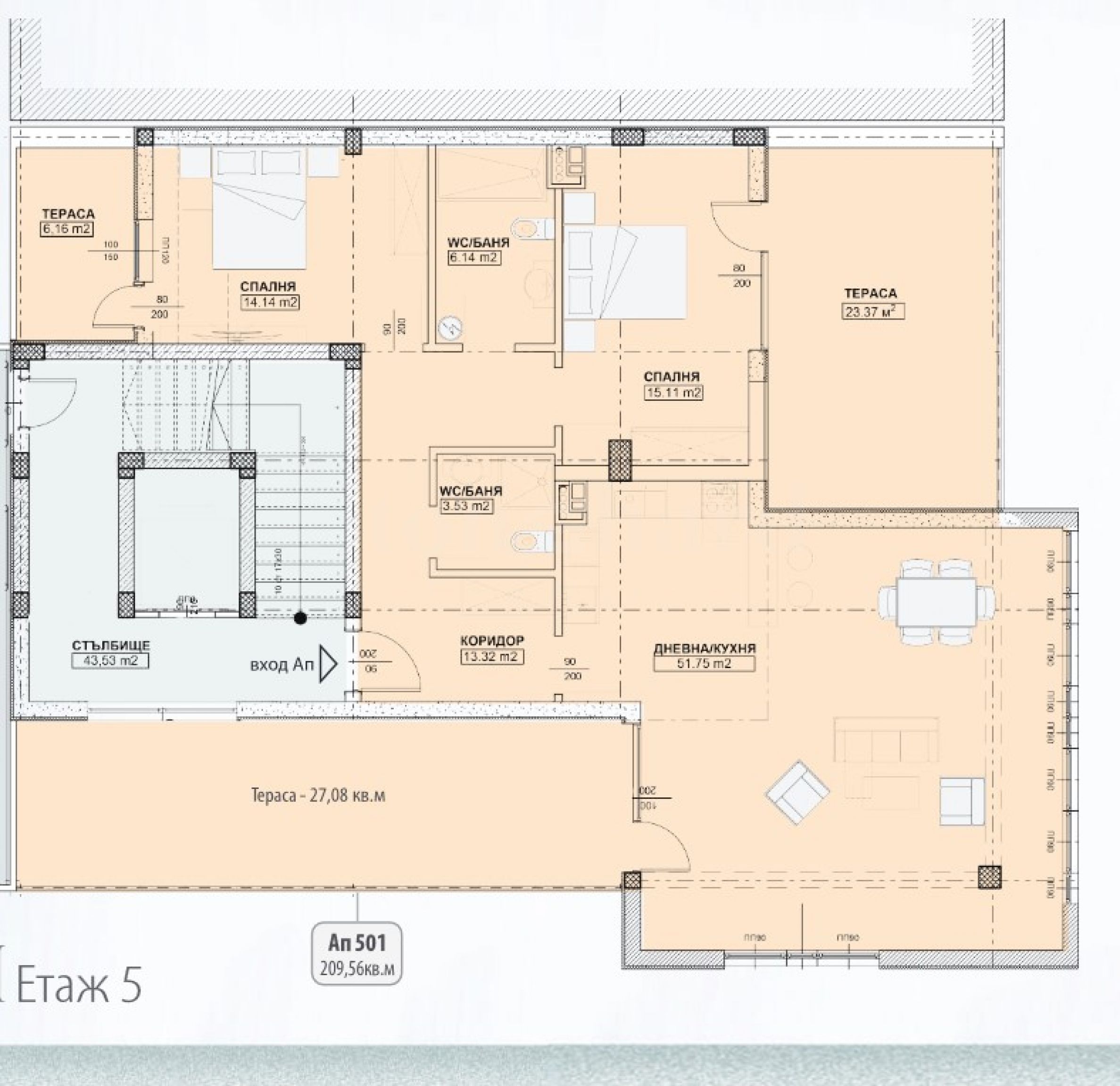
Locuința este situată la etajul 5, cu o orientare favorabilă spre sud, est și vest.
Compartimentare:
living cu bucătărie: 51,75 mp, cu terasă de 27,08 mp;
hol: 13,32 mp;
dormitor 1: 15,11 mp cu terasă proprie;
dormitor 2: 14,14 mp cu terasă proprie;
două băi cu toaletă. Apartamentul dispune și de un depozit/debara, inclus în preț.
Pot fi achiziționate și locuri de parcare subterane la prețuri începând de la 30.000 euro fără TVA.
Construcție nouă de calitate
Clădirea este proiectată cu o structură monolitică din beton armat, conformă cu directivele europene moderne. Fațada se remarcă printr-un design modern și rafinat, incluzând elemente decorative în tonuri deschise. Dispune de termoizolație de 10 cm și tâmplărie PVC cu geam triplu pentru partea rezidențială.
Este prevăzută o amenajare generoasă cu spații verzi atât în curtea interioară, cât și în spațiile pietonale de pe partea străzii.
Încălzirea este realizată prin CET, fiind prevăzute și racorduri pentru boilere în băi, precum și pentru aparate de aer condiționat pe fațadă.
Așteptăm solicitarea dumneavoastră
Dacă doriți să organizați o vizionare a proprietății care vă interesează sau să vizitați unul dintre birourile noastre, vă rugăm să ne contactați. Pentru a stabili ziua și ora pentru o întâlnire sau vizionare, puteți suna la numărul de telefon indicat în anunț sau să trimiteți o solicitare prin e-mail. Consultantul nostru vă va ajuta cu toate detaliile necesare și va programa un moment convenabil pentru dumneavoastră.
Căutați proprietatea potrivită pentru dumneavoastră?
Nu ezitați să ne contactați și să ne povestiți despre nevoile și preferințele dumneavoastră. Echipa noastră va efectua o cercetare amănunțită a pieței pentru a vă oferi proprietăți care corespund exact criteriilor dumneavoastră. Dispunem de un portofoliu excepțional de locuințe de înaltă calitate și exclusive, disponibile doar pentru clienții noștri. Pentru a fi printre primii care primesc informații despre acestea – contactați-ne.
Servicii suplimentare
Ca client valoros al companiei noastre, veți avea privilegiul de a beneficia gratuit de serviciile echipei noastre juridice experimentate. În plus, oferim soluții complexe, incluzând asigurare de proprietate, consultanță financiară gratuită, precum și condiții avantajoase de finanțare. Serviciile noastre se extind și în domeniul revânzării, închirierii și administrării proprietăților. Asigurăm lucrări de reparații de înaltă calitate și mobilare prin firme specializate, care fac parte din grupul nostru corporativ și sunt partenerii noștri profesioniști de lungă durată.
Locație pe hartă
VÂNZARE
PROIECT
Apartament cu trei camere și loc de parcare în Flora Park
Manastirski Livadi - East / Sofia / Sofia / Bulgaria hartă
Zonă: 128.15 m²
Preţ: 500 000 € /// 3 902 €/m²
Apartamente boutique într-o clădire nouă de lux în "Malinova dolina"
Malinova Dolina / Sofia / Sofia / Bulgaria hartă
Clasa de construcție: Luxos
Prețurile proprietăților: 174 575 - 371 115 €
Prețuri pe m²: 2 500 - 2 700 €/m²
Clădire rezidențială modernă, care combină liniștea, stilul și confortul
Ovcha Kupel 2 / Sofia / Sofia / Bulgaria hartă
Prețurile proprietăților: 152 017 - 229 367 €
Prețuri pe m²: 1 950 - 2 250 €/m²
Selectați această opțiune și vă vom anunța prin e-mail dacă apar modificări ale stării ofertei, de exemplu:
• Modificarea prețului;
• Proprietatea a intrat într-o ofertă promoțională;
• Proprietatea este rezervată sau vândută;
• Alte știri legate de proprietate.
• Proprietatea este scoasă de la vânzare;
Te poți dezabona cu ușurință de la notificări oricând dorești.• Modificări ale termenilor ofertei;
• Modificarea valorii investiției;
• Obiectul investiției a fost realizat integral;
• Oferta a expirat.
Vă puteți dezabona cu ușurință dacă decideți în viitor că nu mai doriți să urmați această ofertă.
Pentru a primi informații absolut corecte despre proprietățile vacante disponibile spre vânzare în cadrul proiectului și prețurile lor actuale, vă rugăm să contactați biroul nostru la informațiile de contact furnizate.
Depunem toate eforturile pentru a menține listele noastre de prețuri absolut actualizate și corecte, dar acest lucru este adesea imposibil, având în vedere numărul mare de proiecte noi din catalogul nostru și vânzările extrem de dinamice.
Vă mulțumim pentru înțelegere!



...În calitate de specialist dovedit, Stonehard PREMIER lucrează la poziționarea pe piață și la vânzările a numeroase proiecte de construcții noi, a căror implementare ne-a fost încredințată de companii antreprenoriale de top din Bulgaria și din străinătate...