Светло и просторно студио с тераса в модерна нова сграда в Созопол
на картата
Цена:
101 250 € (1 500 €/м2)
*Указаните цени и наличности от свободни имоти в проекта са индикативни. За актуална ценова информация, моля свържете се с нас!
Реф. Номер: LXH-135863 / 4300
Местоположение: Созопол карта
Тип на сграда/комплекс: Жилищен
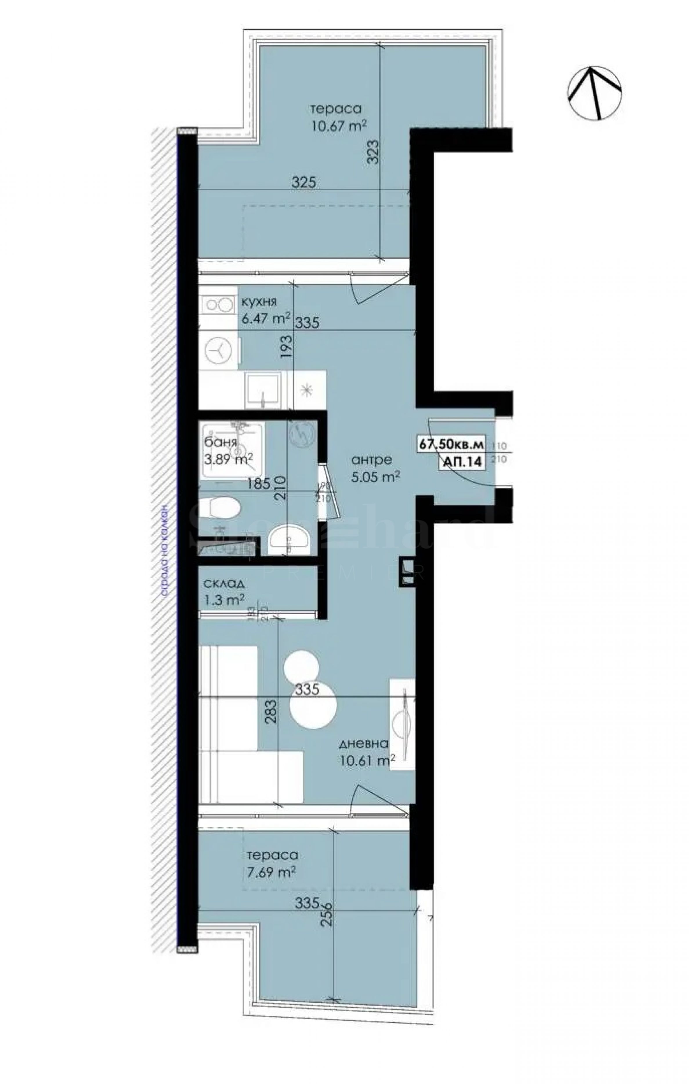
Площи на жилищата: 67.50 м2
Типове имоти в сградата/комплекса: Едностайни апартаменти
Реф. Номер: LXH-135863 / 4300
Местоположение: Созопол
Тип на сграда/комплекс: Жилищен
Клас на сградата/комплекса:
Площи на жилищата: 67.50 м2
Типове имоти в сградата/комплекса: Едностайни апартаменти
В ПРОЦЕС НА СТРОИТЕЛСТВО.
Очакван Акт 16 - декември 2026 г.
Покупка без комисиона!
Имотът е с обща площ от 67.50 кв.м, разположен на последен, четвърти етаж, с изложение север/юг. Разпределението включва антре, склад, дневна, кухня, баня с тоалетна и две тераси. Издава в степен на завършеност по БДС:
входни блиндирани врати;
ЕЛ: контакти , без осветителни тела;
ВиК: до тапа;
стени: Вътрешна мазилка;
под: циментова замазка;
тавани: шпакловка.Качествено строителство:
фасада: EPS топлоизолационен пакет на Baumit;
дограма: PVC 5 камерна;
тераси: гранитогрес за външни условия. Всички покривни тераси ще са с XPS и хидроизолация. Алуминиев ажурен парапет;
покриви: плоски с XPS, пароизолация, замазка с наклон и два пласта хидроизолация;
общи части: стълбище от гранитогрес, алуминиев парапет;
входни врати;
ЕЛ: до ключ;
ВиК: до тапа;
вътрешна хастарна гипсова мазилка;
под: изравнителна циментова замазка. Без такса поддръжка.
Сградата е на 4-ри нива с просторни студиа и двустайни жилища с площ от 43,54 кв.м до 117,30 кв.м. Имотите от по-високите етажи имат панорамна гледка към града, морето и зеленината на местността.
В сградата има свободен гараж на партер за 30 000 евро (58 674 лева).
На сутерен 2 свободни паркоместа ПМ3 и ПМ7 по 13 000 евро (25 426 лева).
Очакваме Вашето запитване
Ако желаете да организирате оглед на имот, който Ви интересува, или да посетите някой от нашите офиси, моля свържете се с нас. За да уговорите ден и час за среща или оглед, можете да се обадите на посочения в обявата телефон или да изпратите запитване чрез електронната поща. Нашият консултант ще Ви съдейства с всички необходими подробности и ще уговори удобно за Вас време.
Търсите подходящия за Вас имот?
Не се колебайте да се свържете с нас и да ни разкажете за Вашите нужди и предпочитания. Нашият екип ще проведе задълбочено проучване на пазара, за да Ви предложи имоти, които точно отговарят на Вашите критерии. Разполагаме с изключително портфолио от висококачествени и ексклузивни жилища, които са достъпни само за нашите клиенти. За да сте първите, които ще получите информация за тях – свържете се с нас.
Допълнителни услуги
Като ценен клиент на нашата компания, Вие ще имате привилегията да ползвате напълно безплатно услугите на нашия опитен юридически екип. В допълнение, предлагаме комплексни решения, включващи имуществена застраховка, безплатна финансова консултация, както и изгодни условия за финансиране. Нашите услуги се разпростират и в сферата на препродажбата, отдаването под наем и управлението на имоти. Осигуряваме висококачествени ремонтни дейности и обзавеждане чрез специализирани фирми, които са част от нашата корпоративна група и са наши дългогодишни професионални партньори.
Местоположение на картата
ПРОДАЖБА
ПРОЕКТ
Едностаен апартамент на минути от Царския залив, до гр. Созопол
Созопол / Бургас / България карта
Площ: 42 м2
Цена: Цена при запитване ///
ПРОДАЖБА
ПРОЕКТ
Двустаен апартамент във ваканционно селище от затворен тип в Созопол
Созопол / Бургас / България карта
Площ: 53 м2
Цена: 92 000 € /// 1 736 €/м2
ПРОДАЖБА
ПРОЕКТ
Ново студио с частен двор в елегантна сграда на 150 м от плажа в Созопол
Созопол / Бургас / България карта
Клас на сградата/комплекса: Стандартен
Площ: 47.06 м2
Цена: 72 000 € /// 1 530 €/м2
Изберете тази опция и ще Ви уведомяваме по имейла при настъпили промени по статуса на офертата, например:
• Промяна на цената;
• Имотът влезе в промоционално предложение;
• Имотът бъде резервран или продаден;
• Други новости, свързани с имота.
• Имотът бъде свален от продажба;
Може да се отпишете от нотификациите лесно, когато пожелаете.• Промени по условията на офертата;
• Промяна в сумата на инвестицията;
• Предметът на инвестицията е изцяло реализиран;
• Валидността на офертата е изтекла.
Може лесно да се отпишете, ако в бъдеще решите, че повече не желаете да следите тази оферта.
За да получите абсолютно коректна информация относно свободните имоти, налични за продажба в проекта и техните актуални цени, моля свържете се с нашия офис на посочената информация за контакт.
Ние полагаме усилия, за да поддържаме нашите ценови листи абсолютно актуални и коректни, но често това е невъзможно, предвид големия брой нови проекти в нашия каталог и силно динамичните продажби.
Благодарим Ви за проявеното разбиране!



...В качеството си на доказан спецалист Stonehard PREMIER работи по пазарното позициониране и продажбите на множество проекти ново строителство, чиято реализация ни е поверена от водещи предприемачески компании в България и чужбина...