Тристаен апартамент с голям частен двор, близо до Ring Mall
Цена:
183 981 € (2 049 €/м2)
*Указаните цени и наличности от свободни имоти в проекта са индикативни. За актуална ценова информация, моля свържете се с нас!
Реф. Номер: SOF-126089 / 3905
Местоположение: Малинова долина / София карта
Тип на сграда/комплекс: Жилищен
Площи на жилищата: 89.77 м2
Типове имоти в сградата/комплекса: Тристайни апартаменти
Реф. Номер: SOF-126089 / 3905
Местоположение: Малинова долина / София
Тип на сграда/комплекс: Жилищен
Клас на сградата/комплекса:
Площи на жилищата: 89.77 м2
Типове имоти в сградата/комплекса: Тристайни апартаменти
Представяме тристаен апартамент от 89.77 кв.м за продажба, в затворен комплекс от две бутикови и модерни сгради в кв. "Малинова долина".
Локация
Комплексът е разположен на удобно място в близост до ключови търговски обекти, Ring Mall, детска градина и Околовръстен път. Кварталът се намира в южната част на София, осигурявайки спокойствие и чист въздух в подножието на планината, с лесен и бърз достъп до централните зони на града.
За жилището
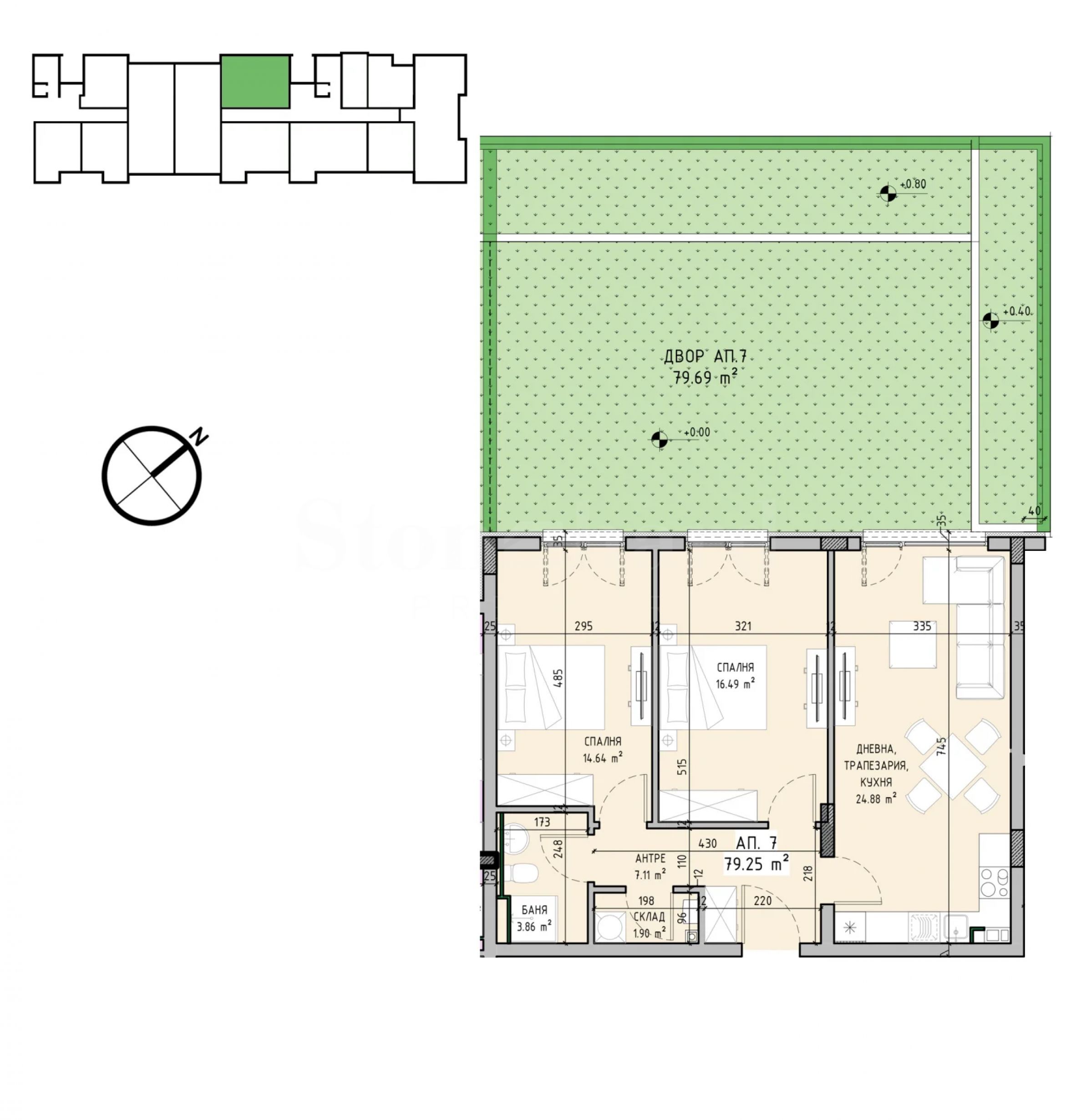
Апартаментът е разположен на партерен етаж, с чиста площ 79.25 кв.м и включва:
дневна с трапезария и кухня;
баня/тоалетна;
две спални;
антре, склад;
двор 79.69 кв.м. Предлага се в степен на завършеност по БДС.
Офертната цена е по Схема на плащане 1: 50%/30%/10%/10%.
*Схема на плащане 2: 30%/30%/30%/10%.
*Схема на плащане 3: 20%/0%/0%/80%.
Качествен и енергоефективен дом
Сградите са с ниско енергийно потребление, с минимален екологичен отпечатък, монолитно строителство със стоманобетонна конструкция от колони и плочи, както и преградни стени от многокамерни керамични блокове Porotherm 25 на Wienerberger, които гарантират стабилност и ефективност на топло- и звукоизолацията.
Комплексът е проектиран с фасади, осигуряващи оптимално остъкляване както на апартаментите, така и на общите части, с цел висока енергийна ефективност и максимално проникване на естествена светлина. Заложени са също така мерки за висока пожарна безопасност и висока степен на огнеустойчивост. Конструкцията е проектирана да издържа сеизмични натоварвания до IX-та степен по скалата на Медведев-Шпонхойер-Карник.
Сутеренът е проектиран с хидроизолационна вана, осигуряваща цялостна защита от влага под фундамента и по стените. Хидроизолацията е съставена от два пласта битумна мембрана, направена от специално модифициран битум с добавка на термопластични еластомери (SBS). В допълнение, стените са защитени с 5 см XPS изолация и релефна HDPE мембрана за допълнителна устойчивост. Тази система гарантира ефективна защита и дренаж на основите и стените на сутерена, осигурявайки надеждно решение срещу атмосферна и почвена влага.
За сградите е избрана най-висок клас PVC дограма (енергиен клас А++) Schüco LivIng 82, с иновативна 7-камерна пластмасова система за прозорци и троен стъклопакет с отлични топлоизолационни стойности. Висока шумоизолация и защита от студ, влага и течения са гарантирани от допълнителните EPDM уплътнения, осигурява тишина и спокойствие на вашия дом.
Планира се и изграждане на соларни инсталации с цел минимизирането на експлоатационните разходи.
Във вътрешната част на сградите:
• Асансьор от висок клас Orona, със спирки на всеки етаж и капацитет от 6 души, достъп за хора с увреждания;
• Изводи за газ и тръбни инсталации за всеки апартамент до разводка;
• Електрическа мощност до 10 Kw на апартамент, гарантираща безпроблемна работа на всички системи;
• Висок клас входна блиндирана врата Solid 55, с възможност за допълнителна сигурност;
• Видеонаблюдение и контролиран достъп до сградата.
Комплексът разполага и с богато озеленена градина, която включва зони за отдих, детска площадка и обособено пространство за домашни любимци.
Предвидени са специални места за външни тела на климатици с изграден тръбен път и отводняване, за максимално удобство и естетика.
Апартаменти
Комплексът включва общо 138 апартамента, с 125 подземни гаража и паркоместа и 46 надземни паркоместа, осигурявайки гъвкави възможности за паркиране. Апартаментите са проектирани с внимание към всеки детайл и се отличават с просторни и светли помещения, с практични и отворени планировки, които създават усещане за комфорт и позволяват съчетаването на съседни жилища при нужда от разширяване.
Жилищата са от тип едностайни, двустайни, тристайни и четиристайни апартаменти.
Очакваме Вашето запитване
Ако желаете да организирате оглед на имот, който Ви интересува, или да посетите някой от нашите офиси, моля свържете се с нас. За да уговорите ден и час за среща или оглед, можете да се обадите на посочения в обявата телефон или да изпратите запитване чрез електронната поща. Нашият консултант ще Ви съдейства с всички необходими подробности и ще уговори удобно за Вас време.
Търсите подходящия за Вас имот?
Не се колебайте да се свържете с нас и да ни разкажете за Вашите нужди и предпочитания. Нашият екип ще проведе задълбочено проучване на пазара, за да Ви предложи имоти, които точно отговарят на Вашите критерии. Разполагаме с изключително портфолио от висококачествени и ексклузивни жилища, които са достъпни само за нашите клиенти. За да сте първите, които ще получите информация за тях – свържете се с нас.
Допълнителни услуги
Като ценен клиент на нашата компания, Вие ще имате привилегията да ползвате напълно безплатно услугите на нашия опитен юридически екип. В допълнение, предлагаме комплексни решения, включващи имуществена застраховка, безплатна финансова консултация, както и изгодни условия за финансиране. Нашите услуги се разпростират и в сферата на препродажбата, отдаването под наем и управлението на имоти. Осигуряваме висококачествени ремонтни дейности и обзавеждане чрез специализирани фирми, които са част от нашата корпоративна група и са наши дългогодишни професионални партньори.
Местоположение на картата
ПРАВА
Високотехнологична жилищна сграда с панорамни резиденции, фитнес, СПА, ресторант и консиерж на бул. „Цариградско шосе“
7-ми 11-ти километър / София / София / България карта
Клас на сградата: Премиум
Очаквано завършване: Декември, 2029 г.
Цени на имотите: 412 965 - 1 763 726 € (без ДДС)
Цени на м²: 2 100 - 4 125 €/м2 (без ДДС)
ПРОДАЖБА
ПРОЕКТ
Дизайнерски тристаен апартамент в престижна сграда А3
Манастирски ливади - Изток / София / София / България карта
Площ: 165 м2
Цена: 630 000 € /// 3 818 €/м2
Нов жилищен проект от осем сгради с различни типове апартаменти в кв."Малинова долина"
Малинова долина / София / София / България карта
Завършване: Декември, 2028 г.
Цени на имотите: 73 000 - 212 000 €
Цени на м²: 1 738 - 1 933 €/м2
Изберете тази опция и ще Ви уведомяваме по имейла при настъпили промени по статуса на офертата, например:
• Промяна на цената;
• Имотът влезе в промоционално предложение;
• Имотът бъде резервран или продаден;
• Други новости, свързани с имота.
• Имотът бъде свален от продажба;
Може да се отпишете от нотификациите лесно, когато пожелаете.• Промени по условията на офертата;
• Промяна в сумата на инвестицията;
• Предметът на инвестицията е изцяло реализиран;
• Валидността на офертата е изтекла.
Може лесно да се отпишете, ако в бъдеще решите, че повече не желаете да следите тази оферта.
За да получите абсолютно коректна информация относно свободните имоти, налични за продажба в проекта и техните актуални цени, моля свържете се с нашия офис на посочената информация за контакт.
Ние полагаме усилия, за да поддържаме нашите ценови листи абсолютно актуални и коректни, но често това е невъзможно, предвид големия брой нови проекти в нашия каталог и силно динамичните продажби.
Благодарим Ви за проявеното разбиране!



...В качеството си на доказан спецалист Stonehard PREMIER работи по пазарното позициониране и продажбите на множество проекти ново строителство, чиято реализация ни е поверена от водещи предприемачески компании в България и чужбина...