Тристаен апартамент с гледка море в луксозен комплекс над плаж Аркутино
на картата
Цена:
402 163 € (без ДДС) (2 149 €/м2 (без ДДС))
*Указаните цени и наличности от свободни имоти в проекта са индикативни. За актуална ценова информация, моля свържете се с нас!
Реф. Номер: LXH-112956 / 3181
Местоположение: Созопол карта
Тип на сграда/комплекс: Жилищен
Площи на жилищата: 187.12 м2
Типове имоти в сградата/комплекса: Тристайни апартаменти
Реф. Номер: LXH-112956 / 3181
Местоположение: Созопол
Тип на сграда/комплекс: Жилищен
Клас на сградата/комплекса:
Площи на жилищата: 187.12 м2
Типове имоти в сградата/комплекса: Тристайни апартаменти
Представяме тристаен, просторен апартамент за продажба, в комплекс с уникална локация в сърцето на Българското Черноморие, на метри от плажа в местност Аркутино, част от Резерват Ропотамо. Луксозният крайбрежен комплекс се намира само на 10 км от Созопол и на 40 км южно от град Бургас.
Комплексът е с Акт 14.
Планирано завършване - декември 2025 г.
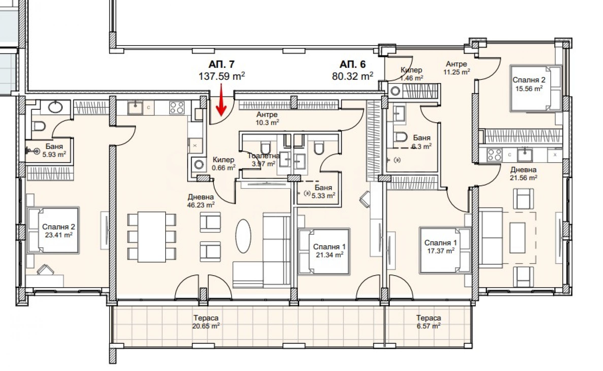
Имотът от 187.12 кв.м се намира на 2-ри етаж, с източно изложение, има тераса от 20.65 кв.м, с гледка към морето и градината. Предлага две спални, всяка от които е със собствена баня, просторна дневна със зона за кухня, отделно санитарен възел, антре и килер.
Концепция
Концепцията на комплекса е обмислена до най-малкия детайл, територията, интериорът на жилищата и екстериорът на сградите е хармонично подбран с усещане за симбиоза със заобикалящата природна среда на резервата. Жилищата се предлагат завършени "до ключ", стилово и цветово изцяло съобразени с концепцията на комплекса. Всички дейности се извършват при спазване на нормативно установените изисквания към качеството на строително-монтажни работи и използваните материали.
Комплексът се състои от три жилищни сгради с общо 74 апартамента и бутиков хотел. Студиа, апартаменти с 1, 2, 3 и 4 спални, от 37 кв.м чиста площ до 190 кв.м чиста площ. Предлагат се и два просторни таунхауса с гаражи.
Отлични удобства на територията:
целогодишна поддръжка и управление на комплекса;
24-часова жива охрана и видеонаблюдение;
паркинг;
елегантен ресторант със спираща дъха гледка;
Спа център;
открит инфинити басейн;
детска зона;
плажна зона;
консиерж услуги;
управление на недвижими имоти.
Посочената цена е без ДДС.
Местоположение на картата
ПРОДАЖБА
ПРОЕКТ
Тристаен апартамент с гледка море в престижен комплекс с удобства в Созопол
Созопол / Бургас / България карта
Площ: 70 м2
Цена: 145 000 € /// 2 071 €/м2
ПРОДАЖБА
ПРОЕКТ
Тристаен апартамент с гледка към басейна в бутиков комплекс на Каваците
Созопол / Бургас / България карта
Площ: 125.56 м2
Цена: 209 900 € /// 1 672 €/м2
ПРОДАЖБА
ПРОЕКТ
Тристаен апартамент в елитен комплекс на Каваците, гр. Созопол
Созопол / Бургас / България карта
Площ: 100.45 м2
Цена: 145 900 € /// 1 452 €/м2
Изберете тази опция и ще Ви уведомяваме по имейла при настъпили промени по статуса на офертата, например:
• Промяна на цената;
• Имотът влезе в промоционално предложение;
• Имотът бъде резервран или продаден;
• Други новости, свързани с имота.
• Имотът бъде свален от продажба;
Може да се отпишете от нотификациите лесно, когато пожелаете.• Промени по условията на офертата;
• Промяна в сумата на инвестицията;
• Предметът на инвестицията е изцяло реализиран;
• Валидността на офертата е изтекла.
Може лесно да се отпишете, ако в бъдеще решите, че повече не желаете да следите тази оферта.
За да получите абсолютно коректна информация относно свободните имоти, налични за продажба в проекта и техните актуални цени, моля свържете се с нашия офис на посочената информация за контакт.
Ние полагаме усилия, за да поддържаме нашите ценови листи абсолютно актуални и коректни, но често това е невъзможно, предвид големия брой нови проекти в нашия каталог и силно динамичните продажби.
Благодарим Ви за проявеното разбиране!



...В качеството си на доказан спецалист Stonehard PREMIER работи по пазарното позициониране и продажбите на множество проекти ново строителство, чиято реализация ни е поверена от водещи предприемачески компании в България и чужбина...