Впечатляващ пентхаус с пет спални на бул. "Г. М. Димитров"
на картата
Цена:
Цена при запитване
*Указаните цени и наличности от свободни имоти в проекта са индикативни. За актуална ценова информация, моля свържете се с нас!
Реф. Номер: SOF-129700 / 4251
Местоположение: Дианабад / София карта
Тип на сграда/комплекс: Жилищен
Площи на жилищата: 688.23 м2
Типове имоти в сградата/комплекса: Многостайни апартаменти, Мезонети
Реф. Номер: SOF-129700 / 4251
Местоположение: Дианабад / София
Тип на сграда/комплекс: Жилищен
Клас на сградата/комплекса:
Площи на жилищата: 688.23 м2
Типове имоти в сградата/комплекса: Многостайни апартаменти, Мезонети
Планирано завършване - 30.10.2026 г.
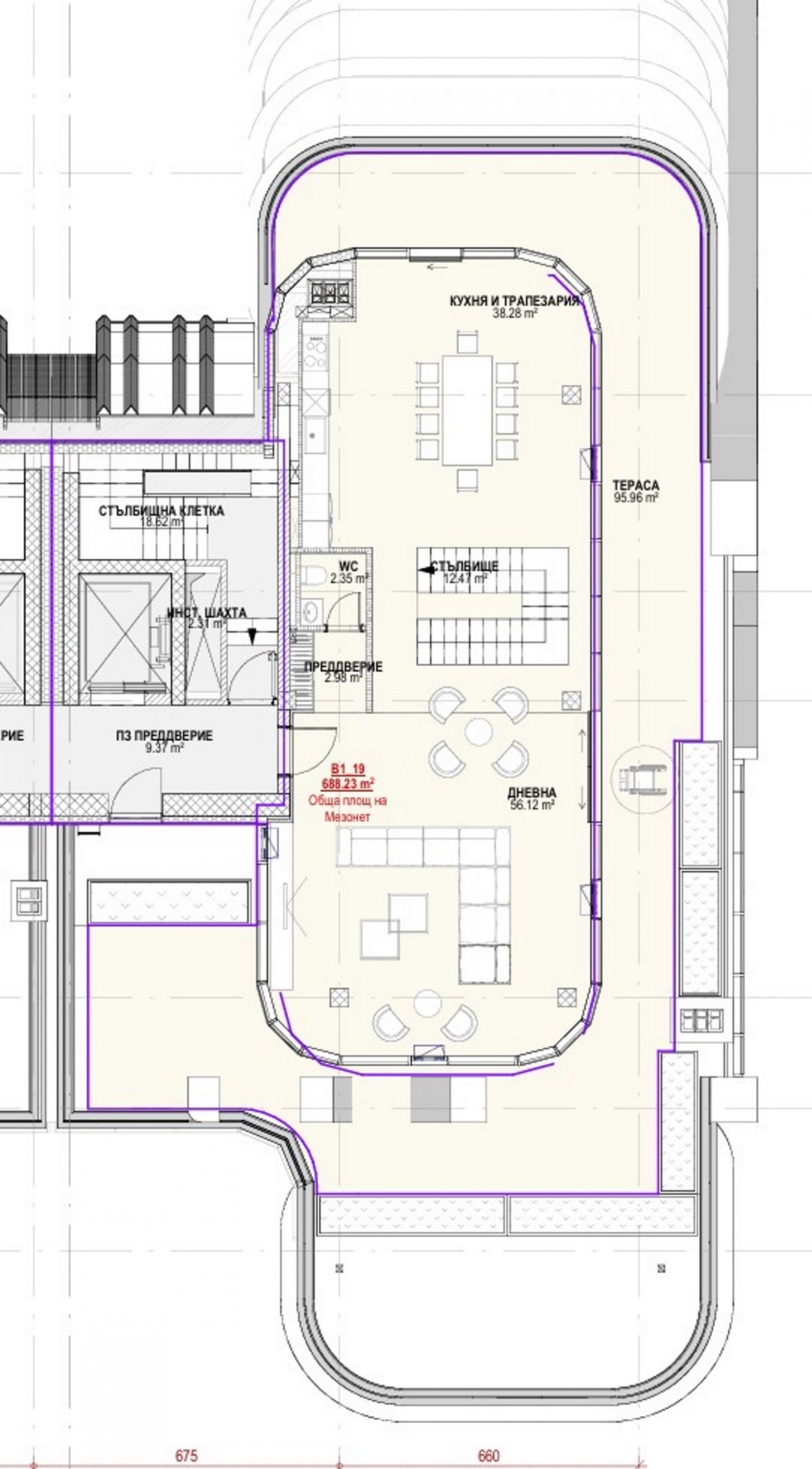
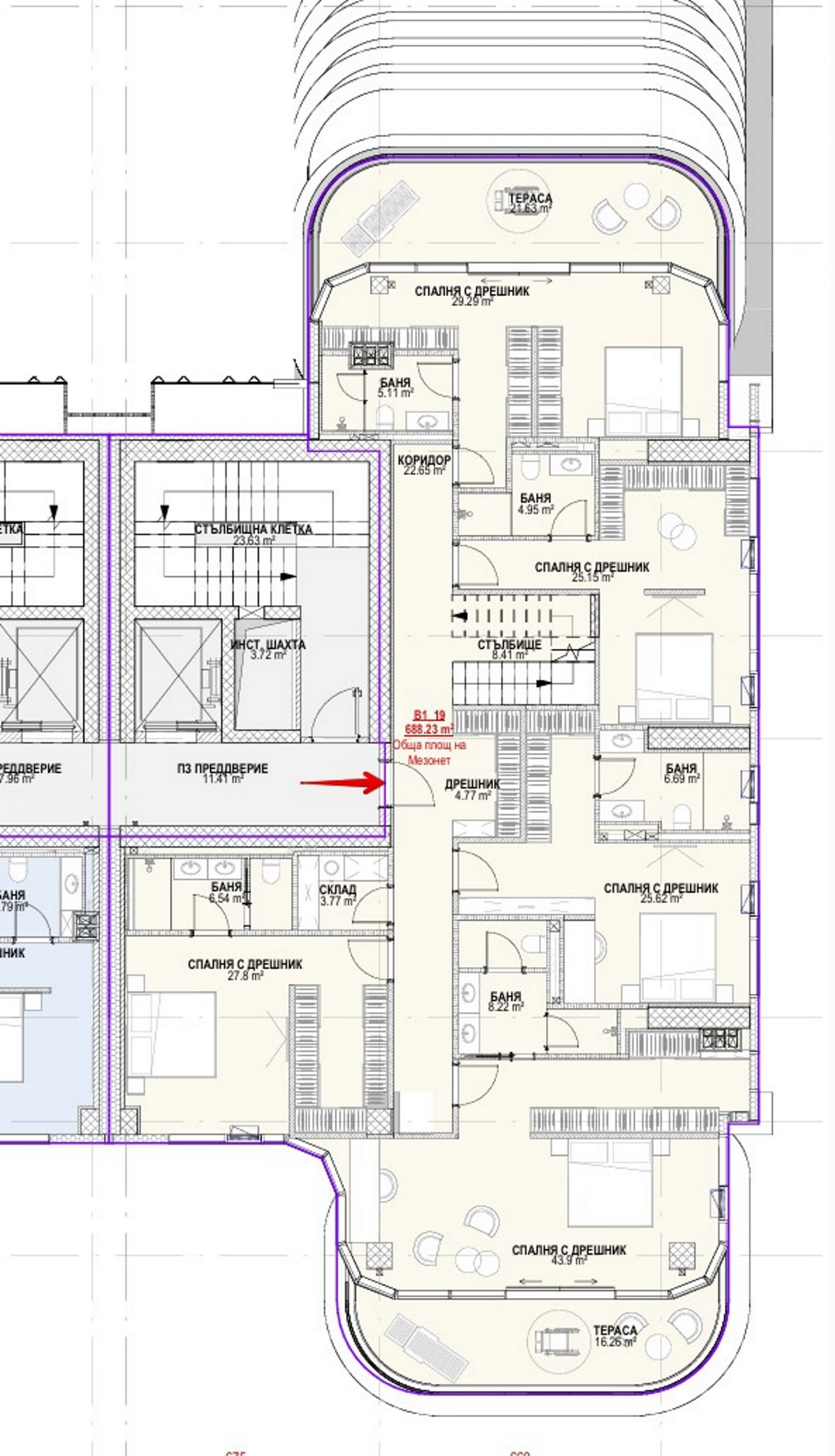
Апартаментът има обща площ 688.23 кв.м. Жилището е с 4 изложения - юг/север/изток/запад.
На първо ниво - 14-ти етаж:
антре, коридор, дрешник, склад;
5 спални, всяка със собствена баня/тоалетна и дрешник;
две тераси - 21.63 кв.м и 16.26 кв.м. На второ ниво - етаж 15:
просторна дневна 56.12 кв.м, с кухня и трапезария 38.28 кв.м;
преддверие, тоалетна, стълбище;
голяма панорамна тераса, заобикаляща целия имот - 95.96 кв.м. За сградата
Проектът е вдъхновен от съвременните градоустройствени и архитектурни тенденции – богато озеленени площи, отличителен силует и хармонично вписване в средата. Създаден е с идеята за комфорт, функционалност и динамична градска среда, осигурявайки на своите обитатели изключителен достъп до удобства и висок стандарт на живот. Двете модерни сгради формират комплекс с разнообразни и допълващи се функции. Тук придобивате не само елитен имот, но и начин на живот - първокласна локация, модерна архитектура, иновативна концепция и луксозни удобства.
Вдъхновена от динамиката на планината, архитектурата на сградата пресъздава нейните характерни очертания, създавайки хармонично взаимодействие между природата и градската среда. Формите и линиите на фасадата носят естетиката на кристалните структури и планинските върхове, придавайки на сградата разпознаваем облик, който я вписва естествено в панорамата на града с Витоша на хоризонта.
Live-work-play концепция - всичко необходимо на едно място!
Сграда 2 комбинира луксозни жилища и първокласни офисни пространства, като в съседство, в завършената през 2021 г. впечатляваща Сграда 1, са разположени заведения за хранене, търговски обекти, уелнес и спортен център, покривни градини, конферентен център и медицински услуги. Двете сгради ще бъдат свързани чрез топла връзка за максимален комфорт и удобство.
Защо да инвестирате в Сграда 2?
Хармония, качество и лукс – три в едно;
Модерна, импозантна визия и съвременна архитектура;
Контролиран достъп и 24-часова жива охрана;
Апартаментите се продават по БДС – на шпакловка и замазка;
Просторни жилища със светла височина 3 м;
Луксозно строителство с висококачествени материали;
Висока енергийна ефективност – фасадна система, модерна климатизация и подово отопление;
Избор от типове жилища: двустайни, тристайни, четиристайни, многостайни и мезонети;
100% осигурено паркиране - възможност за придобиването на паркомясто към всеки имот. Удобства и достъп до Сграда 1
Собствениците на апартаменти в Сграда 2 ще имат директен достъп до богат набор от удобства в Сграда 1, предлагани на преференциални условия:
Фитнес център с последно поколение уреди Technogym;
Четири просторни зали за групови тренировки;
Закрит плувен басейн (25 м) – единственият иноксов басейн от този тип в България;
СПА зона – инфрачервена сауна със солна терапия, класическа финландска сауна, парна баня, релакс зона;
Премиум салон за красота, предлагащ фризьорство, маникюр, педикюр, козметика, грим и масажи;
Кафе и пекарна – специалитети с Costa кафе и свежо приготвена храна;
Ресторант с тераса, предлагащ гурме ястия в стилна атмосфера;
Банков клон и аптека – разположени на партера за удобство на обитателите;
Медицински център с модерна апаратура и доказани специалисти;
Конферентен блок с капацитет до 200 души, разположен на удобен етаж с бърз достъп чрез ескалатор. Схема на плащане:
30% - Предварителен договор;
10% - кота апартамент;
20% - Акт 14;
30% - завършена фасада;
10% - Разрешение за ползване. Очакваме Вашето запитване
Ако желаете да организирате оглед на имот, който Ви интересува, или да посетите някой от нашите офиси, моля свържете се с нас. За да уговорите ден и час за среща или оглед, можете да се обадите на посочения в обявата телефон или да изпратите запитване чрез електронната поща. Нашият консултант ще Ви съдейства с всички необходими подробности и ще уговори удобно за Вас време.
Търсите подходящия за Вас имот?
Не се колебайте да се свържете с нас и да ни разкажете за Вашите нужди и предпочитания. Нашият екип ще проведе задълбочено проучване на пазара, за да Ви предложи имоти, които точно отговарят на Вашите критерии. Разполагаме с изключително портфолио от висококачествени и ексклузивни жилища, които са достъпни само за нашите клиенти. За да сте първите, които ще получите информация за тях – свържете се с нас.
Допълнителни услуги
Като ценен клиент на нашата компания, Вие ще имате привилегията да ползвате напълно безплатно услугите на нашия опитен юридически екип. В допълнение, предлагаме комплексни решения, включващи имуществена застраховка, безплатна финансова консултация, както и изгодни условия за финансиране. Нашите услуги се разпростират и в сферата на препродажбата, отдаването под наем и управлението на имоти. Осигуряваме висококачествени ремонтни дейности и обзавеждане чрез специализирани фирми, които са част от нашата корпоративна група и са наши дългогодишни професионални партньори.
Местоположение на картата
Апартаменти в нова сграда, близо до бул. "Тодор Каблешков" и Paradise Center
Манастирски ливади - Изток / София / София / България карта
Клас на сградата: Висок стандарт
Завършване: Юни, 2026 г.
Цени на имотите: 199 333 - 824 268 € (без ДДС)
Цени на м²: 2 781 - 3 486 €/м2 (без ДДС)
ПРОДАЖБА
ПРОЕКТ
Разкошен пентхаус с гледка към Витоша и Парк-хотел "Москва" в кв. "Изток"
Изток / София / София / България карта
Клас на сградата/комплекса: Висок стандарт
Площ: 314.22 м2
Цена: 1 580 000 € /// 5 028 €/м2
ПРОДАЖБА
ПРОЕКТ
Петстаен пентхаус с гледка към Витоша в иновативен комплекс в кв. "Бояна"
Бояна / София / София / България карта
Клас на сградата/комплекса: Висок стандарт
Площ: 243.91 м2
Цена: 695 144 € /// 2 850 €/м2
Изберете тази опция и ще Ви уведомяваме по имейла при настъпили промени по статуса на офертата, например:
• Промяна на цената;
• Имотът влезе в промоционално предложение;
• Имотът бъде резервран или продаден;
• Други новости, свързани с имота.
• Имотът бъде свален от продажба;
Може да се отпишете от нотификациите лесно, когато пожелаете.• Промени по условията на офертата;
• Промяна в сумата на инвестицията;
• Предметът на инвестицията е изцяло реализиран;
• Валидността на офертата е изтекла.
Може лесно да се отпишете, ако в бъдеще решите, че повече не желаете да следите тази оферта.
За да получите абсолютно коректна информация относно свободните имоти, налични за продажба в проекта и техните актуални цени, моля свържете се с нашия офис на посочената информация за контакт.
Ние полагаме усилия, за да поддържаме нашите ценови листи абсолютно актуални и коректни, но често това е невъзможно, предвид големия брой нови проекти в нашия каталог и силно динамичните продажби.
Благодарим Ви за проявеното разбиране!



...В качеството си на доказан спецалист Stonehard PREMIER работи по пазарното позициониране и продажбите на множество проекти ново строителство, чиято реализация ни е поверена от водещи предприемачески компании в България и чужбина...