Двустаен апартамент в нов комплекс в кв. "Остромила"
Цена:
90 710 € (1 150 €/м2)
*Указаните цени и наличности от свободни имоти в проекта са индикативни. За актуална ценова информация, моля свържете се с нас!
Реф. Номер: PLV-129350 / 4213
Местоположение: Остромила / Пловдив карта
Тип на сграда/комплекс: Жилищен
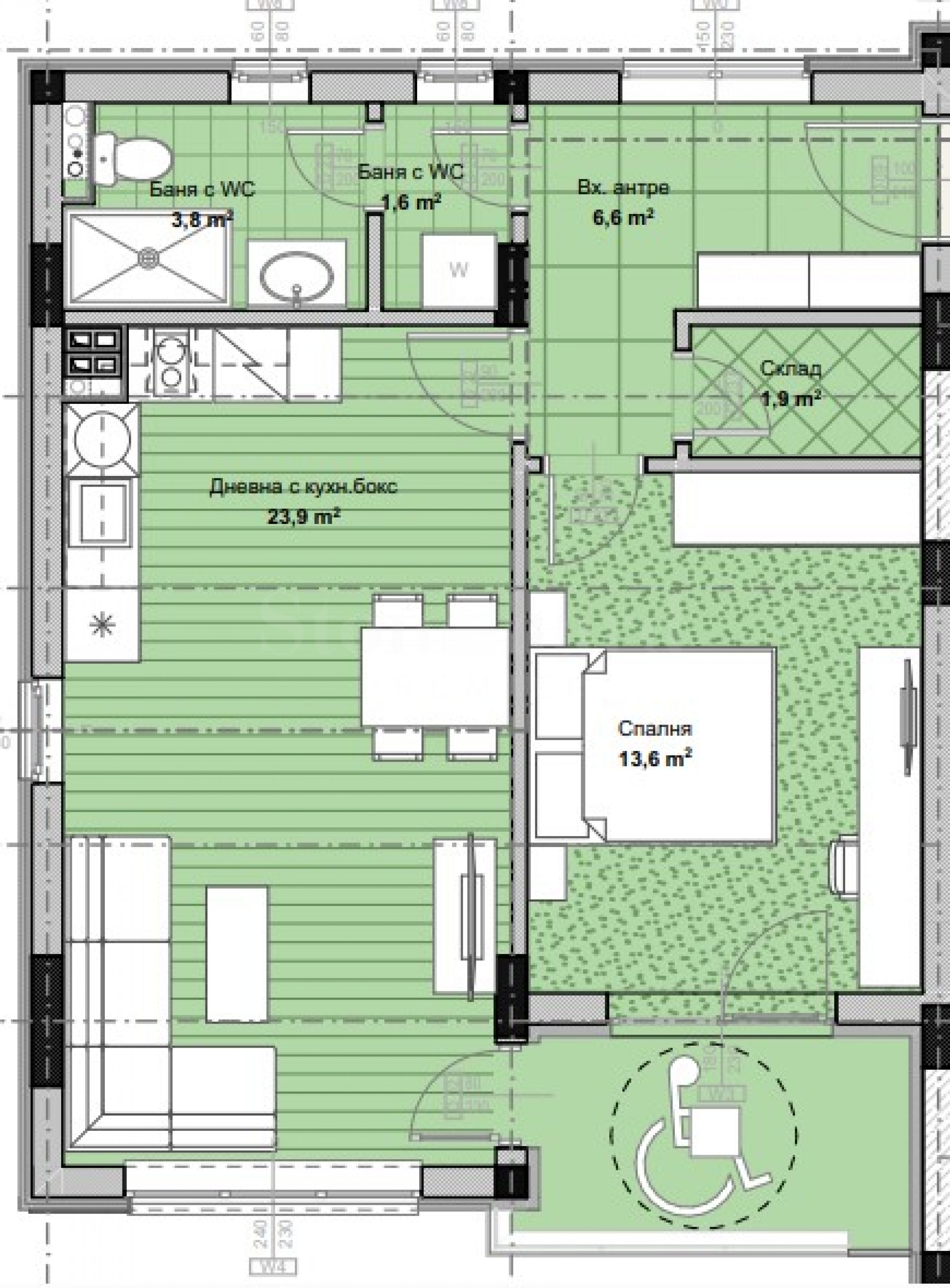
Площи на жилищата: 78.88 м2
Типове имоти в сградата/комплекса: Двустайни апартаменти
Реф. Номер: PLV-129350 / 4213
Местоположение: Остромила / Пловдив
Тип на сграда/комплекс: Жилищен
Клас на сградата/комплекса:
Площи на жилищата: 78.88 м2
Типове имоти в сградата/комплекса: Двустайни апартаменти
Съчетанието между добре обмислена визия, качественно строителство и практични технологии, превръщат комплекса в емблема на модерната градска естетика! По време на проектирането и изпълнението на жилищата, фокусът е да се създадат удобни, практични и уютни домове.
БЕЗ КОМИСИОНА!
Строителството стартира през септември 2025 г., а Акт 16 е предвиден до септември 2027 г.
Комплексът се състои от 3 сгради, всяка на 3 етажа с двустайни и тристайни апартаменти, а на партерно ниво паркоместа и гаражи.
Параметри на имота
Жилището с обща площ от 78,88 кв.м е разположено на 3-ти етаж от 3.
Апартаментите се предават в степен на завършеност по БДС:
• блиндирана входна врата;
• стени и тавани - гипсова мазилка;
• под - циментова замазка;
• ел. инсталация до ключ и контакт;
• ВиК - тръбни разводки на тапа;
• алуминиева дограма , стъклопакет с четирисезонно стъкло;
• напълно завършени тераси;
• хидравличен асансьор;
• завършени общи части;
• контролиран достъп.
За повече информация и организиране на оглед, моля свържете се с отговорния брокер по офертата.
Местоположение на картата
ПРОДАЖБА
ПРОЕКТ
Двустаен апартамент в малък бутиков комплекс в кв. "Христо Смирненски"
Христо Смирненски / Пловдив / Пловдив / България карта
Площ: 75 м2
Цена: 147 900 € /// 1 972 €/м2
ПРОДАЖБА
ПРОЕКТ
Двустаен апартамент в престижен затворен комплекс в кв. "Кършияка"
Кършияка / Пловдив / Пловдив / България карта
Площ: 79.89 м2
Цена: 135 813 € /// 1 700 €/м2
ПРОДАЖБА
ПРОЕКТ
Нов двустаен апартамент в затворен комплекс в кв. "Кючук Париж"
Кючук Париж / Пловдив / Пловдив / България карта
Площ: 71 м2
Цена: 142 000 € /// 2 000 €/м2
Изберете тази опция и ще Ви уведомяваме по имейла при настъпили промени по статуса на офертата, например:
• Промяна на цената;
• Имотът влезе в промоционално предложение;
• Имотът бъде резервран или продаден;
• Други новости, свързани с имота.
• Имотът бъде свален от продажба;
Може да се отпишете от нотификациите лесно, когато пожелаете.• Промени по условията на офертата;
• Промяна в сумата на инвестицията;
• Предметът на инвестицията е изцяло реализиран;
• Валидността на офертата е изтекла.
Може лесно да се отпишете, ако в бъдеще решите, че повече не желаете да следите тази оферта.
За да получите абсолютно коректна информация относно свободните имоти, налични за продажба в проекта и техните актуални цени, моля свържете се с нашия офис на посочената информация за контакт.
Ние полагаме усилия, за да поддържаме нашите ценови листи абсолютно актуални и коректни, но често това е невъзможно, предвид големия брой нови проекти в нашия каталог и силно динамичните продажби.
Благодарим Ви за проявеното разбиране!



...В качеството си на доказан спецалист Stonehard PREMIER работи по пазарното позициониране и продажбите на множество проекти ново строителство, чиято реализация ни е поверена от водещи предприемачески компании в България и чужбина...