Просторен тристаен апартамент в нова жилищна сграда до Бизнес Парк София и метростанция Бизнес парк
Цена:
219 678 € (2 350 €/м2)
*Указаните цени и наличности от свободни имоти в проекта са индикативни. За актуална ценова информация, моля свържете се с нас!
Реф. Номер: AP 125937 / 3762
Местоположение: Младост 4 / София карта
Тип на сграда/комплекс: Жилищен
Площи на жилищата: 93.48 м2
Типове имоти в сградата/комплекса: Тристайни апартаменти
Реф. Номер: AP 125937 / 3762
Местоположение: Младост 4 / София
Тип на сграда/комплекс: Жилищен
Клас на сградата/комплекса:
Площи на жилищата: 93.48 м2
Типове имоти в сградата/комплекса: Тристайни апартаменти
В района има всички удобства като магазини и супермаркети, училища и детски градини, спирки на градски транспорт, удобства за спорт и отдих.
Сградата е 10-етажна и се състои от три входа А, Б и В.
Има възможност за закупуване на паркоместа и гаражи.
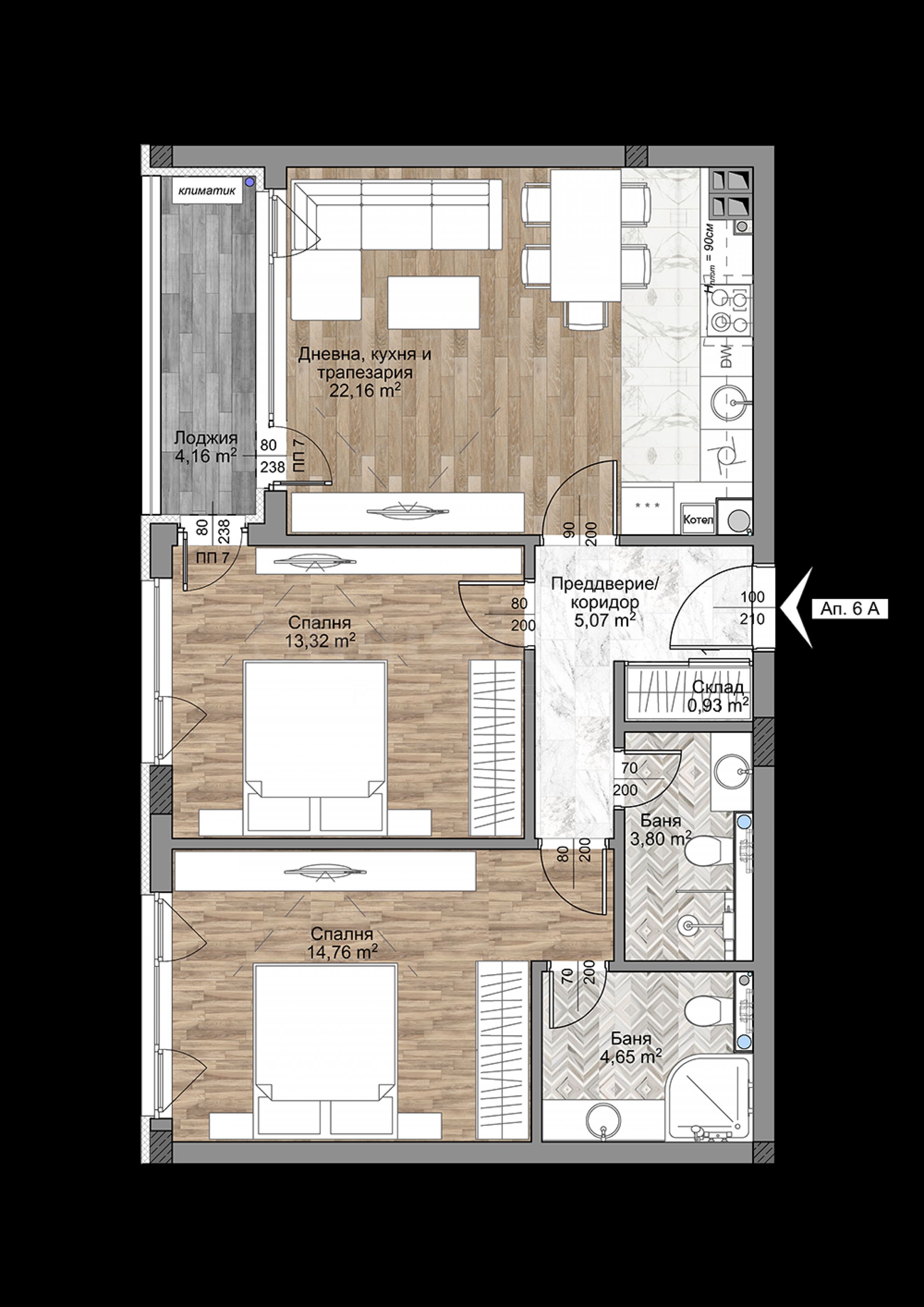
Апартаментът е тристаен, с обща площ 93.48 кв.м. (нетна площ 80.13 кв.м. + общи части 13.35 кв.м.) и е разположен на втори етаж.
Разпределение:
коридор;
дневна с кухня и трапезария;
килер;
две спални;
две бани с тоалетни;
тераса.
Жилището се предлага за продажба качествено завършено по БДС, на шпакловка и замазка.
Технически характеристики:
Висок клас на строителството с най-модерни технологии и материали при изграждането, тухли Винербергер, петкамерна дограма, асансьори висок клас. Общите части са изпълнени луксозно, а настилката е от естествен камък гранит. Отоплението е на газ.
Етап на завършеност:
ВиК инсталации /изпълнени на ниво тапа/;
Електроинсталации, звънчево-домофона инсталация, ТВ инсталация, мълниезащитна инсталация – всичките в напълно завършен вид;
Отоплителна инсталация - на газ;
Вентилационна инсталация;
Гладка вътрешна мазилка с шпакловка;
Бани и санитарни възли на мазилка и замазка;
Вътрешна стандартна дограма;
Външна ПВЦ- дограма със стъклопакет;
Блиндирани входни врати;
Общи части в напълно завършен вид.
Схема на плащане:
Предварителен договор – 40%
Акт 14 – 30%
Акт 16 – 30%
Очакваме Вашето запитване
Ако желаете да организирате оглед на имот, който Ви интересува, или да посетите някой от нашите офиси, моля свържете се с нас. За да уговорите ден и час за среща или оглед, можете да се обадите на посочения в обявата телефон или да изпратите запитване чрез електронната поща. Нашият консултант ще Ви съдейства с всички необходими подробности и ще уговори удобно за Вас време.
Търсите подходящия за Вас имот?
Не се колебайте да се свържете с нас и да ни разкажете за Вашите нужди и предпочитания. Нашият екип ще проведе задълбочено проучване на пазара, за да Ви предложи имоти, които точно отговарят на Вашите критерии. Разполагаме с изключително портфолио от висококачествени и ексклузивни жилища, които са достъпни само за нашите клиенти. За да сте първите, които ще получите информация за тях – свържете се с нас.
Допълнителни услуги
Като ценен клиент на нашата компания, Вие ще имате привилегията да ползвате напълно безплатно услугите на нашия опитен юридически екип. В допълнение, предлагаме комплексни решения, включващи имуществена застраховка, безплатна финансова консултация, както и изгодни условия за финансиране. Нашите услуги се разпростират и в сферата на препродажбата, отдаването под наем и управлението на имоти. Осигуряваме висококачествени ремонтни дейности и обзавеждане чрез специализирани фирми, които са част от нашата корпоративна група и са наши дългогодишни професионални партньори.
Местоположение на картата
ПРОДАЖБА
ПРОЕКТ
Тристаен апартамент с паркомясто във Flora Park
Манастирски ливади - Изток / София / София / България карта
Площ: 128.15 м2
Цена: 500 000 € /// 3 902 €/м2
Бутикови апартаменти в луксозна нова сграда в "Малинова долина"
Малинова долина / София / София / България карта
Клас на сградата: Луксозен
Завършване: Август, 2026 г.
Цени на имотите: 174 575 - 371 115 €
Цени на м²: 2 500 - 2 700 €/м2
Модерна жилищна сграда, съчетаваща спокойствие, стил и удобство
Овча купел 2 / София / София / България карта
Цени на имотите: 152 017 - 229 367 €
Цени на м²: 1 950 - 2 250 €/м2
Изберете тази опция и ще Ви уведомяваме по имейла при настъпили промени по статуса на офертата, например:
• Промяна на цената;
• Имотът влезе в промоционално предложение;
• Имотът бъде резервран или продаден;
• Други новости, свързани с имота.
• Имотът бъде свален от продажба;
Може да се отпишете от нотификациите лесно, когато пожелаете.• Промени по условията на офертата;
• Промяна в сумата на инвестицията;
• Предметът на инвестицията е изцяло реализиран;
• Валидността на офертата е изтекла.
Може лесно да се отпишете, ако в бъдеще решите, че повече не желаете да следите тази оферта.
За да получите абсолютно коректна информация относно свободните имоти, налични за продажба в проекта и техните актуални цени, моля свържете се с нашия офис на посочената информация за контакт.
Ние полагаме усилия, за да поддържаме нашите ценови листи абсолютно актуални и коректни, но често това е невъзможно, предвид големия брой нови проекти в нашия каталог и силно динамичните продажби.
Благодарим Ви за проявеното разбиране!



...В качеството си на доказан спецалист Stonehard PREMIER работи по пазарното позициониране и продажбите на множество проекти ново строителство, чиято реализация ни е поверена от водещи предприемачески компании в България и чужбина...