Cena:
69 817 € (1 501 €/m²)
*Ceny a dostupnost volných nemovitostí v projektu jsou orientační. Pro aktuální informace o cenách nás prosím kontaktujte!
Referenční číslo: LXH-119439 / 3639
Umístění: Tsarevo mapa
Typ budovy/komplexu: Obytný
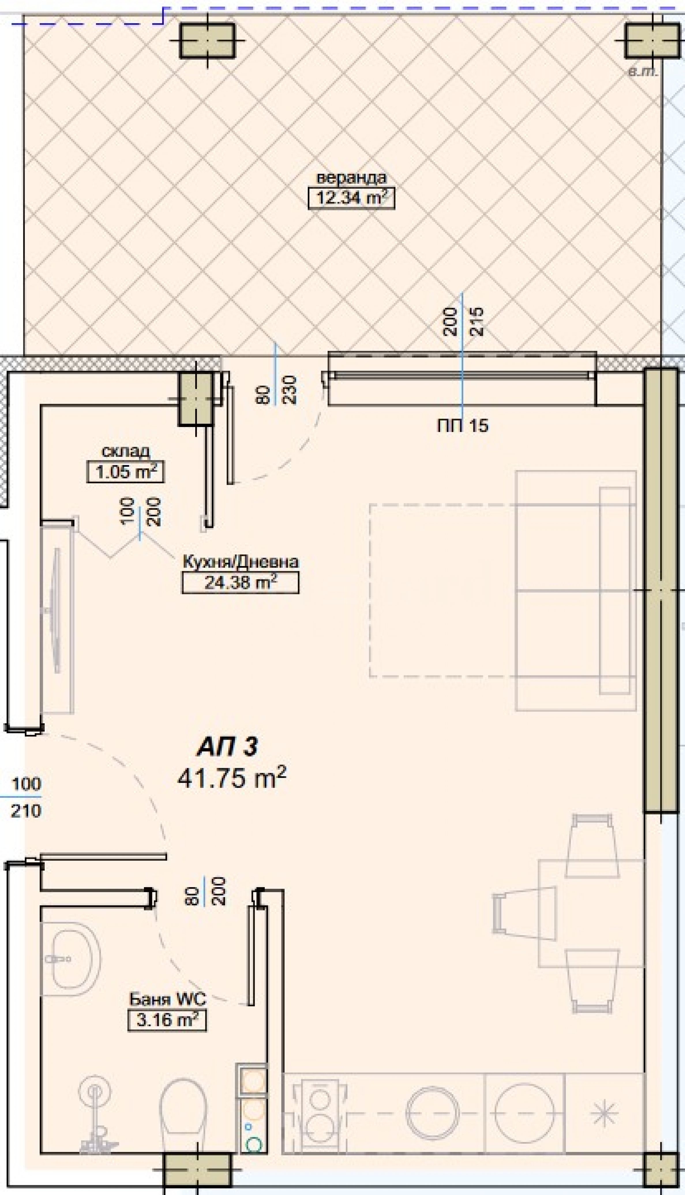
Obytné oblasti: 46.50 m²
Typy nemovitostí v budově/komplexu: Garsonky
Referenční číslo: LXH-119439 / 3639
Umístění: Tsarevo
Typ budovy/komplexu: Obytný
Třída budovy/komplexu:
Obytné oblasti: 46.50 m²
Typy nemovitostí v budově/komplexu: Garsonky
Poloha na mapě
PRODEJ
PROJEKT
Garsoniéra v budově 100 metrů od Centrální pláže v Tsarevu
Tsarevo / Burgas / Bulharsko mapa
Plocha: 33.23 m²
Cena: 44 860 € /// 1 350 €/m²
PRÁVA
PRODEJ
PROJEKT
Nové byty v moderním rezidenčním domě ve městě Carevo
Tsarevo / Burgas / Bulharsko mapa
Třída budovy: Vysoký standard
Ceny nemovitostí: 80 660 - 181 780 €
Ceny za m²: 1 280 - 1 942 €/m²
PRODEJ
PROJEKT
Dva jednoprostorová apartmá v komplexu u pláže Nestinarka, Tsarevo
Tsarevo / Burgas / Bulharsko mapa
Plocha: 104.13 m²
Cena: 108 000 € /// 1 037 €/m²
Vyberte tuto možnost a my vás e-mailem upozorníme na jakékoli změny stavu nabídky, například:
• Změna ceny;
• Nemovitost se zapojila do propagační nabídky;
• Nemovitost je rezervována nebo prodána;
• Další novinky týkající se nemovitosti.
• Nemovitost je stažena z prodeje;
Z odběru oznámení se můžete kdykoli snadno odhlásit.• Změny podmínek nabídky;
• Změna výše investice;
• Předmět investice byl plně realizován;
• Nabídka vypršela.
Pokud se v budoucnu rozhodnete, že tuto nabídku již nechcete sledovat, můžete se snadno odhlásit.
Chcete-li získat naprosto přesné informace o volných nemovitostech k prodeji v projektu a jejich aktuálních cenách, kontaktujte prosím naši kancelář na uvedených kontaktních údajích.
Snažíme se udržovat naše ceníky naprosto aktuální a správné, ale vzhledem k velkému počtu nových projektů v našem katalogu a velmi dynamickému prodeji je to často nemožné.
Děkujeme za pochopení!



...Jako osvědčený specialista pracuje Stonehard PREMIER na tržním umístění a prodeji řady nových stavebních projektů, jejichž realizaci nám svěřily přední podnikatelské společnosti v Bulharsku i v zahraničí...