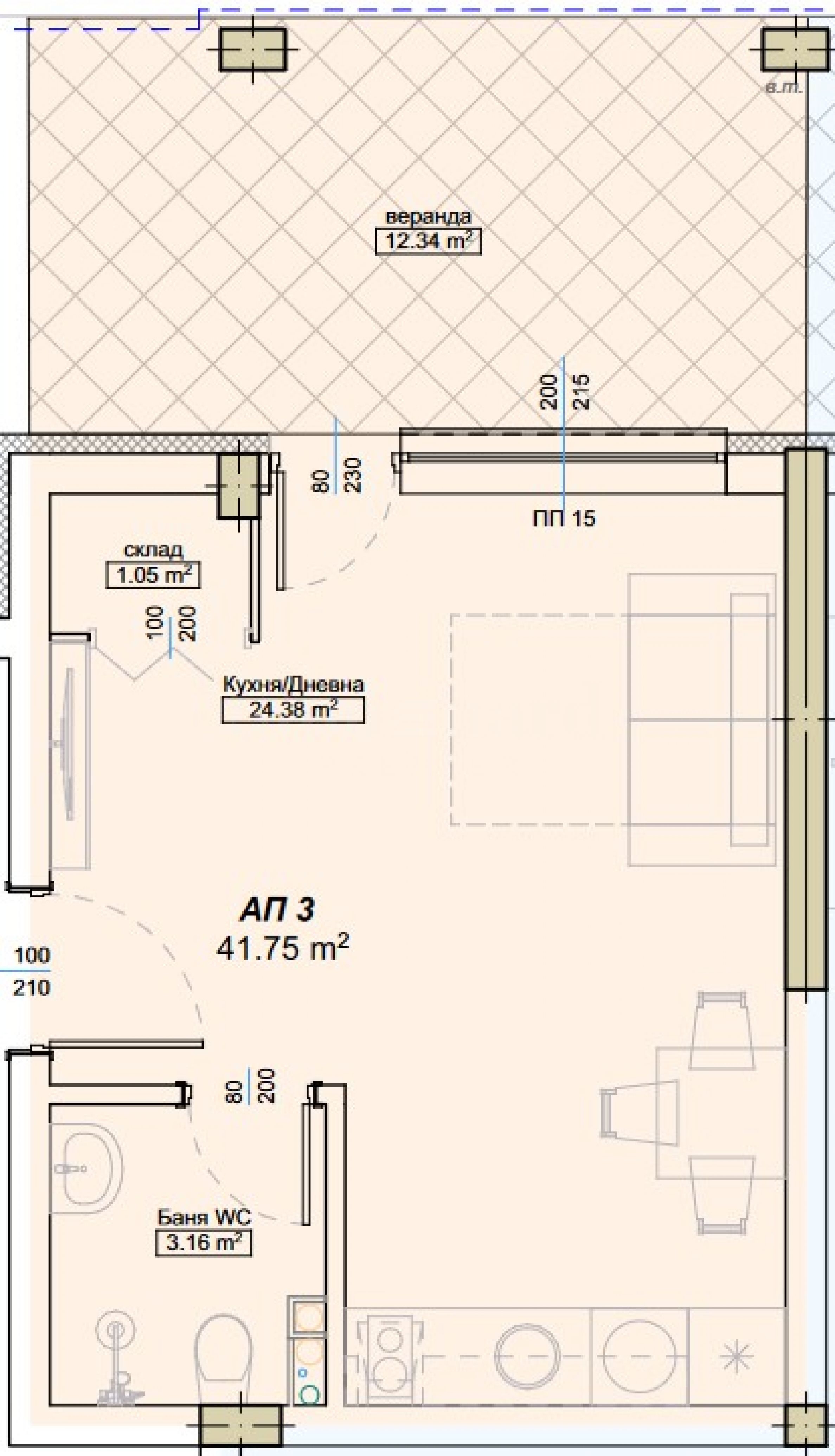
Referenční číslo: LXH-119439 / 3639
Umístění: Tsarevo mapa
Typ budovy/komplexu: Obytný
Obytné oblasti: 46.50 m²
Typy nemovitostí v budově/komplexu: Garsonky
Referenční číslo: LXH-119439 / 3639
Umístění: Tsarevo
Typ budovy/komplexu: Obytný
Třída budovy/komplexu:
Obytné oblasti: 46.50 m²
Typy nemovitostí v budově/komplexu: Garsonky
Poloha na mapě
Nově postavené apartmány vedle centrální pláže v Carevu
Tsarevo / Burgas / Bulharsko mapa
Ceny nemovitostí: 132 238 - 141 464 € (bez DPH)
Ceny za m²: 1 150 - 1 290 €/m² (bez DPH)
Butikové apartmány v novém uzavřeném komplexu jen pár metrů od moře v Carevu
Tsarevo / Burgas / Bulharsko mapa
Ceny nemovitostí: 61 486 - 249 939 €
Ceny za m²: 1 300 - 1 300 €/m²
PRODEJ
PROJEKT
Butiková budova s luxusními apartmány s výhledem na moře v první řadě
Tsarevo / Burgas / Bulharsko mapa
Ceny nemovitostí: 189 600 - 324 000 €
Ceny za m²: 1 500 - 1 801 €/m²
Vyberte tuto možnost a my vás e-mailem upozorníme na jakékoli změny stavu nabídky, například:
• Změna ceny;
• Nemovitost se zapojila do propagační nabídky;
• Nemovitost je rezervována nebo prodána;
• Další novinky týkající se nemovitosti.
• Nemovitost je stažena z prodeje;
Z odběru oznámení se můžete kdykoli snadno odhlásit.• Změny podmínek nabídky;
• Změna výše investice;
• Předmět investice byl plně realizován;
• Nabídka vypršela.
Pokud se v budoucnu rozhodnete, že tuto nabídku již nechcete sledovat, můžete se snadno odhlásit.
Chcete-li získat naprosto přesné informace o volných nemovitostech k prodeji v projektu a jejich aktuálních cenách, kontaktujte prosím naši kancelář na uvedených kontaktních údajích.
Snažíme se udržovat naše ceníky naprosto aktuální a správné, ale vzhledem k velkému počtu nových projektů v našem katalogu a velmi dynamickému prodeji je to často nemožné.
Děkujeme za pochopení!



...Jako osvědčený specialista pracuje Stonehard PREMIER na tržním umístění a prodeji řady nových stavebních projektů, jejichž realizaci nám svěřily přední podnikatelské společnosti v Bulharsku i v zahraničí...