Studio cu verandă într-un complex nou în Tsarevo
Preţ:
69 817 € (1 501 €/m²)
*Prețurile și disponibilitatea proprietăților vacante din cadrul proiectului sunt orientative. Pentru informații actualizate despre prețuri, vă rugăm să ne contactați!
Ref. Număr: LXH-119439 / 3639
Locaţie: Tsarevo hartă
Tipul clădirii/complexului: Rezidențial
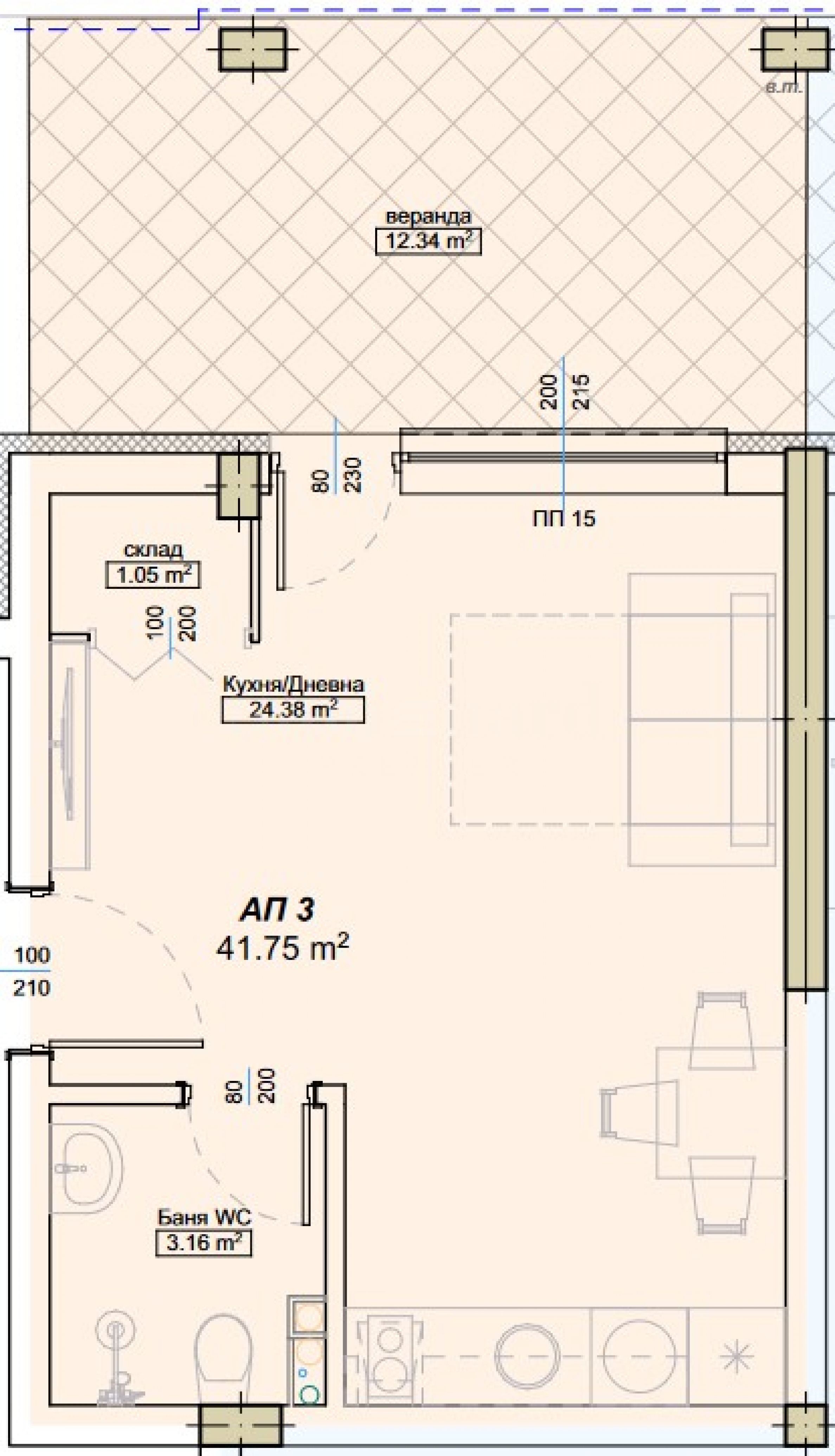
Zone de locuit: 46.50 m²
Tipuri de proprietăți din clădire/complex: Garsoniere
Ref. Număr: LXH-119439 / 3639
Locaţie: Tsarevo
Tipul clădirii/complexului: Rezidențial
Clasa clădirii/complexului:
Zone de locuit: 46.50 m²
Tipuri de proprietăți din clădire/complex: Garsoniere
Actul planificat 16 - mai 2025
Proprietatea are o suprafață totală de 46,50 mp, fiind situată la etajul 1, într-un imobil cu 4 etaje, cu lift și un număr limitat de apartamente - 14 proprietăți și 23 de locuri de parcare.
Proiectată în stil mediteranean, clădirea tip boutique va fi dotată cu materiale de înaltă clasă:
izolații termice și tencuieli pentru fațade - Baumit;
panouri HPL pentru fațadă Fundermax;
cărămizi - Wienerberger;
ferestre din aluminiu. Apartamentele sunt cu un dormitor, două dormitoare și trei dormitoare. Proprietățile sunt închiriate în stare de finalizare, construcții construite: tencuială pe pereți și șapă pe podele, instalație electrică completă. și instalații sanitare, montaj ferestre.
Locaţie
Locație convenabilă între partea centrală a stațiunii - Orașul Nou și cartier. „Vasiliko” - Orașul Vechi, cu vedere la întregul golf dintre cele două cartiere, cu vedere la mare, port și Biserica Adormirii Maicii Domnului. Zona este cunoscută sub numele de „Plaja Albă”. La câțiva pași de plajă, cu faimosul Django Surf & Bar și plaja Nestinarka.
Locație pe hartă
VÂNZARE
PROIECT
Garsonieră într-o clădire la 100 de metri de Plaja Centrală din Tsarevo
Tsarevo / Burgas / Bulgaria hartă
Zonă: 33.23 m²
Preţ: 44 860 € /// 1 350 €/m²
DREPTURI
VÂNZARE
PROIECT
Apartamente noi într-o clădire rezidențială modernă din orașul Tsarevo
Tsarevo / Burgas / Bulgaria hartă
Clasa de construcție: Standard înalt
Prețurile proprietăților: 80 660 - 181 780 €
Prețuri pe m²: 1 280 - 1 942 €/m²
VÂNZARE
PROIECT
Două apartamente cu o cameră într-un complex lângă plaja Nestinarka, Tsarevo
Tsarevo / Burgas / Bulgaria hartă
Zonă: 104.13 m²
Preţ: 108 000 € /// 1 037 €/m²
Selectați această opțiune și vă vom anunța prin e-mail dacă apar modificări ale stării ofertei, de exemplu:
• Modificarea prețului;
• Proprietatea a intrat într-o ofertă promoțională;
• Proprietatea este rezervată sau vândută;
• Alte știri legate de proprietate.
• Proprietatea este scoasă de la vânzare;
Te poți dezabona cu ușurință de la notificări oricând dorești.• Modificări ale termenilor ofertei;
• Modificarea valorii investiției;
• Obiectul investiției a fost realizat integral;
• Oferta a expirat.
Vă puteți dezabona cu ușurință dacă decideți în viitor că nu mai doriți să urmați această ofertă.
Pentru a primi informații absolut corecte despre proprietățile vacante disponibile spre vânzare în cadrul proiectului și prețurile lor actuale, vă rugăm să contactați biroul nostru la informațiile de contact furnizate.
Depunem toate eforturile pentru a menține listele noastre de prețuri absolut actualizate și corecte, dar acest lucru este adesea imposibil, având în vedere numărul mare de proiecte noi din catalogul nostru și vânzările extrem de dinamice.
Vă mulțumim pentru înțelegere!



...În calitate de specialist dovedit, Stonehard PREMIER lucrează la poziționarea pe piață și la vânzările a numeroase proiecte de construcții noi, a căror implementare ne-a fost încredințată de companii antreprenoriale de top din Bulgaria și din străinătate...