Třípokojový byt na prodej v novém butikovém domě v obci Lozen, s AKT 16
na mapě
Cena:
246 807 € (1 980 €/m²)
*Ceny a dostupnost volných nemovitostí v projektu jsou orientační. Pro aktuální informace o cenách nás prosím kontaktujte!
Referenční číslo: SOF 116492 / 3507
Umístění: Lozen mapa
Typ budovy/komplexu: Obytný
Obytné oblasti: 124.65 m²
Typy nemovitostí v budově/komplexu: Dvoupokojov? byty
Referenční číslo: SOF 116492 / 3507
Umístění: Lozen
Typ budovy/komplexu: Obytný
Třída budovy/komplexu:
Obytné oblasti: 124.65 m²
Typy nemovitostí v budově/komplexu: Dvoupokojov? byty
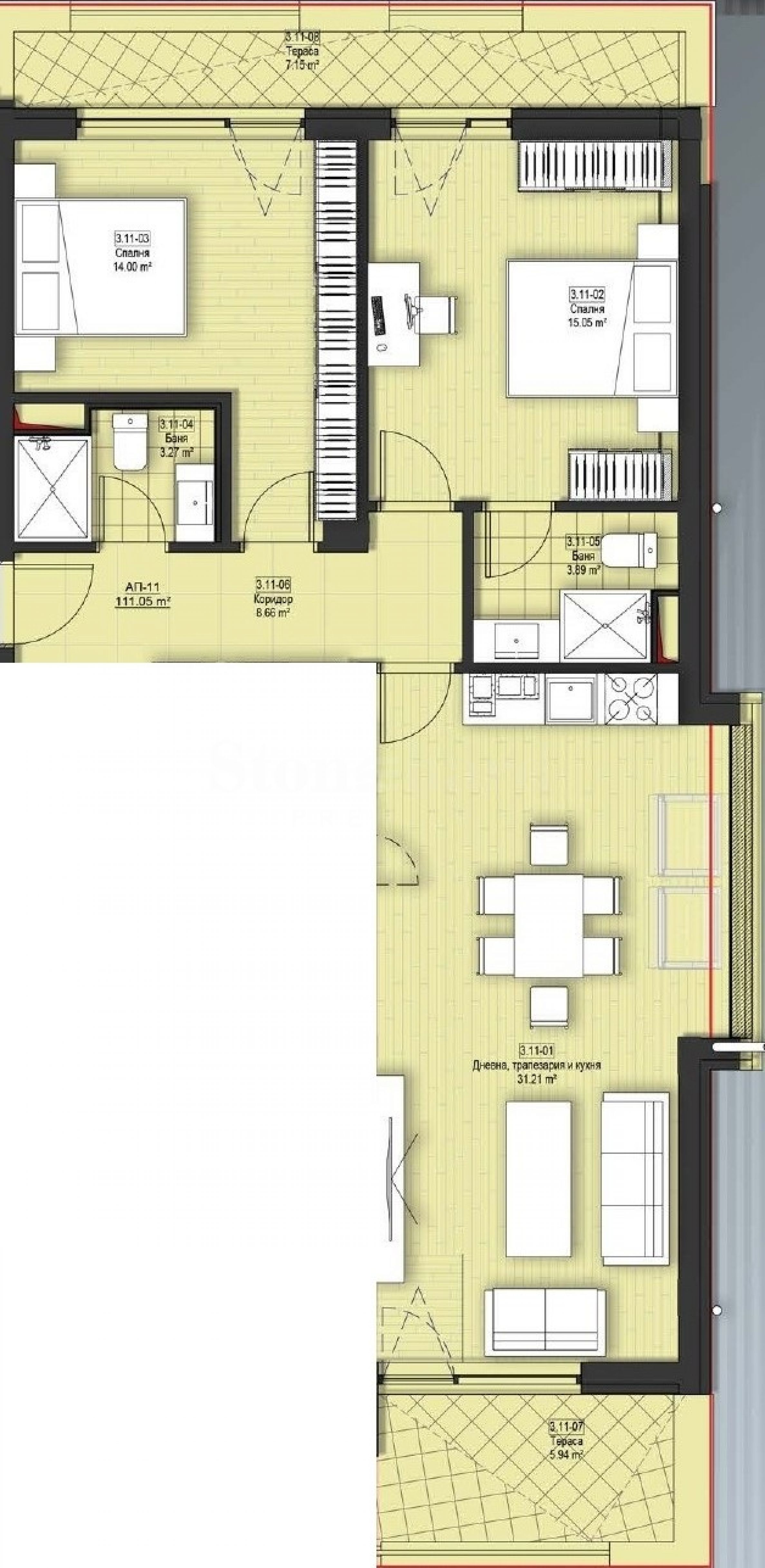
Byt se předává ve stavu omítek a stěrek a nabízí možnost personalizace a výběru materiálů a interiérových řešení.
Nemovitost se nachází ve čtvrtém patře a sestává z prostorného obývacího pokoje s terasou na východ a severní okno (30 m²), dvou ložnic se severozápadní orientací (15 m² a 18 m²), jedna ložnice má vlastní koupelnu, terasu, na kterou se vychází z obou ložnic, je zde také druhá koupelna.
Nemovitost se prodává bez provize od kupujícího.
Bytový dům je postaven z prvotřídních materiálů podle eurokódů a evropských standardů, s energetickým průkazem.
Nabízejí se k prodeji i další dvoupokojové a třípokojové byty s možností úprav dle přání klienta.
Parkování v budově je organizováno v přízemních garážích a venkovních parkovacích místech.
Lozen se nachází blízko hlavního města, což znamená snadný přístup k městským službám, pracovním místům a kulturním atrakcím. To může být výhodou pro lidi, kteří chtějí být blízko městského života. Vesnice nabízí malebné výhledy a možnosti horské turistiky, což může být atraktivní pro milovníky přírody a lidi hledající klid a čerstvý vzduch.
V oblasti se nachází kostel "Sveti Georgi" - historický kostel pocházející z 18. století, který nabízí skvělou architekturu a ikonopis, a klášter "Sveti Ivan Rilski", který je oblíbeným místem pro poutě a meditaci, a 5 km vzdálený klášter Lozenski „Sveti Spas“.
Očekáváme Vaši poptávku
Pokud si přejete zorganizovat prohlídku nemovitosti, která Vás zajímá, nebo navštívit některou z našich kanceláří, prosím kontaktujte nás. Pro sjednání dne a času schůzky nebo prohlídky můžete zavolat na telefon uvedený v inzerátu nebo zaslat poptávku e-mailem. Náš konzultant Vám poskytne všechny potřebné informace a domluví Vám vhodný čas.
Hledáte vhodnou nemovitost pro Vás?
Neváhejte nás kontaktovat a sdělit nám Vaše potřeby a preference. Náš tým provede důkladný průzkum trhu, aby Vám nabídl nemovitosti, které přesně odpovídají Vašim kritériím. Disponujeme vynikajícím portfoliem vysoce kvalitních a exkluzivních bytů, které jsou dostupné pouze našim klientům. Abyste byli první, kdo obdrží informace o nich – kontaktujte nás.
Další služby
Jako ceněný klient naší společnosti budete mít privilegium využívat zcela zdarma služby našeho zkušeného právního týmu. Navíc nabízíme komplexní řešení zahrnující pojištění nemovitosti, bezplatné finanční poradenství a výhodné podmínky financování. Naše služby se rozšiřují i do oblasti přeprodeje, pronájmu a správy nemovitostí. Zajišťujeme vysoce kvalitní opravné práce a vybavení prostřednictvím specializovaných firem, které jsou součástí naší korporátní skupiny a jsou našimi dlouholetými profesionálními partnery.
Poloha na mapě
PRODEJ
PROJEKT
Třípokojový byt na prodej v novém butikovém domě v obci Lozen
Lozen / Sofia / Bulharsko mapa
Plocha: 123.33 m²
Cena: 244 193 € /// 1 980 €/m²
PRODEJ
PROJEKT
Jižní třípokojový byt na prodej v novém butikové budově v obci Lozen, s Akt 16
Lozen / Sofia / Bulharsko mapa
Plocha: 123.33 m²
Cena: 244 193 € /// 1 980 €/m²
Omezený počet bytů v butikové novostavbě v obci Lozen
Lozen / Sofia / Bulharsko mapa
Třída budovy: Vysoký standard
Ceny nemovitostí: 230 317 - 265 144 €
Ceny za m²: 1 895 - 1 895 €/m²
Vyberte tuto možnost a my vás e-mailem upozorníme na jakékoli změny stavu nabídky, například:
• Změna ceny;
• Nemovitost se zapojila do propagační nabídky;
• Nemovitost je rezervována nebo prodána;
• Další novinky týkající se nemovitosti.
• Nemovitost je stažena z prodeje;
Z odběru oznámení se můžete kdykoli snadno odhlásit.• Změny podmínek nabídky;
• Změna výše investice;
• Předmět investice byl plně realizován;
• Nabídka vypršela.
Pokud se v budoucnu rozhodnete, že tuto nabídku již nechcete sledovat, můžete se snadno odhlásit.
Chcete-li získat naprosto přesné informace o volných nemovitostech k prodeji v projektu a jejich aktuálních cenách, kontaktujte prosím naši kancelář na uvedených kontaktních údajích.
Snažíme se udržovat naše ceníky naprosto aktuální a správné, ale vzhledem k velkému počtu nových projektů v našem katalogu a velmi dynamickému prodeji je to často nemožné.
Děkujeme za pochopení!



...Jako osvědčený specialista pracuje Stonehard PREMIER na tržním umístění a prodeji řady nových stavebních projektů, jejichž realizaci nám svěřily přední podnikatelské společnosti v Bulharsku i v zahraničí...