Appartement trois pièces à vendre dans un nouvel immeuble de boutique à s. Lozen, avec ACT 16
sur la carte
Prix:
246 807 € (1 980 €/m 2)
*Les prix et la disponibilité des propriétés vacantes dans ce projet sont donnés à titre indicatif. Pour obtenir les prix les plus récents, veuillez nous contacter !
Réf. Nombre: SOF 116492 / 3507
Emplacement: Lozen carte
Type de bâtiment/complexe: Résidentiel
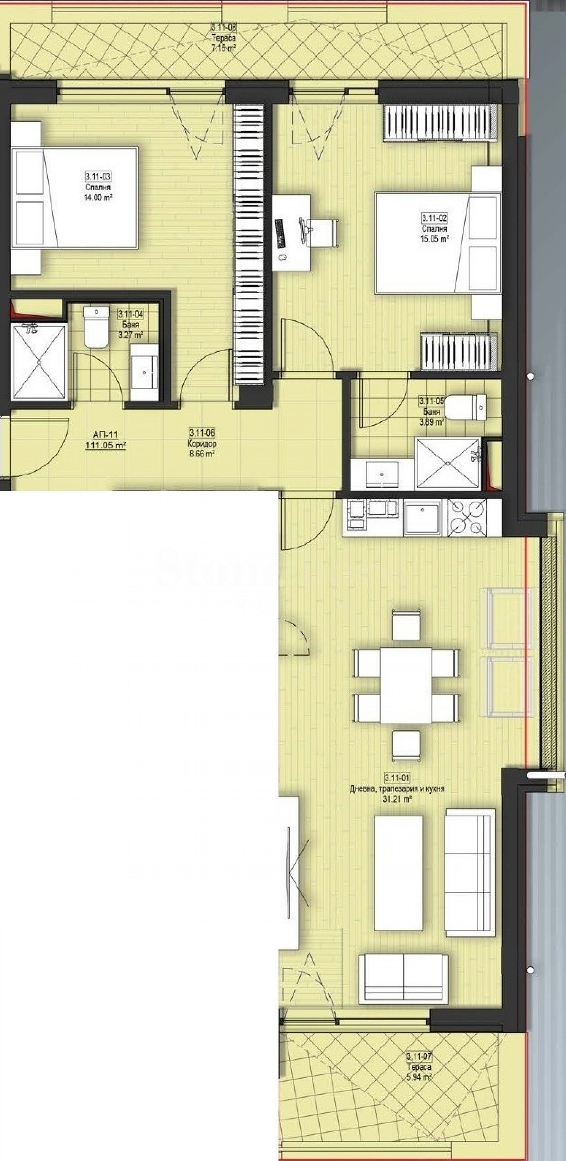
Zones d'habitation: 124.65 m 2
Types de propriétés dans l'immeuble/complexe: Appartements 2 chambres
Réf. Nombre: SOF 116492 / 3507
Emplacement: Lozen
Type de bâtiment/complexe: Résidentiel
Classe de bâtiment/complexe:
Zones d'habitation: 124.65 m 2
Types de propriétés dans l'immeuble/complexe: Appartements 2 chambres
L'appartement est livré en état de plâtrage et de chape, offrant la possibilité de personnalisation et de choix des matériaux et des solutions d'intérieur.
La propriété est située au quatrième étage et se compose d'un salon spacieux avec terrasse orientée à l'est et une fenêtre au nord (30 m²), deux chambres avec exposition nord-ouest (15 m² et 18 m²), l'une des chambres dispose d'une salle de bain privée, d'une terrasse accessible depuis les deux chambres, et il y a une deuxième salle de bain.
La propriété est vendue sans commission pour l'acheteur.
L'immeuble résidentiel est construit avec des matériaux de première qualité selon les eurocodes et les normes européennes, avec un passeport d'efficacité énergétique.
D'autres appartements deux et trois pièces sont également proposés à la vente, avec possibilité de modifications selon les souhaits du client.
Le stationnement dans l'immeuble est organisé dans des garages au rez-de-chaussée et des places de parking extérieures.
Lozén est situé près de la capitale, ce qui signifie un accès facile aux commodités urbaines, aux emplois et aux attractions culturelles. Cela peut être un avantage pour les personnes qui souhaitent être proches de la vie urbaine. Le village offre des vues pittoresques et des possibilités de tourisme de montagne, ce qui peut être attrayant pour les amateurs de nature et les personnes cherchant calme et air frais.
Dans la région se trouvent l'église "Sveti Georgi" - une église historique datant du XVIIIe siècle offrant une architecture remarquable et des icônes, ainsi que le monastère "Sveti Ivan Rilski", un lieu populaire de pèlerinage et de méditation, et à 5 km se trouve le monastère de Lozenski „Sveti Spas“.
Nous attendons votre demande
Si vous souhaitez organiser une visite du bien qui vous intéresse ou visiter l'un de nos bureaux, veuillez nous contacter. Pour convenir d'un jour et d'une heure pour un rendez-vous ou une visite, vous pouvez appeler le numéro indiqué dans l'annonce ou envoyer une demande par courrier électronique. Notre consultant vous assistera avec tous les détails nécessaires et fixera un moment qui vous convient.
Vous cherchez le bien qui vous convient ?
N'hésitez pas à nous contacter et à nous parler de vos besoins et préférences. Notre équipe effectuera une recherche approfondie du marché pour vous proposer des biens correspondant exactement à vos critères. Nous disposons d'un portefeuille exceptionnel de logements de haute qualité et exclusifs, accessibles uniquement à nos clients. Pour être les premiers à recevoir des informations à leur sujet – contactez-nous.
Services supplémentaires
En tant que client précieux de notre société, vous aurez le privilège d'utiliser gratuitement les services de notre équipe juridique expérimentée. De plus, nous proposons des solutions complètes incluant une assurance immobilière, une consultation financière gratuite, ainsi que des conditions avantageuses de financement. Nos services s'étendent également à la revente, à la location et à la gestion immobilière. Nous assurons des travaux de rénovation de haute qualité et un ameublement par des entreprises spécialisées faisant partie de notre groupe corporatif et étant nos partenaires professionnels de longue date.
Localisation sur la carte
VENTE
PROJET
Appartement trois pièces à vendre dans un nouvel immeuble boutique à s. Lozen
Lozen / Sofia / Bulgarie carte
Zone: 123.33 m 2
Prix: 244 193 € /// 1 980 €/m 2
VENTE
PROJET
Appartement trois pièces au sud à vendre dans un nouvel immeuble boutique à s. Lozen, avec Acte 16
Lozen / Sofia / Bulgarie carte
Zone: 123.33 m 2
Prix: 244 193 € /// 1 980 €/m 2
Nombre limité d'appartements dans un immeuble neuf de charme dans le village de Lozen
Lozen / Sofia / Bulgarie carte
Classe de construction: Haut niveau
Prix de l'immobilier: 230 317 - 265 144 €
Prix au m²: 1 895 - 1 895 €/m 2
Sélectionnez cette option et nous vous informerons par e-mail en cas de modification du statut de l'offre, par exemple :
• Changement de prix;
• Le bien fait l’objet d’une offre promotionnelle ;
• Le bien est réservé ou vendu ;
• Autres nouvelles liées à la propriété.
• Le bien est retiré de la vente ;
Vous pouvez facilement vous désabonner des notifications quand vous le souhaitez.• Modifications des conditions de l’offre ;
• Modification du montant de l’investissement ;
• L’objet de l’investissement a été entièrement réalisé ;
• L'offre a expiré.
Vous pouvez facilement vous désinscrire si vous décidez à l'avenir que vous ne souhaitez plus suivre cette offre.
Pour obtenir des informations parfaitement exactes sur les propriétés vacantes disponibles à la vente dans le cadre de ce projet et leurs prix actuels, veuillez contacter notre bureau aux coordonnées indiquées.
Nous mettons tout en œuvre pour que nos listes de prix soient parfaitement à jour et exactes, mais cela est souvent impossible, compte tenu du grand nombre de nouveaux projets dans notre catalogue et du dynamisme des ventes.
Merci pour votre compréhension!



...En tant que spécialiste reconnu, Stonehard PREMIER travaille sur le positionnement sur le marché et la vente de nombreux nouveaux projets de construction, dont la mise en œuvre nous a été confiée par des entreprises entrepreneuriales de premier plan en Bulgarie et à l'étranger...