Ceny nemovitostí v projektu
345 000 - 425 000 € (1 488 - 2 361 €/m²) CENÍK
*Ceny a dostupnost volných nemovitostí v projektu jsou orientační. Pro aktuální informace o cenách nás prosím kontaktujte!
Projekt zahrnuje výstavbu moderních, útulných a energeticky efektivních samostatných domů v čtvrti "Seslavci", která se nachází v severovýchodní části Sofie. Tato oblast je známá svou krásnou přírodou, čistým vzduchem a klidnou atmosférou, což ji činí ideálním místem pro únik z městského prostředí.
Hlavní charakteristiky:
• Typ nemovitostí: samostatné domy se třemi ložnicemi;
• Počet domů: 8;
• Plocha pozemků: od 340 do 570 m²;
• Zastavěná plocha domů: od 180 do 258 m².
Fáze výstavby:
• Projekt bude realizován ve dvou fázích, přičemž fáze I, zahrnující domy č. 1 a č. 2, již má akt 14 a dokončení v srpnu 2026.
• Následující fáze s výstavbou zbývajících 6 domů bude zahájena začátkem dubna 2026.
Technické charakteristiky:
• cihly Wienerberger Porotherm 25 cm;
• cihly vnitřních příček Wienerberger Porotherm 12 cm;
• izolace fasády 15 cm;
• fasádní omítka Baumit;
• dvě automatické garážové brány Hörmann;
• vstupní dveře vysoké kvality;
• okna: 5-komorová PVC, trojité zasklení, 4K sezóna zvenčí – vysoká kvalita;
• bleskosvod;
• vybudované elektro a vodoinstalační rozvody;
• elektrické vytápění s přípravou na instalaci tepelného čerpadla;
• individuální čistička odpadních vod a příprava na připojení k centrální kanalizaci;
• tašky a střešní materiály – Bramac;
• zeleň a zatravnění dvora.
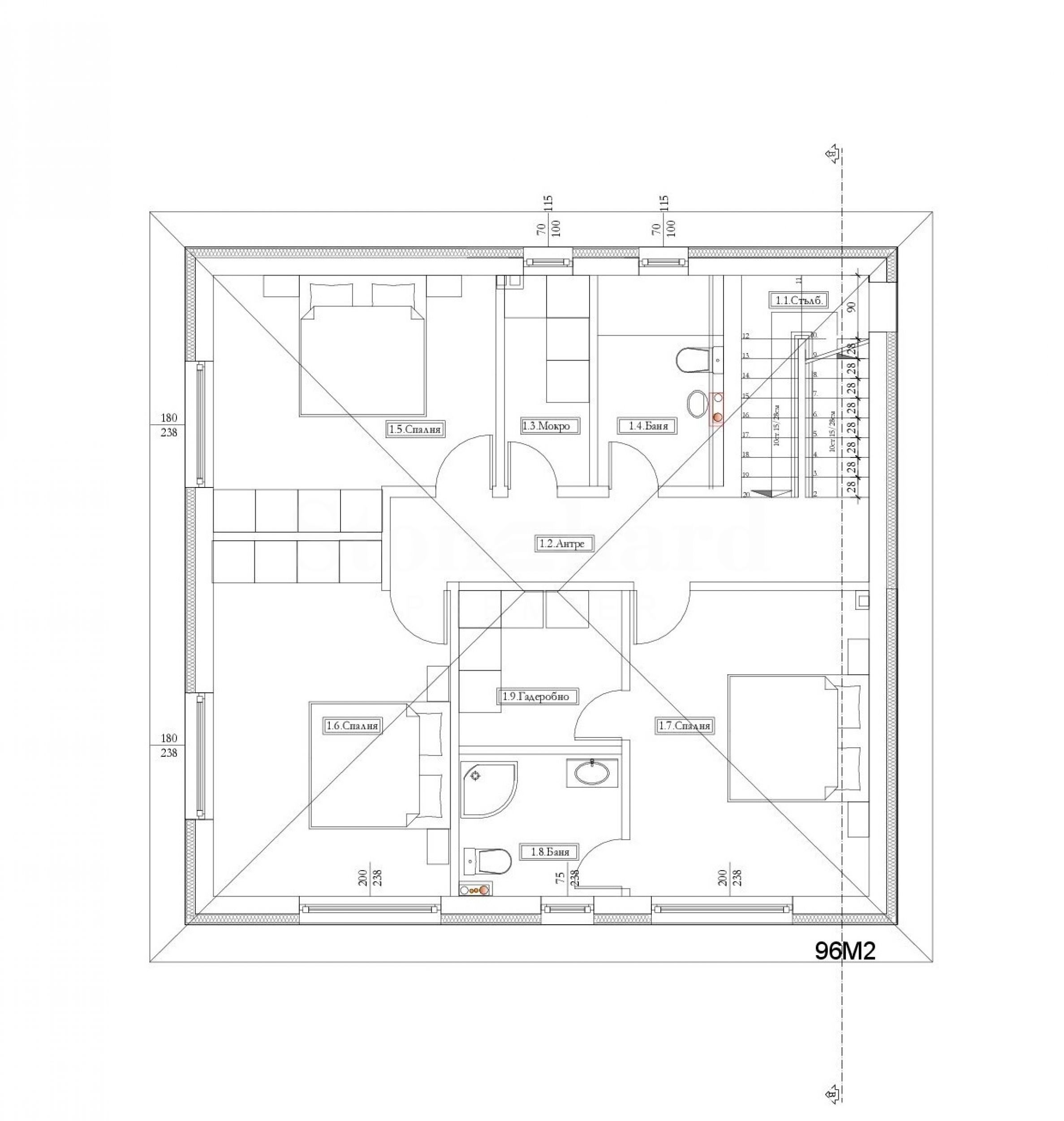
Dispozice domů č. 1 (dvůr 374 m²) a č. 2 (dvůr 394 m²):
• Úroveň suterén – 74,30 m²:
- Vstupní hala – 8,45 m²;
- Dvojgaráž – 34,77 m²;
- Skladovací místnost 1 – 5,38 m²;
- Skladovací místnost 2 – 3,57 m²;
- Schodiště – 8,16 m².
• Úroveň patro 1 (úroveň 0) – 87 m²:
- Obývací pokoj s kuchyňským koutem – 52,73 m²;
- Komora – 3,25 m²;
- Toaleta – 2,11 m²;
- Vstupní hala – 5,84 m²;
- Schodiště – 5,89 m².
• Úroveň patro 2 (úroveň 3,00):
- Ložnice 1 – 13,55 m²;
- Ložnice 2 – 16,32 m²;
- Rodičovská ložnice (14,38 m²) s šatnou (4,96 m²) a koupelnou s toaletou (4,34 m²);
- Koupelna s toaletou – 3,57 m²;
- Prádelna – 3,57 m²;
- Chodba – 8,11 m²;
- Schodiště – 5,89 m².
Dispozice ostatních domů od č. 3 do č. 8 jsou stejné jako u č. 1 a č. 2, ale bez úrovně suterénu.
Standardní platební schéma:
• 20 % – předběžná smlouva;
• 80 % – povolení k užívání.
Výhody projektu:
• Příroda a čistý vzduch: Čtvrť "Seslavci" je obklopena zelení a nabízí krásné výhledy na hory. Čistý vzduch a klid oblasti vytvářejí ideální podmínky pro zdravý a relaxační životní styl.
• Únik z městského prostředí: Domy poskytují možnost soukromí a klidu, daleko od hluku a stresu velkoměsta, přičemž jsou na krátkou vzdálenost od centra Sofie (19 km).
• Moderní vybavení: Každý dům je navržen s důrazem na detail a zahrnuje moderní vybavení jako prostorné obývací pokoje, moderní dispozice, energeticky efektivní systémy a krásné zahrady.
• Bezpečnost a komfort: Projekt zahrnuje komplex s kontrolovaným přístupem, což zaručuje bezpečnost a klid obyvatel.
O oblasti
Projekt samostatných domů v čtvrti Seslavci nabízí jedinečnou příležitost pro komfortní a klidný život v přírodě, aniž byste se museli vzdát výhod městského prostředí. Je to ideální místo pro rodiny hledající rovnováhu mezi prací a osobním životem, stejně jako pro všechny, kteří oceňují kvalitu života a přírodní krásu.
Čtvrť Seslavci se nachází v severovýchodní části Sofie a je součástí oblasti “Kremikovci”. Do roku 1978 byla Seslavci samostatnou vesnicí, ale poté byla připojena k hlavnímu městu. Je známá svou bohatou historií a kulturním dědictvím, včetně několika klášterů. Jedním z nejvýznamnějších je Seslavský klášter "Sv. Nikolaj Mirlikijský". Další významné kláštery v oblasti jsou Kremikovský klášter "Sv. Georgij Pobedonosets" a Buhovský klášter "Sv. Archanjel Mihail".
• Infrastruktura
Seslavci disponuje základní infrastrukturou, včetně pravidelné autobusové linky číslo 117, která spojuje čtvrť s ostatními částmi města. V čtvrti jsou také nově vybudovaná dětská hřiště a sportovní zařízení.
• Škola
V Seslavci je základní škola, která slouží místním dětem a nabízí kvalitní vzdělání.
• Mateřská škola
V roce 2022 byla v Seslavci otevřena nová budova mateřské školy, pobočka MŠ č. 146 „Zvezdica“. Disponuje prostornými hernami a ložnicemi, tělocvičnou a hudebním sálem, stejně jako kuchyňským blokem s úplně novým vybavením. Mateřská škola má také venkovní hřiště a fotbalové hřiště.
• Obchody
V čtvrti je několik malých obchodů s potravinami a dalšími základními potřebami, které slouží místním obyvatelům.
Poloha na mapě
PRODEJ
PROJEKT
Exkluzivní dvojdům s Akt 16 v luxusním uzavřeném komplexu v kv. "Boyana"
Boyana / Sofia / Sofia / Bulharsko mapa
Plocha: 200.87 m²
Cena: 425 000 € ///
PRODEJ
PROJEKT
Exkluzivní dům v elitním uzavřeném komplexu v kv. "Boyana"
Boyana / Sofia / Sofia / Bulharsko mapa
Plocha: 160.59 m²
Cena: 405 000 € ///
PRODEJ
PROJEKT
Butikové domy novostavby na úpatí Vitoshy
Dragalevtsi / Sofia / Sofia / Bulharsko mapa
Ceny nemovitostí: 670 000 - 820 000 € (bez DPH)
Ceny za m²: 2 078 - 2 204 €/m² (bez DPH)
Vyberte tuto možnost a my vás e-mailem upozorníme na jakékoli změny stavu nabídky, například:
• Změna ceny;
• Nemovitost se zapojila do propagační nabídky;
• Nemovitost je rezervována nebo prodána;
• Další novinky týkající se nemovitosti.
• Nemovitost je stažena z prodeje;
Z odběru oznámení se můžete kdykoli snadno odhlásit.• Změny podmínek nabídky;
• Změna výše investice;
• Předmět investice byl plně realizován;
• Nabídka vypršela.
Pokud se v budoucnu rozhodnete, že tuto nabídku již nechcete sledovat, můžete se snadno odhlásit.
Chcete-li získat naprosto přesné informace o volných nemovitostech k prodeji v projektu a jejich aktuálních cenách, kontaktujte prosím naši kancelář na uvedených kontaktních údajích.
Snažíme se udržovat naše ceníky naprosto aktuální a správné, ale vzhledem k velkému počtu nových projektů v našem katalogu a velmi dynamickému prodeji je to často nemožné.
Děkujeme za pochopení!



...Jako osvědčený specialista pracuje Stonehard PREMIER na tržním umístění a prodeji řady nových stavebních projektů, jejichž realizaci nám svěřily přední podnikatelské společnosti v Bulharsku i v zahraničí...