Двустаен апартамент в модерен комплекс с две елегантни сгради в кв. "Кършияка"
REF#PLV-136917
/
Двустайни апартаменти
/
Реализирани проекти
/
Пловдив
/
Кършияка
/
Пловдив
/
България
на картата
Цена:
104 531 € (1 450 €/м2)
*Указаните цени и наличности от свободни имоти в проекта са индикативни. За актуална ценова информация, моля свържете се с нас!
Реф. Номер: PLV-136917 / 4298
Местоположение: Кършияка / Пловдив карта
Тип на сграда/комплекс: Жилищен
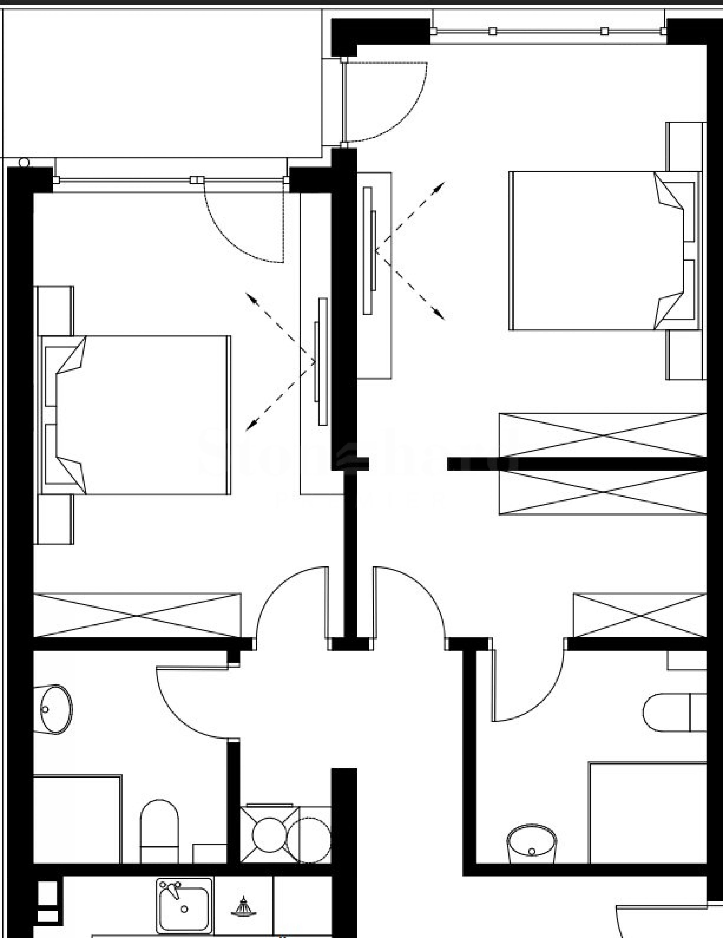
Площи на жилищата: 72.09 м2
Типове имоти в сградата/комплекса: Двустайни апартаменти
Реф. Номер: PLV-136917 / 4298
Местоположение: Кършияка / Пловдив
Тип на сграда/комплекс: Жилищен
Клас на сградата/комплекса:
Площи на жилищата: 72.09 м2
Типове имоти в сградата/комплекса: Двустайни апартаменти
Строителството стартира началото на август 2025 г., а Акт 16 е предвиден през август 2028 г.
БЕЗ КОМИСИОНА!
Проектът включва две малки, елегантни жилищни сгради и 4 жилищни секции със съвременна архитектура - нискоетажно застрояване с кота корниз 10 м. Секциите са типизирани - огледални и повтаряеми и предлагат двустайни, тристайни и четиристайни апартаменти. Комплексът разполага с 24-часово видеонаблюдение и богата паркова среда - 4000 кв.м с два детски къта и фитнес на открито.
Жилищата са проектирани с функционални разпределения, които отговарят на нуждите на съвременните семейства и индивидуални наематели, предлагащи простор, светлина и енергийна ефективност.
Параметри на имота
Жилището с обща площ от 72,09 кв.м се намира на 2-ри етаж от 5.
Апартаментите се предават в степен на завършеност по БДС, на шпакловка и замазка.
Сградите са изградени с най-висококачествени материали, като се обръща специално внимание на топло-, шумо- и хидроизолацията. Тези системи са инсталирани така, че да минимизират разходите за енергия, като същевременно осигуряват отлична защита от външни шумове и влага.
Технически характеристики:
• 5-камерна PVC дограма с двоен стъклопакет;
• асансьор - ТЕХПРО и КО, електрически с височина на кабината - 220 см;
• изолация - EPS минимум 10 см плътност 18 кг + на кубик;
• фасади - топлоизолационен пакет, осветление.
Паркирането е осигурено в подземен паркинг с 21 паркоместа и 100 гаража, които могат да се закупят допълнително.
схема на плащане:
• 30% при подписване на предварителен договор;
• 60% при Акт 14;
• 10% при Акт 16.
Проектът е дело на доказан инвеститор с над 10 реализирани проекта и 10 години опит на пазара.
За повече информация, моля свържете се с отговорния брокер по офертата.
Местоположение на картата
ПРОДАЖБА
ПРОЕКТ
Двустаен апартамент в нов модерен комплекс в кв. "Христо Смирненски"
Христо Смирненски / Пловдив / Пловдив / България карта
Площ: 72 м2
Цена: 180 000 € /// 2 500 €/м2
Жилища в нов иновативен комплекс в кв. "Христо Смирненски"
Христо Смирненски / Пловдив / Пловдив / България карта
Планирано начало: Март, 2026 г.
Очаквано завършване: Март, 2029 г.
Цени на имотите: 82 871 - 391 179 €
Цени на м²: 1 370 - 1 500 €/м2
ПРОДАЖБА
ПРОЕКТ
Модерен нов двустаен апартамент в затворен комплекс до Mall Plovdiv
Христо Смирненски / Пловдив / Пловдив / България карта
Площ: 73 м2
Цена: 157 000 € /// 2 151 €/м2
Изберете тази опция и ще Ви уведомяваме по имейла при настъпили промени по статуса на офертата, например:
• Промяна на цената;
• Имотът влезе в промоционално предложение;
• Имотът бъде резервран или продаден;
• Други новости, свързани с имота.
• Имотът бъде свален от продажба;
Може да се отпишете от нотификациите лесно, когато пожелаете.• Промени по условията на офертата;
• Промяна в сумата на инвестицията;
• Предметът на инвестицията е изцяло реализиран;
• Валидността на офертата е изтекла.
Може лесно да се отпишете, ако в бъдеще решите, че повече не желаете да следите тази оферта.
За да получите абсолютно коректна информация относно свободните имоти, налични за продажба в проекта и техните актуални цени, моля свържете се с нашия офис на посочената информация за контакт.
Ние полагаме усилия, за да поддържаме нашите ценови листи абсолютно актуални и коректни, но често това е невъзможно, предвид големия брой нови проекти в нашия каталог и силно динамичните продажби.
Благодарим Ви за проявеното разбиране!



...В качеството си на доказан спецалист Stonehard PREMIER работи по пазарното позициониране и продажбите на множество проекти ново строителство, чиято реализация ни е поверена от водещи предприемачески компании в България и чужбина...