Тристаен апартамент ново строителство на 250 метра от плажа в Несебър
Цена:
112 145 € (1 375 €/м2)
*Указаните цени и наличности от свободни имоти в проекта са индикативни. За актуална ценова информация, моля свържете се с нас!
Реф. Номер: LXH-133503 / 4614
Местоположение: Несебър карта
Тип на сграда/комплекс: Жилищен
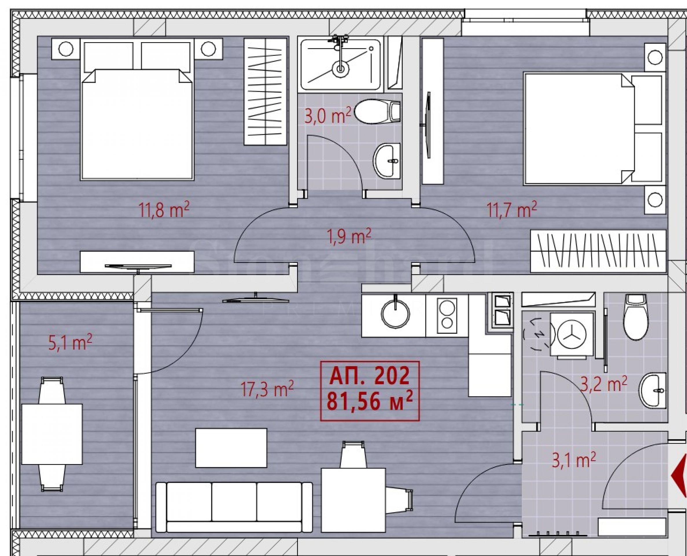
Площи на жилищата: 81.56 м2
Типове имоти в сградата/комплекса: Тристайни апартаменти
Реф. Номер: LXH-133503 / 4614
Местоположение: Несебър
Тип на сграда/комплекс: Жилищен
Клас на сградата/комплекса:
Площи на жилищата: 81.56 м2
Типове имоти в сградата/комплекса: Тристайни апартаменти
Очакван Акт 16 - март 2027 г.
Покупка без комисиона.
Представяме за продажба тристаен апартамент в нова жилищна сграда, без такса поддръжка, разположена в бързо развиващ се район в Несебър.
Локация
Сградата е на 250 метра от плажа, в непосредствена близост до магазин, автобусна спирка, спортен терен, магазини, ресторанти и други удобства.
Имотът е с обща площ от 83,30 кв.м, ситуиран на 4-ти етаж със следното разпределение: антре, дневна с кухня, две спални, баня с тоалет, санитарно помещение и тераса.
Издава се в степен на завършеност "до ключ" има възможност за обзавеждане по предложен от инвеститора дизайн, както и монтаж на електрически топъл под.
Може да бъде закупено паркомясто и складово помещение допълнително.
За сградата
Сградата е проектирана на пет етажа, с 20 апартамента, тристайни и двустайни жилища с функционално разпределени пространства. Предвидена за целогодишно ползване, сградата ще бъде изолирана по всички стандарти за максимално енергоспестяване, с висококачествена дограма от известния производител Rehau.
Очакваме Вашето запитване
Ако желаете да организирате оглед на имот, който Ви интересува, или да посетите някой от нашите офиси, моля свържете се с нас. За да уговорите ден и час за среща или оглед, можете да се обадите на посочения в обявата телефон или да изпратите запитване чрез електронната поща. Нашият консултант ще Ви съдейства с всички необходими подробности и ще уговори удобно за Вас време.
Търсите подходящия за Вас имот?
Не се колебайте да се свържете с нас и да ни разкажете за Вашите нужди и предпочитания. Нашият екип ще проведе задълбочено проучване на пазара, за да Ви предложи имоти, които точно отговарят на Вашите критерии. Разполагаме с изключително портфолио от висококачествени и ексклузивни жилища, които са достъпни само за нашите клиенти. За да сте първите, които ще получите информация за тях – свържете се с нас.
Допълнителни услуги
Като ценен клиент на нашата компания, Вие ще имате привилегията да ползвате напълно безплатно услугите на нашия опитен юридически екип. В допълнение, предлагаме комплексни решения, включващи имуществена застраховка, безплатна финансова консултация, както и изгодни условия за финансиране. Нашите услуги се разпростират и в сферата на препродажбата, отдаването под наем и управлението на имоти. Осигуряваме висококачествени ремонтни дейности и обзавеждане чрез специализирани фирми, които са част от нашата корпоративна група и са наши дългогодишни професионални партньори.
Местоположение на картата
ПРОДАЖБА
ПРОЕКТ
Тристаен апартамент ново строителство в бутикова сграда в Несебър
Несебър / Бургас / България карта
Площ: 102.18 м2
Цена: 270 000 € /// 2 642 €/м2
ПРОДАЖБА
ПРОЕКТ
Модерно обзаведен тристаен апартамент близо до плажа на Несебър
Несебър / Бургас / България карта
Площ: 110 м2
Цена: 169 000 € /// 1 536 €/м2
ПРОДАЖБА
ПРОЕКТ
Тристаен апартамент на 50 метра от плажа в Несебър
Несебър / Бургас / България карта
Площ: 71.63 м2
Цена: 130 000 € /// 1 815 €/м2
Изберете тази опция и ще Ви уведомяваме по имейла при настъпили промени по статуса на офертата, например:
• Промяна на цената;
• Имотът влезе в промоционално предложение;
• Имотът бъде резервран или продаден;
• Други новости, свързани с имота.
• Имотът бъде свален от продажба;
Може да се отпишете от нотификациите лесно, когато пожелаете.• Промени по условията на офертата;
• Промяна в сумата на инвестицията;
• Предметът на инвестицията е изцяло реализиран;
• Валидността на офертата е изтекла.
Може лесно да се отпишете, ако в бъдеще решите, че повече не желаете да следите тази оферта.
За да получите абсолютно коректна информация относно свободните имоти, налични за продажба в проекта и техните актуални цени, моля свържете се с нашия офис на посочената информация за контакт.
Ние полагаме усилия, за да поддържаме нашите ценови листи абсолютно актуални и коректни, но често това е невъзможно, предвид големия брой нови проекти в нашия каталог и силно динамичните продажби.
Благодарим Ви за проявеното разбиране!



...В качеството си на доказан спецалист Stonehard PREMIER работи по пазарното позициониране и продажбите на множество проекти ново строителство, чиято реализация ни е поверена от водещи предприемачески компании в България и чужбина...