Двустаен апартамент с двор в елитен комплекс с Акт 16 до МОЛ Парадайс
на картата
Цена:
245 000 € (3 217 €/м2)
*Указаните цени и наличности от свободни имоти в проекта са индикативни. За актуална ценова информация, моля свържете се с нас!
Реф. Номер: SOF 128909 / 3891
Местоположение: карта
Тип на сграда/комплекс: Жилищен
Площи на жилищата: 76.15 м2
Типове имоти в сградата/комплекса: Двустайни апартаменти
Реф. Номер: SOF 128909 / 3891
Местоположение:
Тип на сграда/комплекс: Жилищен
Клас на сградата/комплекса:
Площи на жилищата: 76.15 м2
Типове имоти в сградата/комплекса: Двустайни апартаменти
Затворен комплекс с просторен зелен двор, детска площадка и нови модерни сгради. Всичко това, разположено в 50 дка зеленина, със социална улица, магазини, заведения и детска градина. Апартаменти от ново поколение – с подово отопление, рекуперация и смарт управление за максимална енергоефективност клас "А".
Вентилируема фасада с първокласни материали – LAMINAM и 4-ен стъклопакет
Дървена дограма с алуминиева капачка – елегантност и изолация в едно
Френски прозорци – повече светлина, повече простор
Шумоизолация и Звукоизолационна мембрана
Смарт кит във всеки апартамент SHELLY
Елегантен вътрешен двор над 4000 кв.м. с лимитиран достъп
24 часа контрол на достъпа с видеонаблюдение
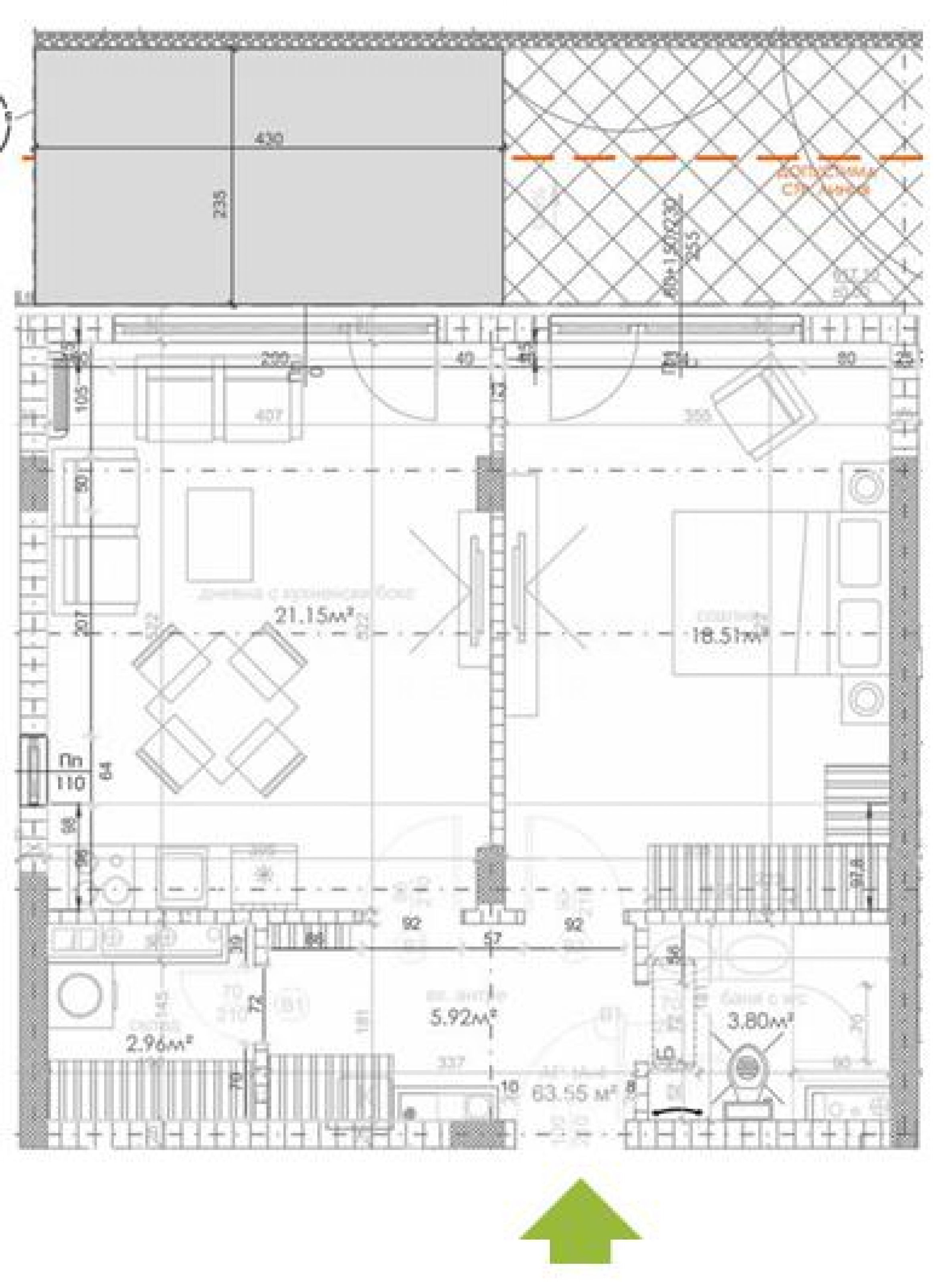
Предлагаме апартамент с Акт 16, разположен на партерен етаж в четири етажна сграда част от луксозен затворен комплекс.
Апартаментът е със самостоятелен двор от 38 кв. и РЗП: 64 кв. м., функционално разпределени между:
антре;
хол с кухненски бокс ;
спалня ;
баня с тоалетна;
мокро помещение;
тераса;
озеленен самостоятелен двор;
Мазе включено в цената.
Проектът е на инвеститор с дългогодишен опит, доказал качествената си работа. За строителството на сградите се използват високачествени строителни материали и съвременни технологии, които осигуряват добрия топлообмен и спестяват множество разходи по поддръжката на сградата.
*Посочените цени са с включено ДДС и не подлежат на допълнителни комисиони.
Оглед на имота
Можем да организираме оглед на имота в удобно за вас време. За целта, свържете се с отговорния за офертата брокер
Резервация на имота
Имотът може да бъде резервиран и свален от продажба със заплащане на депозит, след което се прекратява провеждането на огледи с други купувачи и започва подготовка на документите за сключване на предварителен и окончателен договор. Свържете се с отговорния брокер за този имот за подробна информация относно процедурата на покупка и начините за плащане.
Допълнителни услуги и следпродажбено обслужване
Ние сме реномирана компания и ще бъдем с вас не само по време на покупката, но и след това, осигурявайки ви допълнителни услуги по ваше изискване с цел пълноценно и безпроблемно ползване на новозакупения имот. Услугите, които можем да предложим, включват получаване на одобрение за ипотечен кредит, застраховка на движимо и недвижимо имущество, застраховка живот, медицинско и автомобилно застраховане, строителни и ремонтни дейности, обзавеждане, юридически и счетоводни услуги и др.
Местоположение на картата
Изберете тази опция и ще Ви уведомяваме по имейла при настъпили промени по статуса на офертата, например:
• Промяна на цената;
• Имотът влезе в промоционално предложение;
• Имотът бъде резервран или продаден;
• Други новости, свързани с имота.
• Имотът бъде свален от продажба;
Може да се отпишете от нотификациите лесно, когато пожелаете.• Промени по условията на офертата;
• Промяна в сумата на инвестицията;
• Предметът на инвестицията е изцяло реализиран;
• Валидността на офертата е изтекла.
Може лесно да се отпишете, ако в бъдеще решите, че повече не желаете да следите тази оферта.
За да получите абсолютно коректна информация относно свободните имоти, налични за продажба в проекта и техните актуални цени, моля свържете се с нашия офис на посочената информация за контакт.
Ние полагаме усилия, за да поддържаме нашите ценови листи абсолютно актуални и коректни, но често това е невъзможно, предвид големия брой нови проекти в нашия каталог и силно динамичните продажби.
Благодарим Ви за проявеното разбиране!



...В качеството си на доказан спецалист Stonehard PREMIER работи по пазарното позициониране и продажбите на множество проекти ново строителство, чиято реализация ни е поверена от водещи предприемачески компании в България и чужбина...