Popis projektu
Nový domov uprostřed klidu a pohody, čerstvého vzduchu a krásné přírody!
Představujeme výjimečnou investiční příležitost a klidný rodinný život - řadové domy s moderní architekturou a prvotřídním provedením v jednom z nejslibnějších ekoregionů v okolí Sofie - obci Gurmazovo.
Domy jsou 3 kusy a jsou součástí 1. etapy butikového komplexu řadových domů, navrženého s důrazem na detail, moderní vizi a maximální funkčnost prostor. Jsou vhodné pro celoroční bydlení. Předpokládané uvedení do provozu (akát 16) je naplánováno na červenec 2026.
Uvedené ceny jsou bez DPH.
Komplex se nachází pouhých 20 minut od centra hlavního města, s vynikající komunikací, tichem a přírodou. Oblast se vyznačuje novou výstavbou a moderní infrastrukturou, která kombinuje soukromí a pohodlí se snadnou dostupností do města. Obec se nachází pouhé 3 km od Božurište, asi 14 km od Bankji a 8 km od stanice metra Slivnica. Díky vzdušným proudům z Bankji je zdejší vzduch považován za čistý a léčivý, oblast je považována za jednu z nejekologicky nejudržitelnějších v blízkosti Sofie.
Parametry
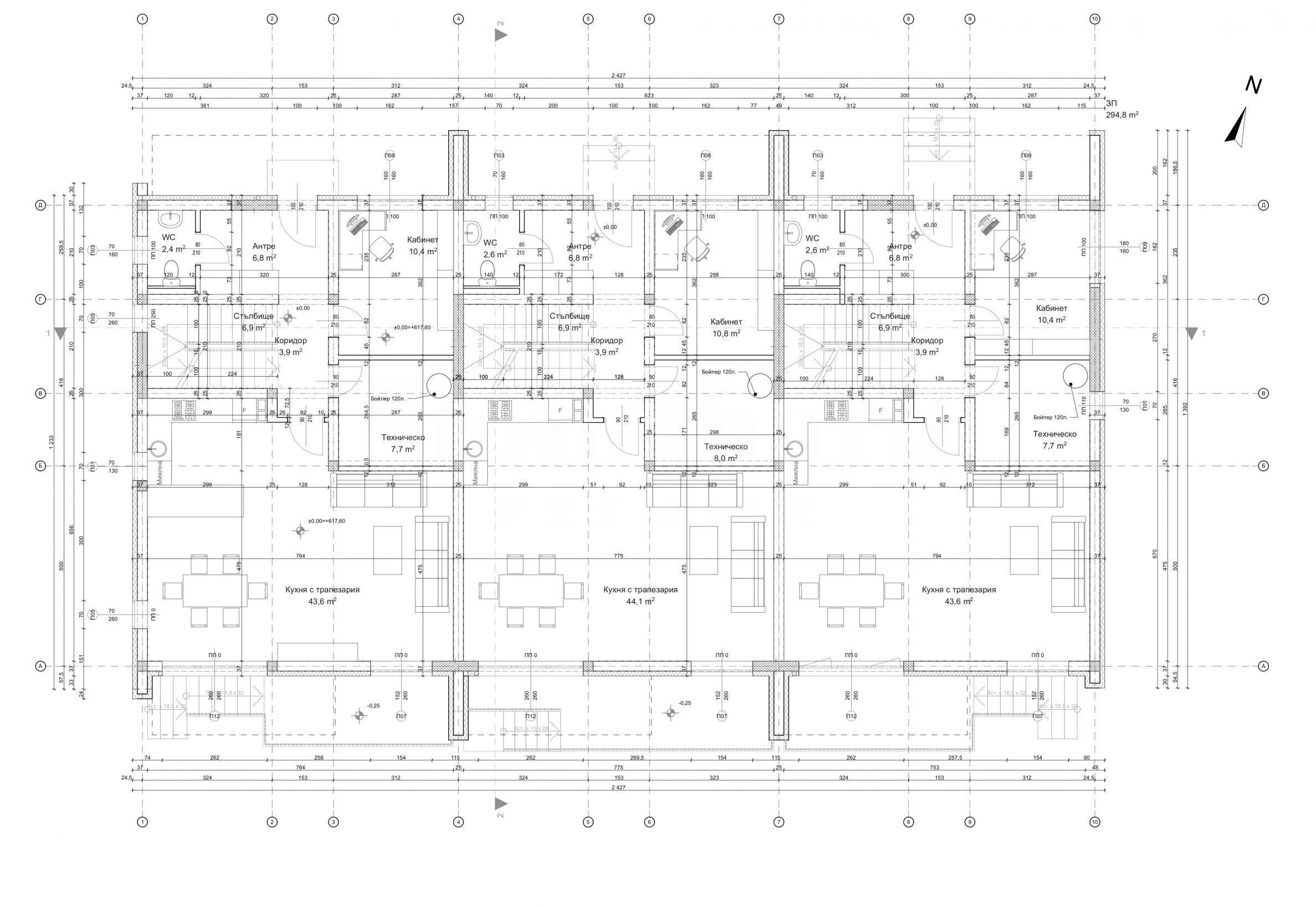
Celková zastavěná plocha domů se pohybuje od 213 do 215 m² a kromě této plochy je ke každé nemovitosti přistavěno další suterénní podlaží o rozloze 100 m².
Dispozice je mimořádně pohodlná a vhodná pro rodinu:
• V prvním patře se nachází garáž, kotelna, vstupní hala, obývací prostor s kuchyní a jídelnou s přímým vstupem na vlastní dvůr, toaleta pro hosty;
• Ve druhém patře - tři samostatné ložnice, dvě koupelny s toaletami, dva balkony.
Suterén je další prostor, který nabízí řadu možností - sklad, posilovnu, kino nebo vinotéku.
Domy jsou nabízeny ve stupni dokončení "dle bulharských stavebních norem" , výstavba je provedena z vysoce kvalitních materiálů a technologických řešení nejvyšší třídy:
• Fasáda je vybavena odvětrávaným systémem a obkladem z přírodního kamene, což zajišťuje odolnost a estetiku.
• Truhlářství je německé – Kömmerling, s vynikající zvukovou a tepelnou izolací.
• Nemovitost je vybavena systémem tepelného čerpadla a podlahovým vytápěním – mimořádně efektivní a ekonomické řešení klimatizace po celý rok.
• Součástí dodávky jsou hydrofory pro konstantní tlak vody a německá úpravna vody pro zajištění soběstačnosti a environmentální udržitelnosti.
Těšíme se na váš dotaz.
Pokud byste si chtěli domluvit prohlídku nemovitosti, která vás zajímá, nebo navštívit některou z našich kanceláří, kontaktujte nás prosím. Pro domluvení dne a času schůzky nebo prohlídky můžete zavolat na telefonní číslo uvedené v inzerátu nebo zaslat dotaz e-mailem. Náš konzultant vám pomůže se všemi potřebnými detaily a domluví si s vámi termín, který vám vyhovuje.
Hledáte tu pravou nemovitost pro vás?
Neváhejte nás kontaktovat a sdělit nám své potřeby a preference. Náš tým provede důkladný průzkum trhu, aby vám nabídl nemovitosti, které přesně splňují vaše kritéria. Máme výjimečné portfolio vysoce kvalitních a exkluzivních domů, které jsou k dispozici pouze našim klientům. Chcete-li se o nich dozvědět informace jako první, kontaktujte nás.
Doplňkové služby
Jako vážený klient naší společnosti máte tu čest využívat služeb našeho zkušeného právního týmu zcela zdarma. Kromě toho nabízíme komplexní řešení, včetně pojištění nemovitosti, bezplatného finančního poradenství a také výhodných podmínek financování. Naše služby se rozšiřují i na oblast dalšího prodeje, pronájmu a správy nemovitostí. Provádíme vysoce kvalitní rekonstrukce a vybavení prostřednictvím specializovaných společností, které jsou součástí naší korporátní skupiny a jsou našimi dlouholetými profesionálními partnery.
Představujeme výjimečnou investiční příležitost a klidný rodinný život - řadové domy s moderní architekturou a prvotřídním provedením v jednom z nejslibnějších ekoregionů v okolí Sofie - obci Gurmazovo.
Domy jsou 3 kusy a jsou součástí 1. etapy butikového komplexu řadových domů, navrženého s důrazem na detail, moderní vizi a maximální funkčnost prostor. Jsou vhodné pro celoroční bydlení. Předpokládané uvedení do provozu (akát 16) je naplánováno na červenec 2026.
Uvedené ceny jsou bez DPH.
Komplex se nachází pouhých 20 minut od centra hlavního města, s vynikající komunikací, tichem a přírodou. Oblast se vyznačuje novou výstavbou a moderní infrastrukturou, která kombinuje soukromí a pohodlí se snadnou dostupností do města. Obec se nachází pouhé 3 km od Božurište, asi 14 km od Bankji a 8 km od stanice metra Slivnica. Díky vzdušným proudům z Bankji je zdejší vzduch považován za čistý a léčivý, oblast je považována za jednu z nejekologicky nejudržitelnějších v blízkosti Sofie.
Parametry
Celková zastavěná plocha domů se pohybuje od 213 do 215 m² a kromě této plochy je ke každé nemovitosti přistavěno další suterénní podlaží o rozloze 100 m².
Dispozice je mimořádně pohodlná a vhodná pro rodinu:
• V prvním patře se nachází garáž, kotelna, vstupní hala, obývací prostor s kuchyní a jídelnou s přímým vstupem na vlastní dvůr, toaleta pro hosty;
• Ve druhém patře - tři samostatné ložnice, dvě koupelny s toaletami, dva balkony.
Suterén je další prostor, který nabízí řadu možností - sklad, posilovnu, kino nebo vinotéku.
Domy jsou nabízeny ve stupni dokončení "dle bulharských stavebních norem" , výstavba je provedena z vysoce kvalitních materiálů a technologických řešení nejvyšší třídy:
• Fasáda je vybavena odvětrávaným systémem a obkladem z přírodního kamene, což zajišťuje odolnost a estetiku.
• Truhlářství je německé – Kömmerling, s vynikající zvukovou a tepelnou izolací.
• Nemovitost je vybavena systémem tepelného čerpadla a podlahovým vytápěním – mimořádně efektivní a ekonomické řešení klimatizace po celý rok.
• Součástí dodávky jsou hydrofory pro konstantní tlak vody a německá úpravna vody pro zajištění soběstačnosti a environmentální udržitelnosti.
Těšíme se na váš dotaz.
Pokud byste si chtěli domluvit prohlídku nemovitosti, která vás zajímá, nebo navštívit některou z našich kanceláří, kontaktujte nás prosím. Pro domluvení dne a času schůzky nebo prohlídky můžete zavolat na telefonní číslo uvedené v inzerátu nebo zaslat dotaz e-mailem. Náš konzultant vám pomůže se všemi potřebnými detaily a domluví si s vámi termín, který vám vyhovuje.
Hledáte tu pravou nemovitost pro vás?
Neváhejte nás kontaktovat a sdělit nám své potřeby a preference. Náš tým provede důkladný průzkum trhu, aby vám nabídl nemovitosti, které přesně splňují vaše kritéria. Máme výjimečné portfolio vysoce kvalitních a exkluzivních domů, které jsou k dispozici pouze našim klientům. Chcete-li se o nich dozvědět informace jako první, kontaktujte nás.
Doplňkové služby
Jako vážený klient naší společnosti máte tu čest využívat služeb našeho zkušeného právního týmu zcela zdarma. Kromě toho nabízíme komplexní řešení, včetně pojištění nemovitosti, bezplatného finančního poradenství a také výhodných podmínek financování. Naše služby se rozšiřují i na oblast dalšího prodeje, pronájmu a správy nemovitostí. Provádíme vysoce kvalitní rekonstrukce a vybavení prostřednictvím specializovaných společností, které jsou součástí naší korporátní skupiny a jsou našimi dlouholetými profesionálními partnery.
Kontakty na naši kancelář
Poloha na mapě
PŘIBLIŽNÁ POLOHA
Pro více informací odešlete poptávku
Vyberte tuto možnost a my vás e-mailem upozorníme na jakékoli změny stavu nabídky, například:
• Změna ceny;
• Nemovitost se zapojila do propagační nabídky;
• Nemovitost je rezervována nebo prodána;
• Další novinky týkající se nemovitosti.
• Nemovitost je stažena z prodeje;
Z odběru oznámení se můžete kdykoli snadno odhlásit.
Plocha nemovitostí v Dubaji / SAE se počítá v čtverečních stopách. Všechny plochy v této nabídce jsou automaticky převedeny na metry čtvereční pomocí vzorce 1 m² = 10,7639 čtverečních stop.
Pronajímatel hradí elektřinu, vodu, vytápění/chlazení, internet, kabelovou televizi a likvidaci tuhého odpadu.
Původní cena nemovitosti je uvedena v místní měně, dirhamu (AED). Cena uvedená v jiné měně než dirham je orientační a je automaticky vypočítána pomocí křížového kurzu, který aktualizujeme 4krát denně. Cena uvedená v jiné měně než dirham (AED) se proto neustále mění, i když v malých mezích.
Ceny jsou přibližné. Pro naprosto přesnou cenovou kalkulaci a nabídku kontaktujte prosím odpovědného konzultanta!
Vyberte tuto možnost a začnete dostávat důležité aktualizace týkající se této nabídky e-mailem:
• Změny podmínek nabídky;
• Změna výše investice;
• Předmět investice byl plně realizován;
• Nabídka vypršela.
Pokud se v budoucnu rozhodnete, že tuto nabídku již nechcete sledovat, můžete se snadno odhlásit.
• Změny podmínek nabídky;
• Změna výše investice;
• Předmět investice byl plně realizován;
• Nabídka vypršela.
Pokud se v budoucnu rozhodnete, že tuto nabídku již nechcete sledovat, můžete se snadno odhlásit.
Vyberte tuto možnost a začnete dostávat nové nabídky s podobným investičním předmětem a nacházejícími se ve stejné oblasti.
Veškeré nové nabídky a aktuální informace o našich aktivitách budete dostávat e-mailem.
Vzhledem k současné silné prodejní a tržní dynamice se ceny a dostupnost volných nemovitostí v tomto projektu uvedené na našich stránkách mohou mírně lišit od aktuálních.
Chcete-li získat naprosto přesné informace o volných nemovitostech k prodeji v projektu a jejich aktuálních cenách, kontaktujte prosím naši kancelář na uvedených kontaktních údajích.
Snažíme se udržovat naše ceníky naprosto aktuální a správné, ale vzhledem k velkému počtu nových projektů v našem katalogu a velmi dynamickému prodeji je to často nemožné.
Děkujeme za pochopení!
Chcete-li získat naprosto přesné informace o volných nemovitostech k prodeji v projektu a jejich aktuálních cenách, kontaktujte prosím naši kancelář na uvedených kontaktních údajích.
Snažíme se udržovat naše ceníky naprosto aktuální a správné, ale vzhledem k velkému počtu nových projektů v našem katalogu a velmi dynamickému prodeji je to často nemožné.
Děkujeme za pochopení!


