Nouvel appartement de deux pièces à Belvedere Holiday Club à Bansko
Prix:
89 425 € (hors TVA) (1 250 €/m 2 (hors TVA))
*Les prix et la disponibilité des propriétés vacantes dans ce projet sont donnés à titre indicatif. Pour obtenir les prix les plus récents, veuillez nous contacter !
Réf. Nombre: STO-128755 / 4138
Emplacement: Bansko carte
Type de bâtiment/complexe: Résidentiel
Classe de bâtiment/complexe: Standard
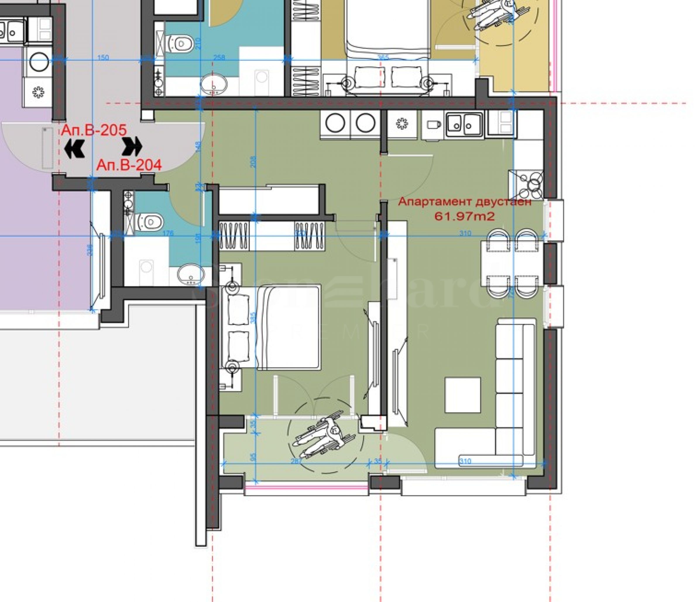
Zones d'habitation: 71.54 m 2
Types de propriétés dans l'immeuble/complexe: Appartements 1 chambre
Réf. Nombre: STO-128755 / 4138
Emplacement: Bansko
Type de bâtiment/complexe: Résidentiel
Classe de bâtiment/complexe: Standard
Zones d'habitation: 71.54 m 2
Types de propriétés dans l'immeuble/complexe: Appartements 1 chambre
Nous présentons en exclusivité à la vente un appartement de deux pièces dans un nouvel immeuble du complexe populaire Belvedere Holiday Club à Bansko.
Le "Belvedere Holiday Club" récemment construit et déjà entièrement opérationnel est un complexe de vacances de haute qualité, l'un des meilleurs endroits de montagne pour se détendre en Bulgarie ! Le complexe est fermé, composé d'appartements fonctionnels et complété par d'excellentes commodités et installations de loisirs et de divertissement. Il est situé dans la nouvelle zone moderne de Bansko, à seulement environ 400 m du téléphérique et à proximité immédiate du nouveau centre commercial Mall of Bansko.
Le nouvel immeuble à venir offre une façade ventilée moderne en HPL, dans les couleurs traditionnelles du complexe, réparti sur 5 étages avec deux entrées - "A" et "B", avec un ascenseur moderne. Il propose un choix de studios spacieux, d'appartements deux et trois pièces.
L'appartement deux pièces proposé a une superficie totale de 71,54 m², situé au 2ème étage, livré en état "clés en main".
Finitions :
• installations pour le drainage de l'eau des climatiseurs - système split et multisplit ;
• sol - parquet stratifié de haute qualité et carrelage dans le couloir et la partie cuisine ;
• salles de bains finies, avec chauffe-eau, carrelage ;
• murs - briques Wienerberger, murs intérieurs - brique de 25 cm ;
• plafonds - enduit de plâtre avec angles en aluminium ;
• peinture latex - blanche ;
• menuiserie PVC - profil 5 chambres, couleur graphite à l'extérieur, blanc à l'intérieur, double vitrage triple ;
• garde-corps - métalliques ;
• portes - d'entrée ;
• portes intérieures.
Caractéristiques techniques de l'immeuble :
• revêtement - façade ventilée en HPL ;
• cadres de fenêtres en aluminium ;
• isolation de 12 cm, enduit blanc et gris ;
• tuiles Bramac ;
• petites cours - béton au rez-de-chaussée, sans pelouses ;
• installations sanitaires - chauffe-eau 100 l, compteurs d'eau froide avec lecture à distance, ventilation ;
• parties communes entièrement finies - escaliers en granit, carrelage dans les halls et couloirs ;
• vidéosurveillance - à l'entrée dans le hall - autour du bâtiment ;
• contrôle d'accès ;
• luminaires dans les parties communes avec détecteurs ;
• câblage pour Internet et câble ;
• système d'interphone (câble pour vidéosurveillance) ;
• ascenseur - électromécanique - Orona pour 8 personnes, 2 ascenseurs, un dans chaque entrée ;
• alimentation en eau, égouts et électricité.
Plan de paiement :
• 20% à la signature du contrat préliminaire ;
• 20% à la hauteur où se trouve l'appartement ;
• 20% à l'Acte 14 ;
• 30% à l'Acte 15 ;
• 10% à l'Acte 16.
La première phase du complexe est entièrement terminée, fonctionne avec succès et dispose d'un permis d'utilisation (Acte 16) depuis 2008. Elle se compose de trois blocs d'appartements.
Extras et installations dans "Belvedere Holiday Club"
• Restaurant moderne "Belvedere Classico", proposant une cuisine européenne et des plats traditionnels de la région. Des tarifs préférentiels sont proposés aux propriétaires et pour le room service ;
• Piscine couverte chauffée avec zone pour adultes et zone pour enfants à température constante de 32-33 degrés ;
• Piscine extérieure (chauffée en été) avec zone pour adultes, zone pour enfants, zone pour très petits bébés et enfants, et pool-bar ;
• Jacuzzi extérieur pour 15 personnes ;
• Salle de sport ;
• Réception luxueuse ouverte 24h/24 dans le bloc 1 et mini-réceptions dans les autres blocs ;
• Espace lobby avec mobilier confortable ;
• Lobby bar servant boissons et nourriture ;
• Salle avec billard, fléchettes et autres jeux amusants ;
• Coin pour jeux calmes : tables de billard, tennis de table, simulateur, jeux Internet ;
• Aire de jeux extérieure pour enfants ;
• Aire de jeux intérieure pour enfants ;
• Vestiaire pour équipements de ski et de golf ;
• Parkings avec places de stationnement ;
• Jardins joliment aménagés avec éclairage et allées ;
• Vidéosurveillance.
Centre SPA :
• Sauna infrarouge avec sel de l'Himalaya ;
• Bain turc – Hammam ;
• 2 saunas secs finlandais ;
• 2 bains de vapeur ;
• Jacuzzi pour 10 personnes ;
• Solarium.
*Les propriétaires des appartements bénéficient de conditions préférentielles dans le centre SPA rénové du complexe, ont le droit d'utiliser illimité les piscines extérieures, le jacuzzi et la salle de sport.
Services à Belvedere Holiday Club :
• Réception 24h/24 et room service ;
• Caméras de sécurité ;
• Transport en bus privé vers le téléphérique, le centre de Bansko et le terrain de golf. En saison hivernale, un transport gratuit est proposé jusqu'à la station de départ du téléphérique. Valable uniquement pour les propriétaires d'appartements ;
• Internet sans fil.
Nous attendons votre demande
Si vous souhaitez organiser une visite d'un bien qui vous intéresse ou visiter l'un de nos bureaux, veuillez nous contacter. Pour fixer un jour et une heure pour un rendez-vous ou une visite, vous pouvez appeler le numéro indiqué dans l'annonce ou envoyer une demande par courrier électronique. Notre consultant vous aidera avec tous les détails nécessaires et conviendra d'un moment qui vous convient.
Vous cherchez le bien qui vous convient ?
N'hésitez pas à nous contacter et à nous parler de vos besoins et préférences. Notre équipe effectuera une recherche approfondie du marché pour vous proposer des biens qui correspondent exactement à vos critères. Nous disposons d'un portefeuille exceptionnel de logements de haute qualité et exclusifs, accessibles uniquement à nos clients. Pour être les premiers à recevoir des informations à leur sujet – contactez-nous.
Services supplémentaires
En tant que client précieux de notre société, vous aurez le privilège d'utiliser gratuitement les services de notre équipe juridique expérimentée. De plus, nous proposons des solutions complètes, incluant une assurance immobilière, une consultation financière gratuite, ainsi que des conditions avantageuses de financement. Nos services s'étendent également à la revente, à la location et à la gestion immobilière. Nous assurons des travaux de rénovation de haute qualité et l'ameublement par des entreprises spécialisées, qui font partie de notre groupe d'entreprises et sont nos partenaires professionnels de longue date.
Localisation sur la carte
VENTE
PROJET
Appartement spacieux de deux pièces, situé à proximité du télésiège à Bansko
Bansko / Blagoevgrad / Bulgarie carte
Zone: 72 m 2
Prix: 84 000 € /// 1 167 €/m 2
VENTE
PROJET
Appartement deux pièces au sud avec vue frontale sur les pistes dans le luxueux Regnum Hotel
Bansko / Blagoevgrad / Bulgarie carte
Zone: 61.03 m 2
Prix: 110 000 € /// 1 802 €/m 2
VENTE
PROJET
Appartement spacieux de deux pièces avec balcon à quelques mètres du télésiège à Bansko
Bansko / Blagoevgrad / Bulgarie carte
Zone: 90.20 m 2
Prix: 135 300 € /// 1 500 €/m 2
Sélectionnez cette option et nous vous informerons par e-mail en cas de modification du statut de l'offre, par exemple :
• Changement de prix;
• Le bien fait l’objet d’une offre promotionnelle ;
• Le bien est réservé ou vendu ;
• Autres nouvelles liées à la propriété.
• Le bien est retiré de la vente ;
Vous pouvez facilement vous désabonner des notifications quand vous le souhaitez.• Modifications des conditions de l’offre ;
• Modification du montant de l’investissement ;
• L’objet de l’investissement a été entièrement réalisé ;
• L'offre a expiré.
Vous pouvez facilement vous désinscrire si vous décidez à l'avenir que vous ne souhaitez plus suivre cette offre.
Pour obtenir des informations parfaitement exactes sur les propriétés vacantes disponibles à la vente dans le cadre de ce projet et leurs prix actuels, veuillez contacter notre bureau aux coordonnées indiquées.
Nous mettons tout en œuvre pour que nos listes de prix soient parfaitement à jour et exactes, mais cela est souvent impossible, compte tenu du grand nombre de nouveaux projets dans notre catalogue et du dynamisme des ventes.
Merci pour votre compréhension!



...En tant que spécialiste reconnu, Stonehard PREMIER travaille sur le positionnement sur le marché et la vente de nombreux nouveaux projets de construction, dont la mise en œuvre nous a été confiée par des entreprises entrepreneuriales de premier plan en Bulgarie et à l'étranger...