Nowe mieszkanie z jedną sypialnią w Belvedere Holiday Club w Bansko
aktualny
Cena:
89 425 € (bez VAT) (1 250 €/m2 (bez VAT))
*Ceny i dostępność wolnych lokali w projekcie mają charakter orientacyjny. Aby uzyskać aktualne informacje o cenach, prosimy o kontakt!
Nr ref. Numer: STO-128755 / 4138
Lokalizacja: Bansko mapa
Typ budynku/kompleksu: Mieszkaniowy
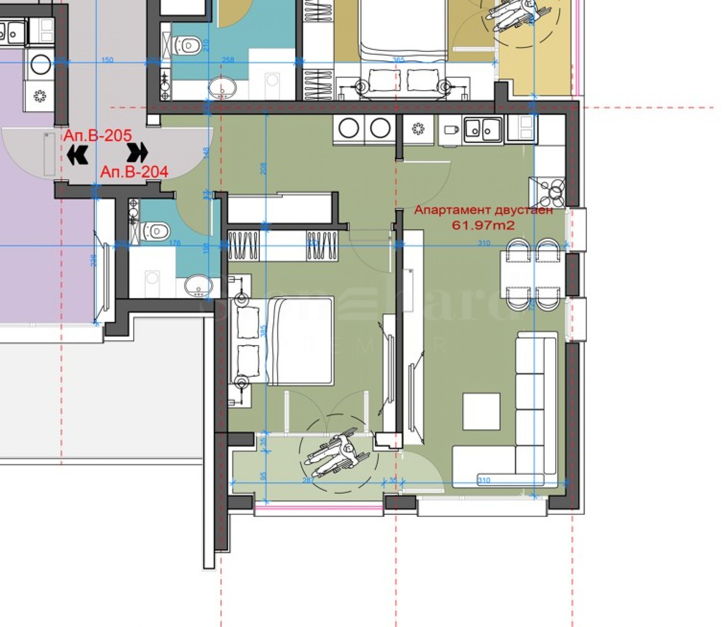
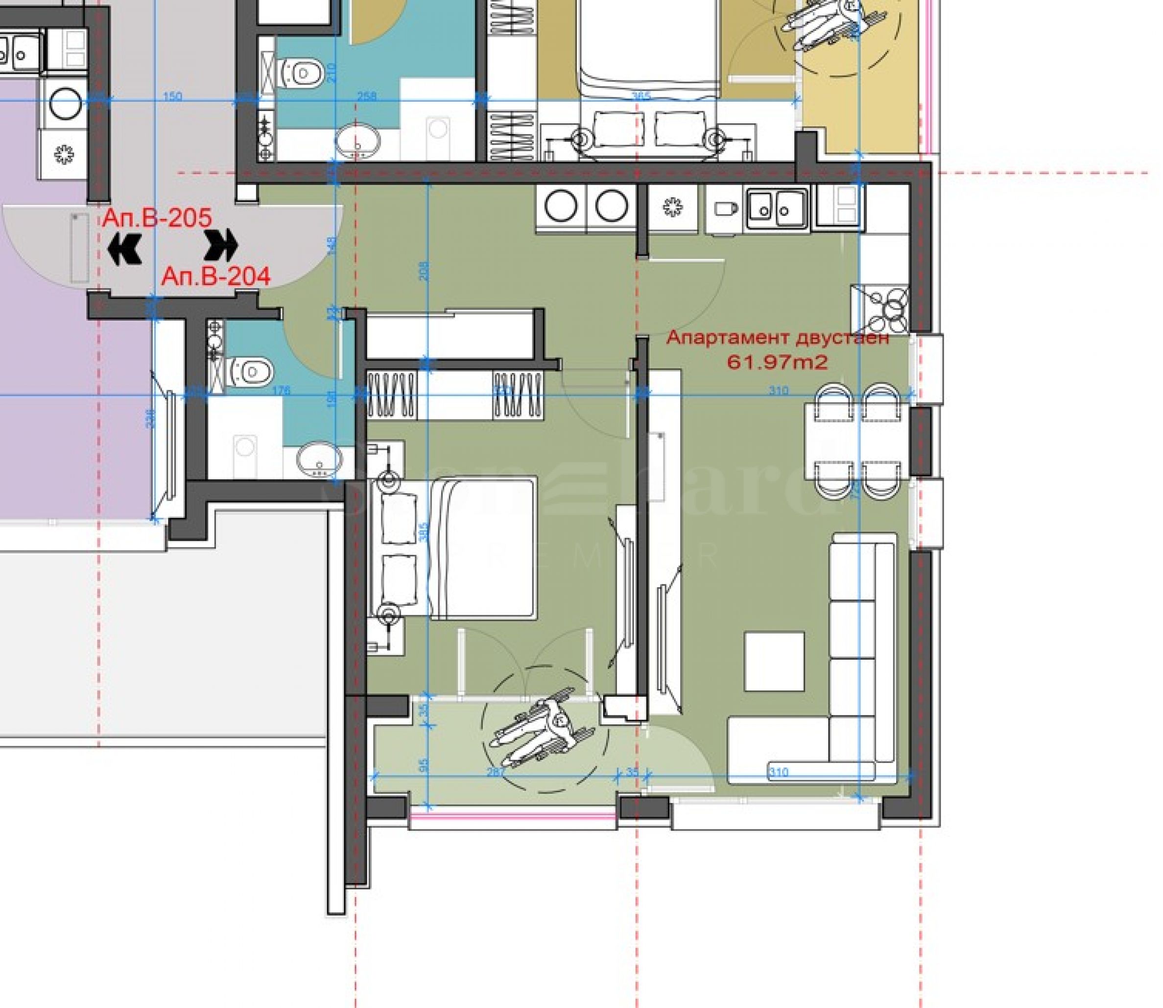
Obszary mieszkaniowe: 71.54 m2
Rodzaje nieruchomości w budynku/kompleksie: Apartamenty dwupokojowe
Nr ref. Numer: STO-128755 / 4138
Lokalizacja: Bansko
Typ budynku/kompleksu: Mieszkaniowy
Klasa budynku/kompleksu:
Obszary mieszkaniowe: 71.54 m2
Rodzaje nieruchomości w budynku/kompleksie: Apartamenty dwupokojowe
Oferujemy Państwu ekskluzywną ofertę sprzedaży jednopokojowego apartamentu w nowym budynku popularnego kompleksu Belvedere Holiday Club w Bansko.
Nowo wybudowany i w pełni funkcjonalny „Belvedere Holiday Club” to ekskluzywny, wysokiej klasy kompleks wypoczynkowy, jeden z najlepszych górskich kurortów w Bułgarii! Kompleks jest ogrodzony, składa się z funkcjonalnych apartamentów i oferuje doskonałe udogodnienia oraz zaplecze rekreacyjne i rozrywkowe. Znajduje się w nowej, nowoczesnej dzielnicy Bansko, zaledwie około 400 metrów od kolejki gondolowej i w pobliżu nowego centrum handlowego Mall of Bansko.
Nowy budynek, który powstanie w przyszłości, oferuje atrakcyjną, nowoczesną, wentylowaną fasadę z płyt HPL, w tradycyjnych barwach kompleksu, rozłożony na pięciu piętrach z dwoma wejściami – „A” i „B” – z nowoczesną windą. Oferuje wybór przestronnych kawalerek, apartamentów jedno- i dwupokojowych.
Oferowane mieszkanie jednopokojowe o powierzchni całkowitej 71,54 mkw. znajduje się na 2 piętrze i jest sprzedawane w stanie gotowym do zamieszkania.
Prace wykończeniowe:
• instalacje do odprowadzania wody z klimatyzatorów - systemy split i multi-split;
• podłoga - wysokiej jakości panele laminowane oraz płytki granitowe w korytarzu i kuchni;
• łazienki wykończone, z kotłem, płytki granitowe;
• ściany - cegła Winerberger, ściany wewnętrzne - cegła 25 cm;
• sufity - gładź gipsowa z narożnikami aluminiowymi;
• farba lateksowa - biała;
• Stolarka PCV - profil 5-komorowy, kolor grafitowy na zewnątrz, biały wewnątrz, pakiet trzyszybowy;
• balustrady - metalowe;
• drzwi - wejściowe;
• drzwi wewnętrzne;
Dane techniczne budynku:
• okładzina - elewacja wentylowana z płyt HPL;
• aluminiowe ramy okienne;
• izolacja 12 cm, tynk biały i szary;
• Dachówki Bramac;
• dziedzińce - betonowe na parterze, bez trawników;
• Instalacje wodno-kanalizacyjne - kotły 100 l, liczniki wody zimnej ze zdalnym odczytem, wentylacja;
• części wspólne w pełni wykończone - schody granitowe, płytki granitowe w holu i korytarzach;
• monitoring wizyjny - przy wejściu do holu - na obwodzie budynku;
• kontrola dostępu;
• oprawy oświetleniowe w częściach wspólnych wyposażone w czujniki;
• Okablowanie internetowe i kablowe;
• domofon (kabel do monitoringu);
• winda - elektromechaniczna - Orona na 8 osób;
• woda, kanalizacja i prąd - zaopatrzenie.
Plan płatności:
• 20% Umowy Przedwstępnej;
• 20% wysokości, na której położone jest mieszkanie;
• 20% Ustawy 14;
• 30% Ustawy 15;
• 10% na ustawę 16.
Pierwsza faza kompleksu została w pełni ukończona, funkcjonuje i posiada pozwolenie na użytkowanie (Ustawa 16) od 2008 roku. Składa się ona z trzech bloków mieszkalnych.
Dodatki i udogodnienia w Belvedere Holiday Club
• Nowoczesna restauracja „Belvedere Classico” oferująca dania kuchni europejskiej i tradycyjne dania regionalne. Preferencyjne ceny dla właścicieli i obsługa pokoju;
• Kryty basen podgrzewany z częścią dla dorosłych i częścią dla dzieci o stałej temperaturze 32-33 stopni;
• Basen zewnętrzny (ogrzewany latem) z częścią dla dorosłych, częścią dla dzieci, częścią dla małych dzieci i barem przy basenie;
• Jacuzzi zewnętrzne dla 15 osób;
• Luksusowa całodobowa recepcja w bloku 1 oraz mini-recepcje w pozostałych blokach;
• Hol z meblami tapicerowanymi;
• Bar w lobby serwujący napoje i jedzenie;
• Pokój z bilardem, rzutkami i innymi grami;
• Kącik gier cichych: stoły bilardowe, tenis stołowy, symulator, gry internetowe;
• Kącik dla dzieci - na zewnątrz;
• Kącik dla dzieci - wewnątrz;
• Sala konferencyjna wyposażona w niezbędny sprzęt konferencyjny;
• Szafa na sprzęt narciarski i golfowy;
• Parkingi i garaż podziemny z miejscami postojowymi;
• Pięknie zagospodarowane ogrody z oświetleniem i alejkami;
• Ochrona i monitoring 24h.
Centrum SPA:
• Sauna na podczerwień z solą himalajską;
• Łaźnia turecka – Hammam;
• Pokój relaksu z ciepłymi łóżkami;
• 2 suche sauny fińskie;
• 2 łaźnie parowe;
• Jacuzzi dla 10 osób;
• Solarium.
*Właściciele apartamentów korzystają z preferencyjnych warunków w odnowionym centrum SPA kompleksu, mają prawo do nieograniczonego korzystania z basenów zewnętrznych, jacuzzi i centrum fitness.
Lekkoatletyka:
• Sprawność fizyczna;
• Badminton;
• Kosz do koszykówki.
Usługi w Belvedere Holiday Club:
• Całodobowa recepcja i obsługa pokoju;
• Całodobowa ochrona i kamery monitorujące;
• Prywatny transport autobusowy do kolejki gondolowej, centrum Banska i na pole golfowe. W sezonie zimowym oferujemy bezpłatny transport do stacji początkowej kolejki. Oferta ważna tylko dla właścicieli apartamentów.
• Bezprzewodowy Internet na terenie całego kompleksu.
Czekamy na Państwa zapytanie.
Jeśli chcesz umówić się na obejrzenie interesującej Cię nieruchomości lub odwiedzić jedno z naszych biur, skontaktuj się z nami. Aby umówić się na spotkanie lub oględziny, zadzwoń pod numer telefonu podany w ogłoszeniu lub wyślij zapytanie e-mailem. Nasz konsultant pomoże Ci w ustaleniu wszystkich niezbędnych szczegółów i ustali dogodny termin.
Szukasz odpowiedniej nieruchomości dla siebie?
Skontaktuj się z nami i opowiedz nam o swoich potrzebach i preferencjach. Nasz zespół przeprowadzi dogłębną analizę rynku, aby zaoferować Ci nieruchomości idealnie odpowiadające Twoim kryteriom. Posiadamy wyjątkowe portfolio wysokiej jakości, ekskluzywnych domów, dostępnych wyłącznie dla naszych klientów. Aby być pierwszym, który otrzyma o nich informacje – skontaktuj się z nami.
Usługi dodatkowe
Jako ceniony klient naszej firmy, będziesz miał przywilej korzystania z usług naszego doświadczonego zespołu prawnego całkowicie bezpłatnie. Ponadto oferujemy kompleksowe rozwiązania, w tym ubezpieczenia nieruchomości, bezpłatne doradztwo finansowe, a także korzystne warunki finansowania. Nasze usługi obejmują również odsprzedaż, wynajem i zarządzanie nieruchomościami. Zapewniamy wysokiej jakości remonty i wyposażenie wnętrz za pośrednictwem wyspecjalizowanych firm wchodzących w skład naszej grupy kapitałowej i będących naszymi wieloletnimi partnerami.
Ogledziny nieruchomosci
Mozemy zorganizowac ogledziny nieruchomosci, w dogodnym dla Panstwa terminie. W tym celu prosimy o skontaktowanie sie z agentem odpowiedzialnym za te oferte.
Rezerwacja nieruchomosci
Nieruchomosc moze byc zarezerwowana i wycofana ze sprzedazy po wplaceniu zadatku, po czym ustaje ogladanie z innymi kupujacymi i rozpoczyna sie przygotowanie dokumentow do zawarcia umowy przedwstepnej i ostatecznej.
Prosimy o kontakt z agentem odpowiedzialnym za te nieruchomosc w celu uzyskania szczegolowych informacji dotyczacych procedury zakupu i metod platnosci.
Uslugi dodatkowe i obsluga posprzedazowa
Jestesmy sprawdzona firma o dobrej reputacji i wieloletnim doswiadczeniu. Dlatego bedziemy z Panstwem nie tylko w trakcie zakupu, ale takze po jego zakonczeniu, swiadczac na Panstwa zyczenie dodatkowe uslugi, aby w pelni i bezproblemowo korzystac z nowo zakupionej nieruchomosci. Uslugi, ktore mozemy zaoferowac, obejmuja uzyskanie zgody na kredyt hipoteczny z bulgarskiego banku, ubezpieczenia majatku ruchomego i nieruchomosci, ubezpieczenia na zycie, ubezpieczenia medyczne i samochodowe, prace budowlane i remontowe, meblowanie, uslugi prawne i ksiegowe itp.
Lokalizacja na mapie
SPRZEDAŻ
PROJEKT
Jednopokojowy apartament z balkonem w nowym luksusowym kompleksie 350 m od ośrodka narciarskiego w Bansku
Bansko / Blagoevgrad / Bułgaria mapa
Obszar: 64.21 m2
Cena: 86 683 € /// 1 350 €/m2
SPRZEDAŻ
PROJEKT
Apartament z jedną sypialnią w Belvedere Holiday Club, kilka metrów od wyciągu narciarskiego
Bansko / Blagoevgrad / Bułgaria mapa
Obszar: 48.04 m2
Cena: 64 000 € /// 1 332 €/m2
SPRZEDAŻ
PROJEKT
Apartamenty w atrakcyjnym kompleksie 350 m od ośrodka narciarskiego w Bansku
Bansko / Blagoevgrad / Bułgaria mapa
Ceny nieruchomości: 54 931 - 155 121 € (bez VAT)
Ceny za m²: 1 250 - 1 450 €/m2 (bez VAT)
Wybierz tę opcję, a powiadomimy Cię e-mailem w przypadku jakichkolwiek zmian statusu oferty, na przykład:
• Zmiana ceny;
• Nieruchomość weszła w ofertę promocyjną;
• Nieruchomość jest zarezerwowana lub sprzedana;
• Inne wiadomości dotyczące nieruchomości.
• Nieruchomość zostaje wycofana ze sprzedaży;
Możesz w każdej chwili z łatwością zrezygnować z subskrypcji powiadomień.• Zmiany warunków oferty;
• Zmiana kwoty inwestycji;
• Przedmiot inwestycji został w całości zrealizowany;
• Oferta wygasła.
Jeśli w przyszłości zdecydujesz, że nie chcesz już otrzymywać tej oferty, możesz z łatwością zrezygnować z subskrypcji.
Aby otrzymać całkowicie poprawne informacje na temat wolnych nieruchomości dostępnych na sprzedaż w ramach projektu oraz ich aktualnych cen, prosimy o kontakt z naszym biurem, korzystając z podanych danych kontaktowych.
Dokładamy wszelkich starań, aby nasze cenniki były zawsze aktualne i poprawne, jednakże ze względu na dużą liczbę nowych projektów w naszym katalogu oraz dużą dynamikę sprzedaży, często jest to niemożliwe.
Dziękujemy za zrozumienie!



...Jako sprawdzony specjalista, Stonehard PREMIER zajmuje się pozycjonowaniem rynkowym i sprzedażą licznych nowych projektów budowlanych, których realizację powierzyły nam wiodące przedsiębiorstwa w Bułgarii i za granicą...