REF#AP 124301
/
Appartements 3 chambres
/
Projets mis en œuvre
/
Sofia
/
Mladost 4
/
Sofia
/
Bulgarie
sur la carte
Prix:
299 696 € (2 350 €/m 2)
*Les prix et la disponibilité des propriétés vacantes dans ce projet sont donnés à titre indicatif. Pour obtenir les prix les plus récents, veuillez nous contacter !
Réf. Nombre: AP 124301 / 3762
Emplacement: Mladost 4 / Sofia carte
Type de bâtiment/complexe: Résidentiel
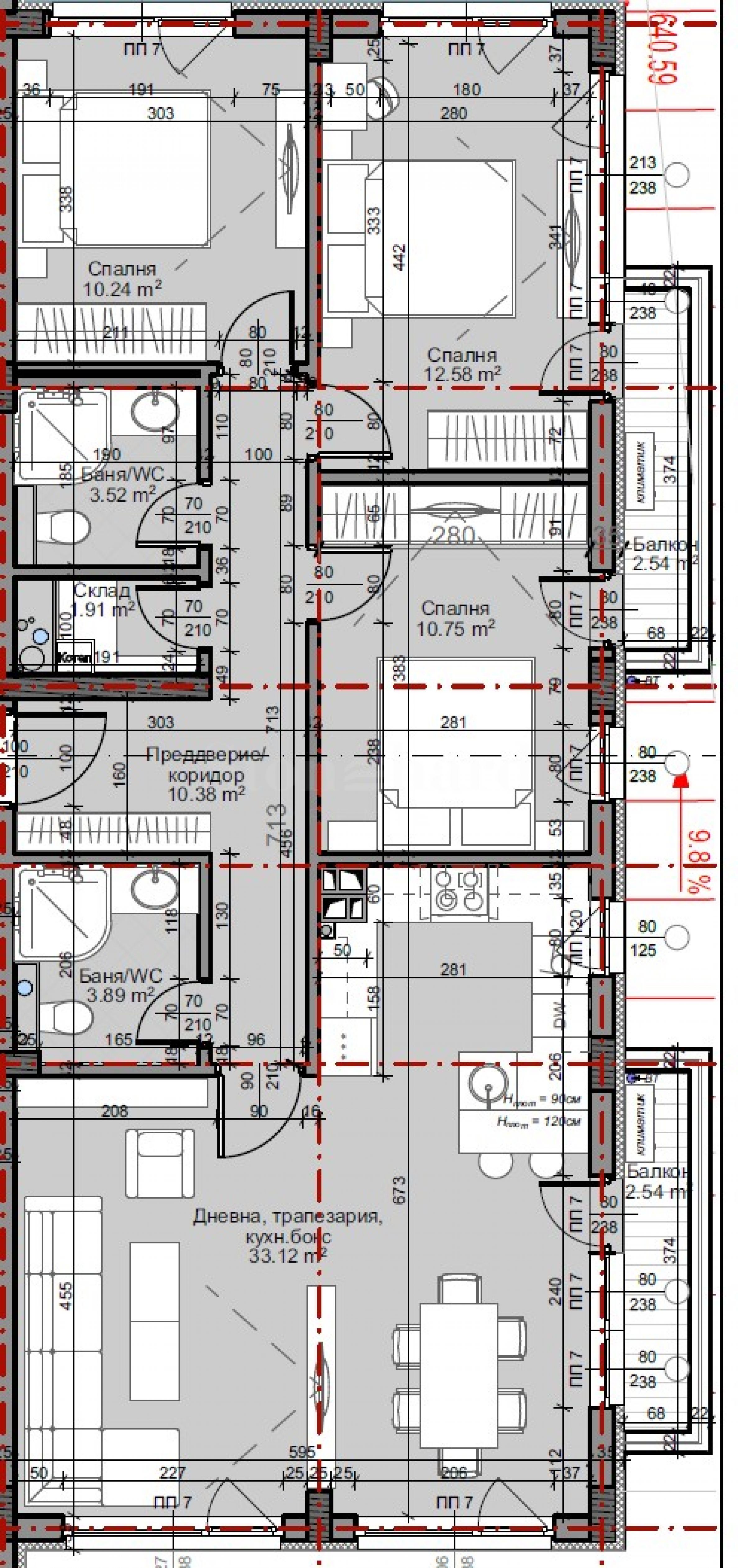
Zones d'habitation: 127.53 m 2
Types de propriétés dans l'immeuble/complexe: Appartements 3 chambres
Réf. Nombre: AP 124301 / 3762
Emplacement: Mladost 4 / Sofia
Type de bâtiment/complexe: Résidentiel
Classe de bâtiment/complexe:
Zones d'habitation: 127.53 m 2
Types de propriétés dans l'immeuble/complexe: Appartements 3 chambres
Localisation sur la carte
Un nouveau projet résidentiel de trois bâtiments avec différents types d'appartements dans le quartier de « Dianabad »
Dianabad / Sofia / Sofia / Bulgarie carte
Prix de l'immobilier: 176 199 - 450 565 €
Prix au m²: 2 913 - 3 339 €/m 2
Gorublyane / Sofia / Sofia / Bulgarie carte
Prix de l'immobilier: 72 557 - 248 851 €
Prix au m²: 1 850 - 1 850 €/m 2
VENTE
PROJET
Appartement quatre pièces avec trois terrasses dans un complexe de prestige avec Acte 16 dans le quartier "Boyana"
Boyana / Sofia / Sofia / Bulgarie carte
Classe de bâtiment/complexe: Haut niveau
Zone: 212.60 m 2
Prix: 434 767 € /// 2 045 €/m 2
Sélectionnez cette option et nous vous informerons par e-mail en cas de modification du statut de l'offre, par exemple :
• Changement de prix;
• Le bien fait l’objet d’une offre promotionnelle ;
• Le bien est réservé ou vendu ;
• Autres nouvelles liées à la propriété.
• Le bien est retiré de la vente ;
Vous pouvez facilement vous désabonner des notifications quand vous le souhaitez.• Modifications des conditions de l’offre ;
• Modification du montant de l’investissement ;
• L’objet de l’investissement a été entièrement réalisé ;
• L'offre a expiré.
Vous pouvez facilement vous désinscrire si vous décidez à l'avenir que vous ne souhaitez plus suivre cette offre.
Pour obtenir des informations parfaitement exactes sur les propriétés vacantes disponibles à la vente dans le cadre de ce projet et leurs prix actuels, veuillez contacter notre bureau aux coordonnées indiquées.
Nous mettons tout en œuvre pour que nos listes de prix soient parfaitement à jour et exactes, mais cela est souvent impossible, compte tenu du grand nombre de nouveaux projets dans notre catalogue et du dynamisme des ventes.
Merci pour votre compréhension!



...En tant que spécialiste reconnu, Stonehard PREMIER travaille sur le positionnement sur le marché et la vente de nombreux nouveaux projets de construction, dont la mise en œuvre nous a été confiée par des entreprises entrepreneuriales de premier plan en Bulgarie et à l'étranger...