Czteropokojowe mieszkanie w nowym budynku mieszkalnym obok Business Park Sofia i stacji metra Business Park
aktualny
Cena:
299 696 € (2 350 €/m2)
*Ceny i dostępność wolnych lokali w projekcie mają charakter orientacyjny. Aby uzyskać aktualne informacje o cenach, prosimy o kontakt!
Nr ref. Numer: AP 124301 / 3762
Lokalizacja: Mladost 4 / Sofia mapa
Typ budynku/kompleksu: Mieszkaniowy
Obszary mieszkaniowe: 127.53 m2
Rodzaje nieruchomości w budynku/kompleksie:
Nr ref. Numer: AP 124301 / 3762
Lokalizacja: Mladost 4 / Sofia
Typ budynku/kompleksu: Mieszkaniowy
Klasa budynku/kompleksu:
Obszary mieszkaniowe: 127.53 m2
Rodzaje nieruchomości w budynku/kompleksie:
Na tym obszarze znajdują się wszystkie udogodnienia, takie jak sklepy i supermarkety, szkoły i przedszkola, przystanki komunikacji miejskiej, obiekty sportowe i rekreacyjne.
Budynek ma 10 pięter i składa się z trzech wejść: A, B i C.
Istnieje możliwość zakupu miejsc parkingowych i garaży.
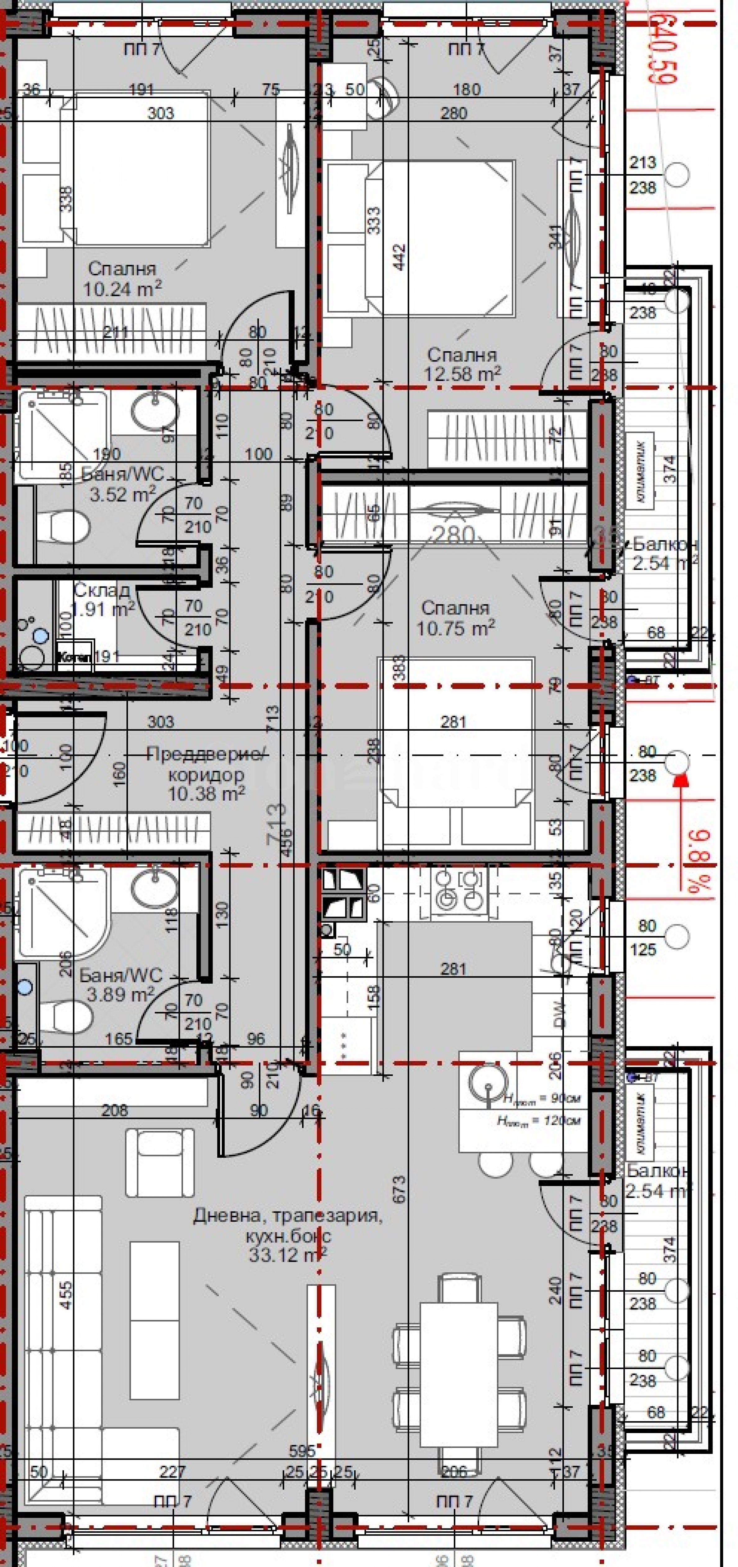
Mieszkanie jest mieszkaniem czteropokojowym, o powierzchni całkowitej 127,53 mkw. (powierzchnia netto 110,27 mkw. + powierzchnie wspólne 17,26 mkw.) i znajduje się na drugim piętrze.
Dystrybucja: :
korytarz;
salon z kuchnią i jadalnią;
gabinet;
trzy sypialnie;
dwie łazienki z toaletami;
dwa tarasy.
Mieszkanie jest oferowane na sprzedaż z wykończeniem wysokiej jakości według bułgarskich standardów, z tynkiem i wylewką.
Dane techniczne:
Wysokiej klasy konstrukcja z najnowocześniejszymi technologiami i materiałami budowlanymi, cegłami Wienerberger, pięciokomorowymi oknami, wysokiej klasy windami. Części wspólne są luksusowo wykończone, a podłogi wykonane są z naturalnego granitu. Ogrzewanie gazowe.
Stopień realizacji:
Instalacje wodno-kanalizacyjne /wykonane na poziomie wtyczki/;
Instalacje elektryczne, montaż dzwonka i domofonu, montaż TV, montaż instalacji odgromowej – wszystko w pełni ukończone;
Instalacja grzewcza - gazowa;
Instalacja wentylacyjna;
Gładki tynk wewnętrzny z zaprawą szpachlową;
Łazienki i pomieszczenia sanitarne z tynku i wylewki;
Stolarka wewnętrzna standardowa;
Okna zewnętrzne PCV z podwójnymi szybami;
Drzwi wejściowe pancerne;
Części wspólne są w pełni wykończone.
Plan płatności:
Umowa przedwstępna – 40%
Akt 15 – 20%
Akt 16 – 30%
Czekamy na Państwa zapytanie.
Jeśli chcesz umówić się na obejrzenie interesującej Cię nieruchomości lub odwiedzić jedno z naszych biur, skontaktuj się z nami. Aby umówić się na spotkanie lub oględziny, zadzwoń pod numer telefonu podany w ogłoszeniu lub wyślij zapytanie e-mailem. Nasz konsultant pomoże Ci w ustaleniu wszystkich niezbędnych szczegółów i ustali dogodny termin.
Szukasz odpowiedniej nieruchomości dla siebie?
Skontaktuj się z nami i opowiedz nam o swoich potrzebach i preferencjach. Nasz zespół przeprowadzi dogłębną analizę rynku, aby zaoferować Ci nieruchomości idealnie odpowiadające Twoim kryteriom. Posiadamy wyjątkowe portfolio wysokiej jakości, ekskluzywnych domów, dostępnych wyłącznie dla naszych klientów. Aby być pierwszym, który otrzyma o nich informacje – skontaktuj się z nami.
Usługi dodatkowe
Jako ceniony klient naszej firmy, będziesz miał przywilej korzystania z usług naszego doświadczonego zespołu prawnego całkowicie bezpłatnie. Ponadto oferujemy kompleksowe rozwiązania, w tym ubezpieczenia nieruchomości, bezpłatne doradztwo finansowe, a także korzystne warunki finansowania. Nasze usługi obejmują również odsprzedaż, wynajem i zarządzanie nieruchomościami. Zapewniamy wysokiej jakości remonty i wyposażenie wnętrz za pośrednictwem wyspecjalizowanych firm wchodzących w skład naszej grupy kapitałowej i będących naszymi wieloletnimi partnerami.
Lokalizacja na mapie
Nowy projekt mieszkaniowy składający się z trzech budynków o różnym typie mieszkań w dzielnicy „Dianabad”
Dianabad / Sofia / Sofia / Bułgaria mapa
Ceny nieruchomości: 176 199 - 450 565 €
Ceny za m²: 2 913 - 3 339 €/m2
Apartamenty o różnym typie w nowym budynku o eleganckiej, współczesnej architekturze w dzielnicy Gorublyane
Gorublyane / Sofia / Sofia / Bułgaria mapa
Ceny nieruchomości: 72 557 - 248 851 €
Ceny za m²: 1 850 - 1 850 €/m2
SPRZEDAŻ
PROJEKT
Czteropokojowe mieszkanie z trzema tarasami w elitarnym kompleksie przy ul. Akt 16 w dzielnicy „Bojana”
Boyana / Sofia / Sofia / Bułgaria mapa
Klasa budynku/kompleksu: Wysoki standard
Obszar: 212.60 m2
Cena: 434 767 € /// 2 045 €/m2
Wybierz tę opcję, a powiadomimy Cię e-mailem w przypadku jakichkolwiek zmian statusu oferty, na przykład:
• Zmiana ceny;
• Nieruchomość weszła w ofertę promocyjną;
• Nieruchomość jest zarezerwowana lub sprzedana;
• Inne wiadomości dotyczące nieruchomości.
• Nieruchomość zostaje wycofana ze sprzedaży;
Możesz w każdej chwili z łatwością zrezygnować z subskrypcji powiadomień.• Zmiany warunków oferty;
• Zmiana kwoty inwestycji;
• Przedmiot inwestycji został w całości zrealizowany;
• Oferta wygasła.
Jeśli w przyszłości zdecydujesz, że nie chcesz już otrzymywać tej oferty, możesz z łatwością zrezygnować z subskrypcji.
Aby otrzymać całkowicie poprawne informacje na temat wolnych nieruchomości dostępnych na sprzedaż w ramach projektu oraz ich aktualnych cen, prosimy o kontakt z naszym biurem, korzystając z podanych danych kontaktowych.
Dokładamy wszelkich starań, aby nasze cenniki były zawsze aktualne i poprawne, jednakże ze względu na dużą liczbę nowych projektów w naszym katalogu oraz dużą dynamikę sprzedaży, często jest to niemożliwe.
Dziękujemy za zrozumienie!



...Jako sprawdzony specjalista, Stonehard PREMIER zajmuje się pozycjonowaniem rynkowym i sprzedażą licznych nowych projektów budowlanych, których realizację powierzyły nam wiodące przedsiębiorstwa w Bułgarii i za granicą...