Appartement spacieux dans un nouveau complexe dans le quartier "Belomorski"
Prix:
PRIX SUR DEMANDE
*Les prix et la disponibilité des propriétés vacantes dans ce projet sont donnés à titre indicatif. Pour obtenir les prix les plus récents, veuillez nous contacter !
Réf. Nombre: PLV-128418 / 3004
Emplacement: Belomorski / Plovdiv carte
Type de bâtiment/complexe: Résidentiel
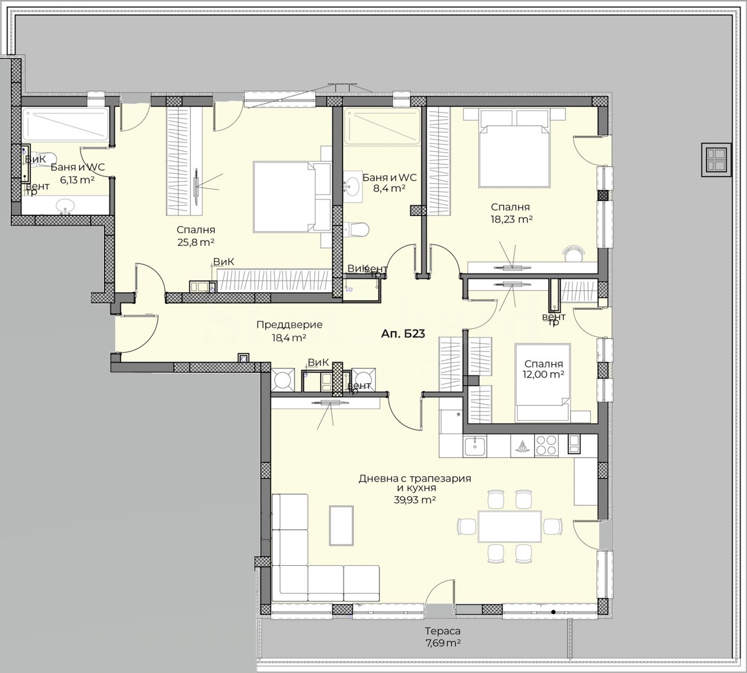
Zones d'habitation: 178.25 m 2
Types de propriétés dans l'immeuble/complexe: Grands appartements
Réf. Nombre: PLV-128418 / 3004
Emplacement: Belomorski / Plovdiv
Type de bâtiment/complexe: Résidentiel
Classe de bâtiment/complexe:
Zones d'habitation: 178.25 m 2
Types de propriétés dans l'immeuble/complexe: Grands appartements
L'immeuble est mis en service (avec Acte 16).
Paramètres du bien
Le logement d'une superficie totale de 178,25 m² est situé au 4ème étage sur 4, exposé au sud et a la répartition suivante :
entrée ;
salon avec coin cuisine et salle à manger ;
trois chambres, dont une avec salle de bain et toilettes privées ;
salle de bain avec toilettes ;
terrasse sur le toit.Le quartier est à faible densité de construction et offre une belle vue et un panorama magnifique sur les montagnes des Rhodopes depuis chaque appartement.
L'appartement est livré en état de finition selon BDS :
murs - enduit de plâtre ;
installations électriques et plomberie ;
menuiserie de haute qualité ;
bonne isolation extérieure.Le stationnement est assuré à 100 % avec des places de parking en surface et des garages.
Équipements sur le site :
jardin intérieur spacieux, richement végétalisé ;
fontaines charmantes et allées piétonnes ;
salle de fitness moderne équipée ;
cafétéria confortable ;
zone de détente agréable ;
aires de jeux pour enfants ;
locaux spéciaux pour poussettes et vélos ;
accès contrôlé ;
vidéosurveillance 24h/24 et 7j/7.Pour plus d'informations, veuillez nous contacter.
Localisation sur la carte
DROITS
VENTE
PROJET
Appartement spacieux de quatre pièces dans le prestigieux Royal Garden 2
Hristo Smirnenski / Plovdiv / Plovdiv / Bulgarie carte
Zone: 206.70 m 2
Prix: 478 400 € /// 2 314 €/m 2
Logements dans un nouveau complexe innovant dans le quartier "Hristo Smirnenski"
Hristo Smirnenski / Plovdiv / Plovdiv / Bulgarie carte
Prix de l'immobilier: 82 871 - 391 179 €
Prix au m²: 1 370 - 1 500 €/m 2
VENTE
PROJET
Un nouvel appartement spacieux dans un complexe moderne avec Acte 16 près du parc
Hristo Smirnenski / Plovdiv / Plovdiv / Bulgarie carte
Zone: 205.98 m 2
Prix: 340 000 € /// 1 651 €/m 2
Sélectionnez cette option et nous vous informerons par e-mail en cas de modification du statut de l'offre, par exemple :
• Changement de prix;
• Le bien fait l’objet d’une offre promotionnelle ;
• Le bien est réservé ou vendu ;
• Autres nouvelles liées à la propriété.
• Le bien est retiré de la vente ;
Vous pouvez facilement vous désabonner des notifications quand vous le souhaitez.• Modifications des conditions de l’offre ;
• Modification du montant de l’investissement ;
• L’objet de l’investissement a été entièrement réalisé ;
• L'offre a expiré.
Vous pouvez facilement vous désinscrire si vous décidez à l'avenir que vous ne souhaitez plus suivre cette offre.
Pour obtenir des informations parfaitement exactes sur les propriétés vacantes disponibles à la vente dans le cadre de ce projet et leurs prix actuels, veuillez contacter notre bureau aux coordonnées indiquées.
Nous mettons tout en œuvre pour que nos listes de prix soient parfaitement à jour et exactes, mais cela est souvent impossible, compte tenu du grand nombre de nouveaux projets dans notre catalogue et du dynamisme des ventes.
Merci pour votre compréhension!



...En tant que spécialiste reconnu, Stonehard PREMIER travaille sur le positionnement sur le marché et la vente de nombreux nouveaux projets de construction, dont la mise en œuvre nous a été confiée par des entreprises entrepreneuriales de premier plan en Bulgarie et à l'étranger...