Ref. Broj: AP 124301 / 3762
Lokacija: Mladost 4 / Sofia karta
Tip na zgrada/kompleks: Stambeni
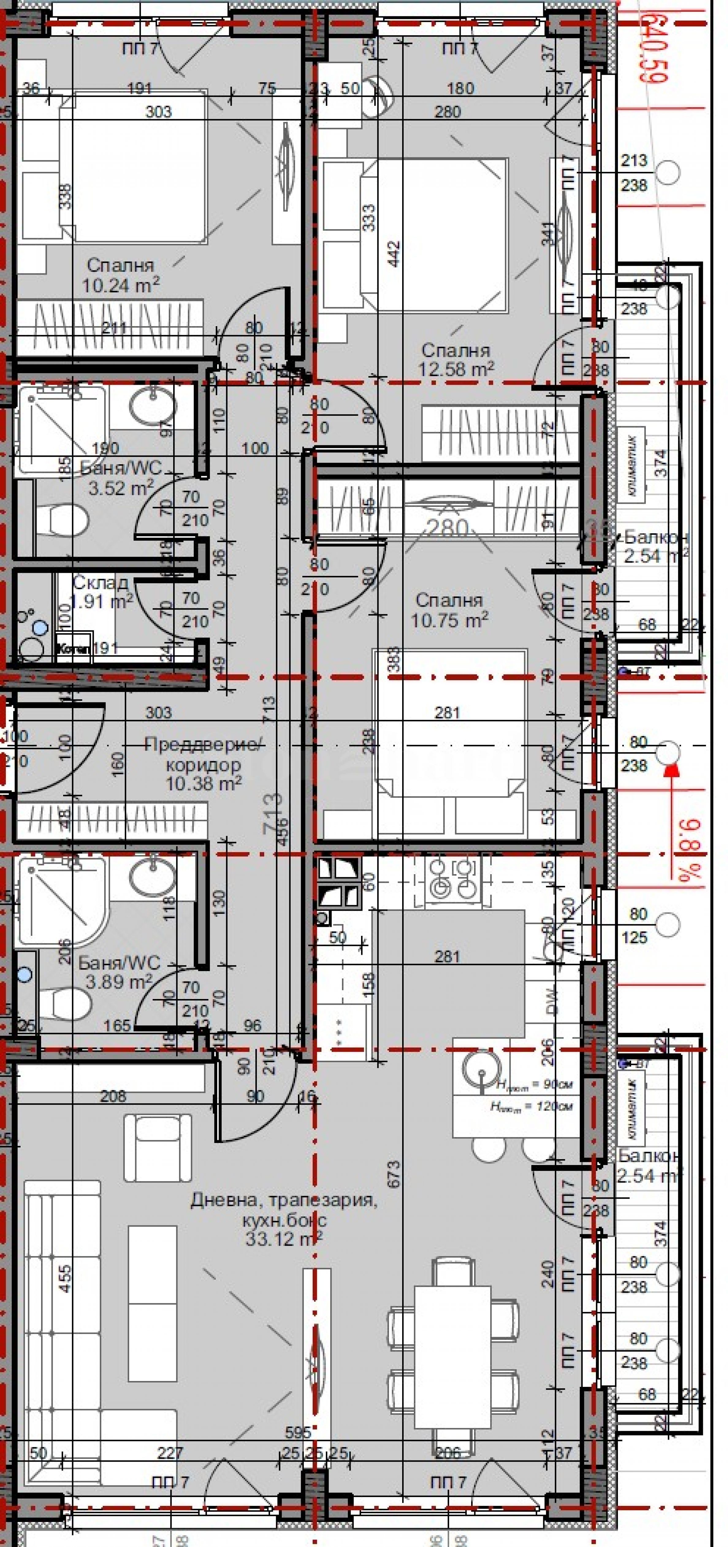
Površine stanova: 127.53 m2
Tipovi nekretnina u zgradi/kompleksu:
Ref. Broj: AP 124301 / 3762
Lokacija: Mladost 4 / Sofia
Tip na zgrada/kompleks: Stambeni
Klas na zgradi/kompleksu:
Površine stanova: 127.53 m2
Tipovi nekretnina u zgradi/kompleksu:
Mesto na karti
Нови стамбени пројекат од три зграде са различитим типовима станова у округу „Дианабад“
Dianabad / Sofia / Sofia / Бугарска karta
Cene na imovinu: 176 199 - 450 565 €
Cene po m²: 2 913 - 3 339 €/m2
Gorublyane / Sofia / Sofia / Бугарска karta
Cene na imovinu: 72 557 - 248 851 €
Cene po m²: 1 850 - 1 850 €/m2
PRODAŽBA
PROJEKAT
Četvoroiposoban stan sa tri terase u elitnom kompleksu sa Akt 16 u kv. "Bojana"
Boyana / Sofia / Sofia / Бугарска karta
Klas na zgradi/kompleksu: Visok standard
Plošča: 212.60 m2
Cena: 434 767 € /// 2 045 €/m2
Izaberite ovu opciju i obaveštavaćemo Vas putem imejla o promenama statusa ponude, na primer:
• Promena cene;
• Nekretnina je ušla u promotivnu ponudu;
• Nekretnina je rezervisana ili prodata;
• Druge novosti vezane za nekretninu.
• Nekretnina je skinuta sa prodaje;
Možete se lako odjaviti sa notifikacija kad god poželite.• Promene uslova ponude;
• Promena iznosa investicije;
• Predmet investicije je u potpunosti realizovan;
• Važenje ponude je isteklo.
Možete se lako odjaviti ako u budućnosti odlučite da više ne želite da pratite ovu ponudu.
Da biste dobili apsolutno tačne informacije o slobodnim nekretninama dostupnim za prodaju u projektu i njihovim aktuelnim cenama, molimo vas da kontaktirate našu kancelariju na navedene kontakt informacije.
Trudimo se da naše cenovnike održavamo apsolutno aktuelnim i tačnim, ali često to nije moguće zbog velikog broja novih projekata u našem katalogu i snažne dinamike prodaje.
Hvala vam na razumevanju!



...Kao dokazani stručnjak Stonehard PREMIER radi na tržišnom pozicioniranju i prodaji brojnih projekata novogradnje, čija je realizacija poverena od strane vodećih preduzetničkih kompanija u Bugarskoj i inostranstvu...