Preţ:
299 696 € (2 350 €/m²)
*Prețurile și disponibilitatea proprietăților vacante din cadrul proiectului sunt orientative. Pentru informații actualizate despre prețuri, vă rugăm să ne contactați!
Ref. Număr: AP 124301 / 3762
Locaţie: Mladost 4 / Sofia hartă
Tipul clădirii/complexului: Rezidențial
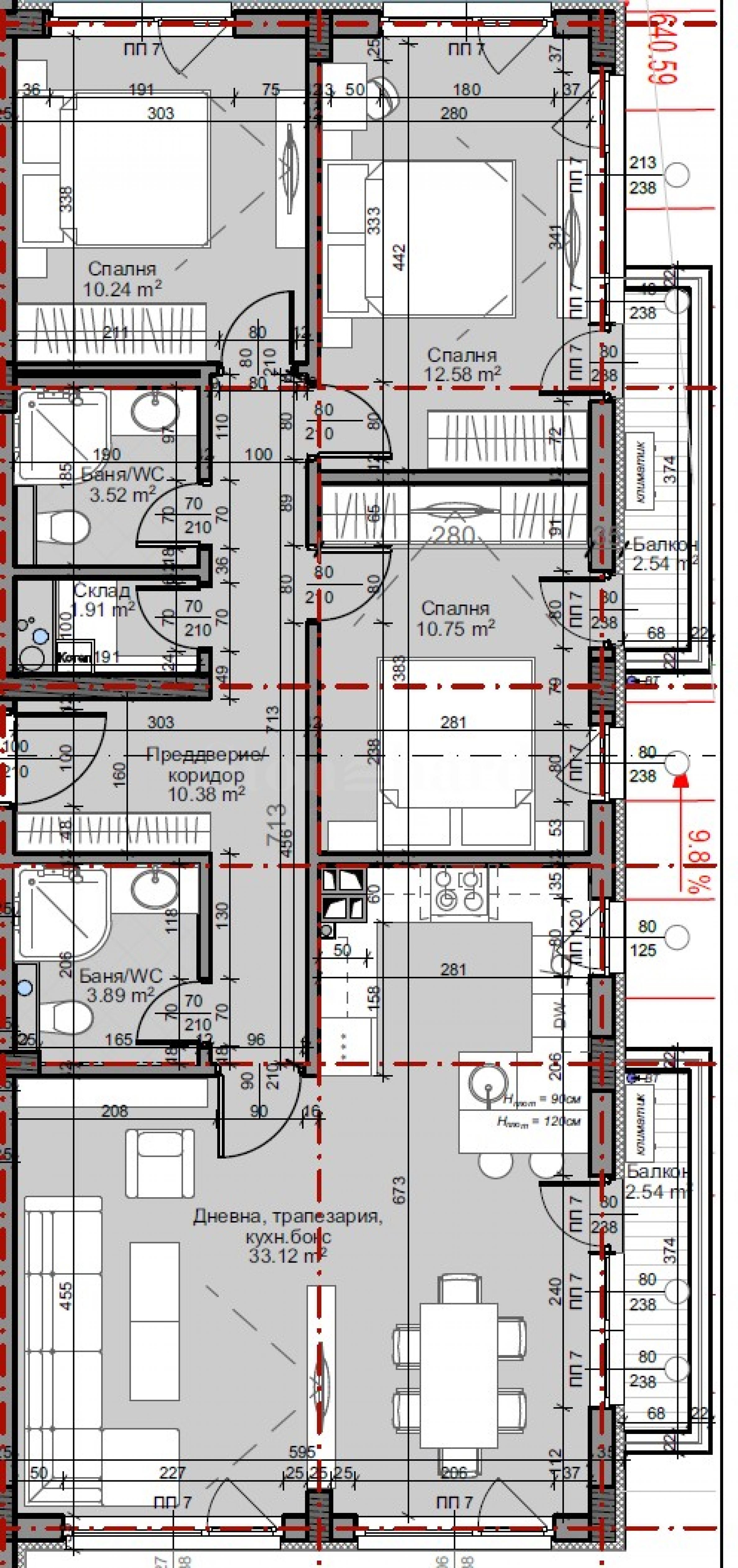
Zone de locuit: 127.53 m²
Tipuri de proprietăți din clădire/complex:
Ref. Număr: AP 124301 / 3762
Locaţie: Mladost 4 / Sofia
Tipul clădirii/complexului: Rezidențial
Clasa clădirii/complexului:
Zone de locuit: 127.53 m²
Tipuri de proprietăți din clădire/complex:
Locație pe hartă
Lagera / Sofia / Sofia / Bulgaria hartă
Prețurile proprietăților: 175 000 - 450 000 €
Prețuri pe m²: 1 997 - 2 234 €/m²
VÂNZARE
PROIECT
Penthouse de lux, panoramic cu vedere spre Vitosha, lângă Parcul de Vânătoare
Vitosha / Sofia / Sofia / Bulgaria hartă
Zonă: 532 m²
Preţ: 1 550 000 € /// 2 914 €/m²
Boyana / Sofia / Sofia / Bulgaria hartă
Prețurile proprietăților: 170 181 - 712 380 € (fără TVA)
Prețuri pe m²: 2 600 - 2 900 €/m² (fără TVA)
Selectați această opțiune și vă vom anunța prin e-mail dacă apar modificări ale stării ofertei, de exemplu:
• Modificarea prețului;
• Proprietatea a intrat într-o ofertă promoțională;
• Proprietatea este rezervată sau vândută;
• Alte știri legate de proprietate.
• Proprietatea este scoasă de la vânzare;
Te poți dezabona cu ușurință de la notificări oricând dorești.• Modificări ale termenilor ofertei;
• Modificarea valorii investiției;
• Obiectul investiției a fost realizat integral;
• Oferta a expirat.
Vă puteți dezabona cu ușurință dacă decideți în viitor că nu mai doriți să urmați această ofertă.
Pentru a primi informații absolut corecte despre proprietățile vacante disponibile spre vânzare în cadrul proiectului și prețurile lor actuale, vă rugăm să contactați biroul nostru la informațiile de contact furnizate.
Depunem toate eforturile pentru a menține listele noastre de prețuri absolut actualizate și corecte, dar acest lucru este adesea imposibil, având în vedere numărul mare de proiecte noi din catalogul nostru și vânzările extrem de dinamice.
Vă mulțumim pentru înțelegere!



...În calitate de specialist dovedit, Stonehard PREMIER lucrează la poziționarea pe piață și la vânzările a numeroase proiecte de construcții noi, a căror implementare ne-a fost încredințată de companii antreprenoriale de top din Bulgaria și din străinătate...