Maze A2 u Comfort Residence – Ljulin Centar
Cena:
3 000 €
*Ukazane cene i dostupnosti od slobodnih nekretnina u projektu su indikativne. Za aktuelne cenovne informacije, molimo vas da nas kontaktirate!
Ref. Broj: Sve-74346 / 1876
Lokacija: Sofia karta
Tip na zgrada/kompleks: Stambeni
RZP na zgradi/kompleksu: 3 300м²
Površine stanova: 3.27 m2
Tipovi nekretnina u zgradi/kompleksu:
Ref. Broj: Sve-74346 / 1876
Lokacija: Sofia
Tip na zgrada/kompleks: Stambeni
Klas na zgradi/kompleksu:
RZP na zgradi/kompleksu: 3 300м²
Površine stanova: 3.27 m2
Tipovi nekretnina u zgradi/kompleksu:
Podrum u „COMFORT RESIDENCE - LYULIN CENTAR", najnovijem ekskluzivnom stambenom projektu, koji se sastoji od dve zgrade, odlično pozicionirane u jednom od najpopularnijih i najvećih beogradskih kvartova - "Lyulin", u njegovom najsavremenijem i najatraktivnijem delu – "Lyulin Centar". Zgrade su smeštene na mirnom i tihom mestu, u blizini metro stanice "Lyulin" (300 m), tramvajske stanice, hipermarketa BILLA i prodavnice Fantastiko. Ovaj kraj ima izvrsno razvijenu infrastrukturu koja omogućava brz i lak pristup centralnim delovima grada. Velikim bulevarom "Carica Joanna", koji se nalazi u neposrednoj blizini idealnog centra grada, stiže se za oko 10 – 15 minuta kako automobilom, tako i redovnim gradskim prevozom i metroom.
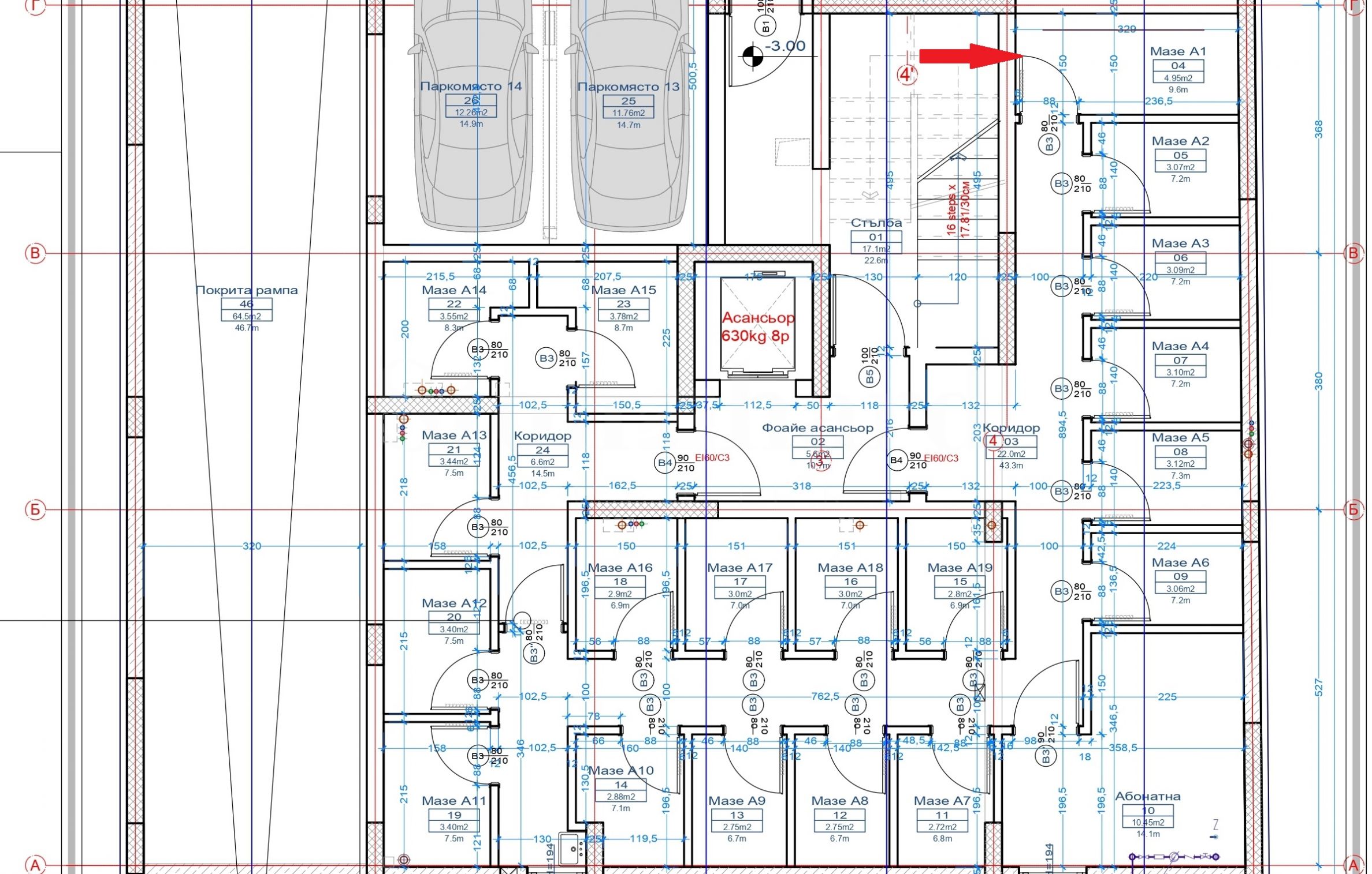
Podrum je smešten u suterenu, zajedničkom za zgrade „A“ i „B“, zauzima mesto „A2“. Ukupna površina je 3,27 m2. Podrumi imaju čvrsta i vatrootporna vrata. Suterenski prostor je opremljen ventilacionim sistemom i toplom vezom sa spratovima zgrade putem lifta. Suterenski prostor je prostran i manevrisanje je lako. Dva podzemna nivoa sa garažama, parking mestima i podrumima opslužuju se rampama. Pod podzemnih garaža i podruma je od brušenog betona sa horizontalnim obeležavanjem.
Slika koja predstavlja nekretninu je informativnog karaktera.
COMFORT RESIDENCE — visok kvalitet gradnje sa nemačkim materijalima i tehnologijama. Cene i načini plaćanja BEZ KONKURENCIJE u celoj Sofiji.
Početak gradnje: jul 2018.
Rok završetka: decembar 2020.
Prosečne cene stanova od 750 €/m2.
"Lyulin centar" nudi širok spektar trgovačkih usluga, pogodnosti, sportskih centara, mesta za odmor, treninge i zabavu na samo nekoliko koraka. U blizini se nalaze sportski kompleks „Sikonko”, bazen, škole i vrtići. Zgrade su povoljno pozicionirane jedna nasuprot druge, sa lepo uređenim međublokovskim prostorom. Jugozapadni deo, gde se nalazi niža zgrada, ima atraktivnu lokaciju sa pogledom na zelenilo.
Projekat je delo arhitektonskog studija Art New Vision, koji je na Godišnjim arhitektonskim nagradama 2017. godine osvojio Treću nagradu za Pivovaru Kamenica – Arhitektura sa ukusom piva u temi „Javne zgrade“, kategorija „Trgovačke zgrade“, a 2019. godine dobili su specijalnu nagradu u kategoriji "Proizvodne i logističke zgrade" za svoj multifunkcionalni kompleks Pivovarnica Kamenica.
Okrug:
• najlepši i najmirniji deo kvarta "Lyulin"
• zelenilo u međublokovskim prostorima
• izuzetno brz pristup strateškim tačkama grada
• u blizini glavne saobraćajnice i metroa
• raznovrstan izbor pogodnosti i usluga
Raspored:
Ukupna bruto površina dve zgrade je 3201,52 m2, od čega je stambena površina ukupno 2046,05 m2.
• Suterenski sprat, zajednički za zgrade A i B, ima 18 parking mesta, podrume i skladišne prostorije
• Prizemlje ima podzemne garaže
• Zgrada A ima šest spratova, nudi dvosobne, trosobne stanove i mezonete
• Zgrada B ima pet spratova, nudi dvosobne, trosobne stanove i mezonet
Gradnja:
Zgrade su projektovane tako da obezbede maksimalnu stambenu udobnost i mirno porodično okruženje. Njihov izgled se savršeno uklapa u okolinu, a istovremeno unosi akcenat u gradsku koncepciju okruga. Garantovano je korišćenje visokokvalitetnih inovativnih materijala i tehnologija:
• Monolitna skeletno-gredna konstrukcija, projektovana po najnovijim standardima za otpornost na zemljotrese i najboljim praksama u oblasti, izvedena sa bezkompromisnom preciznošću uz pomoć najsavremenijih laserskih i optičkih mernih uređaja i visokotehnoloških oplatnih sistema
• Fasadni paket WEBER ili BAUMIT. Fasada zgrade biće izvedena sa celokupnim "integrisanim termoizolacionim sistemom", koji uključuje 10 cm termoizolacionih ploča EPS;
• Visokokvalitetni pet+šestokomorni PVC prozori Aluplast Ideal 4000, profil 70 mm, okov "MASO", stakleni paket Energy Četiri godišnja doba sa argonom ili tog ranga;
• Krovni prozori i sistemi Fakro;
• Zidovi - visokokvalitetne keramičke cigle “Kebe” ili tog ranga;
• Liftovi IZAMET;
• Blindirana ulazna vrata sa celokupnim sigurnosnim sistemom;
• Spoljašnje ograde – od metalne konstrukcije po arhitektonskom detalju;
• Grejanje - izvedeni priključci za klima uređaje;
• Ventilacija - za sve kupatila i toalete predviđena je usisna ventilacija sa priključcima za individualne ventilatore. Za podzemni parking predviđena je mešovita prisilna i prirodna ventilacija;
• Zajednički delovi: Ulazni hol sa enterijerskim dizajnom po arhitektonskom projektu. Podovi u hodnicima i stepeništu su od dizajnerskog granitogresa.
Ograde su po arhitektonskom detalju. Zidovi i plafoni su izvedeni sa gipsanom žbukom i lateksom.
Rasveta sa senzorom za automatsko uključivanje i isključivanje. Individualne poštanske kutije za svaki stan.
• Domofonski sistem do svih stanova
• Kabliranje: Telefonski i internet priključci do svakog stana; unutrašnje kabliranje za kablovsku televiziju do svakog stana
Obilazak nekretnine
Možemo organizovati obilazak nekretnine u vreme koje vam odgovara. Za to, kontaktirajte odgovornog agenta za ponudu i recite mu kada biste želeli da obavite obilazak.
Rezervacija nekretnine
Nekretnina može biti rezervisana i skinuta sa prodaje uplatom depozita, nakon čega se prekida održavanje obilazaka sa drugim kupcima i započinje priprema dokumenata za sklapanje preliminarnog i konačnog ugovora. Kontaktirajte odgovornog agenta za ovu nekretninu za detaljne informacije o postupku kupovine i načinima plaćanja.
Dodatne usluge i postprodajna podrška
Mi smo renomirana kompanija i bićemo uz vas ne samo tokom kupovine, već i nakon toga, obezbeđujući vam dodatne usluge po vašem zahtevu radi potpunog i bezproblemljnog korišćenja novokupljene nekretnine. Usluge koje možemo ponuditi uključuju dobijanje odobrenja za hipotekarni kredit, osiguranje pokretnosti i nepokretnosti, životno osiguranje, medicinsko i auto osiguranje, građevinske i renovacione radove, opremanje, pravne i računovodstvene usluge i dr.
Mesto na karti
Станови поред Булевара Владимира Вазова и будуће метро станице
Sofia / Sofia / Бугарска karta
Cene na imovinu: 125 000 - 294 223 €
Cene po m²: 1 950 - 2 250 €/m2
Mladost 4 / Sofia / Sofia / Бугарска karta
Cene na imovinu: 148 598 - 366 167 € (bez PDV-a)
Cene po m²: 1 808 - 2 547 €/m2 (bez PDV-a)
PRODAŽBA
PROJEKAT
Butik apartmani u novoj modernoj zgradi u centru Sofije
Center / Sofia / Sofia / Бугарска karta
Cene na imovinu: 294 240 - 567 630 € (bez PDV-a)
Cene po m²: 4 000 - 4 500 €/m2 (bez PDV-a)
Izaberite ovu opciju i obaveštavaćemo Vas putem imejla o promenama statusa ponude, na primer:
• Promena cene;
• Nekretnina je ušla u promotivnu ponudu;
• Nekretnina je rezervisana ili prodata;
• Druge novosti vezane za nekretninu.
• Nekretnina je skinuta sa prodaje;
Možete se lako odjaviti sa notifikacija kad god poželite.• Promene uslova ponude;
• Promena iznosa investicije;
• Predmet investicije je u potpunosti realizovan;
• Važenje ponude je isteklo.
Možete se lako odjaviti ako u budućnosti odlučite da više ne želite da pratite ovu ponudu.
Da biste dobili apsolutno tačne informacije o slobodnim nekretninama dostupnim za prodaju u projektu i njihovim aktuelnim cenama, molimo vas da kontaktirate našu kancelariju na navedene kontakt informacije.
Trudimo se da naše cenovnike održavamo apsolutno aktuelnim i tačnim, ali često to nije moguće zbog velikog broja novih projekata u našem katalogu i snažne dinamike prodaje.
Hvala vam na razumevanju!



...Kao dokazani stručnjak Stonehard PREMIER radi na tržišnom pozicioniranju i prodaji brojnih projekata novogradnje, čija je realizacija poverena od strane vodećih preduzetničkih kompanija u Bugarskoj i inostranstvu...