REF#AP 125937
/
Apartamente cu 3 camere
/
Proiecte implementate
/
Sofia
/
Mladost 4
/
Sofia
/
Bulgaria
pe hartă
Preţ:
219 678 € (2 350 €/m²)
*Prețurile și disponibilitatea proprietăților vacante din cadrul proiectului sunt orientative. Pentru informații actualizate despre prețuri, vă rugăm să ne contactați!
Ref. Număr: AP 125937 / 3762
Locaţie: Mladost 4 / Sofia hartă
Tipul clădirii/complexului: Rezidențial
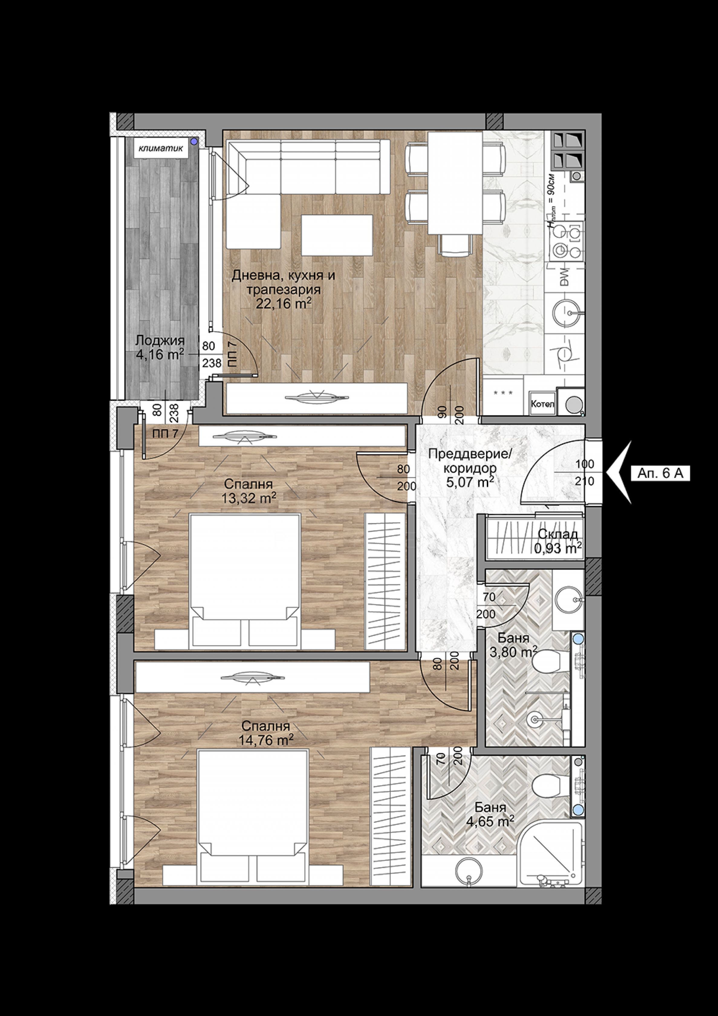
Zone de locuit: 93.48 m²
Tipuri de proprietăți din clădire/complex: Apartamente cu 3 camere
Ref. Număr: AP 125937 / 3762
Locaţie: Mladost 4 / Sofia
Tipul clădirii/complexului: Rezidențial
Clasa clădirii/complexului:
Zone de locuit: 93.48 m²
Tipuri de proprietăți din clădire/complex: Apartamente cu 3 camere
Locație pe hartă
Clădire rezidențială multifamilială cu curte verde și diferite tipuri de apartamente în cartierul "Malinova dolina"
Malinova Dolina / Sofia / Sofia / Bulgaria hartă
Prețurile proprietăților: Preț la cerere
VÂNZARE
PROIECT
Apartament cu trei camere într-o clădire nouă modernă cu Act 16 în "Malinova dolina"
Malinova Dolina / Sofia / Sofia / Bulgaria hartă
Zonă: 104.99 m²
Preţ: 273 000 € /// 2 600 €/m²
VÂNZARE
PROIECT
Apartament cu trei camere într-un complex nou, aproape de stația de metrou și Paradise Mall
Krustova Vada / Sofia / Sofia / Bulgaria hartă
Zonă: 147.05 m²
Preţ: 399 000 € /// 2 713 €/m²
Selectați această opțiune și vă vom anunța prin e-mail dacă apar modificări ale stării ofertei, de exemplu:
• Modificarea prețului;
• Proprietatea a intrat într-o ofertă promoțională;
• Proprietatea este rezervată sau vândută;
• Alte știri legate de proprietate.
• Proprietatea este scoasă de la vânzare;
Te poți dezabona cu ușurință de la notificări oricând dorești.• Modificări ale termenilor ofertei;
• Modificarea valorii investiției;
• Obiectul investiției a fost realizat integral;
• Oferta a expirat.
Vă puteți dezabona cu ușurință dacă decideți în viitor că nu mai doriți să urmați această ofertă.
Pentru a primi informații absolut corecte despre proprietățile vacante disponibile spre vânzare în cadrul proiectului și prețurile lor actuale, vă rugăm să contactați biroul nostru la informațiile de contact furnizate.
Depunem toate eforturile pentru a menține listele noastre de prețuri absolut actualizate și corecte, dar acest lucru este adesea imposibil, având în vedere numărul mare de proiecte noi din catalogul nostru și vânzările extrem de dinamice.
Vă mulțumim pentru înțelegere!



...În calitate de specialist dovedit, Stonehard PREMIER lucrează la poziționarea pe piață și la vânzările a numeroase proiecte de construcții noi, a căror implementare ne-a fost încredințată de companii antreprenoriale de top din Bulgaria și din străinătate...